Bildegalleri

Lignende Ålhytte i samme område
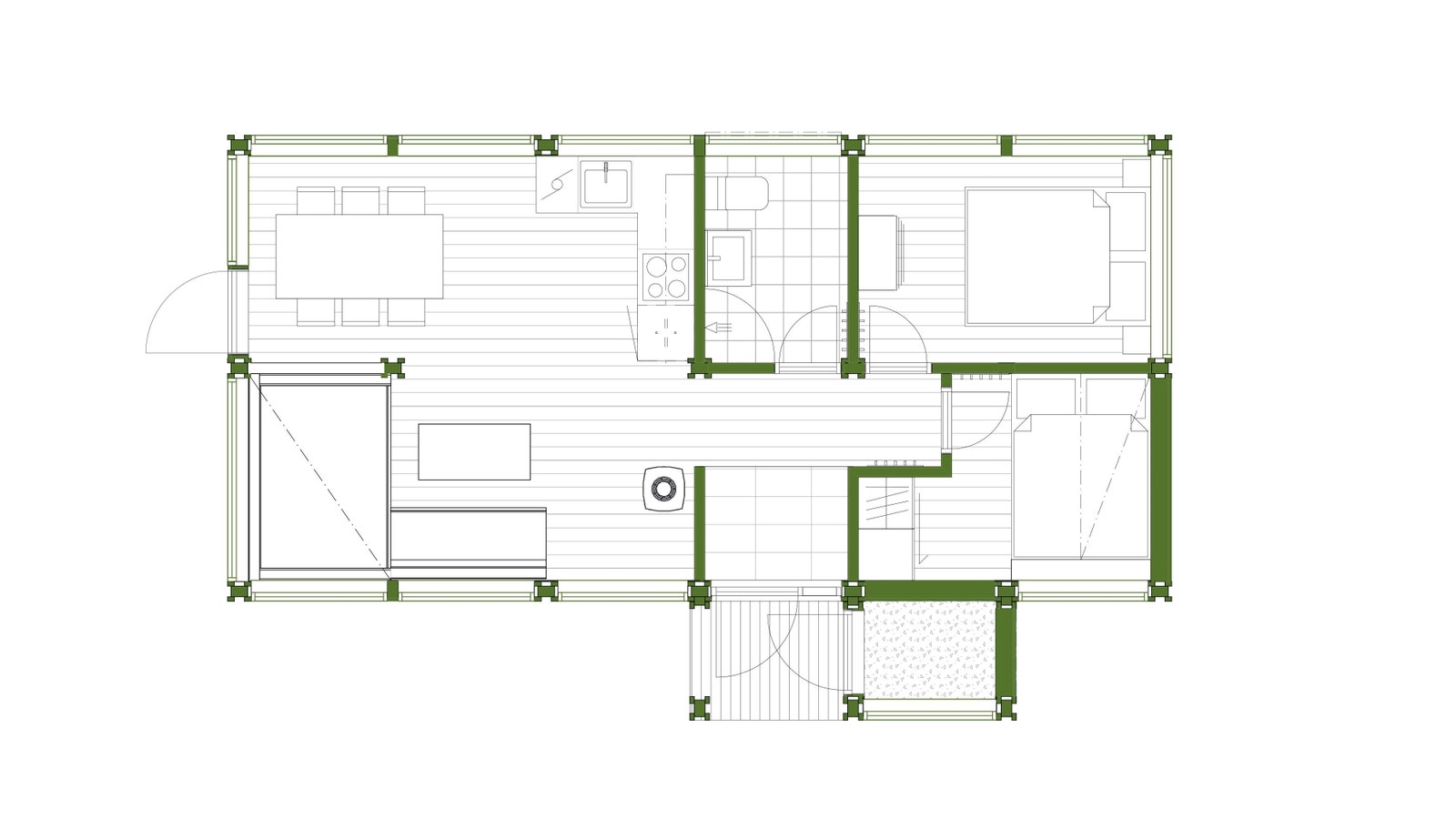
Ålhytte, 55 m2, Sørbølfjell Tomt A2
- Omkostninger
- 70 000 kr
- Totalpris
- 3 170 000 kr
Nøkkelinfo
- Beliggenhet
- På fjellet
- Boligtype
- Hytte
- Eieform
- Eier (Selveier)
- P-plasser
- 2
- Tomteareal
- 1 002 m² (eiet)
- Bruttoareal
- 55 m²
- Soverom
- 2
- Sengeplasser
- 7
- Meter over havet
- 780
Fasiliteter
Visning
Ta kontakt for å avtale visning.Om eiendommen
Beliggenhet
Eiendommen ligger på Sørbølfjell, sør-vestvendt, solrik og med fantastisk utsikt mot Sørbølnatten. Nyetablert hyttefelt.
Fantastisk turterreng for ski, fotturer og sykkelturer. Jakt og fiskemuligheter i området. Kort kjøreavstand fra Oslo og det sentrale østlandsområdet.
Generelt
Tomt
Tomt Tomt A2 har helårsvei, vann, avløp og strøm og leveres med parkeringsplass for 2 biler. Åpen tomt med flott utsikt og gode solforhold. Hytta er fundamentert på støpt plate
Hytteleveransen:
Ålhytte med 2 soverom, åpen stue/kjøkkenløsning. Ålhytta kan levere komplette interiørpakker, tegnet av samme arkitekt som har tegnet hytta. Vi leverer gjerne komplett interiør til hytta men dette inngår ikke i pris på dette prospekt.
Strøm, vann og avløp:
El og VVS leveres komplett med rør og avløp, dusj, toalett, servanter og armatur. El-installasjoner inkluderer hovedinntak, hovedtavle, alle nødvendige kurser og jordsikringer, samt 2 varmekabler.
Generelt
Hytta er ikke påbegynt, og vil kunne tegnes om etter ønske fra kunde. Prisen er basert på indeks per juni 23
Adkomst/Tomteforhold
Kjørebeskrivelse
Sørbølfjell ligger i Flå kommune, snaue 2 timers kjøring fra Oslo, kun 10 mil fra Sandvika. Følg riksvei 7 til avkjøring ved Gulsvik. Med ny RV7 mellom Sokna og Gulsvik er det kun 100 km fra Sandvika i Oslo til hytta.
Tomteforhold
Tomten ligger ca. 780 moh, er på ca 1000 m2, har helårsvei, vann, avløp og strøm og leveres med parkeirngsplass. Åpen tomt med flott utsikt og gode solforhold. Hytta blir fundamentert på støpt plate.
Innhold
Standard
Ta kontakt med megler for komplett informasjon
Nærområdet
Ålhytta
Annonsene kan være mangelfulle i forhold til lovpålagt opplysningsplikt. Før bindende avtale inngås oppfordres interessenter til å innhente komplett informasjon fra meglerforetaket, selger eller utleier.















