Bildegalleri

Velkommen til Smiubakken 11!
Inaktiv
Oslia Hyttefelt- Fritidsbolig beliggende i naturskjønne omgivelser. 6 sov. Kort vei Furutangen og Nordre Osen sentrum
Prisantydning4 490 000 kr
- Omkostninger
- 135 420 kr
- Totalpris
- 4 625 420 kr
- Kommunale avg.
- 1 541 kr per år
- Eiendomsskatt
- 5 233 kr per år
- Formuesverdi
- 528 000 kr
Nøkkelinfo
- Beliggenhet
- Innlandet
- Boligtype
- Hytte
- Eieform
- Eier (Selveier)
- Primærrom
- 129 m²
- Bruksareal
- 172 m²
- Tomteareal
- 2 237 m² (eiet)
- Byggeår
- 2010
- Soverom
- 6
- Rom
- 8
- Energimerking
- D - Oransje
- Overtakelse
- Overtakelse etter avtale
Fasiliteter
Balkong/Terrasse
Barnevennlig
Bilvei frem
Hage
Peis/Ildsted
Rolig
Utsikt
Fiskemulighet
Innlagt strøm
Turterreng
Visning
Meld deg på visning via påmeldingsknappen. Velkommen!
Husk å lese komplett salgsoppgave før visning. Bestill komplett, utskriftsvennlig salgsoppgave.
VisningspåmeldingOm boligen
Velkommen til Nordre Osen og Smiubakken 11!
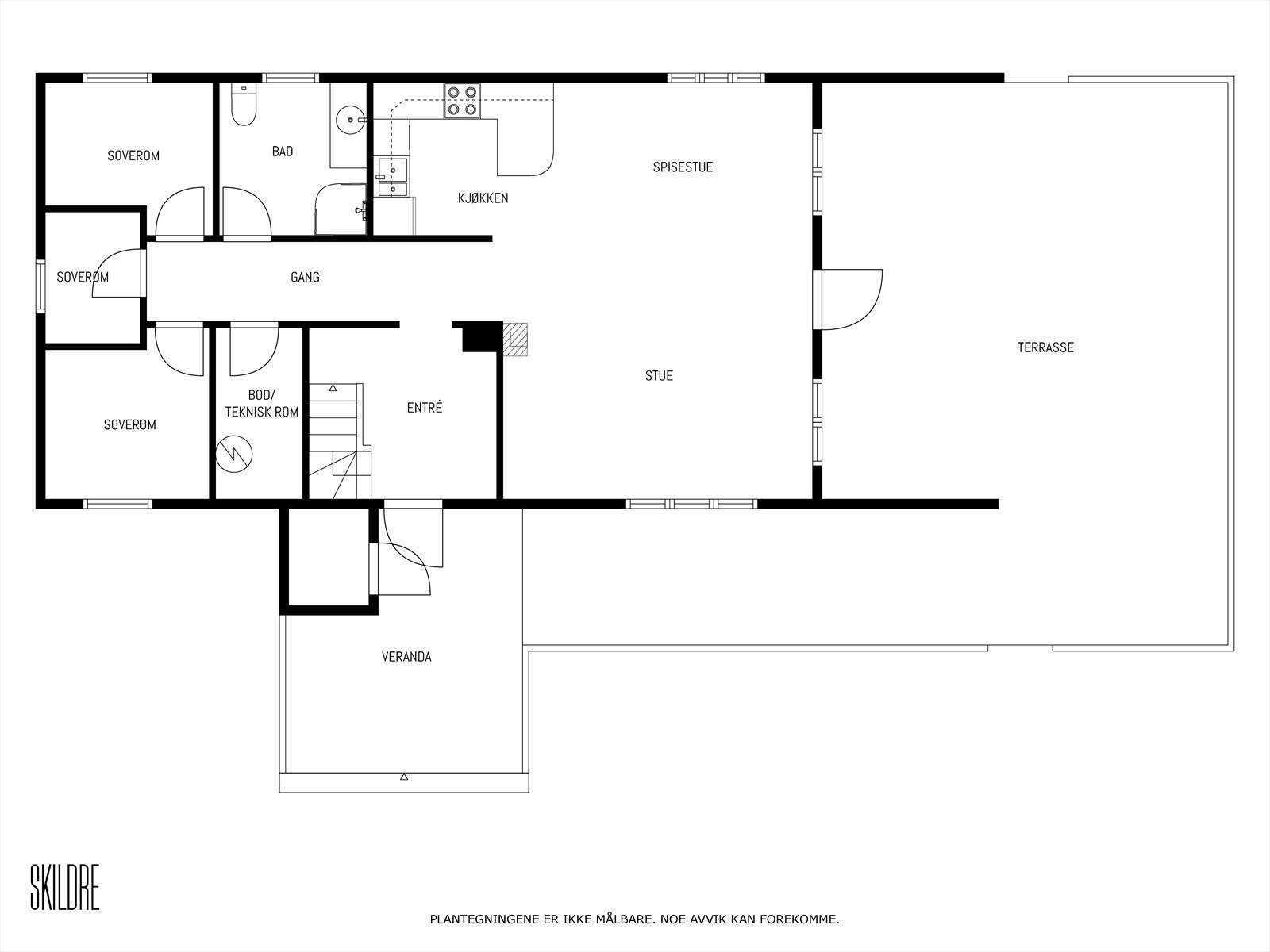
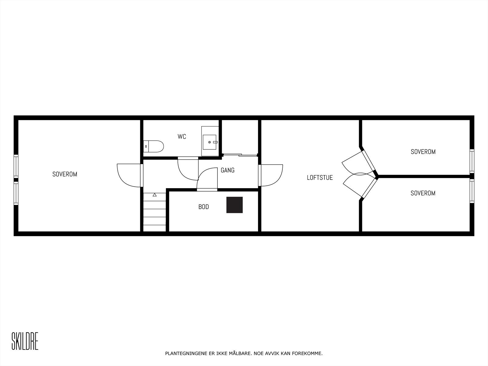
Her kan vi presentere en fin fritidsbolig over et plan med loftplan. Hytta har stue/kjøkken, bad, toalettrom og hele seks soverom. Romslig, solrik tomt med veranda og garasje. Flott utsikt mot nærområder. Elektriske varmekabler i gulv i yttergang, gang, stue og bad. Oppvarming ellers med vedfyring. God takhøyde i 2.etasje.
Det er ca. 4 km fra eiendommen til Osensjøen, hvor man kan bade, fiske og kjøre båt. Kort vei til Furutangen alpinanlegg, samt oppkjørte skiløyper og flott turterreng. Til sentrum av Nordre Osen er det ca. 6 km, og her kan man blant annet handle inn til hytteturen.
Velkommen til visning!
Meld deg på via påmeldingsknappen, eller ta kontakt med Hans Petter Carlsson, eiendomsmegler MNEF på tlf. 911 25 518.
Her kan vi presentere en fin fritidsbolig over et plan med loftplan. Hytta har stue/kjøkken, bad, toalettrom og hele seks soverom. Romslig, solrik tomt med veranda og garasje. Flott utsikt mot nærområder. Elektriske varmekabler i gulv i yttergang, gang, stue og bad. Oppvarming ellers med vedfyring. God takhøyde i 2.etasje.
Det er ca. 4 km fra eiendommen til Osensjøen, hvor man kan bade, fiske og kjøre båt. Kort vei til Furutangen alpinanlegg, samt oppkjørte skiløyper og flott turterreng. Til sentrum av Nordre Osen er det ca. 6 km, og her kan man blant annet handle inn til hytteturen.
Velkommen til visning!
Meld deg på via påmeldingsknappen, eller ta kontakt med Hans Petter Carlsson, eiendomsmegler MNEF på tlf. 911 25 518.
NB: Knappen for å vise hele beskrivelsen har kun en visuell effekt.
NB: Knappen for å vise hele beskrivelsen har kun en visuell effekt.
Salgsoppgaven beskriver vesentlig og lovpålagt informasjon om eiendommen
Se komplett salgsoppgaveNyttige lenker
Nærområdet
Meglerhuset Østlandet AS
Annonseinformasjon
| FINN-kode | 319490048 |
|---|---|
| Sist endret | 09. sep. 2025 19:39 |
| Referanse | GAR14.23108 |
Annonsene kan være mangelfulle i forhold til lovpålagt opplysningsplikt. Før bindende avtale inngås oppfordres interessenter til å innhente komplett informasjon fra meglerforetaket, selger eller utleier.





































