Bildegalleri

Polar 118 fra Nordlyshytter
Nøkkelferdig Polar 118 fra kr. 4.340.000,- NYHET: Vi hjelper til å redusere strømbruken!
- Omkostninger
- 200 000 kr
- Totalpris
- 4 540 000 kr
Nøkkelinfo
- Beliggenhet
- På fjellet
- Boligtype
- Hytte
- Eieform
- Eier (Selveier)
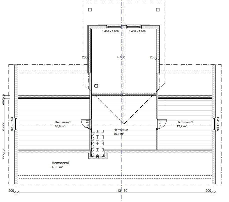
- Bruksareal
- 108 m²
- Tomt
- Eiet
- Soverom
- 5
Fasiliteter
Visning
Ta kontakt for å avtale visning.Om eiendommen
Beliggenhet
Tomtene på Rytterspranget har spektakulær utsikt og fantastiske solforhold. Dette er indrefileten av hyttetomter på Gautefall. Skisenteret er vår nærmeste nabo!
Nå har vi over 35 byggeklare tomter!
Rytterspranget ligger på toppen av Gautefallheia i Drangedal kommune i Telemark fylke. Gautefallheia ligger mellom Drangedal og Nissedal/Treungen. Gautefall er en familiedestinasjon med fokus på barn og barnefamilier. Vår nærmeste nabo, Gautefall skisenter, er et topp moderne alpinsenter med mange skitrekk og nedfarter. Den nyeste skiheisen er en 6-seters ekspressheis som tar deg til toppen på 3 minutter. Ikke minst har skisenteret to barnevennlige skibånd for de minste. Snøkanonanlegg sikrer gode forhold gjennom hele vinteren.
Med hytte på Rytterspranget får du tilgang til alt dette rett utenfor hyttedøra:
- Umiddelbar tilgang til Telemarks største og mest moderne skisenter
- Tilgang til nydelig natur og Gautefalls spesielle svafjell-topografi (se bilder)
- Over 5 mil maskinpreparerte langrennsløyper
- Over 10 mil merkede stisyklingsløyper
- Asfaltert lysløype til bruk hele året
- Gangavstand til kafeer, hotell, afterski, restaurant m.m.
- Over 100 fiskevann
Vår påstand er: Få eller ingen steder slår Gautefall om du har lyst til å bruke hytta året rundt!
Generelt
Gautefalltomter samarbeider med flere anerkjente hytteleverandører, blant annet Familiehytta, Nordlyshytter, Telemarkhytter, Leve Hytter og Berge Sag. I vårt prospekt og på vår hjemmeside presenteres et stort utvalg hytter fra disse leverandørene. Alle med nøkkelferdige priser på alle tomter. Er det andre hytter fra disse leverandørene du ønsker pris på, ta kontakt.
Det tas forbehold om trykkfeil og at alle typer endringer kan skje på kort varsel.
Selvbetjent visning
På Gautefall tilbyr vi både personlig og selvbetjent visning! Ta kontakt med oss for personlig visning, eller les mer om selvbetjent visning på hjemmesiden eller i prospektet. Våre felter har flere byggeklare tomter man kan besøke akkurat når det passer deg best. Ved hjelp av prospekt som man får ved inngangen til feltet vil man få nøkkelferdige priser på over 30 ulike hyttemodeller, mens man står på tomtene.
Adkomst/Tomteforhold
Se eget kart. Rytterspranget på Gautefall er nærmeste nabo til Gautefall Skisenter. Ta av veien like før man ankommer skisenteret når man kommer fra Drangedal, eller like etter skisenter når man kommer fra Nissedal.
Har du hytte på Gautefall er det kort vei til hytta;
- Kun litt i overkant av en time å kjøre fra Arendal, Skien og Porsgrunn.
- Under to timer fra Kristiansand.
- Under to timer fra Tønsberg.
- Under tre timer fra Oslo
I Drangedal som ligger ca. 20 minutter kjøring unna Rytterspranget finner du togstasjonen i bygda. Herfra går det direkte tog både i retning Oslo og Kristiansand flere ganger om dagen.
Gautefalltomter hjelper deg å få lave strømkostnader i ny hytte!
Investeringen som muliggjør dette dekker Gautefalltomter for alle som kjøper tomt i 2023!
Tre viktige faktorer gjør dette mulig:
- Nye hytter har minimalt varmeutslipp sammenliknet med eldre hytter
- Topp moderne varmepumpe fra Mitsubishi
- App-basert styringssystem ”Strømkontroll” fra Futurehome
Les mer om vår "strømpakke" på hjemmesiden https://gautefalltomter.no/stromsparing/ eller ta kontakt for mer informasjon!
Innhold
Standard
Salgsoppgaven beskriver vesentlig og lovpålagt informasjon om eiendommen
Se komplett salgsoppgaveNyttige lenker
Nærområdet
Gautefalltomter AS
Annonseinformasjon
| FINN-kode | 314689039 |
|---|---|
| Sist endret | 02. aug. 2024 09:34 |
| Referanse | Polar118 Gautefall |
Annonsene kan være mangelfulle i forhold til lovpålagt opplysningsplikt. Før bindende avtale inngås oppfordres interessenter til å innhente komplett informasjon fra meglerforetaket, selger eller utleier.
































