Bildegalleri

Høyt og fint beliggende med gode solforhold og flott ustikt
Flott prosjektert funkishytte med sjøutsikt på Alveberget - Nærhet til sjø og skog
- Omkostninger
- 142 990 kr
- Totalpris
- 5 812 990 kr
Nøkkelinfo
- Beliggenhet
- Ved sjøen
- Boligtype
- Annet fritid
- Eieform
- Eier (Selveier)
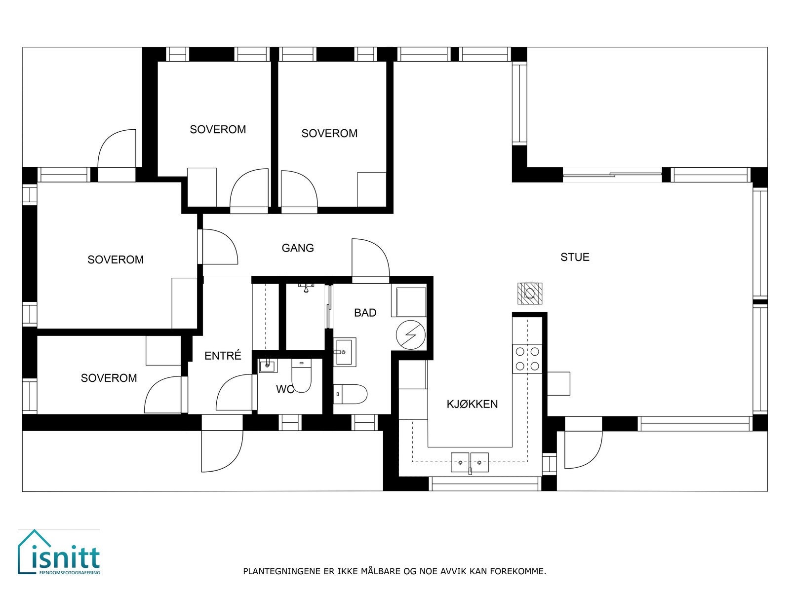
- Bruksareal
- 87 m²
- Tomteareal
- 631 m² (eiet)
- Byggeår
- 2024
- Soverom
- 3
- Rom
- 5
Visning
Husk å lese komplett salgsoppgave før visning. Bestill komplett, utskriftsvennlig salgsoppgave.
VisningspåmeldingOm eiendommen
Beskrivelse av prosjektet
Alveberget hyttefelt er en idyll av de sjeldne! Med sin landlige beliggenhet og umiddelbare nærhet til Skagerak er dette det ultimate sted for gode opplevelser hele året. Alveberget ligger på Tromøya - Sørlandets største øy.
Dette er en drøm av et sommerparadis hvor du finner alt fra nydelige sandstrender, svaberg, rullesteinstrender til lune turstier i øyas vakre skogsområder. På vinterstid kan du kose deg inne og lytte til bruset fra Skagerak, eller du kan benytte deg av det flotte området på ski, om du ønsker det. Tempoet går litt saktere ute på landet, skuldrene senkes og sansene åpnes for flere inntrykk.
Vi tror at vakre og sjarmerende omgivelser er viktig for livskvaliteten, Tromøya tilbyr alt hva Sørlandet og det gode liv kan tilby. Her vil du som hytte eier kunne nyte late dager skjermet fra hverdagens kjas og mas - eller en mer aktiv fritid.
Alveberget hyttefelt er bare en ti minutters biltur unna Arendal sentrum med fine shoppingmuligheter, restauranter og kulturtilbud.
I Alvekilen, et steinkast unna hyttefeltet, er det badestrand og båtplasser til leie.
Tromøya har eget nærsenter, i tillegg til spisesteder og aktivitetstilbud hele året.
Ved kjøp av ny hytte får man på kjøpet en rekke fordeler i forhold til å kjøpe brukt:
- Lave vedlikeholdskostnader
- Lave driftskostnader
- Lavt energiforbruk
- Mulighet til å påvirke sluttresultatet
- Praktiske og moderne løsninger
- Lav dokumentavgift
- Trygghet
- Kun nytt er nytt!
Beliggenhet
Alveberget hyttefelt ligger fint til Tromøya med nærhet til sjø og fine turområder. Her er det meget gode solforhold. Feltet ligger fint til med pent opparbeidede fellesareal, sandstrand mv. Enkel adkomst til sentrum og E-18.
Adkomst
Kjør over Tromøybroa og ta til venstre i rundskjøringen. Følg veien videre og ta av mot Tromøy kirke. Etter et par minutters kjøring er det skiltet til Alveberget, på venstre side. Følg veien til idylliske Alveberget.
Fra Oslo er Tromøya lett tilgjengelig, kun tre-timers kjøring i bil.
Fra Kristiansand er det ca 45 minutters kjøring.
Areal
Bruksareal: 87 kvm
Bruksareal: 87,3 m².
Arealberegningene er angitt i henhold til målereglene i Norsk Standard Veileder til NS 3940 og retningslinjer for arealmåling.
Beregningene er foretatt av arkitekt/utbygger og er oppmålt etter tegninger. Arealene i salgsoppgaven og annet markedsføringsmateriale er oppgitt i bruksareal (BRA) og er å betrakte som et omtrentlig areal. Størrelse på de enkelte rom kan avvike noe, slik at et rom kan bli større og et annet bli mindre. Det kan oppstå mindre avvik mellom teoretisk og virkelig areal. Bruksarealet (BRA) er arealet innenfor leilighetens omsluttede vegger inkl. eventuell innvendig bodareal. Utvendig bodareal er ikke medregnet. Arealet som er oppgitt på de enkelte rom er rommets netto gulvareal. Man kan derfor ikke summere rommenes nettoarealer og få frem bruksarealet.
Tomt / Tomteareal
Eiet tomt på ca. 631 kvm. Tomten vil bli fradelt fra hovedeiendommen, og vil få eget gnr./bnr. Arealet er omtrentlig, og noa avvik på påregnes.
Tomten opparbeides i henhold til vedlagte utomhusplan, med de krav som fremgår av reguleringsbestemmelsene i forhold til opparbeidelse av gangstier, lekeplasser og grøntareal. Eksakt tomteareal vil foreligge etter sammenføying/fradeling ved endelig oppmåling utført av kommunen.
Det leveres planert og pukket tomt rundt hytte. Arrondering av kantareal med jord/stedlige masser pukket oppstillingsplass for 2 biler medfølger.
Parkering
Parkering til flere biler på tomten.
Boder
I tillegg til hytten, vil det være mulig å oppføre et anneks på eiendommen. Konferer megler for mer informasjon.
Internett / TV
Fiber som fører TV og bredbånd levert av Altibox vil bli lagt inn i feltet og det er frivillig for den enkelte grunneier om man ønsker tilkobling til sin eiendom. Det leveres 1 stk. punkt for tilkobling av TV / data pr. etg. som standard pr hytte.
Tilvalg
Kjøper har mulighet til å få utført endrings- og tilleggsarbeider etter særskilt avtale. Alle endrings- eller tilleggsarbeider skal avtales skriftlig mellom partene og i avtalen skal det redegjøre for pris og ev. fristforlengelse som følge av endringene. Kjøpers rett til å få utført endrings- eller tilleggsarbeid er begrenset til 15 % av kjøpesummen.
Kjøper kan endre spesifikasjoner for sin leilighet gjennom prosjektets fastsatte tilvalgsrutiner. Det vil bli utarbeidet en egen tilvalgsbrosjyre som viser hva man kan velge. Det er en forutsetning at endringene er i samsvar med kravene som fremkommer av gjeldende teknisk forskrift.
Hytten leveres med gjennomgående god kvalitet og standard. Det er predefinert tilvalgspakker, og hytten vil bli levert ihht. pakke 2. Se lenger bak i salgsoppgaven. Utover disse tre pakkene, vil det også være muligheter for tilvalg tilpasset den enkeltes behov.
Partene kan kreve justering av det avtalte vederlag i henhold til bustadoppføringslovas regler om endringer og tilleggsarbeid, jf. bustadoppføringslova. § 9 og § 42. Selger kan kreve tilleggsvederlag for nødvendige kostnader som kommer av forhold på kjøpers side.
TILVALG PREMIUM PAKKE:
Denne beskrivelsen er utarbeidet for å orientere om bygningenes viktigste bestanddeler og funksjoner. Det kan forekomme avvik mellom leveransebeskrivelsen og plantegningene. I slike tilfeller er det alltid leveransebeskrivelsen som er retningsgivende. Enkelte illustrasjoner i tegningsmaterialet kan vise forhold som ikke er i samsvar med leveranse, som møblering, fargevalg, dør- og vindusform, bygningsmessige
detaljer, for eksempel fasadedetaljer, fellesarealer, materialvalg, blomsterkasser, beplantning, fargesetting etc, som følge av blant annet den arkitektoniske utformingen av bygget.
GULV:
Hyttene leveres med 1-stavs parkett i lys eik Andante fra Boen eller tilsvarende. Flis i gang og bad.
INNVENDIG VEGGER:
Leveres med stående 120 mm Pernillepanel ferdigbehandlet fra fabrikk. Innvendige skillevegger utføres med trestendere og 70
mm isolasjon.
INNVENDIG TAK:
Hvitmalt gips.
KJØKKEN:
Innredning fra HTH med hvite fronter, type Scala eller Line, og laminat benkeplate.
Det leveres pakke med integrerte hvitevarer.
GARDEROBE:
Garderober leveres ikke.
INNVENDIG DØRER:
Innvendige dører fra Scanflex type hvit Trend 1 eller tilsvarende.
Utforinger i sammen farge.
INNVENDIG TRAPP:
Hvitmalt med trinn av eik og hvitmalt håndløper og spiler.
BADEROMSINNREDNING/SANITÆRANLEGG:
Innredning leveres i slett hvit utførelse. Det leveres vegghengt toalett, servant / armatur tilpasset innredning og speil.
Dusjløsning med glassvegger, nisjeløsning eller kabinett i henhold til tegning. Det klargjøres for tilkobling av vaskemaskin i henhold
til tegning. Varmtvannsbereder plasseres som vist på tegning. Det tas forbehold om mindre endringer på plantegninger for fremføring av sjakter for evt. elektriske føringer og annet.
VENTILASJON:
Det leveres mekanisk avtrekk fra kjøkken og bad. Tilluft i ventiler i vegg.
VINDUER/TERRASSEDØRER
Vinduer og terrassedører i tre fra Norgesvinduet eller tilsvarende leveres hvitmalt med 2 lags energiglass i henhold til tegning. Utforinger i samme farge.
HOVEDINNGANGDØR:
Hovedinngangsdør i malt utførelse fra fabrikk. FGgodkjent sikkerhetslås.
LISTVERK:
I rom med parkett leveres det gulvlister i lakkert eik med nese. Skyggelist i tak i hvit fabrikkmalt utførelse. Alle gerikter rundt vinduer og dører leveres i
fabrikkmalt slett utførelse.
ELEKTRISK:
Det elektriske anlegget blir utført etter gjeldende NEK 400. Skjult installasjon med kontakter og brytere innfelt i vegg. Strømmåler er plassert i utvendig målerskap og sikringsskap plasseres inne i hytta. Det blir opplegg for vaskemaskin / tørketrommel. Stikkontakt og brytermateriell er i hvit utførelse.
Det leveres downlights på bad og i kjøkken med flat himling. Varmekabel i gulv på gang og bad.
NEDFORING HIMLING/INKASSINGER:
Rørføringer vil i all hovedsak bli skjult bak innkassinger og som helt eller delvis i nedforede himlinger, fortrinnsvis i entré, bad, ganger og over kjøkkenskap. Nevnte konstruksjoner vil bli overflatebehandlet som en del av overflaten der konstruksjonen blir montert.
TERRASSER
Som standard følger det med 10 m2 terrasse på mark i støpt utførelse til hver hytte. Kjøper kan velge hvor terrassen skal plasseres. Det er også mulig å få større terrasse som tilvalg.
LEVERANSEBESKRIVELSE FOR BASISLEVERANSE AV HYTTE PAKKE 2 (Ihht std prisliste)
Basisleveranse av hytte som standard leveransen med følgende endringer: Belegg på gulv i gang. Flis på gulv på bad. Det leveres ikke folie varmekabel i oppholdsrom 1.etg. Basis standard på kjøkken fra HTH. Basis standard hvitevarer. Økonomistandard baderomsinnredning.
Flislagte vegger på bad. Malte panelplater Huntonit på vegger, Svanemerket Malt Huntonit panel i tak, Svanemerket Yttervegger 15 cm på de minste hyttene.
Terrasse på 10 m2 i betong er ikke inkludert. Trapp leveres som lakkert furutrapp med lakkert rekkeverk og spiler. Evt beiset furu.
Spotter i tak i bad og kjøkken er ikke inkludert. Det må påregnes synlige spikerhull / skjøter på listverk. Hytta leveres grunnet utvendig.
PIPE / ILDSTED:
Det leveres ikke pipe eller ildsted som standard leveranse.
TILVALG:
Det legges opp til at det kan gjøres tilvalg ved kjøp av hytte på Alveberget. Dersom det er behov for tilvalg ut over de predefinerte pakkene vil utbygger legge tilrette for det dersom det er mulig.
Utenomhusarealer
Utvendige arealer vil kunne bli ferdigstilt, og overtakelsesforretning på disse arealene avholdt, etter overtakelse av hytten.
Dersom de utvendige arealene ikke er ferdigstilt ved overtakelse av hytten, kan kjøper holde tilbake en forholdsmessig del av kjøpesummen.
Ev. gjenstående arbeider skal utføres så snart arbeidet praktisk kan utføres av hensyn til årstid. Selger er forpliktet til å ferdigstille arbeidet og fremskaffe ferdigattest innen rimelig tid og senest før den midlertidige brukstillatelsen er utløpt.
Velforening
Det er opprettet velforening for hyttefeltet. Det er inntil videre fastsatt at årsavgiften pr. eiendom i feltet til drift av infrastruktur og tekniske anlegg i vellet skal være kr. 5.000,- pr. år.
Pengeheftelser
Eiendommen overdras fri for pengeheftelser.
På eiendommen kan det være tinglyst erklæringer/avtaler som for eksempel rett til kommunen til å anlegge vann- og kloakkledninger inkl. reparasjon av disse, bestemmelser om bebyggelsen, gjerder, vei og adkomstrettigheter. Disse erklæringene/avtalene vil følge eiendommen ved salg, og kan ikke slettes.
Vei/Vann/Avløp
Hytten vil bli tilknyttet offentlig vann og avløp. Tilkoblingsavgift for vann/avløp betales av kjøper ved overtagelse.
Tilkobling Vann / avløp = kr. 13.000,-
Formuesverdi
Formuesverdi er ikke fastsatt. Ligningsverdien fastsettes av Ligningskontoret etter ny beregningsmodell som tar hensyn til om boligen er en såkalt primærbolig (der boligeieren er folkeregistrert bosatt) eller sekundærbolig (alle andre boliger man måtte eie). Formuesverdien for primærboliger vil utgjøre 25 % av den beregnede kvadratmeterprisen multiplisert med boligens areal. For sekundærboliger vil formuesverdien utgjøre 40% av den beregnede kvadratmeterprisen multiplisert med boligens areal. Se http:/www.skatteetaten.no for nærmere informasjon..
Fastsettes normalt av Skatt Sør i etterkant av at man har overtatt hytten. Ta kontakt med ditt lokale ligningskontor i forbindelse med innlevering av selvangivelsen.
Reguleringsmessige forhold
Eiendommen dekkes av detaljreguleringsplan for Alveberget i Arendal kommune med endelig vedtak og godkjenning av kommunestyret 14.09.2016. Det er i ettertid gjort 2 stk. mindre vesentlige endringer av 22.09.17 og 21.02.2018 som
Offentlige forbehold
Kjøper aksepterer at det på eiendommen kan påheftes servitutter/erklæringer som måtte bli påkrevd av offentlig myndighet, deriblant erklæring som regulerer drift og vedlikehold av fellesområder, og drift og vedlikehold av energi nettverk m.m.
Betalingsbetingelser/finansiering
Hele kjøpesummen sammen med omkostninger og eventuelle tilvalg skal innbetales til overtakelse, forutsatt at selger har stilt lovpålagt garanti etter bustadoppføringslova § 12. Samtlige beløp skal innbetales til meglerforetakets klientkonto. Innbetaling skal kun skje fra kjøper og/eller kjøpers bankforbindelse.
I det tilfelle kjøper har anledning til å gjøre tilvalg, vil det være selgers ansvar å sende til meglerforetaket en bekreftet liste som inneholder tilvalg og avtalt sum for dette. Tilvalg må være innbetalt til overtakelse. Det gjøres oppmerksom på at selger, mot sikkerhet etter bustadoppføringslova § 47, kan kreve at kjøperen betaler forskudd for tilvalg. Alternativt kan selgeren kreve at kjøperen stiller sikkerhet for selgerens krav på tilleggsvederlag. Videre gjøres det oppmerksom på at alle innbetalinger skal skje til meglerforetakets klientkonto, og ikke direkte til selger. Dersom endringsavtale inngås direkte med selgers underleverandører, anbefaler meglerforetaket at betaling for disse endringene finner sted etter overtakelse har funnet sted. Dersom kjøper velger å betale slik endringsbestilling tidligere, gjør meglerforetaket oppmerksom på at slik betaling vil kunne være usikret ved en eventuell konkurs.
Kjøper er innforstått med at tilfredsstillende finansieringsbevis for hele kjøpesummen skal forelegges meglerforetaket når avtale om kjøp inngås, jf. bustadoppføringslova § 46 andre ledd. Med tilfredsstillende finansieringsbevis menes prosjektets finansieringsbevis, eller finansieringsbevis som er godkjent av selger. Det skal fremgå av finansieringsbeviset at det reserverte beløpet ikke vil bli utbetalt til andre enn selger, med mindre forbrukeren har krav på erstatning, prisavslag eller heving. Det kan settes som vilkår i finansieringsbeviset at finansinstitusjon skal godkjenne utbetalingene, og at selgerens rett etter finansieringsbeviset ikke kan overdras til andre uten etter finansinstitusjonens samtykke. Finansieringsbevisets gyldighet må vare frem til overtakelse.
Kjøper aksepterer at disse opplysningene kan bli videreformidlet til selgers byggelånsbank.
Handelen er juridisk bindende for begge parter ved aksept. Dersom kjøper innen fristen ikke overholder sin forpliktelse med tilfredsstillende finansieringsbevis, er kjøper likevel bundet av avtalen, og selger vil kunne påberope avtalen som vesentlig misligholdt, og heve avtalen. Kjøper samtykker til at omkostninger knyttet til heving og dekningssalg i så fall dekkes av kjøper.
Oppgjør
Hele kjøpesummen sammen med omkostninger og eventuelle tilvalg skal innbetales til overtakelse, forutsatt at selger har stilt lovpålagt garanti etter bustadoppføringslova § 12. Samtlige beløp skal innbetales til meglerforetakets klientkonto. Innbetaling skal kun skje fra kjøper og/eller kjøpers bankforbindelse.
Før noen del av kjøpesum blir utbetalt selger må hjemmel til hytten være overført kjøper, jf. bustad
Salgsbetingelser
Ved salg til forbruker selges hytten iht. bustadoppføringslova.
Prosjektet retter seg mot forbrukere som ønsker å erverve bolig til eget bruk. Bustadoppføringslova kommer ikke til anvendelse der kjøper anses som profesjonell/investor. Dersom kjøper ikke er forbruker, kan det avtales at eiendommen likevel selges etter bustadoppføringslova. Dersom eiendommen er ferdigstilt ved budaksept reguleres handelen av avhendingslova (i slike tilfeller gjelder ny salgsoppgave).
Det forutsettes at hjemmelsdokument tinglyses på ny eier.
Avbestilling
Kjøper kan avbestille ytelsen eller deler av denne, jf. bustadoppføringslova §§ 52-54. Ved avbestilling før igangsettingstillatelse er innvilget påløper et avbestillingsgebyr på kr. 50.000,-. Ved avbestilling etter innvilgelse av igangsettingstillatelse påløper et avbestillingsgebyr på 10 % av total kontraktssum (inkl. mva.).
Bustadoppføringslova
Bustadoppføringslova av 13. juni 1997 nr. 43. Bustadoppføringslova kommer ikke til anvendelse der kjøper anses som profesjonell/investor. I slike tilfeller vil handelen i hovedsak reguleres av Lov om avhending av fast eiendom av 3. juli 1992 nr. 93. og ulovfestet entrepriserett.
Kjøpsbetingelser
Kjøpsbetingelsene regulerer betingelsene for kjøp av bolig. Avtale anses inngått når kjøper har levert meglerforetaket bud/skriftlig bindende bekreftelse på kjøp, og aksept er meddelt.
Akseptbrev vil da snarlig bli utstedt fra meglerforetaket. Avtalen inngås på bakgrunn av opplysninger i salgsoppgave med vedlegg og eventuelle forbehold i bud og kjøpsbetingelser fra selger.
Salgsoppgaven med tilhørende vedlegg forutsettes lest og akseptert av kjøper. Kjøper og selger vil senere inngå fullstendig kjøpekontrakt med endelige vedlegg. Kjøper aksepterer at detaljbestemmelser først kan bli avklart i kjøpekontrakt.
Inneholder salgsoppgave og kontraktsdokumenter bestemmelser som strider mot hverandre, gjelder yngre bestemmelser foran eldre, spesielle foran generelle, og bestemmelser utarbeidet særskilt for handelen, foran standardiserte bestemmelser.
Kjøper har selv ansvaret for å sette seg inn i salgsoppgave med vedlegg og annen dokumentasjon som kjøper har fått tilgang til. Dersom utfyllende/supplerende opplysninger er ønskelig eller noe er uklart, bes kjøper henvende seg til meglerforetaket før bindende avtale inngås. Kjøper har ingen rett til å reklamere på grunnlag av forhold som kjøper har blitt gjort oppmerksom på, eller som kjøper på tross av oppfordring har unnlatt å sette seg inn i.
Det gjøres oppmerksom på at illustrasjoner i salgsoppgave og på nett ikke er bindende for boligens detaljutforming slik som farger, materialer, innredninger, mv. Opplysninger gitt i salgsoppgaven kan fravikes dersom selger anser det nødvendig eller ønskelig, dog slik at endringene ikke skal ha innvirkning på den angitte standard. Det samme gjelder i forhold til situasjonsplanens og utomhusplanens angivelse av detaljer. Alle illustrasjoner, skisser, "møblerte" plantegninger m.m. er ment å danne et inntrykk av den ferdige boligen, og kan inneholde materiell og vise detaljer som ikke medfølger i handelen. Slike avvik kan ikke påberopes som mangel fra kjøpers side. Videre kan illustrasjonene være en kombinasjon av 3D-illustrasjoner og fotomontasje, hvor utsikt/beliggenhet etc. ikke nødvendigvis stemmer. Det gjøres derfor oppmerksom på at bebyggelse og trær på naboeiendommer ikke nødvendigvis er korrekt illustrert.
Dersom det er avvik mellom tegninger i salgs- og nettpresentasjon og leveransebeskrivelse og romskjema, er det leveransebeskrivelse og romskjema som gjelder og omfanget av leveransen er begrenset til denne. Prosjektets standard vil fremkomme av leveransebeskrivelsen, dette uavhengig av ev. uttrykk i prospekt og annonsering som "god standard" etc.
Endringer i lov eller forskrift eller nye offentligrettslige krav eller vedtak med hjemmel i lov eller forskrift som gjelder for selgerens ytelse, anses som kjøperens forhold og kostnad dersom selgeren ved avtaleinngåelsen ikke burde ha regnet med endringene. Herunder innbefattes endringer i offentlige myndigheters praktisering av lov- eller forskriftsverk som påfører selgeren uventede. Dersom de nevnte endringer medfører økte kostnader for selger vil dette medføre en tilsvarende økning i det avtalte vederlaget for kjøper. Selger skal uten ugrunnet opphold varsle kjøperen om endringene og de konsekvenser dette innebærer for kjøperen.
Dersom kjøper har overtatt, hvor overskjøting er forsinket, gjøres kjøper oppmerksom på hans bo- og eiertid (skatteloven) ikke opparbeides før skjøte er tinglyst (gjelder problemstilling rundt skattefrihet ved salg av boligen etter 1 år).
Kjøpers undersøkelsesplikt
Kjøper har selv ansvaret for å sette seg inn i salgsoppgave, reguleringsplaner, byggebeskrivelse og annen dokumentasjon som kjøper har fått tilgang til. Dersom utfyllende/supplerende opplysninger er ønskelig, bes kjøper henvende seg til meglerforetaket. Kjøper har ingen rett til å reklamere på grunnlag av forhold som kjøper er blitt gjort oppmerksom på, eller som kjøper på tross av oppfordring har unnlatt å sette seg inn i.
Kjøper oppfordres til å ta kontakt med meglerforetaket dersom noe er uklart, og det presiseres at det er viktig at slike avklaringer finner sted før bindende avtale om kjøp inngås.
Reklamasjon/krav om mangler før overtakelse
Dersom kjøper blir gjort oppmerksom på at det foreligger en mulig mangel før overtakelse, må det reklameres på dette. Mangelen må påberopes innen rimelig tid etter at kjøperen oppdaget eller burde ha oppdaget mangelen. Det gjøres oppmerksom på at det påhviler kjøper en plikt om snarlig varsling om reklamasjonskrav, regnet fra tidspunkt for når kjøper har blitt oppmerksom på mulig mangel - selv om overtakelse ikke har funnet sted. Sen varsling om eventuelle reklamasjoner/krav kan medføre bortfall av reklamasjonsrett, jf. foreldelse.
Reklamasjon etter overtakelse, retting av mangler
Dersom kjøper etter overtakelsen oppdager og vil gjøre gjeldende at det foreligger en mangel, må det reklameres skriftlig på dette. Mangelen må påberopes innen rimelig tid etter at kjøperen oppdaget eller burde ha oppdaget mangelen.
Forbruker må til enhver tid gi selger mulighet for utbedring. Dersom selger etter 14 dagers varsel hindres i å utføre utbedringsarbeidene innen normal arbeidstid (07.00 til 16.30), vil forbrukeren kunne miste sin rett til utbedring. Forbruker har ikke anledning til å sette bort utbedringsarbeidet til andre og kreve kostnadene dekket av selger, med mindre selger unnlater å rette mangler innen rimelig tid, og heller ikke har gjort dette etter at forbruker skriftlig har varslet, med 3 ukers varsel, om at arbeidet vil bli satt bort til andre.
Spesielle forhold i byggeperioden
Kjøper må være innforstått med og akseptere de ulemper som naturlig følger med under gjennomføring av byggeprosjektet, også etter innflytting har funnet sted. Dersom selger ferdigstiller boligene i ulike byggetrinn, og/eller fellesareal ikke er ferdigstilt til overtakelse, må kjøpere som flytter inn påregne en periode med byggearbeider, støv og noe anleggsstøy på dagtid. Dette omfatter også rett til å ha maskiner og utstyr stående på eiendommen/i området frem til arbeidene er ferdigstilt.
Kjøpere har ikke anledning til å besøke byggeplassen i byggeperioden uten avtale, og ved avtale kun i følge av representant fra selger. Dette på grunn av selgers ansvar og forsikring for bygg og personer som oppholder seg på anleggsplassen.
Forsinkelse kjøper
For den del av kjøpesummen som ikke måtte være betalt til meglerforetaket i rett tid, svarer kjøper lovens forsinkelsesrente til selger. Påløpte forsinkelsesrenter avregnes fra avtalt overtakelse/forfall til betaling finner sted. Denne bestemmelse gir ikke kjøper rett til å forlenge betalingsfristen utover de frister som er avtalt.
Ved vesentlig forsinkelse med å innbetale hele kjøpesummen og omkostningene, vil selger være berettiget til å kreve erstatning, heve kjøpet mm. (jf. buofl. kapittel VII). Partene er enige om at én måned anses som vesentlig mislighold.
Forsinkelser
Dersom oppgitt byggetid (inkludert ev. tidsforlengelse) overskrides, vil forsinkelse være å regne fra dette tidspunkt, med unntak som nevnt under.
Selger skal overholde frister som er avtalte for overtakelse, og skal legge opp til en fremdrift som er tilpasset kjøpers forventninger, jf. buofl. § 10.
Selger forplikter seg til å informere om eventuelle forsinkelser som avviker fra ovennevnte tidsplan, så snart han er kjent med at det kan oppstå forsinkelser.
Selger har rett til tilleggsfrister uten kompensasjon til kjøper etter reglene i buofl. § 11.
Forhold som gjelder er:
- Dersom kjøper krever endringer eller tilleggsarbeid som forsinker arbeidet/overtakelse.
- Dersom kjøper, eller noen kjøper svarer for, ikke overholder kontraktsavtale, eller at arbeidet blir forsinket pga. noe kjøperen er ansvarlig for.
- Dersom det oppstår forsinkelser som er utenfor selger/entreprenørs kontroll, og at det ikke var rimelig å forvente at selger/entreprenør kunne ha regnet med denne forsinkelsen på avtaletidspunktet,
eller at selger/ entreprenør ikke har mulighet til å unngå forsinkelsen (f.eks. force majeure, streik, ekstreme klimatiske forhold o.l.).
Overtakelsen er å regne som forsinket, dersom overtakelsen ikke kan gjennomføres til den tid kjøperen har rett til å kreve etter buofl. § 10 og § 11 som nevnt over. Det samme gjelder dersom arbeidet, eller deler av arbeidet ikke er fullført eller hjemmelsoverføring ikke skjer til den tid kjøperen har rett til å kreve.
Dersom overtakelsen er forsinket, kan kjøperen kreve:
- Dagmulkt.
- Heve avtalen.
- Kreve erstatning.
- Tilbakeholde deler av kjøpesum.
Vilkår for de ulike alternativene fremgår av buofl. §§ 18, 19, 20 og 22.
Kjøper anmodes til å sette seg inn i disse bestemmelsene, og rådføre seg med meglerforetaket dersom noe skulle være uklart. Kjøper oppfordres spesielt om å tilpasse dette forhold ved eventuelt salg av nåværende bolig, da bygningsforsikringen til selger ikke dekker eventuell erstatningsbolig for kjøper ved slik forsinkelse.
Finansiering
Vi har løpende kontakt med finansinstitusjoner som kan tilby lån med konkurransedyktige betingelser. Hvis ønskelig formidler vi gjerne kontakt.
Budregler
Boligene selges til fast pris. Bindende kjøpsbekreftelse/budskjema inngås hos megler. Selger står fritt til å akseptere eller avslå ethvert bud, herunder bestemme om de vil akseptere salg til selskaper samt om de vil akseptere salg av flere leiligheter til samme kjøper. Merk at eierseksjonsloven ikke gir anledning til at mer enn to seksjoner eies av en og samme person.
Etasje
. etasje.
Endringsarbeider
Endringsarbeid kan kun kreves for en verdi av inntil 15 % av kjøpesummen.Eventuelle tilvalg faktureres direkte fra entreprenør. Det vil utarbeides egen tilvalgsliste med priser. Muligheter for tilvalg vil være avhengig av hvor langt man er kommet i byggeprosessen
Lov om hvitvasking
Eiendomsmeglingsforetak plikter etter lov om hvitvasking å gjennomføre kontrollhandlinger knyttet til kjøper og selgers identitet og forhold knyttet til gjennomføringen av handelen. Dette omfatter også opplysninger om kundeforholdets formål og tilsikrede art. For kjøper må kontroll av legitimasjon skje senest ved inngåelse av kontrakt. Signering med bankID er regnet som gyldig legitimasjonskontroll. Ved oppdrag hvor juridiske personer (selskap) er part må eiendomsmegler også gjennomføre kontroll av hvilke fysiske personer som kontrollerer selskapet (reelle rettighetshavere). Dersom megler ikke klarer å gjennomføre pålagte kundetiltak må megler avvise kunden og oppdraget. Megler har også plikt å melde forhold som ikke er avklart og fremstår som mistenkelige til Økokrim. Megler kan også i enkelte tilfeller har plikt til å stanse gjennomføringen av handelen.
Eiendomsmegler plikter å gjennomføre ytterligere undersøkelser knyttet til handelen basert på kjøpers egenkapital eller andre forhold knyttet til kjøper. Kjøper oppfordres til å innbetale den delen av kjøpesummen som er egenkapital i en overføring fra egen bankkonto i norsk bank.
Adresse og matrikkel
Alveberget 179, 4818, Færvik, Gnr. 218 bnr. 157 i Arendal kommune
Eier
Mesterhus Byggpartnere AS
Oppdragsnummer
40-23-0154
Meglers vederlag
Det gjøres oppmerksom på at Meglerhuset & Partners eller Husbankens standard kjøpekontrakter blir benyttet i handelen, dersom det ikke avtales noe annet før handel har kommet i stand. Meglers vederlag betales av selger. Avtalt vederlag er provisjon inkl. mva. av salgssummen. Tilretteleggingsgebyr kr. 8.900,- Markedsføringspakke kr. 17.900,- Oppgjørsgebyr kr. 4.900,-. Meglerfirmaet har ikke krav på provisjon dersom handel ikke er kommet i stand innen oppdragstidens utløp. Dersom eiendommen ikke skulle bli solgt i oppdragstiden, betales det for salgsforberedelser, markedsføringspakke og alle avtalte utlegg.
Behandling av personopplysninger
Det gjøres oppmerksom på at foretaket behandler personopplysninger og all behandling skjer iht. personvernregelverket. Meglerforetaket behandler kun personopplysninger som er nødvendig for å gjennomføre oppdraget. Det gjøres oppmerksom på at vi deler dine personopplysninger med offentlige myndigheter i den utstrekning det er nødvendig og med virksomheter som tilbyr tjenester for gjennomføring av oppdraget. For mer informasjon se personvernerklæring på vår hjemmeside.
Salgsoppgaven beskriver vesentlig og lovpålagt informasjon om eiendommen
Se komplett salgsoppgaveNyttige lenker
Nærområdet
Meglerhuset & Partners
Annonseinformasjon
| FINN-kode | 313523947 |
|---|---|
| Sist endret | 16. nov. 2024 01:25 |
| Referanse | 40230154 |
Annonsene kan være mangelfulle i forhold til lovpålagt opplysningsplikt. Før bindende avtale inngås oppfordres interessenter til å innhente komplett informasjon fra meglerforetaket, selger eller utleier.






























