Bildegalleri

C35
Prosjektert Ålhytte på tomt 8 Markeli hyttefelt, Sigdal
- Omkostninger
- 50 000 kr
- Totalpris
- 3 480 000 kr
Nøkkelinfo
- Beliggenhet
- På fjellet
- Boligtype
- Hytte
- Eieform
- Eier (Selveier)
- P-plasser
- 2
- Tomteareal
- 1 000 m² (eiet)
- Bruttoareal
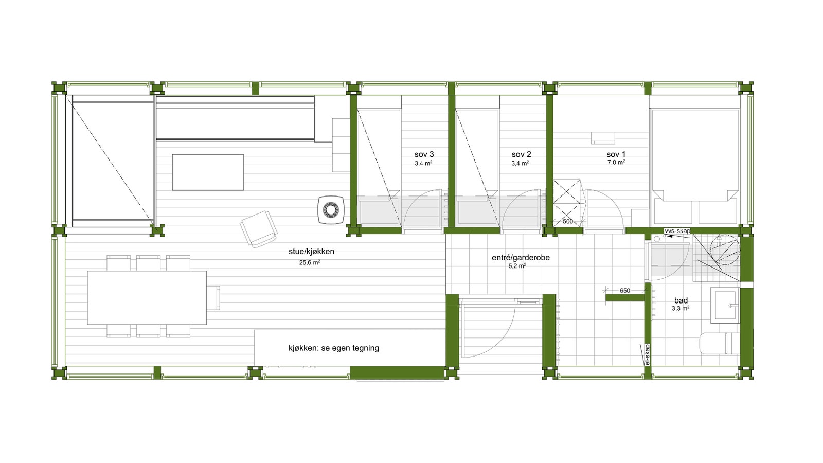
- 59 m²
- Soverom
- 3
- Sengeplasser
- 6
- Meter over havet
- 860
Fasiliteter
Visning
Ta kontakt for å avtale visning.Om eiendommen
Beliggenhet
På Eggedalsfjellet midt mellom Tempelseter og Haglebu finner du Skareseterområdet og Markeli hyttefelt. Tomtene ligger vestvendt og solrikt til med Holmevassnatten og Drotninggutua bak seg. Flott utsikt.
Flotte turstier og velpreparerte skiløyper i umiddelbar nærhet, med direkte inngang til indrefileen av Eggedalsfjellet for gode natur- og turopplevelser. Kort skitur til Vaffelhytta ved Fiskeløysingen.
Kort kjøretid fra Oslo og omegn, gir mer tid på hytta.
Generelt
Tomt, grunnarbeid og fundamentering:
Tomt 8 har helårsvei, vann, avløp og strøm og leveres med parkeringsplass for 2 biler. Hytta er fundamentert på støpt plate.
Hytteleveransen:
Prosjektert Ålhytte med 3 soverom, 6 sengeplasser, åpen stue/kjøkkenløsning, garderobe, bad med dusjhjørne.
Innredninger og interiør inngår ikke i dette prospektet, men komplett Ålhytteinteriør leveres hvis ønskelig.
Strøm, vann og avløp:
El-installasjoner inkluderer hovedinntak, hovedtavle, alle nødvendige kurser og jordsikringer, samt 2 varmekabler.
VVS leveres komplett med rør og avløp, dusj, toalett, servant og armatur.
Prisantydning er basert på indeks pr. oktober 2024.
Adkomst/Tomteforhold
Salgsoppgave
Det er ikke utarbeidet komplett salgsoppgave. Ta kontakt med selger for nærmere informasjon.
Innhold
Standard
Ta kontakt med megler for komplett informasjon
Nyttige lenker
Nærområdet
Ålhytta
Annonsene kan være mangelfulle i forhold til lovpålagt opplysningsplikt. Før bindende avtale inngås oppfordres interessenter til å innhente komplett informasjon fra meglerforetaket, selger eller utleier.















































