Bildegalleri

Bildet er illustrasjon av hyttemodellen Nordkapp, som er iht. reg.bestemmelsene.
På tide å realisere hyttedrømmen? Flotte tomter ledig i Skipphaugen Hyttefelt
- Omkostninger
- 74 758 kr
- Totalpris
- 2 994 758 kr
Nøkkelinfo
- Beliggenhet
- Ved sjøen
- Boligtype
- Hytte
- Eieform
- Eier (Selveier)
- Bruksareal
- 65 m²
- Tomteareal
- 1 000 m²
- Grunnflate
- 70 m²
- Byggeår
- 2023
- Soverom
- 3
- Sengeplasser
- 6
Fasiliteter
Visning
Ta kontakt for å avtale visning.Om eiendommen
Beliggenhet
Velkommen til en av mørekystens vakreste perler!
I samarbeid med Nilsgaarden AS har vi gleden av å presentere Skipphaugen Hyttefelt som består av 15 solrike tomter, alle med fantastisk beliggenhet og flott utsikt mot Smøla, Hitra- og Trondheimsleia.
Skipphaugen Hyttefelt ligger på Skardsøya, ca 2 timer og 20 min fra Trondheim og 1,5 time fra Kristiansund.
Skardsøya er med sin beliggenhet og fasiliteter et yndet utfartssted og populært hytteområde. Her finner du høye fjell, lange fjorder og en skjærgård som er verdt å utforske både til lands og til vanns.
Tomtene er solrike og ligger åpent til mot fjell-landskap i sør-vest og havet i vest og nord. Tomtene ligger i høyde fra 20m til 40m over havet, og en avstand fra sjøen fra ca 200 til 450m noe som gjør at alle tomtene har flott utsikt over Trondheimsleia, Hitra og Smøla. De øverste tomtene har videre utsyn sør mot Lesundet og sør-vest mot Tustna-stabbene.
Omkringliggende områder har ingen ruvende fjell som skjermer for sola. På solsnu 21. juni står sola opp ca kl 03, og er oppe til den stuper i havet kl 23.43.
Er du av den aktive typen er mulighetene nærmest uendelig: Kajakkpadling, dykking, snorkling, bading, fisking i sjø- og ferskvann, båtliv, fjellturer og skogsturer.
Og er du av den rolige typen, er det nydelig rekreasjon å bare sitte på terrassen å nyte utsikten fra hytta og nærområdet.
Aure sentrum er kommunens administrative sentrum, og innehar de aller viktigste funksjonene som matbutikker, byggvare, kafe, drivstoff mm. På Skardsøya er også Vihals handelssted, med kolonial, frisør, blomsterforretning, drivstoff mm.
Generelt
Tomtene er naturtomter, kun berørt av arbeider med fremføring av infrastruktur.
Maksimalt bebygd areal BYA er 20% av tomtestørrelsen. Dvs hytte fra 178m2 – til 300m2.
Tomtekjøper står fritt til å velge hytteleverandør og hyttemodell innenfor gjeldende reguleringsplan.
For å gjøre det lettere å realisere hyttedrømmen, har grunneier etablert samarbeid med Ranahytta.
4 av tomtene må bebygges med hytte fra Ranahytta.
Det er avtalt med lokal utleier av båtplass, Hans Olav Åsebø, at det garanteres båtplass i Lesundet.
Lesundet er en helårs, isfri havn der båtene kan ligge fortøyd til flytebrygge ute året rundt om ønskelig. Utleier krever ikke innskudd og har en rimelig årlig leie på ca kr 4000,- (2023).
Dette er en av flere muligheter som tomtekjøper kan benytte seg av, men ingen plikt.
EV avtale om båtplass avtales med utleier – uavhengig av tomtesalg. Avstanden fra hyttefeltet til flytebryggen er ca 5 min med bil.
Gridsvåg båt og motor er en båtforretning som selger båter, motorer, utstyr og service. Gridsvåg båt og motor ligger på Grisvågøya, over Lesundbrua og ca 5 min biltur. Her tilbys båthotell, og salg av alt du trenger for kort eller lang tur på sjøen, samt service/ vedlikehold.
Veg, vann, avløp, strøm, fiber:
Alle tomtene har fremlagt veg, vann, avløp, strøm samt fiber inn til tomtegrensen.
Tilkomst til hyttefeltet, via privat veg (Åkvikvegen):
Lesundvegen er offentlig veg. Åkvikvegen er en privat veg og er tilkomstveg frem til Skipphaugen hyttefelt. Åkvikvegen driftes av grunneierne gjennom et lokalt valgt veglag, Tomtekjøpere forplikter seg til å ta del i veglagets forpliktelser ved en tilknytningsavgift, samt en årlig kostnad. (Se oversikt Omkostninger). Tilknytningsavgiften skal betales av tomtekjøper ved kjøp av tomt. Årsavgift gjelder fra samme tidspunkt.
Tomteoversikt
Tomtenr. Størrelse Pris
T1 1150 NOK 800.000,-
T2 890 NOK 780.000,-
T3 1380 NOK 850.000,-
T4 1060 NOK 850.000,-
T5 1150 NOK 800.000,-
T6 1550 NOK 840.000,-
T7 990 NOK 750.000,-
T8 1390 NOK 775.000,-
T9 1050 NOK 775.000,-
T10 1120 NOK 750.000,-
T11 1410 NOK 750.000,-
T12 1210 NOK 650.000,-
T13 1200 NOK 780.000,-
T14 990 NOK 800.000,-
T15 Solgt
*1: Areal angitt basert på reguleringsplan.
*2: Reguleringsbestemmelsene gir mulighet for en utnyttelsesgrad på 20% BYA.
Kostnader i forbindelse med tomtekjøp: Totalt kr. kr 63 124,-
Kostnadene er fordelt slik:
Oppmåling kr 21 216
Fradeling tomt kr 1 851
Tinglysingsgebyr elektronisk kr 540
Matrikkelbrev kr 182
Dokumentavgift 2,5% kr 16 250*
Tinglysingsgebyr skjøte kr 585
Tilknytning Åkvikvegen kr 18 500
Tilknytning fiber, Neas kr 4 000
Tilknytning strøm, Mellom AS: Inkludert i tomtepris
*Dokumentavgift er beregnet for tomt T12, kr 650 000,-
Kostnader i forbindelse med byggesak: kr. 11 634,-
Kostnadene er fordelt slik:
Tilknytning VA, kr 7 000
Byggesøknad, kr 4 634
Alle priser er pr 15.06.2023 og endres etter enhver tid gjeldende satser.
Det tas forbehold om at det kan tilkomme andre avgifter.
Adkomst/Tomteforhold
For veibeskrivelse: Bruk gjerne Google Maps-link i denne finn.no-annonsen og legg inn ditt avreisested.
Innhold
I Ranahytta er vi opptatt av at hytten din blir akkurat slik du ønsker den.
Vi har et bredt utvalg hyttemodeller og fasadeutrykk du kan velge mellom, og enten du liker funkis, moderne eller tradisjonell stil, og stor eller liten hytte, har du mye å velge i hos oss.
Dersom du finner en hytte du liker veldig godt, men som likevel ikke er akkurat slik du ønsker, strekker vi oss langt for å tilpasse hytten slik at den blir perfekt for deg.
Prosessen blir som følger:
Gå inn på hjemmesiden vår www.ranahytta.no, og finn den hytten som er nærmest drømmehytten din.
Last ned plantegningen, og tegn inn ønskede endringer.
Send tegningen til mw@ranahytta.no.
Tekniske tegnere vil tegne om hytten etter dine skisser, og vi gir deg et konkret pristilbud ut ifra den nye tegningen.
Vi har god kjennskap til hvilke hytter som passer for reguleringsbestemmelsene i Skipphaugen Hyttefelt, og vil gi deg tilbakemelding dersom hytten du velger ikke passer.
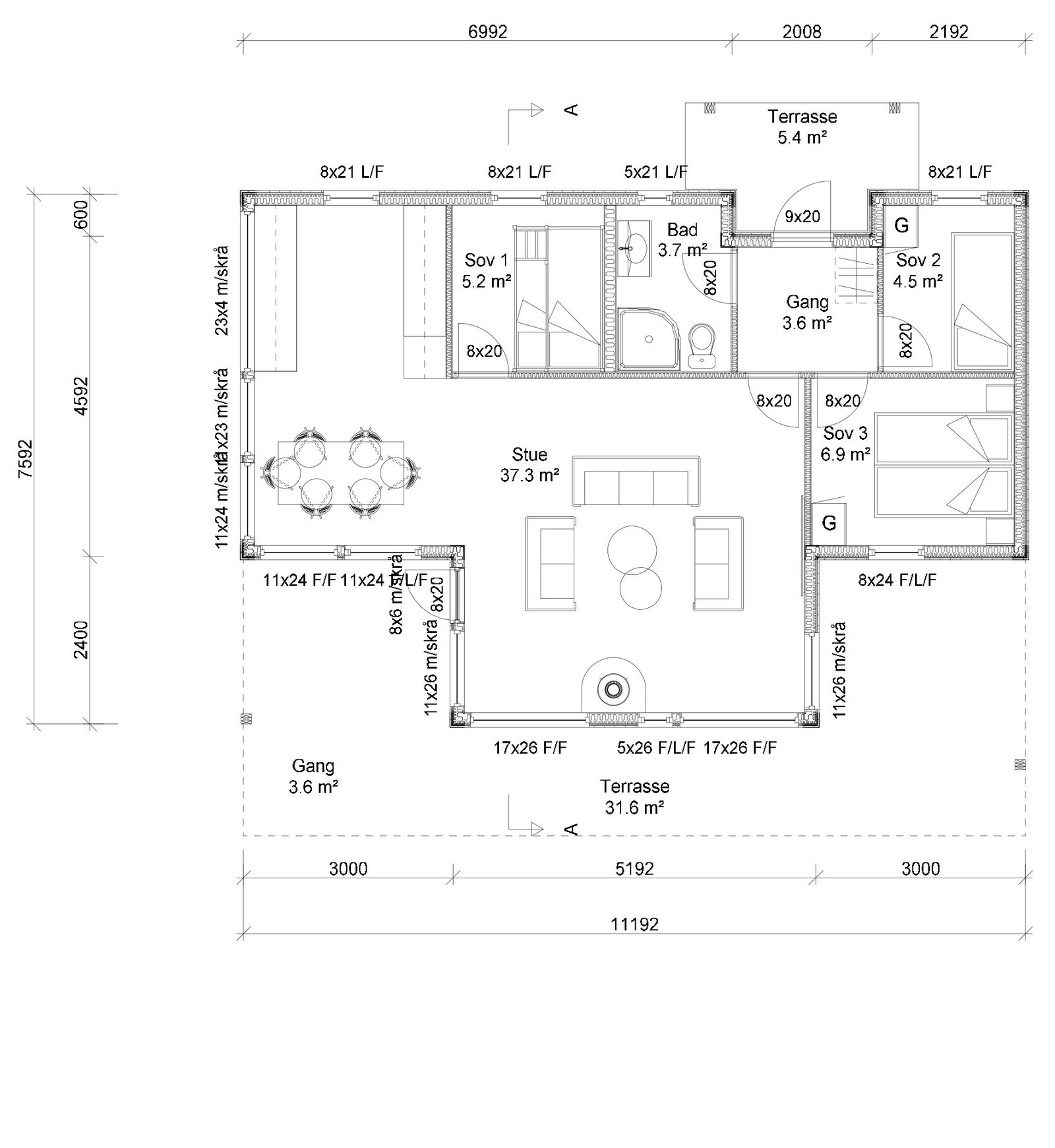
For å vise priseksempel på hytte som vil passe godt inn i Skipphaugen Hyttefelt, har vi tatt utgangspunkt i Panorana 15 og Svartisen.
Begge hyttene har store glassflater som gir godt med lys inn og god utsikt til naturen utenfor. Hyttene har svært god planløsning med blant annet 3 soverom, kjøkken, bad, entre og ei romslig stue. Kort sagt: Her får du mye hytte for pengene.
Pris på nøkkelferdig Panorana 15 satt opp i Skipphaugen Hyttefelt (priser pr 10.07.2023):
Kr 2 270 000,- inkl. mva.
Pris er inkludert reisekostnader for tømrere samt frakt.
Pris er ekskl. fundament og grunnarbeid på tomt.
Tomt, omkostninger og kostnader i forbindelse med byggesak kommer i tillegg.
Pris på nøkkelferdig Svartisen satt opp i Skipphaugen Hyttefelt (priser pr 10.07.2023):
Kr 2 450 000,- inkl. mva.
Pris er inkludert reisekostnader for tømrere samt frakt.
Pris er ekskl. fundament og grunnarbeid på tomt.
Tomt, omkostninger og kostnader i forbindelse med byggesak kommer i tillegg.
Priseksemplene er basert på standard utførelse av nøkkelferdig hytte med interiørpakke A.
Valg av ulike tilvalgsprodukter som interiørpakker, endring av størrelse på hytta, endring av vindusløsninger mm vil påvirke prisene.
Dette er interiørpakke A:
Utvendig standard:
Isola takshingel skrå, 22 x 170 ubehandlet bordkledning på yttervegg.
Innvendig standard:
Panel på vegg og i himling: Ubehandlet furu sprekkpanel.
Vegger på bad: Cracked Cement eller Denver White baderomsplater.
Gulv: 3- stavs parkett i hovedplan og ubehandlet furugulv på hems.
Listverk og foringer: Ubehandlet furu.
Vindu, ytterdør og terrassedør: Hvitmalt NCS S 0502-Y
Innvendig dører og karmer: Ubehandlet furu.
Pris i finn-annonse er for Panorana 15 på tomt T12, inkl. alle omkostninger.
Pris er ekskl. opparbeiding av tomt og fundament.
Standard
Ta kontakt med megler for komplett informasjon
Nyttige lenker
Nærområdet
Ranahytta AS
Annonseinformasjon
| FINN-kode | 310276895 |
|---|---|
| Sist endret | 30. apr. 2024 11:44 |
| Referanse | Skipphaugen Hyttefelt |
Annonsene kan være mangelfulle i forhold til lovpålagt opplysningsplikt. Før bindende avtale inngås oppfordres interessenter til å innhente komplett informasjon fra meglerforetaket, selger eller utleier.



























