Bildegalleri

Gautefallheia - Stor familiehytte med fin utsikt - naturskjønne omgivelser
- Omkostninger
- 100 000 kr
- Totalpris
- 4 290 000 kr
- Eiendomsskatt
- 4 000 kr per år
Nøkkelinfo
- Beliggenhet
- På fjellet
- Boligtype
- Hytte
- Eieform
- Eier (Selveier)
- P-plasser
- 2
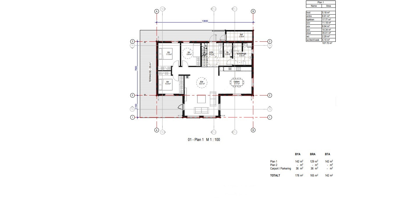
- Bruksareal
- 129 m²
- Tomteareal
- 9 831 m²
- Bruttoareal
- 142 m²
- Byggeår
- 2023
- Soverom
- 5
- Sengeplasser
- 9
- Meter over havet
- 450
- Energimerking
- A - Mørkegrønn
Fasiliteter
Visning
Ta kontakt for å avtale visning.Om eiendommen
Beliggenhet
Hytten ligger på Gautefallheia, i et rolig familiestrøk ved heivannet Bjønntjønn. Her er det flotte tur- og opplevelsesmuligheter hele året. Flotte sykkelstier, fine bademuligheter om sommeren og bærplukking om høsten. Om vinteren ligger hyttefeltet i et ski-eldorado, med 5 minutter til Gautefall Alpinsenter. Her er det 6 skiheiser og et flott biatlonanlegg. Ski in-skiout, til langrenn, med løype 100 meter fra hytta. Løypen er tilknyttet 60 km løypenett med flott preparerte løyper. Muligheter for båt på innsjøen Nisser. Kort vei til handlesenteret i Treungen.
Generelt
Hytten påbegynnes i august og er planlagt levert nøkkelferdig/innflyttingsklar før jul. Inntil september kan kjøper bestille mindre endringer i fargevalg etc.
Adkomst/Tomteforhold
Innhold
Hytten er stor og innbydende med god planløsning – her kan storfamilien samles med venner, både til helgeturer og ferier. Hyttens arkitektur byr dessuten på gode, skjermede uterom. Allerede i entreen får man en smakebit på hyttas fine løsninger, hvor blikket naturlig trekkes mot stuas utbygg i front, med sjenerøse vindusflater som slipper naturen og dagslyset inn.
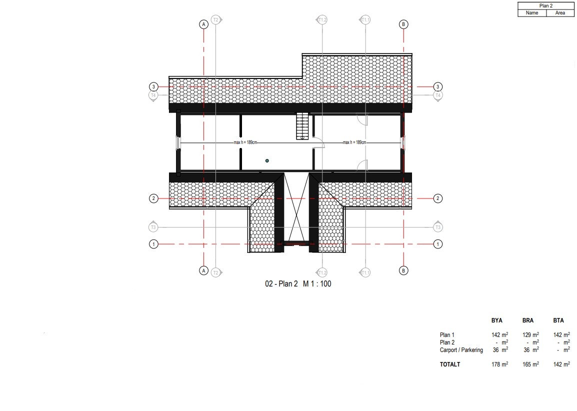
I tillegg til to rom og tv-stue på hemsen, er det tre soverom i første etasje. Videre har hytta både bad og wc/vaskerom, og en isolert utebod ved inngangspartiet, perfekt for turutstyr.
Som nøkkelferdig leveres hytten komplett med kjøkkeninnredning og hvitevarer, peisovn med stålpipe i stua, flislagte vegger og gulv på bad, samt gulvvarme i entré wc/vaskerom og bad.
Innvendig standard
1. etasje: Entré/gang, wc/vaskerom, bad/wc, 3 soverom, stue/kjøkken.
Hems: Loftstue og 2 loftsrom.
Annet: Utebod/teknisk rom.
Entré og gang: Allerede i entreen får man et inntrykk av hyttas romslige utforming. Det er direkte inngang til wc/vaskerom, trapp opp til hemsen og åpning mot stuas utbygg i front som har store vinduer.
Nøkkelferdig leveres entreen/gangen med gulvfliser, gulvvarme og downlights, samt ubehandlet trapp som standard.
Stue/kjøkken: Stua og kjøkkenet danner sammen et åpent, stort allrom, hvor alle kan samles til måltider og sofahygge. Allrommet har panelkledde vegger og tak, og gulv i 25 mm heltre furu. Stua har utbygg med åpen himling og store vindusflater som gir gode lysforhold og en herlig romfølelse. Fra denne delen av rommet er det også utgang til en stor markterrasse – perfekt for grilling og avslapping i solveggen.
Videre leveres hytta nøkkelferdig med moderne peisovn fra Nordpeis i stua, type Duo 5 DV, plassert slik at flammebildet kan nytes fra både spisebordet og sofaen.
Nøkkelferdig leveres også allrommet med kjøkkeninnredning, med mye oppbevaringsplass, fine arbeidsflater og integrerte hvitevarer. Her er det god plass til at flere kan lage mat sammen. Hvitevarene består av koketopp, stekeovn, oppvaskmaskin og kjøl/frys.
Loftstue/hems: Hemsen byr på to hemsrom og en ekstra stueløsning – et kjærkomment ekstrarom for tv-titting, lek og avslapning. Å ha muligheten til å trekke seg tilbake kan være ideelt, både for voksne og barn. Hemsen har gulv i 25 mm heltre furu, paneloverflater, tv-uttak og downlights.
Bad/wc/vaskerom: Badet er romslig, og leveres nøkkelferdig med fliser på både vegger og gulv, samt downlights i himling og varmekabler i gulv. Rommet utstyres med dusjhjørne, vegghengt toalett og servant med skap, speil og lys.
Wc-rommet har også god størrelse og leveres nøkkelferdig med flislagt gulv, gulvvarme, samt panel på vegger og i tak. Rommet utstyres med vegghengt toalett, servant og opplegg
Soverom: I første etasje ligger hyttens tre soverom. Hovedsoverommet har plass til dobbeltseng og ekstra luksus med tilliggende garderoberom/bod. I de andre soverommene er det plass til familiekøyer.
Her er det soveplasser nok til storfamilien med venner. Alle soverommene har plass til klesskap eller kommode, og det er oppbevaringsplass i kott på hemsen og i uteboden ved inngangspartiet.
Oppvarming
Hytten leveres nøkkelferdig med gulvvarme i entré, wc/vaskerom og bad, samt panelovner i enkelte andre rom. I tillegg leveres hytta med vedfyrt peisovn, type Duo 5 DV i stue/kjøkken.
Teknisk
- Skjult elanlegg etter NEK400 normen.
- Utvendig inntaksskap.
- Innvendig sikringsskap.
- Kontaktpunkt til TV i første etasje og ett hemsrom.
- 200 liters varmtvannsbereder.
- Avtrekk fra bad, wc-rom, utebod/teknisk rom og kjøkkenventilator.
- Downlights i entré/gang, bad og hems.
- Utelamper.
- Utekran.
Standard
Ta kontakt med megler for komplett informasjon
Nærområdet
BJØNNTJØNN FAMILIEPARK AS
Annonsene kan være mangelfulle i forhold til lovpålagt opplysningsplikt. Før bindende avtale inngås oppfordres interessenter til å innhente komplett informasjon fra meglerforetaket, selger eller utleier.






