Bildegalleri

Velkommen til Morketjønnsvegen 105! Presentert av Øystein Lie Holen v/ DNB Eiendom
Fåvang
Flott fritidsbolig med idyllisk og usjenert beliggenhet nær Skotten | 2 soverom | Svært gode lys- og solforhold | Strøm
Prisantydning1 300 000 kr
- Omkostninger
- 33 590 kr
- Totalpris
- 1 333 590 kr
- Kommunale avg.
- 3 852 kr per år
- Eiendomsskatt
- 2 162 kr per år
Nøkkelinfo
- Beliggenhet
- På fjellet
- Boligtype
- Hytte
- Eieform
- Eier (Selveier)
- Internt bruksareal
- 46 m² (BRA-i)
- Bruksareal
- 53 m²
- Eksternt bruksareal
- 7 m² (BRA-e)
- Tomteareal
- 2 796 m² (festet)
- Festeavgift
- 2 370 kr
- Byggeår
- 1974
- Soverom
- 2
- Rom
- 3
- Energimerking
- F - Oransje
Fasiliteter
Balkong/Terrasse
Bilvei frem
Garasje/P-plass
Peis/Ildsted
Rolig
Utsikt
Bademulighet
Fiskemulighet
Innlagt strøm
Turterreng
Visning
Velkommen til visning! Meld deg på ved å trykke "visningspåmelding" i våre boligannonser. Ta gjerne kontakt med megler i forkant av visningen om du har spørsmål.
VisningspåmeldingOm boligen
Velkommen til Morketjønnsvegen 105!
Hytten ligger fint til ca.880 meter over havet i et mindre hyttefelt like ved Skotten. Eiendommen kan skilte med svært gode lys- og solforhold og en flott utsikt mot vakkert naturlandskap. Her har en fantastiske turmuligheter rett utenfor døra, like flott sommer som vinter. Det er ca. 200 meter til preparerte skiløyper til blant annet Skotten og Øksendalen og ca. 600 meter til Morketjønnet. Sommerstid er det turmuligheter både til fots og på sykkel. En har flere fiskemuligheter i området, samt mulighet for småviltjakt.
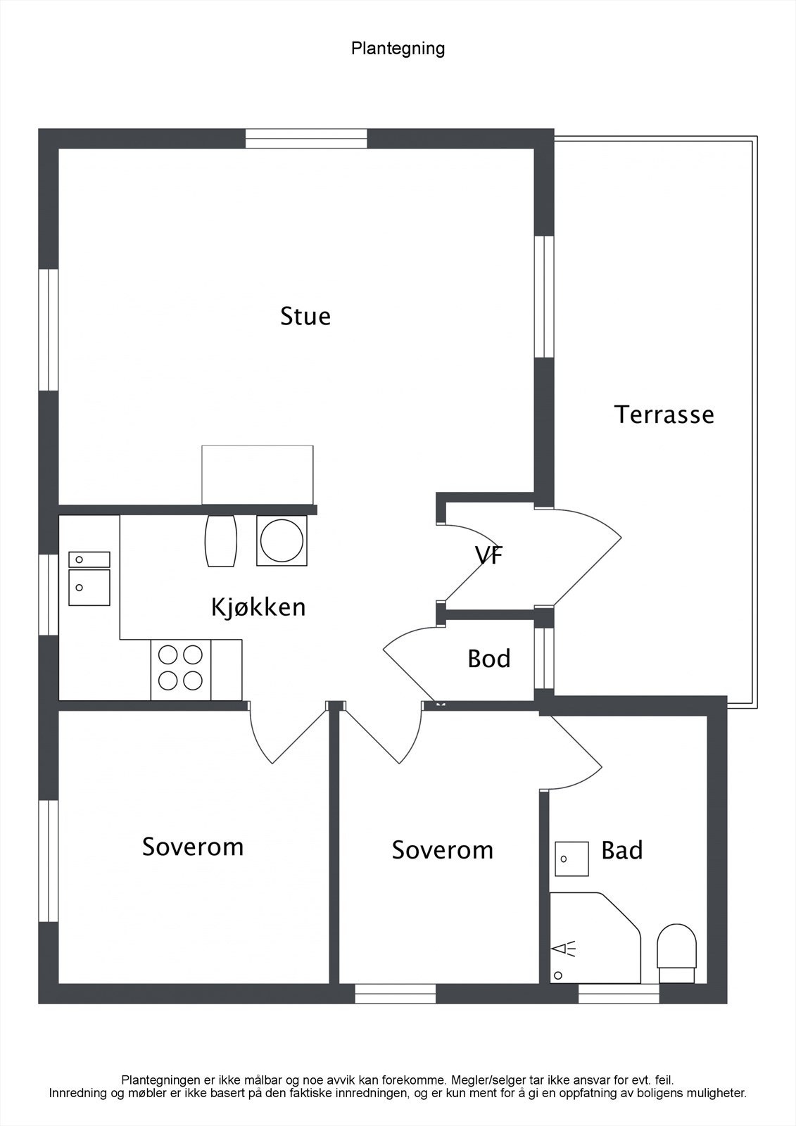
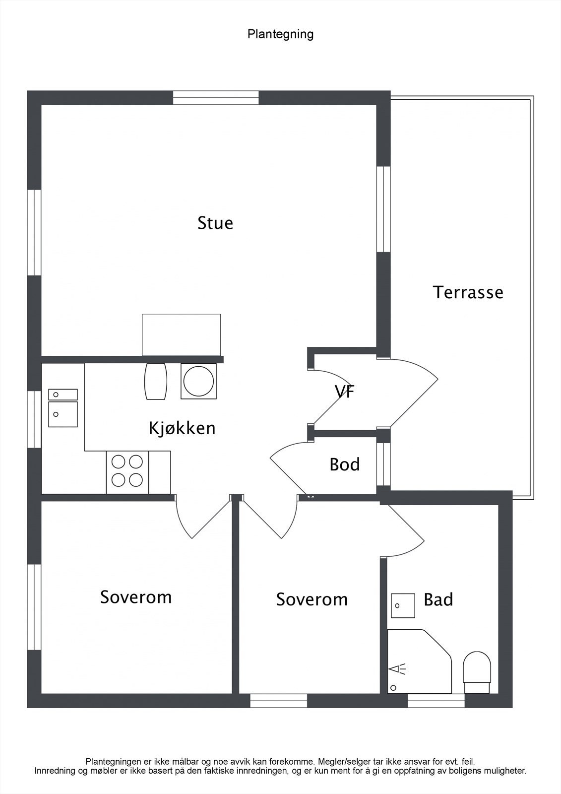
Hytten fremstår som lun og koselig. Her har en 4 sengeplasser fordelt på to soverom, stue med sitte- og spisegruppe, funksjonelt kjøkken og pent bad med gulvvarme. Bør sees!
Helårsvei og parkering like ved hytten.
Velkommen på visning!
Hytten ligger fint til ca.880 meter over havet i et mindre hyttefelt like ved Skotten. Eiendommen kan skilte med svært gode lys- og solforhold og en flott utsikt mot vakkert naturlandskap. Her har en fantastiske turmuligheter rett utenfor døra, like flott sommer som vinter. Det er ca. 200 meter til preparerte skiløyper til blant annet Skotten og Øksendalen og ca. 600 meter til Morketjønnet. Sommerstid er det turmuligheter både til fots og på sykkel. En har flere fiskemuligheter i området, samt mulighet for småviltjakt.
Hytten fremstår som lun og koselig. Her har en 4 sengeplasser fordelt på to soverom, stue med sitte- og spisegruppe, funksjonelt kjøkken og pent bad med gulvvarme. Bør sees!
Helårsvei og parkering like ved hytten.
Velkommen på visning!
NB: Knappen for å vise hele beskrivelsen har kun en visuell effekt.
NB: Knappen for å vise hele beskrivelsen har kun en visuell effekt.
Salgsoppgaven beskriver vesentlig og lovpålagt informasjon om eiendommen
Se komplett salgsoppgaveNyttige lenker
Nærområdet
Annonseinformasjon
| FINN-kode | 308711280 |
|---|---|
| Sist endret | 20. jan. 2026 08:50 |
| Referanse | 524230051 |
Annonsene kan være mangelfulle i forhold til lovpålagt opplysningsplikt. Før bindende avtale inngås oppfordres interessenter til å innhente komplett informasjon fra meglerforetaket, selger eller utleier.

































