Bildegalleri

3D bilde av Solheim Premium
Vegglifjell - Høybulie Prosjektert Saltdalshytta av populære Solheim Premium på stor selveiertomt
- Omkostninger
- 42 550 kr
- Totalpris
- 5 781 550 kr
Nøkkelinfo
- Beliggenhet
- På fjellet
- Boligtype
- Hytte
- Bruksareal
- 112 m²
- Tomteareal
- 1 392 m² (eiet)
- Grunnflate
- 122 m²
- Soverom
- 4
- Meter over havet
- 850
Fasiliteter
Visning
Ta kontakt for å avtale visning.Om eiendommen
Beliggenhet
Generelt
Høybulie, Vegglifjell
Hyttemodellen – Solheim Premium
Våre hyttemodeller i Aurora-serien gir deg følelsen av å være i ett med naturen med store vindusflater som skaper en luftig og lys atmosfære på hytta. Her får du gulv-til-tak -vinduer og små kvadratiske vinduer som skaper overraskende lyseffekter og spennende fasader. I Aurora-serien kan man også velge hytte med hems for å utnytte arealet maksimalt med et ekstra soverom eller oppholdsrom.
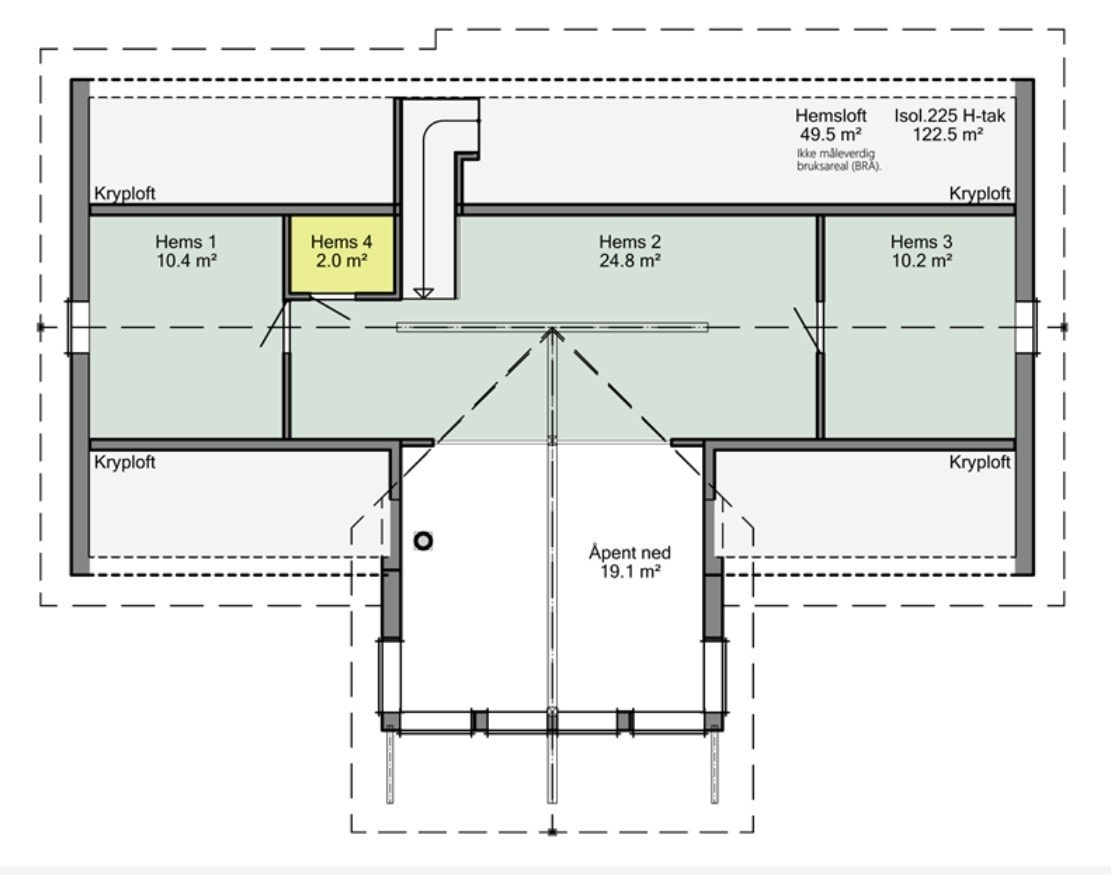
Solheim er Aurora-utgaven av vår populære Jubileumsmodell vi lanserte i 2019, med et oppgradert og moderne eksteriør. Her er stua er plassert i vinkelen, med god takhøyde og store vindusflater. To gode soverom og et flott kjøkken er plassert i hver sin fløy. Planløsningen inneholder to boder som etter behov kan oppgraderes til WC, sauna eller vaskerom. Adkomsten er lagt til hyttas bakside, og her er det også en romslig utebod. På loftet er det to disponible/soverom, og en loftsstue med et galleri mot stua og utsikten.
Vinkelen med de takhøye vinduene lar hytta fange solens gang gjennom hele dagen og ut i de små timer. Derfor var det naturlig for oss å gi den navnet Solheim.
Innhold
Prisen er en Nøkkelferdig hytte av typen Solheim Premium, inkludert betydelig oppgradert med tilvalg, Tomt.
Grave- og betongarbeider er estimert til kr: 650.000,- ink. Mva.
Grave og utomhus: Adkomstvei med to biloppstillingsplasser leveres med ferdig gruset overfalte, tomta blir planert med stedlige masser.
Betong og ringmur isoleres etter gjeldene forskrifter.
Beliggenhet
Velkommen til Vegglifjell
Vegglifjell er en sørøstlig utløper av naturperlen Hardangervidda og et av høyfjellsområdene som ligger nærmest det sentrale Østlandet. På Vegglifjell leves friluftslivet året rundt. Med vel 90 km preparerte skiløyper, familievennlig slalåm på høyfjellet, actionfylt kiting, toppturer, fiskevann, turstier og sykkelløyper, er mulighetene mange for å få en variert fritid ute i naturen.
Her på Høybulie, med panoramautsikt mot fjellheimen, kan din nye hytte ta form. Høybulie hyttefelt har en av Vegglifjells råeste beliggenheter, på ca. 800 moh. med meget gode solforhold. Tomtene ligger nært på skiløyper og variert turterreng. Med ca. to timers kjøreavstand fra Oslo eller Vestfold-byene, vil du ha kort vei til flotte naturopplevelser året rundt.
BYGGE HYTTE PÅ HØYBULIE?
- Moderne panorama-hyttefelt på Vegglifjell
- Når utsikt og solforhold teller!
- Selveiertomter, med VA og fiber
- Utbygges på lag med naturen
- Hytteservice med brøyting
- Fellesområde for aktiviteter – med gapahuk, skileik m.m.
- Kun to timers kjøretid fra Oslo
Skisenter
Skisenteret i Killingdalen har to preparerte nedfarter, en på hver side av t-krokheisen. I tillegg er det store muligheter for løssnøkjøring utenom de preparerte nedfartene. I den nordre nedfarten er det snøkanoner. Her bygges det opp terrengpark med bigjump, kuler og rails. Toppstasjonen ligger på 1111 moh. – med fantastisk utsikt over høyfjellet.
I påsken 2021 åpnet skisenteret Norges høyestliggende akebakke, med en løype på 1,1 km og ca. 150 meter høydeforskjell. Akingen foregår med spesialkjelker som trekkes opp i skitrekket. Kjelkene leies i skisenteret.
Skistugu er åpen i alle helger og skoleferier i skisesongen.
Kort kjøreavstand til hytta:
Ønsker du å bygge hytte på fjellet og vil ha kort reisevei? Da kan Høybulie være stedet for deg! Fra Oslo og Vestfold-byene er kjøretiden ca. to timer, via Kongsberg og opp Numedal, langs fylkesvei 40 mot Geilo. Når du nærmer deg kan du handle det mest nødvendige i Veggli sentrum, før du setter kursen opp på fjellet – velkommen!
Generelt
Hyttemodellen – Solheim Premium – Nøkkelferdig
Innhold
LEVERANSEBESKRIVELSE AV SOLHEIM PREMIUM
Prisen i denne annonsen er en Nøkkelferdig prosjektert hytte inkludert tomt, grave – og betongarbeider, betydelig oppgradert med innvendig behandlet panel,
Opparbeidelse av tomt og plate på mark må det innhentes pris når plassering av hytta er bestemt.
Prisen er en totalpris av Nøkkelferdig hytte og inkluderer følgende:
- Nøkkelferdig hytte
- Oppgradert hytte, tilvalgspakke Morgenstund fra Saltdalshytta
- Tomt
- Estimert pris på Grunn – og betongarbeider (650.000, - ink. Mva.)
LEVERANSEBESKRIVELSE:
GRUNN- OG UTOMHUS ARBEIDER:
Adkomst fra vei mot biloppstillingsplass leveres med gruset overflate. Tomten er en rå tomt og deler av denne som blir berørt av grunnarbeidene planeres med stedlige masser. Opparbeidet biloppstillingsplass i hht. prospekt. Betongplate og ringmur isoleres etter gjeldende forskrifter.
INNVENDIGE OVERFLATER:
- Gulv 1. etg: Parkett 14x138, 1-Stav Eik, Sand, Plank
- Gulv 2. etg: Parkett 14x138, 1-stav Eik, Sand, Plank
- Panel vegger og tak innvendig: Moelven sprekkpanel 13x120, Skigardsgrå beis, Liggende på vegg.
- Listverk: Moelven Tidløs, samme farge som vegg.
- Foringer til vindu/ytterdør: Samme farge som vegg
- Rekkverk på hems/loft: Returgelender i glass, Grå.
- Vindfang gulv: Flislagt i typen Pietra Limestone 30x60cm med varmekabler, Grå Sort.
BADEROM:
- Vegg: Baderomsplate Fibo trespo Marcato, Dark Soot
- Listverk: Innvendig Antrasitt farget list og fug
- Gulv: Flislagt i typen Pietra Limestone 30x60cm med varmekabler, Grå Sort
- Dusjnisje: Flislagt i typen Pietra Limestone 5x5cm, Grå Sort
BOD:
- Parkett som resten av etasjen
TRAPPEROM/BOD:
- Vindfang gulv: Flislagt i typen Pietra Limestone 30x60cm uten varmekabler, Grå Sort.
INNVENDIG TRAPP:
- Farge: NCS:S7500-N, Grå.
PIPE:
- Stålpipe. Pakkepris inkl. startseksjon og takstige.
VEDOVN/PEIS:
- Type: Jøtul F371 Advance, Sort lakk, peisovn og gulvplate.
INNVENDIGE VEGGER:
- Leveres med 68mm isolert bindingsverk som paneles på begge sider. Teknisk vegg utføres med 148mm bindingsverk.
- Bærevegger utføres med 98mm bindingsverk.
- Baderomvegger leveres med baderompanel.
INNVENDIGE DØRER:
- Line 1-speils, farge NCS:S7500-N Grå. Dempelist på karm til innvendige dører. Sorte dørvridere.
YTTERVEGGER OG TAKTEKKE:
- Yttervegger med stående Låvepanel med valgfri grunning, lys brun for beis eller NCS S2500-N for dekkbeis/maling. Isolert med 200mm Glava (150mm+50mm).
- Vinduer, ytterdører og altandører leveres ferdig overflatebehandlet etter Tek 17. Farge grå NCS S7500-N.
- Torvtak.
- Takrenner, nedløp, snøfangere, soilhette og pipebeslag med eventuell feieplattform leveres i sort lakkert stål.
YTTERDØR OG BODDØR:
- Gråmalt, Farge NCS S7500-N
VINDUER OG ALTANDØRER:
- Gråmalt, Farge NCS S7500-N
FLISLEGGING:
- Avretting og legging av flis på gulv i vindfang, bod, vaskerom og vaskerom
- Fliser på bad på vegg og gulv.
ELANLEGG:
- Elko+ stikk og lysbrytere, Svart, Pakkepris oppgradering lavtbyggende stikkere og brytere.
- ” Ring hytta varm” med Sikom GSM
- EL-bil lader, ferdig montert utvendig
- El-anlegg med omfang i henhold til forskrift NEK 400.
- Det leveres 2 utvendige lysarmaturer og 2 utvendig stikk.
- Flislagte gulv leveres med varmekabler (utenom kald boden).
RØRLEGGERARBEIDER:
- Vegghengte toalett
- Sanitæranlegg med omfang som på plantegninger.
- Det leveres utvendig frostsikker kran.
ALTAN og TRAM:
- Altan og tram som vist på tegning er ikke inkludert.
KJØKKEN:
- I leveransen følger verdikort på kr. 130 000,- inkl. montering levert av Sigdal Kjøkken AS. (Endringer i sluttsum korrigeres gjennom endringskontrakt).
- stk Standard blandebatteri
BADEROMSINNREDNING OG TOALETTER:
- 2 stk vegghengt toalett
- Innredning med servant, standard 60cm.
- 2 stk Standard blandebatteri
- 2 stk Standard dusjvegg (buet eller rett)
- 2 stk Standard veggengt garnityr i dusj
ØVRIG:
- Sorte ventiler i vegger for lufting
- Nøkkelboks med deksel, Grå
- Soilhette til lufting av kloakk
BYGGESØKNAD:
- Standard byggesøknaden er Inkludert i leveransen.
FØLGENDE ER IKKE INKLUDERT I KJØPESUMMEN:
- Illustrasjoner i dette prospektet kan inneholde tilvalg som ikke er med i standard leveranse. Eksempelvis tørrmur på fasade
- Belysning utover det som er beskrevet over er ikke inkludert.
- Byggetegninger er kun til illustrasjon og kan inneholde møbler, benker, garderobeskap, senger osv. og plassering av disse. Dette er ikke inkludert i leveransen.
- Kostnader forbundet med kjøpers finansiering, takster og tinglysningsgebyrer.
- Stiplede innredninger på tegninger.
- Bygge strøm
- Avfallshåndtering
- Sprenging av fjell.
- Møblering
REGULERINGSPLANER:
Fullstendig reguleringsplan sendes over ved forespørsel.
KJØP AV TOMT OG HYTTE
Eier: Vegglifjell utvikling As
kjøpekontrakt utarbeides av innleid advokat og overtagelse skjer mellom eier og kjøper
Som en del av det samlede vederlaget skal kjøper i tillegg til kjøpesummen betale følgende omkostninger:
Dokumentavgiften utgjør 2,5 % av tomtens salgsverdi på tinglysingstidspunktet for den enkelte tomt.
Det tas forbehold om endring i gebyrer, tomteverdien og dokumentavgift på tinglysingstidspunktet.
Tinglysingsgebyr for skjøte kr. 525,-
Tinglysingsgebyr og attestgebyr for hvert pantedokument kr. 525,-
Gebyr for pantattest kr. 206,-
Dokumentavgift beregnes av andel tomteverdi. Det gjøres oppmerksom på at det er tomtens verdi på tinglysingstidspunktet som legges til grunn for avgiftsberegningen. Opplyst dokumentavgift er beregnet ut fra dagens antatte tomteverdi. Justering av dokumentavgiften kan således forekomme, og det er kjøper som ev. er ansvarlig for mellomværende. Det tas forbehold om endringer i offentlige avgifter og gebyrer.
ÅRLIGE KOSTNADER:
- Renovasjonsgebyr: 1.515,- per år.
- Vegavgift: 1.300,- pr år
- Vegglifjell Friluftsmark: 1.400,- pr år
- Vann og avløp: 7.928,- pr år
FORBEHOLD:
Entreprenør (Saltdalshytta BVT AS) forbeholder seg retten til forandringer av planer, detaljer og beskrivelser. Som følge av detaljprosjektering og/eller offentlige krav kan det forekomme endringer i prosjektbeskrivelse og kontrakttegninger. Slike endringer skal ikke forringe kvaliteten av hytten.
KONTRAKT- OG TILVALGSMØTE
Etter at byggestart er besluttet for prosjektet vil kjøper bli kontaktet av prosjektleder for SE og invitert til et møte for å gjennomgå- og signere kontrakt for hytte. I forkant av møtet vil kjøper få tilsendt tilvalglister som viser hvilke valg som kan gjøres. SH-BVT har rett til å ta seg betalt for utarbeidelser av pristilbud, tegninger mv. jf. Bustadsoppføringslova §44.
TILVALGSFRIST
Tilvalg for den innvendige leveransen fra Saltdalshytta gjøres av kunde sammen med prosjektleder. Tilvalg vedr. kjøkken, VVS leveranse og elektroleveranse gjøres direkte med respektive fag. Det er 6 uker tilvalgfrist på tilvalg til kjøkken, VVS leveranse og elektroleveranse etter kontraktsignering. Inngås kjøpsavtale etter at kjøkken, VVS leveranse og elektroleveranse har startet sine arbeider vil tilvalg ikke være til stede. Dersom tilvalgordrer ikke blir godkjent og signert av kjøper i løpet av 6 uker etter signert kontrakt vil hytten bli levert i henhold til SH-BVT sin standard leveranse.
TILVALGSBESTILLING
Hvis kjøper ikke ønsker tilvalg eller ikke ser behov for å komme til tilvalgmøte, vil hytten bli levert i henhold til standard leveranse. Hvis kjøper ønsker tilvalg, vil de aktuelle tilvalgene bli inkludert i bestillingen med tilhørende priskonsekvens. Alle priser er inklusive MVA og viser merkostnaden for å oppgradere fra standard leveranse til det aktuelle tilvalgproduktet. Montering er normalt inkludert i prisen hvis annet ikke er opplyst (bla. for tilvalg kjøkken og øvrige innredninger). Tilvalg faktureres ved oppstart tekniske fag.
KONTROLL AV BESTILLING
Det er svært viktig at kjøper ser nøye igjennom bestillingen og sjekker at den er i overenstemmelse med ønsker og avtaler som er inngått. Overenskomster som ikke finnes i bestillingen, har ikke gyldighet. Avtalene er bindende og kan ikke endres etter at den er signert og returnert. Skulle det være avvik eller uklarheter i bestillingen må kjøper umiddelbart ta kontakt med SH-BVT sin representant og avklare forholdene. Bestillingen er underlag for leveransen SH-BVT mottar fra leverandøren (Saltdalshytta). Produktene er spesialbestilt til prosjektet og kan ikke avbestilles eller returneres. Dersom hytten avbestilles, skal bestilte endrings- og tilleggsarbeider betales i sin helhet.
Adkomst/Tomteforhold
Innhold
Standard
Ta kontakt med megler for komplett informasjon
Nyttige lenker
Nærområdet
Saltdalshytta BVT AS
Annonseinformasjon
| FINN-kode | 308253996 |
|---|---|
| Sist endret | 10. des. 2024 09:39 |
| Referanse | xHøybulietomt179SolheimPX |
Annonsene kan være mangelfulle i forhold til lovpålagt opplysningsplikt. Før bindende avtale inngås oppfordres interessenter til å innhente komplett informasjon fra meglerforetaket, selger eller utleier.

























