Bildegalleri

Høy kvalitet i minimalistist og detaljert innpakning
Inaktiv
Hytte m/utsikt over risør sin skjærgård
NY PRIS! Arkitekttegnet perle med havutsikt og båtplass - gangsti til svaberg og strender!
Prisantydning6 500 000 kr
- Omkostninger
- 179 542 kr
- Totalpris
- 6 679 542 kr
- Formuesverdi
- 500 000 kr
Nøkkelinfo
- Beliggenhet
- Ved sjøen
- Boligtype
- Hytte
- Eieform
- Eier (Selveier)
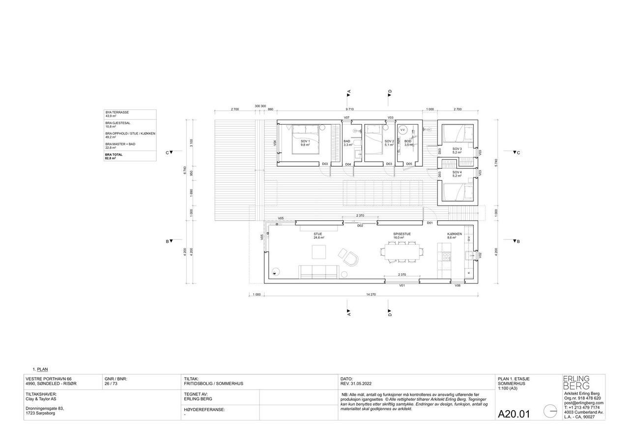
- Primærrom
- 74 m²
- Bruksareal
- 81 m²
- Tomteareal
- 1 169 m² (eiet)
- Byggeår
- 2023
- Soverom
- 4
- Rom
- 6
- Energimerking
- D - Mørkegrønn
- Overtakelse
- Overtakelse etter nærmere avtale med selger. Dersom annet ikke avtales, sendes skjøte/hjemmelsdokument for tinglysing i etterkant av overtakelse.
Fasiliteter
Innlagt vann
Balkong/Terrasse
Barnevennlig
Bilvei frem
Båtplass
Garasje/P-plass
Golfbane
Peis/Ildsted
Rolig
Utsikt
Bademulighet
Fiskemulighet
Innlagt strøm
Offentlig vann/kloakk
Turterreng
Visning
Ta kontakt for å avtale visning.Husk å lese komplett salgsoppgave før visning. Bestill komplett, utskriftsvennlig salgsoppgave.
VisningspåmeldingOm boligen
I en skråning over uberørt terreng svever den unike fritidsboligen på søyler hvor den rammer inn en uendelig panoramautsikt syd-vest mot Skagerrak og Danmark neste. Fritidsboligen er utført i trekonstruksjon med vekt på unik detaljering og et renskåret, moderne utrykk som danner samspill med de naturlige omgivelsene.
Eksteriøret er utført i behandlet gran av ypperste kvalitet, beskyttet med miljøriktig impregnering for minimalt vedlikehold. Alle hjørner og overganger er utført list-fritt med et minimalistisk uttrykk og håndverk av høy kvalitet etter arkitektens tegninger. Interiøret omfavnes av malt (såpe-hvit), liggende trepanel av gran, med list-frie overganger som gir et lyst og harmonisk uttrykk.
Eksteriøret er utført i behandlet gran av ypperste kvalitet, beskyttet med miljøriktig impregnering for minimalt vedlikehold. Alle hjørner og overganger er utført list-fritt med et minimalistisk uttrykk og håndverk av høy kvalitet etter arkitektens tegninger. Interiøret omfavnes av malt (såpe-hvit), liggende trepanel av gran, med list-frie overganger som gir et lyst og harmonisk uttrykk.
NB: Knappen for å vise hele beskrivelsen har kun en visuell effekt.
NB: Knappen for å vise hele beskrivelsen har kun en visuell effekt.
Salgsoppgaven beskriver vesentlig og lovpålagt informasjon om eiendommen
Se komplett salgsoppgaveNyttige lenker
Nærområdet
Aktiv Frogner
Annonseinformasjon
| FINN-kode | 308251814 |
|---|---|
| Sist endret | 07. nov. 2023 10:51 |
| Referanse | 1007230081 |
Annonsene kan være mangelfulle i forhold til lovpålagt opplysningsplikt. Før bindende avtale inngås oppfordres interessenter til å innhente komplett informasjon fra meglerforetaket, selger eller utleier.






























