Bildegalleri

Prosjektert Ålhytte på tomt 12 Rupemyr, Sigdal
- Omkostninger
- 45 000 kr
- Totalpris
- 3 831 000 kr
Nøkkelinfo
- Beliggenhet
- På fjellet
- Boligtype
- Hytte
- Eieform
- Eier (Selveier)
- P-plasser
- 2
- Tomt
- Eiet
- Bruttoareal
- 59 m²
- Soverom
- 3
- Sengeplasser
- 7
- Meter over havet
- 900
Fasiliteter
Visning
Om eiendommen
Beliggenhet
Prøvebo hytte i dette området:
https://www.aalhytta.no/provebohyttene/rupemyr
I ytterkanten av Tempelseter, øverst i dalsiden ovenfor Eggedal, finner du Rupemyr hytteområde. Tomtene ligger solrikt til med panoramautsikt, med Gaustatoppen og Knuten på Kongsberg i det fjerne.
Flotte turstier og velpreparerte skiløyper i umiddelbar nærhet, for de gode natur og turopplevelsene. Kort kjøretid fra Oslo og omegn, gir mer tid på hytta.
Området
Rupemyr er et godt utgangspunkt for den friluftinteresserte med umiddelbar nærhet til fantastisk turterreng. Det er en rekke flotte toppturer man kan gå ved å følge flere av stiene i området, Høgevarde, Gråfjell og Drotninggsgutunatten. Skiløypene ved hyttefeltet strekker seg mot Norefjell, Høgevarde og Haglebu, en stopp for gode vafler på Fiskeløysingen midt inne i fjellet er også et turmål for mange. Eller en fisketur i de krystallklare fjellvannene, er man riktig heldig kan man støte på en flokk villrein.
Alpinsentrene på Norefjell og Haglebu er begge litt over 30 minuters kjøretur unna, i tillegg er det et mindre skitrekk på Tempelseter, her finner man også kafe.
Avstander:
- 14 mil til Oslo
- 10 mil til Drammen
- 16 mil til Tønsberg
- 7,4 mil til Hønefoss
Generelt
Hytteleveransen:
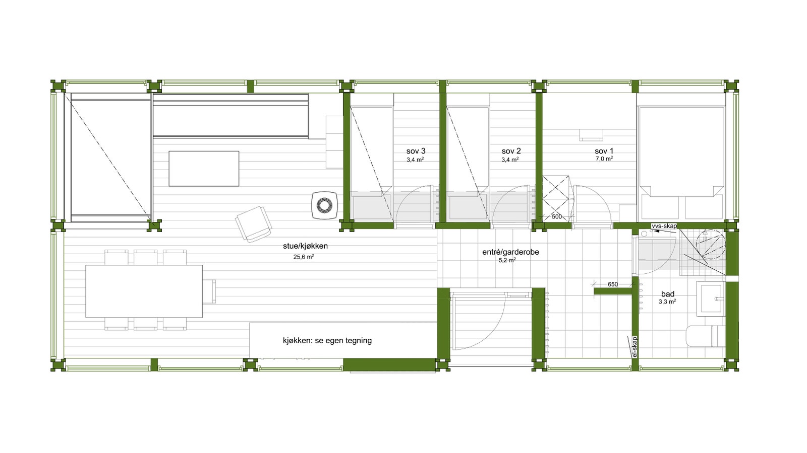
Prosjektert Ålhytte med 3 soverom, 7 sengeplasser, stue med dagseng, kjøkkenløsning, garderobe, bad med dusjnisje, vaskerom med toalett. Hytta har utvendig bod.
Innredninger og interiør inngår ikke i dette prospektet, men komplett Ålhytteinteriør leveres hvis ønskelig.
Tilsvarende hytte har vi som prøvebo hytte:
https://www.aalhytta.no/provebohyttene/sorbolfjell-77
Strøm, vann og avløp:
El-installasjoner inkluderer hovedinntak, hovedtavle, alle nødvendige kurser og jordsikringer, samt 2 varmekabler.
VVS leveres komplett med rør og avløp, dusj, toalett, servant og armatur.
Tomt, grunnarbeid og fundamentering:
Tomt 12 er i overkant av 1000 m2 og har helårsvei, kommunalt vann og avløp, strøm og leveres med parkeringsplass for 2 biler. Hytta er fundamentert på støpt plate.
Prisantydning er basert på indeks pr. desember 2025.
Se hytter/tomter og les mer på våre hjemmeside, eller ring Sondre for en hyggelig prat!
https://tomter.aalhytta.no/omrade/tempelseter/
Adkomst/Tomteforhold
Salgsoppgave
Det er ikke utarbeidet komplett salgsoppgave. Ta kontakt med selger for nærmere informasjon.
Innhold
Interiør
Ålhytteinteriøret oppsto i skjæringspunktet mellom plassutnyttelse og estetikk. Tegnet og utviklet for å utnytte plassen optimalt, samtidig som man ivaretar hyttas rene linjer. Her er ingenting overlatt til tilfeldighetene.
Sitteplasser, enten det er faste sofabenker eller løse stoler, gir siktlinjer i tråd med vinduenes format og plassering. Skuffer under sengene sørger for nødvendig lagringsplass.
Ålhytta kjøkken
Tegnet og utviklet for å utnytte plassen optimalt. Kan leveres med ulike overflatebehandlinger.
Ålhytta stue
Ålhytteinteriøret er tegnet og utviklet for å utnytte plassen optimalt. Sitteplasser enten det er faste sofabenker eller løse stoler, gir siktlinjer i tråd med vinduenes format og plassering.
Soverommene
I Ålhytta har du alle muligheter for å få en god natt søvn. Sengene er tegnet og utviklet for å utnytte plassen optimalt. Trenger du soveplass til gjestene kan en praktisk nisjeseng være løsninger. Andre løsninger er familiekøye, køyeseng, veggfast dobbeltseng med skuffer eller vanlig dobbeltseng. Vi nevner også Kube hyllene som er perfekte nattbord.
Små detaljer og små justeringer gir smarte løsninger.
Standard
Hvorfor Ålhytta?
Ålhytta produseres på Ål i Halllingdal. Interiøret til Ålhytta er norskprodusert.
Ålhyttas stramme arkitektur, slanke hyttekropp og lave mønehøyde gir en dempet hytte. Ålhytter skriker ikke etter oppmerksomhet, men oppsummerer: Hvorfor bygge stort når man kan bygge smart? . Et redusert behov for areal og høyde gir en hytte som tar hensyn til naturen vi bygger i.
Og akkurat det er vel poenget? Vi reiser på hytta for å komme nærmere naturen, ikke distansere oss fra den.
Systugu
I tillegg har Ålhytta en egen systue, Systugu, som produserer alt av madrasser, seilduksgardiner, puter til stoler, sofa og krakk til Ålhytta.
Les mer om Systugu på www.aalsystugu.no
Ålhytta ble definert som moderne arkitektur da den kom i 1966 og står trygt plassert på samme sted i dag, 60 år senere.
Ta kontakt med megler for komplett informasjon
Nyttige lenker
Nærområdet
Ålhytta
Annonsene kan være mangelfulle i forhold til lovpålagt opplysningsplikt. Før bindende avtale inngås oppfordres interessenter til å innhente komplett informasjon fra meglerforetaket, selger eller utleier.























