Bildegalleri

Havutsikt fra feltet
Sørlandsidyll i Risør stor hytte på solrik tomt
- Omkostninger
- 123 500 kr
- Totalpris
- 5 568 500 kr
Nøkkelinfo
- Beliggenhet
- Ved sjøen
- Boligtype
- Hytte
- Eieform
- Eier (Selveier)
- P-plasser
- 3
- Tomteareal
- 1 000 m² (eiet)
- Bruttoareal
- 130 m²
- Byggeår
- 2023
- Soverom
- 4
- Meter over havet
- 30
Fasiliteter
Visning
Ta kontakt for å avtale visning.Om eiendommen
Beliggenhet
Tomt 21 er solgt!!!! tomt nr 16 kan bli din!
HAVBLIKK EIENDOMSINVEST AS har gleden av å tilby denne hytten på solrik utsiktstomt på Øysang/Gjernes i Risør kommune.
Tomtene ligger vest for hyttefeltet Vestre Porthavn, og har felles avkjøring fra Rv 351.
Beliggenhet ca. 150 fra havet (Skagerak) så utsikten er nydelig.
Tomten er fra ca. 1000 m², og selges med komplett med ferdig hytte på 1 plan 130m² BRA vei, vann, avløp og strøm innlagt. Strømmen er prosjektert for lading av El-bil (opsjon), Jacuzzi eller lignende.
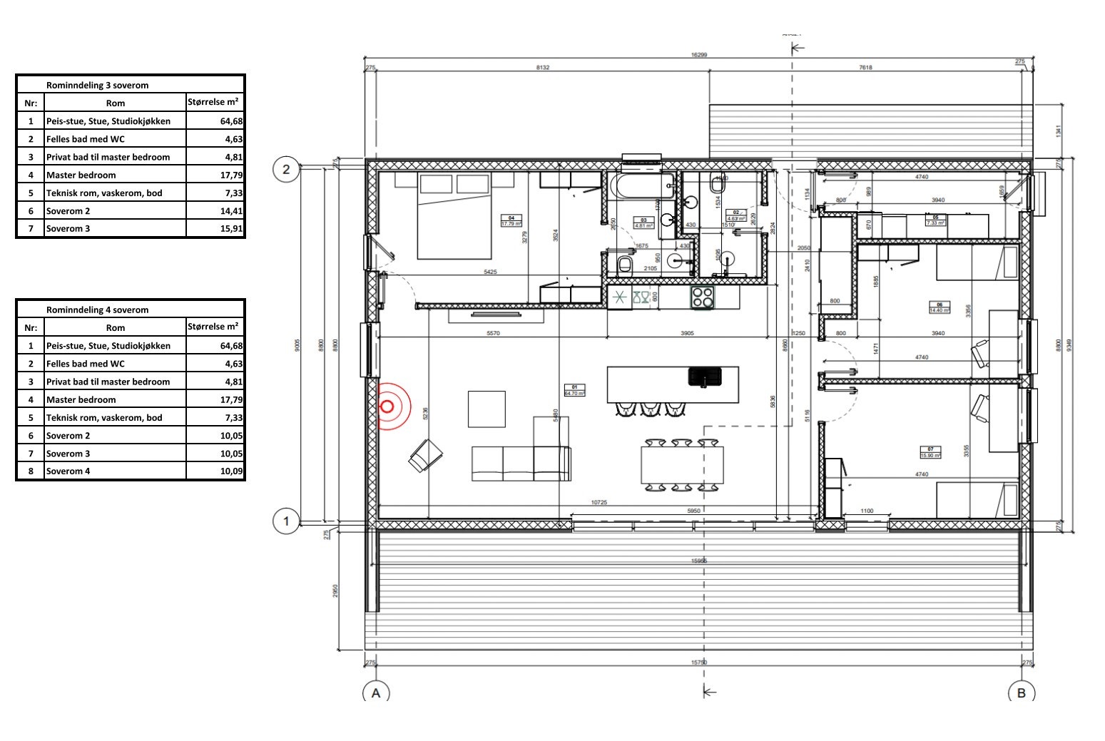
Havblikk hytte: Hytten er på 1 plan 130m² BRA, 3 eller 4 soverom (valgfritt) vann, avløp og strøm innlagt. Strømmen er prosjektert for lading av El-bil (opsjon ferdig montert), Jacuzzi eller lignende.
Det er mulig å få montert luft til vann varmepumpe og vannbåren varme i hele hytten for oppvarming slik at den kan brukes kostnadseffektivt hele året.
Det kan leies båtplass i Vrangsund Båthavn eller i Øysangkilen. Det er bilvei og gang/sykkelsti til båthavnene fra tomtene.
Nærområdet er ypperlig for alle. Enten du bare vil nyte utsikten fra hytta. Kvaliteten på området er så flott at Kronprinsparet bygger ny hytte på flatholmen i 2023 (Øy rett utenfor hytteområdet). Friluftslivet og mangfoldet er stort og det er en flott skjærgård for late dager i sola eller lystring av krabber om natten.
Det er mange bademuligheter fra svaberg og strender i sjøen, til bading fra berg og strender i ett av de mange ferskvann og tjenn i nærområdet.
Ca. 3 km fra tomtene kan man sette ut kano/kajakk i Skarvann eller Leivann, så kan man padle tvers over halvøya mellom Risør og Kragerø (med litt enkel bæring.)
Skarvann og Leivann er veldig gode fiske vann, ørret på 500-600g er vanlig.
For å besøke trehusbyen Risør er det ca 5-10 min med båt, eller 2,5 km til den flotte fergen Mf Øisang(fyller 71 i år) som går t/r Risør. Fergen kjører også innom Lille Danmark som er en perle av en badeplass.
I Risør er det mange trivelige butikker, samt gode spise og drikke muligheter.
Eller så kan man ta en gåtur til Jegertunet Hotell, der kan man spise/drikke, spille tennis eller bade i utebasseng.
Lokal butikken Westgaard Landhandel, er bare 10 min unna med bil. Når du er på butikken, er det bare 5 min ut til Portør.
Kragerø resort Spa & Golfpark med 18 hulls bane er bare 15 min kjøretur unna. Anlegget er en del av et stort resort anlegg med balløkke, tennisbaner, svømmebassenger og et stort SPA-hotell.
Det går ferge til Kragerø fra Stabbestad.
Pris på tomt 21 med ferdig hytte fra 4 940 000,- + omkostniger. (DENNE ER SOLGT)
Størrelse på tomter er ca. 1000m²
Pris på tomt 16 med ferdig hytte fra 5 440 000,- + omkostniger. (Flott hjørnetomt)
Størrelse på tomt er ca. 1000m²
Generelt
Delvis opparbeidet tomt med vei, vann, avløp og strøm innlagt.
Parkering på egen tomt.
Eiendommen vil bli skilt ut fra gnr 26 bnr 2. Tomtene vil bli oppmålt og få eget gnr og bnr ved salg.
Adkomst/Tomteforhold
Fra Oslo: 220km – 2t 30 min
Følg E18 til Brokelandsheia, følg 418 mot Søndeled ta til venstre følg Rv 351 til Øysang, derfra videre mot mot Øysang (ca 17 km fra Søndeled) På høyre side av veien er det skiltet til Vestre Porthavn.
Fra Kristiansand:
Følg E18 til Sørlandsporten, ta av til høyre mot Søndeled i rundkjøringen. Ved Søndeled, følg Rv 351 mot Øysang (ca 17 km fra Søndeled) På høyre side av veien er det skiltet til Vestre Porthavn.
sommeridyll på Sørlandet
Innhold
Standard
Ta kontakt med megler for komplett informasjon
Nærområdet
Havblikk Eiendomsutvikling As
Annonsene kan være mangelfulle i forhold til lovpålagt opplysningsplikt. Før bindende avtale inngås oppfordres interessenter til å innhente komplett informasjon fra meglerforetaket, selger eller utleier.



























