Bildegalleri

Lekker hytte klar til innflytting. Visning etter avtale eller på egen hånd.
- Omkostninger
- 18 000 kr
- Totalpris
- 4 168 000 kr
Pris på lån: fra 17 300 kr/mnd
Eff.rente 5,77 %. 2 490 000 o/20 år. Kostnad: 1 662 000 kr. Totalt 4 152 000 kr.
LånekalkulatorNøkkelinfo
- Beliggenhet
- På fjellet
- Boligtype
- Hytte
- Eieform
- Eier (Selveier)
- P-plasser
- 3
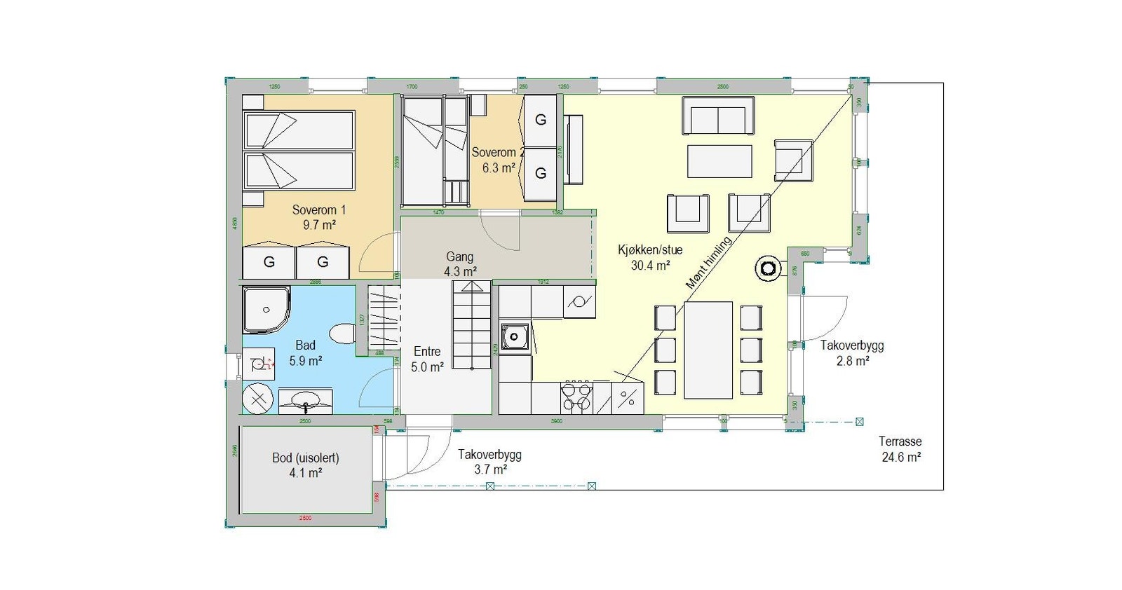
- Bruksareal
- 75 m²
- Tomteareal
- 865 m² (eiet)
- Grunnflate
- 87 m²
- Byggeår
- 2023
- Soverom
- 2
- Sengeplasser
- 4
- Meter over havet
- 950
Fasiliteter
Visning
Om eiendommen
Beliggenhet
Svarttjerntoppen i Hedalen ligger syd i Valdres og det er ca. 2 timers kjøring fra Oslo. Tomtefeltet ligger i enden av blindveg og ligger 950 moh. Det er friarealer mot nord, øst og vest.
Fra tomtene er det flott utsikt, fantastisk solgang fra tidlig morgen til sen kveld og det er snøsikkert område.
Maskinpreparerte løyper passerer rett i nærheten av tomtefeltet og det er tilgang til ca. 120 km med flotte løyper.
Sommeren byr på mange fine turmuligheter både i fjell og skogsterreng. Det er ca. 800 km. skogsbilveger i Hedalsfjella som er åpne for gang og sykkelturer.
Med ett enkelt fiskekort kan det fiskes ialle vann i Hedalen, Hedalsfjella og Vassfaret.
Det er også mulighet for rypejakt
Generelt
Adkomst/Tomteforhold
Fra Oslo kjør mot Hønefoss og ta E16 til Nes i Ådal. Herifra kan man fortsette over broen å ta av RV 243 til venstre mot Hedalen stavkirke. Man kan også velge å kjøre E16 videre ca. 19 km til Tollefsrud
å ta til venstre (Hedalslina) over til Hedalen stavkirke.
Følg RV243 fra Hedalen stavkirke ca. 7.8 km videre. Ta av til venstre ved skilt mot Søbekkseter (bomveg som tar kun kort kr.75.-)
Fortsett rett frem og etter 1,9 km er det et Y-kryss. Hold mot høyere, Hellsenningsvegen og fortsett ca. 1.5 km. Ta Svarttjernvegen opp til høyere å ta 4. stikkveg (Svarttjerntoppen) til høyere.
Følg vegen opp til toppen hvor hytta ligger og er merket.
TILBUD.
Innhold
Hytta er innflyttingsklar.
Det kan også avtales visning med selger eller besigtige hytta på egen hånd.
Utvendig kledning er grunnbeiset og pålagt mellomstrøk. Tak er tekket med sort shingel.
Alle innvendige tak, vegger og listverk er ferdig behandlet fra fabrikk. Vinduer og dører er levert ferdigbehandlet fra fabrikk.
På badegulv og entre er det varmekabler. Fliser på gulv i entre, bad og bod. Øvrige gulv er levert med parkett Abetone.
Møbelkjøkken fra Marbodal og hvitevarer fra Elektrolux
Garderobeskap og baderomsinnredningfra Marbodal.
Det er 29,7m2 hems med takhøyde 1,88 og med trapp fra gang
Standard
Ta kontakt med megler for komplett informasjon
Nærområdet
Annonsene kan være mangelfulle i forhold til lovpålagt opplysningsplikt. Før bindende avtale inngås oppfordres interessenter til å innhente komplett informasjon fra meglerforetaket, selger eller utleier.





















