Bildegalleri

Utvendig eksteriør med tradisjonelle vinduer og villmarkspanel (trend er standard)
Hytte med tomt under en time fra Oslo! Panoramautsikt over Hurdalssjøen, i et flott fritidsområde - sommer som vinter.
- Omkostninger
- 23 490 kr
- Totalpris
- 4 373 490 kr
Nøkkelinfo
- Beliggenhet
- På fjellet
- Boligtype
- Hytte
- Eieform
- Eier (Selveier)
- Internt bruksareal
- 97 m² (BRA-i)
- Bruksareal
- 101 m²
- Eksternt bruksareal
- 4 m² (BRA-e)
- Balkong/Terrasse
- 25 m² (TBA)
- Tomt
- Eiet
- Soverom
- 3
- Rom
- 9
- Sengeplasser
- 10
Fasiliteter
Visning
Ta kontakt for å avtale visning.Husk å lese komplett salgsoppgave før visning. Bestill komplett, utskriftsvennlig salgsoppgave.
Om eiendommen
Kort om eiendommen
Hurdalslia Hyttegrend ligger vestvendt med panoramautsikt over Hurdalssjøen og åsene mot vest. Med fin plassering i naturen og kjempeutsikt, er dette en perfekt fritidsdestinasjon. Nedenfor ligger også Åsanden som byr på en av innlandets flotteste sandstrender. Man har ski- og sykkeløyper rett utenfor hytta, kort vei til sjøen og ikke mer enn 4 km til Hurdal Sentrum. Her kan du nyte hyttelivet hele året.
Hurdalslia ligger kun 50 minutter fra Oslo, 25 minutter til Gardermoen og 10 minutter til Hurdal skisenter.
Det vakre skuet når du våkner og ser sola fyller åssidene på den andre siden av sjøen til hele hyttefeltet bader i sol tidlig på formiddagen. Hytteområdet kan gi deg ro, eller om du vil være aktiv kan åsene gi deg et bra turmål på sykkel, ski, eller fotturer.
Rett utenfor hytta finner du langeturløyper for ski-, skykkel- og fotturer. I Hurdal Sentrum finner du butikk, kafe, matforretninger, bensinstasjon og kommunesenter med ny skole og
kulturhus, dit er det ca. 4 km.
Hurdal er beskrevet av fjellpoeten Theodor Caspari som "Østlandets perle".
I det vakre landskapet rundt Hurdalslia hyttegrend er det god plass å boltre seg på.
Beskrivelse
Rondablikk 100 er en av de største og mest innholdsrike hyttene i sortimentet - en flott hytte hvor venner og storfamilien kan nyte helgeturer og ferier sammen. Stua og kjøkkenet danner et åpent, nydelig rom for matlaging, måltider og sofahygge. Flotte vindusløsninger og mønet tak gir en ekstra luftig følelse. Man kan også trekke ut på terrassen fra stuen.
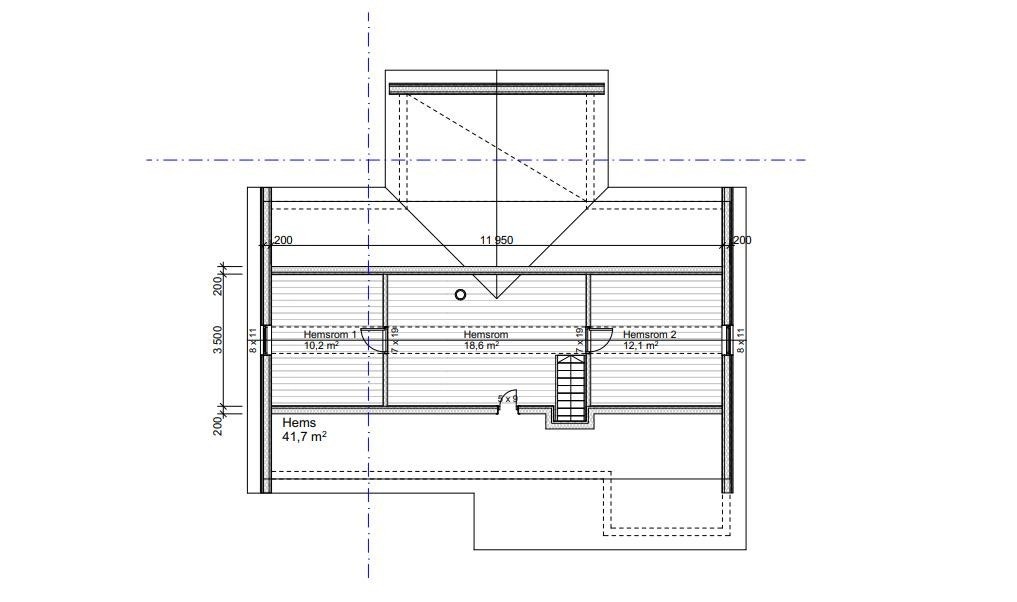
Hytta har soveplasser til mange, med tre soverom i første etasje og flere rom på hemsen. Hemsen har også tv-stue. Videre er det wc/vaskerom i tilknytning til entreen og et stort bad ved soverommene. Utstyr kan lagres i en utvendig, isolert bod ved inngangspartiet.
Hytta leveres med to forskjellige uttrykk - Trend og Tradisjon. Trend som er vår standardleveranse med stående låvepanel og store vindusflater med avtagbare sprosser, og shingel tak. Eller Tradisjon som, har et lunere uttrykk med villmarkspanel og smårutete vinduer med avtagbare sprosser og shingel tak. Begge kan leveres med torvtak. Som nøkkelferdig leveres hytta komplett med kjøkkeninnredning og hvitevarer, peisovn med stålpipe i stua, flislagte vegger og gulv på bad, samt gulvvarme i entré wc/vaskerom og bad.
Innhold
Pris inkluderer standard hytte på tomt 29, samt estimerte kostnader forbundet med nødvendig grunn- og betongarbeider.
I tillegg til annonsert pris tilkommer også (priser nedenfor er 2025-tall, årlig økning må påregnes):
Renovasjon og byggestrøm i anleggsperioden, ca. 40-65 000 kr
Byggesaksgebyr kommune: kr 24 600
Tilknytning VA: kr 122 700 (for hytte på 100m2)
Tilknytning strøm: kr 15 000
Årlige kostnader:
Årlig kostnad for vann og avløp estimert, ca kr 11 400
Tilskudd til løypelag, veiavgift og brøyting ligger i vel kontingent: ca kr 6 500
Det tas forbehold om feil i overnevnte tilleggskostnader og årlige gebyrer. Overnevnte beløp kan endres årlig.
Det må påregnes årlige kostnader til drift, og for å holde hytta i orden, herunder og som eksempel: Strømkostnader, abonnement/bruksavgift for renovasjon, vann og avløp, evt. eiendomsskatt, feieavgift, velkontingent, årlig kostnad for andel bruk og brøyting/vedlikehold av veier, bidrag til løypekjøring og trivselstiltak. Listen over er ikke uttømmende og vi oppfordrer til å sjekke kommunes hjemmesider.
Standard
1. etasje: Entré/gang, wc/vaskerom, bad/wc, 3 soverom og stue/kjøkken.
Hems: Loftstue og 2 loftsrom.
Annet: Utebod/teknisk rom.
Entré og gang: Allerede i entreen får man et inntrykk av hyttas romslige utforming. Entreen har nisje med plass til garderobeløsning, og ellers plass til knagger og annet entrémøblement. Det er direkte inngang til wc/vaskerom, trapp opp til hemsen og åpning mot stuas utbygg i front som har store vinduer.
Entreen fortsetter over i en gang mot soverommene og badet. Nøkkelferdig leveres entreen/gangen med gulvfliser, gulvvarme og downlights, samt hemstrapp som standard.
Stue/kjøkken: Stua og kjøkkenet er et åpent allrom, hvor alle kan samles til måltider og sofahygge. Allrommet har panelkledde vegger og tak, og gulv i 25 mm heltre furu. Stua har utbygg med åpen himling og store vindusflater som gir gode lysforhold og en herlig romfølelse. Fra denne delen av rommet er det også utgang til stor, kvadratisk markterrasse - perfekt for grilling og avslapping i solveggen.
Videre leveres hytta nøkkelferdig med moderne peisovn fra Nordpeis i stua, type Duo 5 DV, plassert slik at flammebildet kan nytes fra både spisebordet og sofaen.
Nøkkelferdig leveres også allrommet med kjøkkeninnredning med god oppbevaringsplass, fine arbeidsflater og integrerte hvitevarer. Hvitevarene består av koketopp, stekeovn, oppvaskmaskin og kjøl/frys. Innredningen monteres i L-form langs to vegger, i nær tilknytning til spiseplassen.
Loftstue/hems: Hemsen byr på to hemsrom og en ekstra stueløsning - et kjærkomment ekstrarom for tv-titting, lek og avslapning. Å ha muligheten til å trekke seg tilbake kan være ideelt, både for voksne og barn. Hemsen har gulv med 25 mm heltre furu, paneloverflater, tv-uttak og downlights.
Bad/wc/vaskerom: Hytta har et kombinert wc/vaskerom ved entreen og et bad i tilknytning til soverommene. Badet leveres nøkkelferdig med fliser på både vegger og gulv, samt downlights i himling og varmekabler i gulvet. Rommet utstyres med dusjhjørne, vegghengt toalett og servant med skap, speil og lys.
Wc/ vaskerom-rommet leveres nøkkelferdig med flislagt gulv med gulvvarme, samt panel på vegger og i tak. Rommet utstyres med vegghengt toalett, servant og opplegg for vaskemaskin.
Soverom og garderobe: I første etasje har hytta en gang med dør inn til tre soverom og et bad. Hovedsoverommet har plass til dobbeltseng, og de andre har plass til familiekøyer. Alle soverommene har plass til klesskap eller kommode, og det er ytterligere oppbevaringsplass i kott på hemsen og i uteboden ved inngangspartiet.
Oppvarming
Hytta leveres nøkkelferdig med gulvvarme i entré, wc/vaskerom og bad, samt panelovner i enkelte andre rom. I tillegg leveres hytta med vedfyrt peisovn, type Duo 5 DV i stue/kjøkken.
Teknisk
- Skjult elanlegg etter NEK400 normen.
- Utvendig inntaksskap.
- Innvendig sikringsskap.
- Kontaktpunkt til TV i første etasje og ett hemsrom.
- 200 liters varmtvannsbereder.
- Avtrekk fra bad, wc-rom, utebod/teknisk rom og kjøkkenventilator.
- Downlights i entré/gang, bad og hems.
- Utelamper.
- Utekran.
Diverse
Kjøpet skjer med tredelt kontrakt hvor tomten håndteres i egen kontrakt, grunnmur i egen kontrakt og hytten i egen kontrakt.
Familiehytta AS står for leveransen av hytte og er alene ansvarlig for forhold som gjelder oppføring av hytta, etter støpt plate. Familiehytta AS oversender til grunn- og betongentreprenør endelige fundamentplaner så snart arbeidstegninger foreligger.
Kjøpesum for tomten betales i henhold til tomtekjøpskontrakt. 5 % av kontraktssum for hytte betales 14 dager etter underskrift av hyttekontrakt med Familiehytta AS.
Resterende betales iht. fremdrift i henhold til Byggblankett 3425 og bustadoppføringsloven. Oppgitte priser for hyttene er basert på prisindeks 163,9 fra sept.2025. Prisen vil indeksreguleres etter Statistisk sentralbyrås indeks for "Enebolig i tre, byggearbeid unntatt stein, jord- og sementarbeid" frem til Familiehytta AS påbegynner selve oppføringen av hytta.
Grunn- og betongarbeider betales 50 % ved oppstart grunnarbeider, 40 % ved ferdig grunnmur og 10 % ved ferdigbefaring av grunn- og betongarbeider.
Ved signering av avtalebekreftelse forplikter kjøperne seg til å signere på avtalene med tomteselger vedrørende tomt, med grunnmursentreprenør vedrørende grunn/betongarbeider og Familiehytta AS vedrørende hytte så snart de nevnte selskapene har fylt ut de opplysninger som mangler i kontraktene. Avtalebekreftelsen er gyldig for selgerne først når det er kontrasignert av tomteselger vedr. tomt, grunnmursentreprenør og Familiehytta AS.
Ta kontakt med megler for komplett informasjon
Nyttige lenker
Nærområdet
Familiehytta AS
Annonsene kan være mangelfulle i forhold til lovpålagt opplysningsplikt. Før bindende avtale inngås oppfordres interessenter til å innhente komplett informasjon fra meglerforetaket, selger eller utleier.






















