
Bildegalleri

Velkommen til Hotellvegen 4!
Trysilfjellet Sør - Moderne 4-roms leilighet i 2.etasje i The Lodge Trysil, rett ved alpinbakken! Utsikt mot fjellet.
Prisantydning4 950 000 kr
- Omkostninger
- 127 920 kr
- Totalpris
- 5 117 790 kr
- Kommunale avg.
- 12 150 kr per år
- Fellesgjeld
- 39 870 kr
- Felleskost/mnd.
- 4 191 kr
- Eiendomsskatt
- 3 594 kr per år
Pris på lån: fra 20 310 kr/mnd
Eff.rente 5,14 %. 3 465 000 o/25 år. Kostnad: 2 628 000 kr. Totalt 6 093 000 kr.
LånekalkulatorDenne annonsen har fått ekstra effekt fra BLINK
Få flere klikk på din boligannonseNøkkelinfo
- Beliggenhet
- På fjellet
- Boligtype
- Leilighet
- Eieform
- Eier (Selveier)
- Primærrom
- 73 m²
- Bruksareal
- 73 m²
- Tomteareal
- 5 350 m² (eiet)
- Byggeår
- 2020
- Soverom
- 3
- Rom
- 4
- Overtakelse
- Overtakelse etter avtale
Fasiliteter
Alpinanlegg
Balkong/Terrasse
Barnevennlig
Bilvei frem
Garasje/P-plass
Golfbane
Rolig
Utsikt
Vaktmester-/vektertjeneste
Bademulighet
Innlagt strøm
Offentlig vann/kloakk
Turterreng
Visning
Meld deg på visning via påmeldingsknappen. Velkommen!
Husk å lese komplett salgsoppgave før visning. Bestill komplett, utskriftsvennlig salgsoppgave.
VisningspåmeldingOm boligen
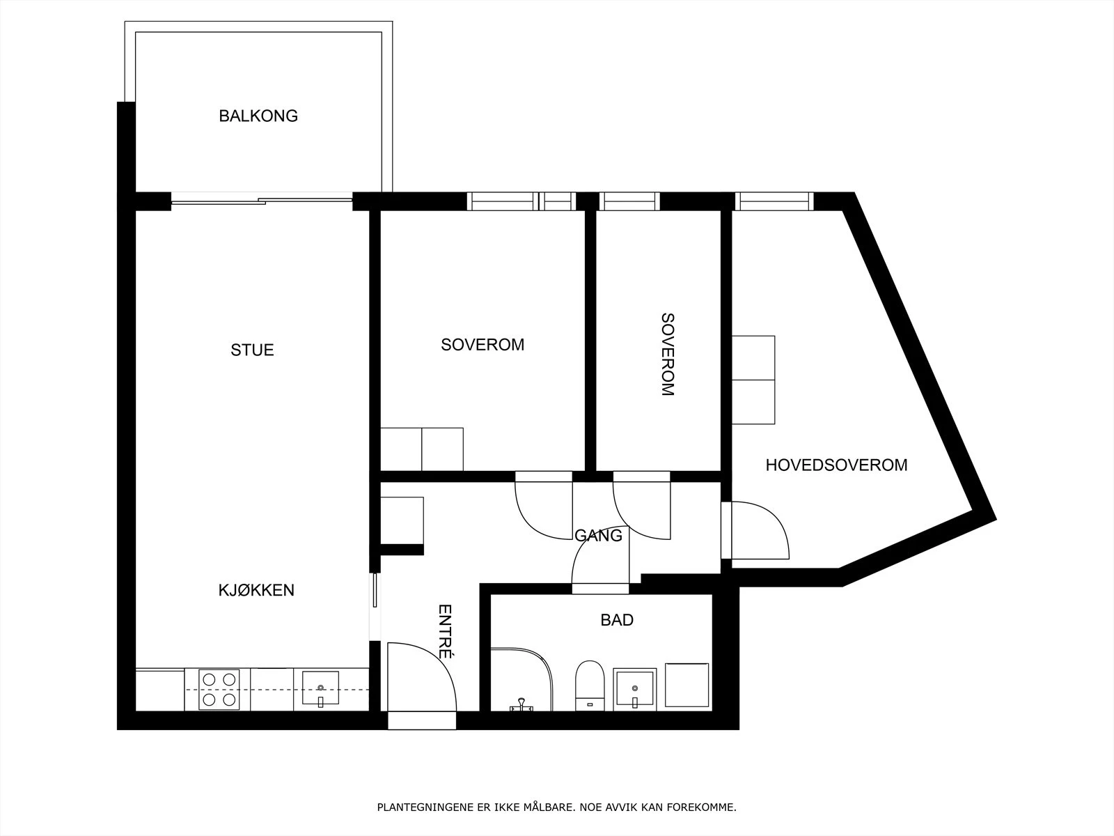
Her kan vi presentere en moderne, eksklusiv og sentralt beliggende ferieleilighet fra 2020, rett ved alpinanlegget. Leiligheten består av entre, gang, bad/vaskerom, 3 soverom, stue/kjøkken og balkong og er beliggende i 2.etasje. Leiligheten holder gjennomgående høy standard, og er utstyrt med fine kvalitetsmøbler. Ekstra takhøyde på stue/kjøkken og soverommene gir en særdeles luftig romfølelse.
Privat parkeringsplass i oppvarmet parkeringskjeller. Fellesfasiliteter som sykkelbod, sykkelverksted og smørebod.
Det er kort vei til Trysil sentrum, hvor du finner det meste av servicefasiliteter. Gangavstand til golfbane og klatrepark mm.
Velkommen til visning!
Benytt egen knapp for visningspåmelding eller kontakt Hans Petter Carlsson, Eiendomsmegler MNEF på tlf. 911 25 518.
Privat parkeringsplass i oppvarmet parkeringskjeller. Fellesfasiliteter som sykkelbod, sykkelverksted og smørebod.
Det er kort vei til Trysil sentrum, hvor du finner det meste av servicefasiliteter. Gangavstand til golfbane og klatrepark mm.
Velkommen til visning!
Benytt egen knapp for visningspåmelding eller kontakt Hans Petter Carlsson, Eiendomsmegler MNEF på tlf. 911 25 518.
NB: Knappen for å vise hele beskrivelsen har kun en visuell effekt.
NB: Knappen for å vise hele beskrivelsen har kun en visuell effekt.
Salgsoppgaven beskriver vesentlig og lovpålagt informasjon om eiendommen
Se komplett salgsoppgaveNyttige lenker
Nærområdet
Meglerhuset Østlandet AS
Lignende eiendommer til salgs

2 950 000 kr
Trysil
Totalpris: 3 024 850 kr

9 500 000 kr

4 750 000 kr
Trysil
Hyggelig halvpart av 2-mannsbolig over 2 plan - Ski inn/ut - 3 soverom - Umiddelbar nærhet til løypenett og turstier
Totalpris: 4 869 840 kr

2 590 000 kr
Trysil
HØSTPRIS - Flott leilighet beliggende perfekt til på Fageråsen|Umiddelbar nærhet til ski inn/ut|P-plass i garasje
Totalpris: 2 655 840 kr

2 690 000 kr
Trysil
Hyggelig fritidsleilighet med ski inn/ ut - To soverom - Markterrasse - Kort vei til alt fjellet har å by på
Totalpris: 2 758 340 kr

14 900 000 kr
Trysil
Sjelden anledning! Eksklusiv og unik leilighet i Trysil Alpine Lodge! - Suite med egen inngang - 2 p-plasser
Totalpris: 15 370 531 kr
Annonseinformasjon
| FINN-kode | 288398572 |
|---|---|
| Sist endret | 27. juli 2025 20:02 |
| Referanse | GAR14.232 |
Annonsene kan være mangelfulle i forhold til lovpålagt opplysningsplikt. Før bindende avtale inngås oppfordres interessenter til å innhente komplett informasjon fra meglerforetaket, selger eller utleier.




























