Bildegalleri

Gålå 96 I Strandsetra
- Omkostninger
- 77 245 kr
- Totalpris
- 4 927 245 kr
Nøkkelinfo
- Beliggenhet
- På fjellet
- Boligtype
- Hytte
- Eieform
- Eier (Selveier)
- Internt bruksareal
- 90 m² (BRA-i)
- Bruksareal
- 95 m²
- Eksternt bruksareal
- 4 m² (BRA-e)
- Balkong/Terrasse
- 29 m² (TBA)
- Tomt
- Eiet
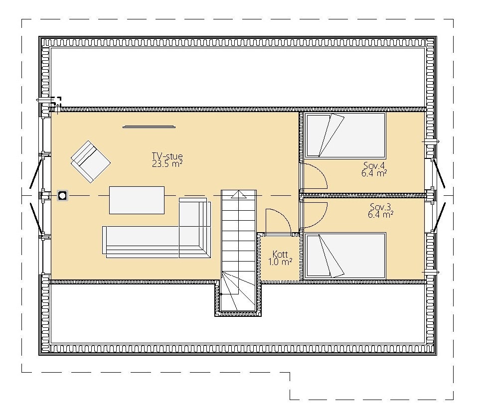
- Soverom
- 4
- Rom
- 5
- Meter over havet
- 842
Fasiliteter
Om eiendommen
Beliggenhet
45 minutter nord for Lillehammer ligger Kvitfjell, skientusiastenes vinterparadis. Her finner du utfordringer for alle nivåer; enten du vil bryne deg på den olympiske utforløypa eller om du ønsker å legge dine flrste skiopplevelser i et av familieområdene.
Adkomst/Tomteforhold
Fra E6 Gudbrandsdalsvegen, ta av til Stasjonsvegen, riksveg 319 og følgv skiltingen til Kvitfjell. Adkomst til området via Gammelsetervegen.
Generelt
Nøkkelferdig hytte Gålå 96
Komplett nøkkelferdig hytte inkludert tomt. Utvendig leveres hytta med stående tett låvepanel i mix bredder,
ytterkledning leveres grunnet i fargen røykgrå. Taket tekkes med torv. Dører og vinduer er gråmalt.
Utvendig leveranse kort fortalt
• Torvtak
• Låvepanel mix bredder, grunnet
• Gråmalte vinduer og dører
• Takrenner i sort stål
• Terrasse som vist på tegning
• Utelamper
• Frostfri utekran
• Utvendig uisolert bod
Innvendig benyttes det beiset sprekkpanel fra Moelven i fargen Tindegrå og 1-stav plank Bjelin Viarp xxl gulv.
I vindfang og på bad leveres det fliser og varmekabel. Peisovn leveres av typen Origo og blir plassert
som inntegnet på plantegninger. Origo er en klassisk peisovn med stort innsyn til flammene.
Innvendig leveranse kort fortalt
Kvalitetskjøkken fra Aubo i Unik serien inkludert hvitevarer.
• Gråmalte 3-speils innerdører
• 1-stav plank Bjelin Viarp xxl gulv
• Innvendig panel beiset i fargen Tindegrå
• Listverk og utforing er beiset i samme farge som vegg
• På bad er det fliser i format 30×60 og grå farge
• I hall er det fliser i format 30×60 og grå farge
• Varmekabler i vindfang og våtrom
• Taklamper i soverom
• Downlights i vindfang og baderom
• Panelovner på soverom
• Unidrain slukrenne i dusj
• Peisovn type Origo med glassplate foran ovn
• Lun varme stue/kjøkken
Tomtekostnad kr. 850 000,-
Se komplett leveransebeskrivelse på side 24 i prospektet.
Det tas forbehold om prisjusteringer.
Salgsoppgaven beskriver vesentlig og lovpålagt informasjon om eiendommen
Se komplett salgsoppgaveNærområdet
Tindehytter AS
Annonsene kan være mangelfulle i forhold til lovpålagt opplysningsplikt. Før bindende avtale inngås oppfordres interessenter til å innhente komplett informasjon fra meglerforetaket, selger eller utleier.



























