Bildegalleri

Solheim B fra visningshytta på Hellerud
Prosjektert Solheim 110 i Solheim hyttegrend, 45 min fra Trysil. Bedre blir det ikke.
- Omkostninger
- 14 335 kr
- Totalpris
- 4 364 335 kr
Nøkkelinfo
- Beliggenhet
- På fjellet
- Boligtype
- Hytte
- Eieform
- Selveier
- Bruksareal
- 127 m²
- Grunnflate
- 97 m²
- Byggeår
- 2022
- Soverom
- 4
- Meter over havet
- 790
Fasiliteter
Visning
Ta kontakt for å avtale visning.Om eiendommen
Beliggenhet
Solheim hyttegrend ligger i Engerdal Østfjell rett ved Engerdal sentrum.
3,5 timer fra Oslo
1,5 time fra Elverum
45 min fra Trysil
Solheim Hyttegrend ligger i Engerdal kommune, ca. 6 mil nord for Trysil. Selve hytteområdet ligger i populære Engerdal Østfjell, ca. 725 – 840 moh. Solheim Hyttegrend ligger under fjellet Hundskampen i ly for vær og vind, med en fantastisk utsikt utover dalen og fjellene. Fra Solheim Hyttegrend og ned til Engerdal sentrum bruker du ca. 5 minutter. Der finner du servicetilbud slik som bank, post, frisør, dagligvarebutikk, bensinstasjon, kommuneadministrasjon osv. Det er heller ikke langt til Trysil, Idre og Femundsmarka. Velkommen til hytteparadiset – Solheim Hyttegrend – høystandard i Engerdal Østfjell sør. 45 minutter fra Trysil
Generelt
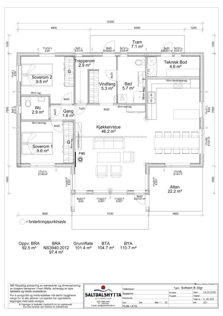
Prisen er for nøkkelferdig hytte av typen Solheim 110. (Tidligere Solheim B)
Tomt inngår i pris.
Hytta blir prosjektert og grunnarbeid og støp, samt oppføring blir gjennomfør av Solheimshytta AS og Os Entreprenør AS.
Dette er en glimrende mulighet til å komme seg med i et prosjekt som allerede er under oppstartet og dermed er det kort vei til ferdig hytte samt at man også får muligheten til å legge sin egen touch på innvendige materialer og farger.
Hytta kan også tegnes om, alt etter kundens ønske.
Standard leveranse som er inkludert i prisen:
INNVENDIGE OVERFLATER
Alle innvendige overflater leveres med vegger og himlinger av beiset Sprekkpanel(13x120) i valgt farge. Stående på vegg og i møneretning i tak. Gerikter, tak- og gulvlister leveres i samme farge som vegg.
YTTERVEGGER OG TAK
Yttervegger med stående låvepanel med et strøk grunning i lys brun. Isolert med 200mm Glava(150mm+50mm). Vinduer, ytterdører og verandadører leveres ferdig overflatebehandlet etter Tek 17. Tak isolert (200mm + 50mm) og tekkes med takshingel. Takrenner, nedløp og pipebeslag leveres i sort lakkert stål.
INNERVEGGER
Leveres med 73mm isolert bindingsverk, paneles på begge sider. Teknisk vegg utføres med 198mm bindingsverk. Bærevegger utføres med 98mm bindingsverk.
ILDSTED OG PIPE:
Std Jøtul ventilert stålpipe. Valgt JøtuL ovn.(eks F371)
ELANLEGG
El-anlegg med omfang i henhold til forskrift NEK 400.
RØRLEGGERARBEIDER
Sanitæranlegg med omfang som på plantegninger.
KJØKKEN- OG BADEINNREDNINGER
Kjøkken ligger inne med et verdikort på kr 110 000,- Kunde velger.
FØLGENDE ER IKKE INKLUDERT I KJØPESUMMEN
• Ilustrasjoner i dette prospektet kan inneholde tilvalg som ikke er med i standard leveranse. Eksempelvis tørrmur på fasade.
• Byggetegninger er kun til illustrasjon og kan inneholde møbler, benker, garderobeskap, senger osv. og plassering av disse. Dette er ikke inkludert i leveransen.
• Kostnader forbundet med kjøpers finansiering, takster og tinglysningsgebyrer
Adkomst/Tomteforhold
Innhold
Standard
Ta kontakt med megler for komplett informasjon
Nærområdet
Saltdalshytta Rørosregionen AS
Annonsene kan være mangelfulle i forhold til lovpålagt opplysningsplikt. Før bindende avtale inngås oppfordres interessenter til å innhente komplett informasjon fra meglerforetaket, selger eller utleier.
























