Bildegalleri

Gålå | Nøkkelferdig hytte med 3 soverom og TV-stue, inkl. tomt og grunnarbeider
- Omkostninger
- 13 250 kr
- Totalpris
- 6 283 250 kr
Nøkkelinfo
- Beliggenhet
- På fjellet
- Boligtype
- Hytte
- Eieform
- Selveier
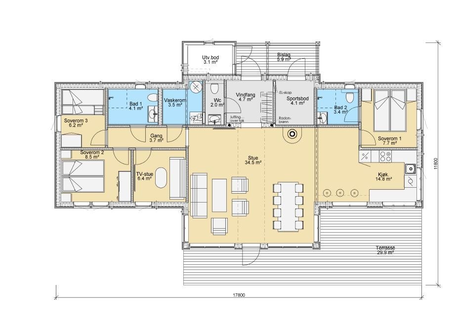
- Internt bruksareal
- 110 m² (BRA-i)
- Bruksareal
- 114 m²
- Eksternt bruksareal
- 3 m² (BRA-e)
- Balkong/Terrasse
- 36 m² (TBA)
- Tomt
- Eiet
- Soverom
- 4
- Rom
- 5
Fasiliteter
Visning
Ta kontakt for å avtale visning.Om eiendommen
Beliggenhet
Adkomst/Tomteforhold
Fra Lillehammer er det ca. 75 km til avkjøringen fra E6 ved Harpefoss. Herfra følges skilting til Peer Gynt-vegen ca. 8 km mot Gålå. Toppagrenda er skiltet og ligger med innkjøring til venstre ca. 1 km etter passering av skilt til Livold.
Generelt
Gålågynten er en innholdsrik hytte med egen TV-stue, tre soverom, to bad, eget vaskerom og gjestetoalett. Overbygd inngangsparti med inngang til utebod. Stuedelen har åpen himling og en fantastisk fasade som gir lys og luft. Hytta inneholder også tre boder.
Generell utførelse
• Utvendig stående panel, 22 mm Låvepanel miks bredder, ubehandlet.
• Torv på tak.
• Vinduer iht. tegning. 2-lag energiglass, standard farge hvit inne/ute hvit (NCS
S 0502Y). Vinduer med gjennomgående sprosser.
• Takrenner i sort stål.
• Tinde ytterdør m/vindu, malt hvit.
• Tinde boddør u/vindu, malt hvit.
• Isolasjon 25 cm i tak, 20 cm yttervegg og 10 cm i innervegger.
• Flytende gulv: 13 mm eikeparkett 3-stavs, type Kährs.
• Innvendige furupanel fra Moelven:
13 mm Sprekkpanel på vegger og himling, ubehandlet.
• Glatt standard listverk, ubehandlet.
• Furu 3-speils innerdører, ubehandlet.
• Sperretak, A-takstoler eller W-takstol jfr. tegning.
• Kjøkken fra Aubo Kjøkken av typen Unik NCS S 3502-Y, med laminat benkeplate og Slimline kjøkkenventilator (hvitevarer følger ikke med).
Elektroinstallasjoner og utstyr
Elektrikerarbeid med utstyr iht. standard
elektrikeroppsett. I utstyrsoversikt kan
nevnes:
• Inntaksskap og kabel mellom inntak og sikringsskap.
• Sikringsskap m/overbelastningsvern, jordfeilautomater og overspenningsvern.
• EL-punkter (iht. NEK 400).
• Varmekabler med termostat og føler i vindfang og våtrom.
• Strømforsyning til seriekoblet røkvarslere m/backup-batteri.
• Utelamper. Spotter i vindfang, gang, wc og bad.
Taklampe i soverom og bod. Panelovner, stikkontakter og komfyrvakt.
Murer, Flis, pipe og ildsted
• Peisovn montert på stålpipe.
• Flislagt gulv på bad og vindfang med grå 30×60 fliser inkl. varmekabel
• I dusjnisje vegg er det lik flis som på gulv.
• Påstøp gulv på vaskerom med 30×30 flis
Rørlegger/innvendig sanitær
Rørleggerarbeid med utstyr iht. standard
rørleggeroppsett. I utstyrsoversikt kan
nevnes:
• Bunnledninger (rør som ligger i betongplate innenfor ringmur fram til toalett,
sluker osv.).
• Rette slagdører i dusjnisje evnt. dusjnisjedør (iht. tegning) med dusjgarnityr.
• Vegghengt toalett med innebygd sisterne.
• Unidrainsluk på bad.
• Baderomsinnredning m/skuffer, porselensvask og speil.
• Varmtvannsbereder 200 liter.
• 1-greps blandebatterier på kjøkken, bad og evnt. andre våtrom.
• Opplegg for tilkobling av kjøkkenbenk m/
1-greps benkebatteri med høy tut, samt opplegg for tilkobling av oppvaskmaskin.
• Lekkasjesikring/vannstoppeventil.
Oppgradering av leveransen
• Innvendig furupanel fra Moelven, 13 mm Sprekkpanel på vegger beiset i en av Tinde sine standard farger.
• Innvendig furupanel fra Moelven, 13 mm Sprekkpanel i himling beiset i en av Tinde sine standard farger.
• Listverk og utforinger beiset i en av Tinde sine standard farger.
• Malte innerdører, 3-speils.
• Hvitevarepakke (oppvaskmaskin, platetopp, stekeovn og kjøl/fryseskap).
Ellers samme leveranse som Standard.
Felles for alle leveranser
• Tinde Hytter har ansvar for byggesøknadsprosessen.
• Utførelse og leveranse i henhold til dagens tekniske krav.
• Garanti: 10% av kontraktssum i byggeperioden, 5% i reklamasjonstiden (5 år).
• Kontrakt fra Norsk Standard 3425 (med henvisninger til Bustadoppføringsloven).
• Trykktestet i henhold til Tek 17.
Pris ferdig oppsatt, inkl. tomt og grunnarbeider + div. avgifter. Tomteverdi kr. 1 600 000,- Verdi grunnarbeid estimert kr. 600 000,-
Det tas forbehold om endelig godkjenning fra kommunen.
Prisene er beregnet med sist kjente indeks fra SSB, og vil bli justert til enhver tids gjeldende indeks.
For pris, diverse avgifter og kostnader - se https://www.tindehytter.no/hyttefelt/toppagrenda-3
3D-Visning
http://www.tindehytter360.no/garinglaringgynten-plan.html
Salgsoppgaven beskriver vesentlig og lovpålagt informasjon om eiendommen
Se komplett salgsoppgaveNærområdet
Tindehytter AS
Annonsene kan være mangelfulle i forhold til lovpålagt opplysningsplikt. Før bindende avtale inngås oppfordres interessenter til å innhente komplett informasjon fra meglerforetaket, selger eller utleier.
























