Bildegalleri

Breivann | Prosjektert nøkkelferdig hytte inkl. tomt og grunnarbeider
- Omkostninger
- 16 000 kr
- Totalpris
- 4 176 000 kr
Nøkkelinfo
- Beliggenhet
- På fjellet
- Boligtype
- Hytte
- Eieform
- Eier (Selveier)
- Internt bruksareal
- 96 m² (BRA-i)
- Bruksareal
- 96 m²
- Balkong/Terrasse
- 4 m² (TBA)
- Tomteareal
- 1 596 m² (eiet)
- Soverom
- 4
- Rom
- 5
Fasiliteter
Visning
Om eiendommen
Beliggenhet
Området har flotte turområder både på sommer og vinter. Fra Nordgardsetra er det preparerte skiløyper som går over til Breivann og videre til Viddaseter. Herfra kan man gå videre til Årumstua eller helt til Skrim. Norgardsetra ligger kun 700 meter fra Hyttefeltet. Her holdes det spennende aktiviteter for både store og små i helgene gjennom hele sommerhalvåret. Ved Hesttjern er det flotte bade- og fiskemuligheter.
Adkomst/Tomteforhold
Klikk på kart for å beregne kjørerute.
Generelt
Tomtefelt bestående av 19 selveier hyttetomter uten byggeklausul i naturskjønne omgivelser. Tomtene har fantastiske solforhold og alt er lagt til rette for å realisere hyttedrømmen på selveiet tomt med innlagt strøm, vann og avløp. Området har flotte turområder både på sommer og vinter. Fra Nordgardsetra er det preparerte skiløyper som går over til Breivann og videre til Viddaseter. Herfra kan man gå videre til Årumstua eller helt til Skrim.
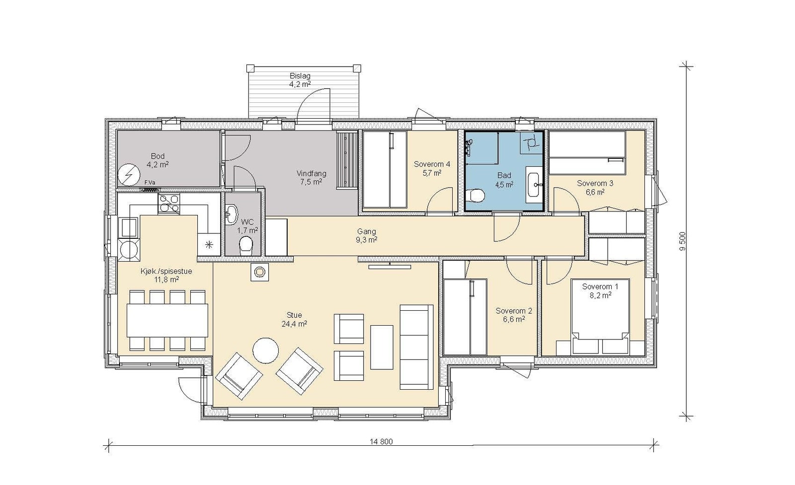
Rondane 100 er en romslig modell med fire store soverom. Disse ligger i en egen del av hytta og er tett knyttet mot badet. Stue-/kjøkkenløsning der
kjøkkenet er litt skjermet fra stua og med egen spiseplass.
Generell utførelse
• Stående låvepanel mix bredder (ubehandlet), 20 cm isolasjon i yttervegg.
• Valdres takshingel
• Takstige og snøfangere der det er krav.
• Vinduer iht. tegning. 2-lag energiglass. Valgfri farge, men lik farge inne/ute. Vinduer med gjennomgående sprosser.
• Takrenner i sort stål.
• Tinde ytterdør m/vindu, valgfri malt farge.
• Eventuell sportsbod / utebod har Tinde boddør u/vindu, valgfri malt farge.
• Terrasse leveres der det er vist på tegninger uten rekkverk.
• Isolasjon 25 cm i tak, 20 cm yttervegg og 10 cm i innervegger.
• Flytende gulv med 13 mm eikeparkett 3-stavs, type Kährs.
• Innvendige furupanel fra Moelven: 13 mm Sprekkpanel på vegger og himling, beiset i en av Tinde sine std. farger.
• Glatt standard listverk, beiset i en av Tinde sine std. farger.
• Furu 3-speils innerdører, valgfri malt farge.
• For hytter som leveres med hems/ loft er det inkludert trapp, beiset i en av Tinde sine std. farger.
• For hytter med badstue leveres benk i gran ubehandlet.
• Kjøkken fra Aubo Kjøkken av typen Unik NCS S 3502-Y, med laminat benkeplate og Slimline kjøkkenventilator (hvitevarer følger ikke med).
Elektroinstallasjoner og utstyr
Elektrikerarbeid med utstyr iht. standard elektrikeroppsett. I utstyrsoversikt kan nevnes:
• Inntaksskap og kabel mellom inntak og sikringsskap.
• Sikringsskap m/overbelastningsvern, jordfeilautomater og overspenningsvern.
• EL-punkter (iht. NEK 400).
• Varmekabler med termostat og føler i vindfang og våtrom.
• Strømforsyning til seriekoblet røkvarslere m/backup-batteri.
• Utelamper. Spotter i vindfang, wc og bad. Taklampe i soverom og bod. Panelovner, stikkontakter og komfyrvakt.
Murer, Flis, pipe og ildsted
• Peisovn fra Nordpeis med sideglass og m/glassplate montert på sort stålpipe
• Flislagt gulv på bad, wc og vindfang med grå 30×60 fliser inkl. varmekabel
• I dusjnisje vegg er det lik flis som på gulv.
Rørlegger/innvendig sanitær
Rørleggerarbeid med utstyr iht. standard rørleggeroppsett. I utstyrsoversikt kan nevnes:
• Bunnledninger (rør som ligger i betongplate innenfor ringmur fram til toalett, sluker osv.).
• Rette slagdører i dusjnisje evnt. dusjnisjedør (iht. tegning) med dusjgarnityr.
• Vegghengt toalett med innebygd sisterne.
• Unidrainsluk på bad.
• Baderomsinnredning m/skuffer, porselensvask og speil.
• Innredning m/vask og speil på Wc.
• Varmtvannsbereder 200 liter.
• 1-greps blandebatterier på kjøkken, bad og evnt. andre våtrom.
• Opplegg for tilkobling av kjøkkenbenk m/ 1-greps benkebatteri med høy tut, samt opplegg for tilkobling av oppvaskmaskin.
• Lekkasjesikring/vannstoppeventil.
Oppgradering av leveransen
• Torv på tak (2-lags naturtorv, forsterket takkonstruksjon).
• Tilfarergulv med 10 cm isolasjon og heltre furugulv 25×135 mm, hardvoksbehandlet, Arctic.
• Hvitevarepakke (oppvaskmaskin, platetopp, stekeovn og kjøl/fryseskap). Ellers samme leveranse som Standard.
Felles for alle leveranser
• Tinde Hytter har ansvar for byggesøknadsprosessen.
• Utførelse og leveranse i henhold til dagens tekniske krav.
• Garanti: 10% av kontraktssum i byggeperioden, 5% i reklamasjonstiden (5 år).
• Kontrakt fra Norsk Standard 3425 (med henvisninger til Bustadoppføringsloven).
• Trykktestet i henhold til Tek 17.
Prisen er for ferdig oppsatt hytte inkl. tomt og grunnarbeid. Tomteverdi fra kr 600 000,- Verdi grunnarbeid estimert kr 350 000,-
Prisene er beregnet med SSB sin sist kjente indeks og vil bli justert til enhver tids gjeldende indeks.
For pris, avgifter og div. kostnader - se https://www.tindehytter.no/hyttefelt/hesttjonn
Det tas forbehold om endelig godkjenning fra kommunen.
Salgsoppgaven beskriver vesentlig og lovpålagt informasjon om eiendommen
Se komplett salgsoppgaveNærområdet
Tindehytter AS
Annonsene kan være mangelfulle i forhold til lovpålagt opplysningsplikt. Før bindende avtale inngås oppfordres interessenter til å innhente komplett informasjon fra meglerforetaket, selger eller utleier.





















