Bildegalleri

Planlagt nøkkelferdig arealeffektiv hytte inkl. tomt og grunnarbeider | Panoramautsikt | Store hyttetomter
- Omkostninger
- 13 000 kr
- Totalpris
- 2 993 000 kr
Nøkkelinfo
- Beliggenhet
- På fjellet
- Boligtype
- Hytte
- Eieform
- Eier (Selveier)
- Internt bruksareal
- 54 m² (BRA-i)
- Bruksareal
- 54 m²
- Balkong/Terrasse
- 2 m² (TBA)
- Tomt
- Eiet
- Byggeår
- 2023
- Soverom
- 2
- Rom
- 3
- Meter over havet
- 716
Fasiliteter
Visning
Ta kontakt for å avtale visning.Om eiendommen
Beliggenhet
Nesvold Hyttegrend ligger I Holtålen kommune på grensa mot Rugldalen og Røros kommune, ca 22 km nord for Røros sentrum (nærmere Trondheim). Området kalles også Falkbergets rike etter forfatteren Johan Falkberget. Hyttegrenda består av fjelltomter med store muligheter for natur og opplevelser for både barn og voksne, men også mulighet for det urbane med Bergstaden 20 minutter unna. Fjellet byr på flotte fotturer og fine skiturer, samt utallige stier og veier for den sykkelinteresserte. Oppkjørte skiløyper i umiddelbar nærhet, og alpinbakker i Ålen sentrum. Finn din ideelle Tinde Hytte modell og vi bidrar til å realisere hyttedrømmen! Ta en fjelltur til et av gruvesamfunnene som ligger i angavstand fra hyttefeltet. I Ålen er det også svømmebasseng, klatrevegg, idrettshall, kino, motorsenter og snøscooterløyper. Mulighet for harryhandel i Funäsdalen med en times biltur.
Adkomst/Tomteforhold
fra Trondheim: Kjør FV 30 fra Støren mot Røros. 9 km etter Ålen sentrum krysser man toglinje, og
ytterligere ca 900 m ligger hyttefeltet med avkjøring på venstre side av veien. fra Røros: Ca. 22,5 km fra Røros Jernbanestasjon ligger feltet med avkjøring på høyre side.
Generelt
Nesvold Hyttegrend består av 50 flotte store hyttetomter mellom 1,2 – 2,9 mål. Fjelltomtene ligger i flatt og skrånende terreng på østsiden av dalen og har panoramaskue mot fjellene i alle himmelretninger. Nesvold Hyttegrend ligger i et solrikt og rolig område med fantastiske tur- og aktivitetsmuligheter. Det er opparbeidet vei, vann og avløp for hele feltet som ligger tilrettelagt ved tomtegrense.
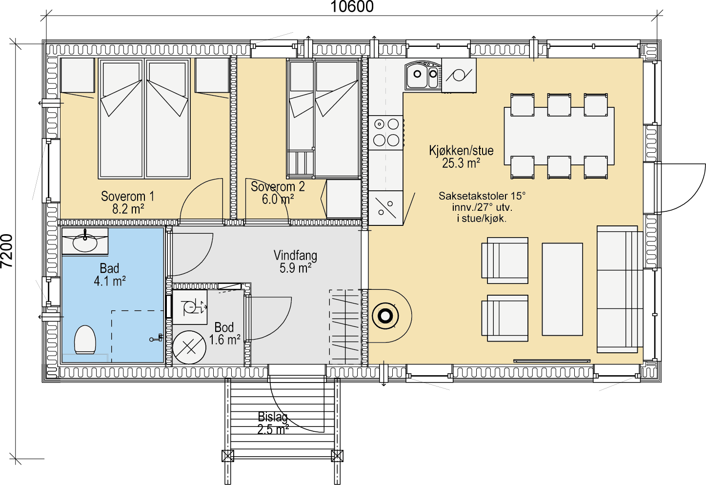
Rondane 56 er ei lita og praktisk hytte der vi har samlet alt du trenger på 56 m2. To gode soverom og et romslig vindfang med god plass til garderobe.
Leveransebeskrivelse
Generell utførelse
• Stående låvepanel mix bredder (ubehandlet), 20 cm isolasjon i yttervegg.
• Valdres takshingel
• Takstige og snøfangere der det er krav.
• • Vinduer iht. tegning. 2-lag energiglass, valgfri NCS farge opp til 7502Y med samme farge inne/ute. Vinduer med gjennomgående sprosser.
• Takrenner i sort stål.
• • Tinde ytterdør m/vindu, valgfri NCS farge opp til 7502Y.
• Eventuell sportsbod / utebod har Tinde boddør u/vindu, valgfri NCS farge opp til 7502Y.
• Terrasse leveres der det er vist på tegninger uten rekkverk.
• Isolasjon 25 cm i tak, 20 cm yttervegg og 10 cm i innervegger.
• Flytende gulv med 13 mm eikeparkett 3-stavs, type Kährs.
• Innvendige furupanel fra Moelven: 13 mm Sprekkpanel på vegger og himling, beiset i en av våre standard farger.
• Glatt standard listverk, beiset i en av våre standard farger.
• Furu 3-speils innerdører, valgfri NCS farge opp til 7502Y.
• For hytter som leveres med hems/ loft er det inkludert trapp i ubehandlet utførelse.
• For hytter med badstue leveres benk i gran ubehandlet.
• Kjøkken fra Aubo Kjøkken av typen Unik NCS S 3502-Y, med laminat benkeplate og Slimline kjøkkenventilator (hvitevarer følger ikke med).
Rørlegger/innvendig sanitær
Rørleggerarbeid med utstyr iht. standard rørleggeroppsett. I utstyrsoversikt kan nevnes:
• Bunnledninger (rør som ligger i betongplate innenfor ringmur fram til toalett, sluker osv.).
• Rette slagdører i dusjnisje evnt. Dusjnisjedør (iht. tegning) med dusjgarnityr.
• Vegghengt toalett med innebygd sisterne.
• Unidrainsluk på bad.
• Baderomsinnredning m/skuffer, porselensvask og speil.
• Innredning med vask og speilskap leveres det det er separat WC rom.
• Varmtvannsbereder 200 liter.
• 1-greps blandebatterier på kjøkken, bad og evnt. andre våtrom.
• Opplegg for tilkobling av kjøkkenbenk m/ 1-greps benkebatteri med høy tut, samt opplegg for tilkobling av oppvaskmaskin.
• Lekkasjesikring/vannstoppeventil.
Murer, Flis, pipe og ildsted
• Peisovn Duo 5 DV m/glassplate montert på sort stålpipe.
• Flislagt gulv i vindfang med 30x60cm flis.
• Flislagt gulv på bad med 30 x 60 fliser. Ved eget WC-rom og badstue leveres det også 30x60 cm flis.
• Flislagte vegger på bad med 30x60 cm flis.
• Har hytta eget vaskerom, innvendig bod eller sportsbod leveres det med 30x30 cm flis.
Elektroinstallasjoner og utstyr
Elektrikerarbeid med utstyr iht. standard elektrikeroppsett. I utstyrsoversikt kan nevnes:
• Inntaksskap og kabel mellom inntak og sikringsskap.
• Sikringsskap m/overbelastningsvern, jordfeilautomater og overspenningsvern.
• EL-punkter (iht. NEK 400).
• Varmekabler med termostat og føler i vindfang og våtrom.
• Strømforsyning til seriekoblet røkvarslere m/backup batteri.
• Astrour-styrte utelamper.
• Downlights leveres i vindfang og bad. Om hytta har WC og gang i tillegg leveres det også downlights her.
• Taklamper leveres i soverom. For de hyttene som har vaskerom og bod, leveres det taklamper her.
• Panelovner, stikkontakter, komfyrvakt og badstuovn leveres i tråd med tegning.
Oppgradering av leveransen
• Taktyper som tilpasses ønsker og/evt reguleringsplan.
• Beiset sprekkpanel på vegger og himling, listverk, utforinger og innvendig trapp/stige i en av Tinde sine standard farger.
• Innerdører, vinduer, ytterdør og evnt. boddør malt i valgfri NCS farge.
• Hvitevarepakke og kjøkkenløsning
Ellers samme leveranse som standard.
Prisen er for ferdig oppsatt hytte inkl. tomt og grunnarbeid. Tomteverdi fra kr 475 000,- Verdi grunnarbeid estimert kr. 450 000 ,-
Det tas forbehold om endelig godkjenning fra kommunen.
Prisene er beregnet med SSB sin siste kjente indeks og vil bli justert til enhver tids gjeldende indeks.
Diverse avgifter og kostnader - se https://www.tindehytter.no/hyttefelt/nesvold-hyttegrend
Salgsoppgaven beskriver vesentlig og lovpålagt informasjon om eiendommen
Se komplett salgsoppgaveNærområdet
Tindehytter AS
Annonsene kan være mangelfulle i forhold til lovpålagt opplysningsplikt. Før bindende avtale inngås oppfordres interessenter til å innhente komplett informasjon fra meglerforetaket, selger eller utleier.














