Bildegalleri

Hyttedrømmen ved havet med bade og fiskemuligheter| Prosjektert nøkkelferdig hytte inkl.tomt og grunnarbeider
- Omkostninger
- 16 170 kr
- Totalpris
- 3 216 170 kr
Nøkkelinfo
- Beliggenhet
- På fjellet
- Boligtype
- Hytte
- Eieform
- Eier (Selveier)
- Internt bruksareal
- 54 m² (BRA-i)
- Bruksareal
- 54 m²
- Balkong/Terrasse
- 2 m² (TBA)
- Tomt
- Eiet
- Byggeår
- 2024
- Soverom
- 2
- Rom
- 3
Fasiliteter
Visning
Ta kontakt for å avtale visning.Om eiendommen
Beliggenhet
Lysøya, som totalt er på ca. 100 mål, ligger i havgapet nordvest på Averøya og består av to halvøyer. På den ene halvøya ligger Lysø camping med blant annet rorbuutleie. Deler av den andre halvøya er i dag opparbeidet som hyttefelt. Mot syd ser man rett mot den folkekjære Håholmen, og litt lenger innenfor ser man blant annet kystattraksjonen Atlanterhavsveien.
Hyttefeltet ligger ved sjøen, med bade og fiskemuligheter, fint turterreng, med mulighet for flotte "toppturer" i nærområdet
Adkomst/Tomteforhold
Fra Riksveg 64 som går over Averøy, når man kommer til Hoset tar man av mot Henda på vei 251, så videre inn til venstre mot Storsandøy på vei 261.
Følg deretter skilting mot Ljøsøya
Generelt
Hyttefeltet ligger ved sjøen, med bade og fiskemuligheter, fint turterreng, med mulighet for flotte "toppturer" i nærområdet. Omgivelsene ligger fullstendig til rette for å nyte sjølivets gleder fullt ut. Det er bare en fem til ti minutters båttur bort til Håholmen som har fasiliteter som pub og restaurant. Her er det åpent for publikum om sommeren. Å reise til Kristandsund med båt via Langøysundet, Hendvika, Sveggevika, Sveggesundet, tar ca. 30-40 min med en hurtiggående båt. Denne ruten er så flott at den rett og slett bør oppleves!
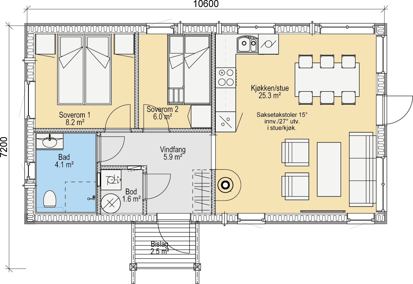
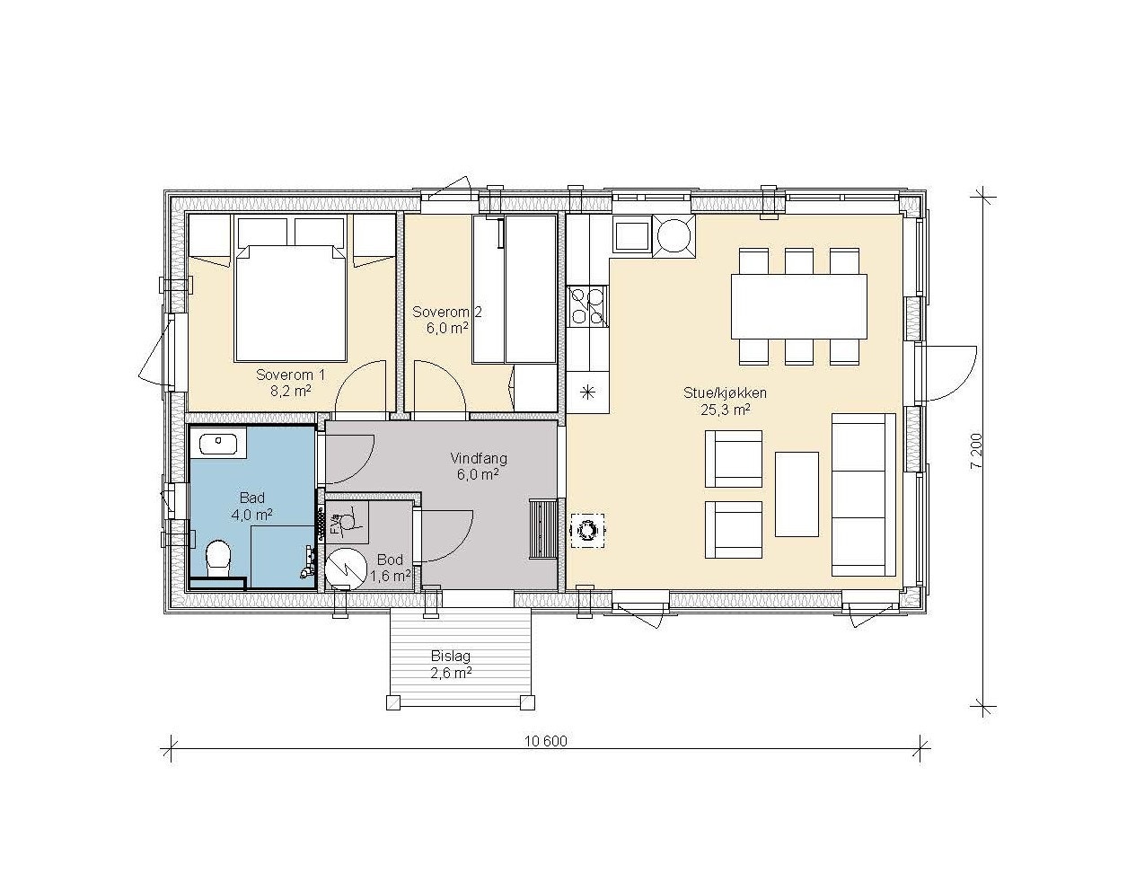
Rondane 56 er ei lita og praktisk hytte der vi har samlet alt du trenger på 56 m2, i tillegg til to gode soverom og et romslig vind-fang med god plass til garderobe.
Leveransebeskrivelse
Generell utførelse
• Stående låvepanel mix bredder (ubehandlet), 20 cm isolasjon i yttervegg.
• Valdres takshingel
• Takstige og snøfangere der det er krav.
• Vinduer iht. tegning. 2-lag energiglass, standard farge hvit inne/ute hvit NC SS 0502Y. Vinduer med gjennomgående sprosser.
• Takrenner i sort stål.
• Tinde ytterdør m/vindu, malt hvit.
• Eventuell sportsbod / utebod har Tinde boddør u/vindu, malt hvit.
• Terrasse leveres der det er vist på tegninger uten rekkverk.
• Isolasjon 25 cm i tak, 20 cm yttervegg og 10 cm i innervegger.
• Flytende gulv med 13 mm eikeparkett 3-stavs, type Kährs.
• Innvendige furupanel fra Moelven: 13 mm Sprekkpanel på vegger og himling, ubehandlet.
• Glatt standard listverk, ubehandlet.
• Furu 3-speils innerdører, ubehandlet.
• For hytter som leveres med hems/ loft er det inkludert trapp i ubehandlet utførelse.
• For hytter med badstue leveres benk i gran ubehandlet.
• Kjøkken fra Aubo Kjøkken av typen Unik NCS S 3502-Y, med laminat benkeplate og Slimline kjøkkenventilator (hvitevarer følger ikke med).
Rørlegger/innvendig sanitær
Rørleggerarbeid med utstyr iht. standard rørleggeroppsett. I utstyrsoversikt kan nevnes:
• Bunnledninger (rør som ligger i betongplate innenfor ringmur fram til toalett, sluker osv.).
• Rette slagdører i dusjnisje evnt. Dusjnisjedør (iht. tegning) med dusjgarnityr.
• Vegghengt toalett med innebygd sisterne.
• Unidrainsluk på bad.
• Baderomsinnredning m/skuffer, porselensvask og speil.
• Innredning med vask og speilskap leveres det det er separat WC rom.
• Varmtvannsbereder 200 liter.
• 1-greps blandebatterier på kjøkken, bad og evnt. andre våtrom.
• Opplegg for tilkobling av kjøkkenbenk m/ 1-greps benkebatteri med høy tut, samt opplegg for tilkobling av oppvaskmaskin.
• Lekkasjesikring/vannstoppeventil.
Murer, Flis, pipe og ildsted
• Peisovn med sideglass og m/glassplate montert på sort stålpipe.
• Flislagt gulv i vindfang med 30x60cm flis.
• Flislagt gulv på bad med 30 x 60 fliser. Ved eget WC-rom og badstue leveres det også 30x60 cm flis.
• Flislagte vegger på bad med 30x60 cm flis.
• Har hytta eget vaskerom, innvendig bod eller sportsbod leveres det med 30x30 cm flis.
Elektroinstallasjoner og utstyr
Elektrikerarbeid med utstyr iht. standard elektrikeroppsett. I utstyrsoversikt kan nevnes:
• Inntaksskap og kabel mellom inntak og sikringsskap.
• Sikringsskap m/overbelastningsvern, jordfeilautomater og overspenningsvern.
• EL-punkter (iht. NEK 400).
• Varmekabler med termostat og føler i vindfang og våtrom.
• Strømforsyning til seriekoblet røkvarslere m/backup batteri.
• Astrour-styrte utelamper.
• Downlights leveres i vindfang og bad. Om hytta har WC og gang i tillegg leveres det også downlights her.
• Taklamper leveres i soverom. For de hyttene som har vaskerom og bod, leveres det taklamper her.
• Panelovner, stikkontakter, komfyrvakt og badstuovn leveres i tråd med tegning.
Oppgradering av leveransen
• Taktyper som tilpasses ønsker og/evt reguleringsplan.
• Beiset sprekkpanel på vegger og himling, listverk, utforinger og innvendig trapp/stige i en av Tinde sine standard farger.
• Innerdører, vinduer, ytterdør og evnt. boddør malt i valgfri NCS farge.
• Hvitevarepakke og kjøkkenløsning
Ellers samme leveranse som standard.
Prisen er for ferdig oppsatt hytte inkl. tomt og grunnarbeid. Tomteverdi fra kr 600 000,- Verdi grunnarbeid estimert kr 500 000,-
For totalpris, div. avgifter og kostnader, se; https://www.tindehytter.no/hyttefelt/lysoya-hyttefelt
Prisene er beregnet med SSB sin sist kjente indeks, og vil bli justert til enhver tids gjeldene indeks.
Det tas forbehold om endelig godkjenning fra kommunen.
Salgsoppgaven beskriver vesentlig og lovpålagt informasjon om eiendommen
Se komplett salgsoppgaveNærområdet
Annonsene kan være mangelfulle i forhold til lovpålagt opplysningsplikt. Før bindende avtale inngås oppfordres interessenter til å innhente komplett informasjon fra meglerforetaket, selger eller utleier.











