Bildegalleri

Tomta ligger solvendt til med utsikt utover mot fjellheimen | Planlagt nøkkelferdig hytte med 2 soverom
- Omkostninger
- 11 000 kr
- Totalpris
- 3 081 000 kr
Nøkkelinfo
- Beliggenhet
- På fjellet
- Boligtype
- Hytte
- Eieform
- Selveier
- Internt bruksareal
- 62 m² (BRA-i)
- Bruksareal
- 62 m²
- Balkong/Terrasse
- 2 m² (TBA)
- Tomt
- Eiet
- Soverom
- 2
- Rom
- 3
Fasiliteter
Visning
Ta kontakt for å avtale visning.Om eiendommen
Beliggenhet
Velkommen til
DAMTJEDNLIE ALPIN II
Litt i overkant av 2 timer fra Oslo mot Fagernes ligger
Aurdal, Aurdalsåsen og Valdres Alpinsenter. Aurdal er
dalføret syd-øst for Fagernes og dalen har fått navn etter
elven i dette området. Aurdalsåsen er kjent for sitt flotte
turterreng med skiløyper helt til Beitostølen samt Valdres
Alpinsenter med flotte alpinmuligheter.
Området har de senere årene blitt oppdaget
som en naturperle med behagelig avstand fra
østlandsområdet.
Stamveien E16 og utbedrede veier opp gjennom Valdres,
har også gjort sitt til at dette har blitt et attraktivt hytteområde.
I de nyeste planene er det nå lagt til rette for over
500 nye hytter i området, og bygging av nye hytter samt
salg av tomter går unna i et forrykende tempo. Området er
preget av fjellterreng, høyt oppe er det utsikt mot
Hemsedalsfjellene og Jotunheimen. Hyttene som har kommet
de senere årene, har alpinanlegget liggende rett utenfor
hyttedøren. Skianlegget er et hyggelig og oversiktlig
skianlegg, og passer for hele familien – selv den krevende
alpinist.
Adkomst/Tomteforhold
Kjør E16 mot Bergen, ca. 17 mil. Ved Aurdal kirke
svinger du til høyre og inn på Danebuvegen mot
Valdres Alpinsenter. Feltet ligger på høyre side rett
etter bommen (kr. 20,-).
Generelt
Aurdal passer perfekt for deg som ønsker ro, natur og ekte fjellfølelse – bare litt over to timer fra Oslo. Området strekker seg fra den idylliske Aurdalsfjorden og opp til snaufjellet på Aurdalsåsen, og byr på naturopplevelser i fredelige omgivelser der både store og små kan trives.
Sommeren inviterer til familievennlige fjellturer, sykkelturer i vakre overganger mellom skog og fjell, samt gode fiskemuligheter i både Aurdalsfjorden og Lomtjednet. I Aurdal Fjellpark kan du også leie terrengsykkel og utforske området på to hjul.
Når vinteren kommer, venter milevis med preparerte skiløyper i variert terreng helt til Beitostølen. Midt på Aurdalsåsen ligger Valdres Alpinsenter med 11 nedfarter, barneanlegg, offpist, skiskole, skiutleie og kafé – perfekt for innholdsrike og aktive vinterdager i fjellet.
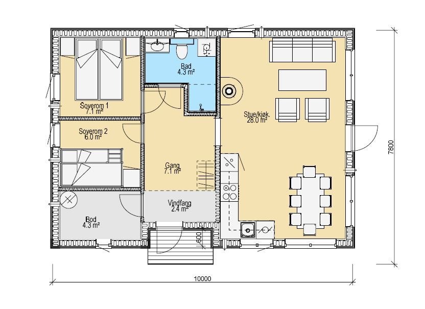
Rondane 62 er en arealeffektiv og praktisk hytte for hele familien. Åpen stue/kjøkkenløsning, to soverom, bad og en romslig gang og bod. Ønsker du mer plass, kan hytta leveres med hems.
Generell utførelse
• Stående låvepanel mix bredder (ubehandlet), 20 cm isolasjon i yttervegg.
• Torv på tak
• Takstige og snøfangere der det er krav.
• Vinduer iht. tegning. 2-lag energiglass, standard farge hvit inne/ute hvit NC SS 0502Y. Vinduer med gjennomgående sprosser.
• Takrenner i sort stål.
• Tinde ytterdør m/vindu, malt hvit.
• Eventuell sportsbod / utebod har Tinde boddør u/vindu, malt hvit.
• Terrasse leveres der det er vist på tegninger uten rekkverk.
• Isolasjon 25 cm i tak, 20 cm yttervegg og 10 cm i innervegger.
• Flytende gulv med 13 mm eikeparkett 3-stavs, type Kährs.
• Innvendige furupanel fra Moelven: 13 mm Sprekkpanel på vegger og himling, ubehandlet.
• Glatt standard listverk, ubehandlet.
• Furu 3-speils innerdører, ubehandlet.
• For hytter som leveres med hems/ loft er det inkludert trapp i ubehandlet utførelse.
• For hytter med badstue leveres benk i gran ubehandlet.
• Kjøkken fra Aubo Kjøkken av typen Unik NCS S 3502-Y, med laminat benkeplate og Slimline kjøkkenventilator (hvitevarer følger ikke med).
Rørlegger/innvendig sanitær
Rørleggerarbeid med utstyr iht. standard rørleggeroppsett. I utstyrsoversikt kan nevnes:
• Bunnledninger (rør som ligger i betongplate innenfor ringmur fram til toalett, sluker osv.).
• Rette slagdører i dusjnisje evnt. Dusjnisjedør (iht. tegning) med dusjgarnityr.
• Vegghengt toalett med innebygd sisterne.
• Unidrainsluk på bad.
• Baderomsinnredning m/skuffer, porselensvask og speil.
• Innredning med vask og speilskap leveres det det er separat WC rom.
• Varmtvannsbereder 200 liter.
• 1-greps blandebatterier på kjøkken, bad og evnt. andre våtrom.
• Opplegg for tilkobling av kjøkkenbenk m/ 1-greps benkebatteri med høy tut, samt opplegg for tilkobling av oppvaskmaskin.
• Lekkasjesikring/vannstoppeventil.
Murer, Flis, pipe og ildsted
• Peisovn fra Nordpeis og sideglass og m/glassplate montert på sort stålpipe.
• Flislagt gulv i vindfang med 30x60cm flis.
• Flislagt gulv på bad med 30 x 60 fliser. Ved eget WC-rom og badstue leveres det også 30x60 cm flis.
• Flislagte vegger på bad med 30x60 cm flis.
• Har hytta eget vaskerom, innvendig bod eller sportsbod leveres det med 30x30 cm flis.
Elektroinstallasjoner og utstyr
Elektrikerarbeid med utstyr iht. standard elektrikeroppsett. I utstyrsoversikt kan nevnes:
• Inntaksskap og kabel mellom inntak og sikringsskap.
• Sikringsskap m/overbelastningsvern, jordfeilautomater og overspenningsvern.
• EL-punkter (iht. NEK 400).
• Varmekabler med termostat og føler i vindfang og våtrom.
• Strømforsyning til seriekoblet røkvarslere m/backup batteri.
• Astrour-styrte utelamper.
• Downlights leveres i vindfang og bad. Om hytta har WC og gang i tillegg leveres det også downlights her.
• Taklamper leveres i soverom. For de hyttene som har vaskerom og bod, leveres det taklamper her.
• Panelovner, stikkontakter, komfyrvakt og badstuovn leveres i tråd med tegning.
Oppgradering av leveransen
• Taktyper som tilpasses ønsker og/evt reguleringsplan.
• Beiset sprekkpanel på vegger og himling, listverk, utforinger og innvendig trapp/stige i en av Tinde sine standard farger.
• Innerdører, vinduer, ytterdør og evnt. boddør malt i valgfri NCS farge.
• Hvitevarepakke og kjøkkenløsning
Felles for alle leveranser
• Tinde Hytter har ansvar for byggesøknadsprosessen.
• Utførelse og leveranse i henhold til dagens tekniske krav.
• Garanti: 10% av kontraktssum i byggeperioden, 5% i reklamasjonstiden (5 år).
• Kontrakt fra Norsk Standard 3425 (med henvisninger til Bustadoppføringsloven).
• Trykktestet i henhold til Tek 17.
Tomteverdi fra kr. 400 000,- Verdig grunnarbeider, stipulert fra kr. 410 000,-
For pris, diverse avgifter og kostnader - se https://www.tindehytter.no/hyttefelt/damtjednlie-alpin-i-aurdalsasen
Prisene er beregnet med sist kjente indeks fra SSB, og vil bli justert til enhver tids gjeldende indeks.
Det tas forbehold om endelig godkjenning fra kommunen.
Salgsoppgaven beskriver vesentlig og lovpålagt informasjon om eiendommen
Se komplett salgsoppgaveNærområdet
Tindehytter AS
Annonsene kan være mangelfulle i forhold til lovpålagt opplysningsplikt. Før bindende avtale inngås oppfordres interessenter til å innhente komplett informasjon fra meglerforetaket, selger eller utleier.


















