Bildegalleri

Prosjektert Stav/håndlaft hytte på Blefjell på solrik utsiktstomt nær Blestølen.
- Omkostninger
- 0 kr
- Totalpris
- 6 490 000 kr
Nøkkelinfo
- Beliggenhet
- På fjellet
- Boligtype
- Hytte
- Eieform
- Eier (Selveier)
- P-plasser
- 2
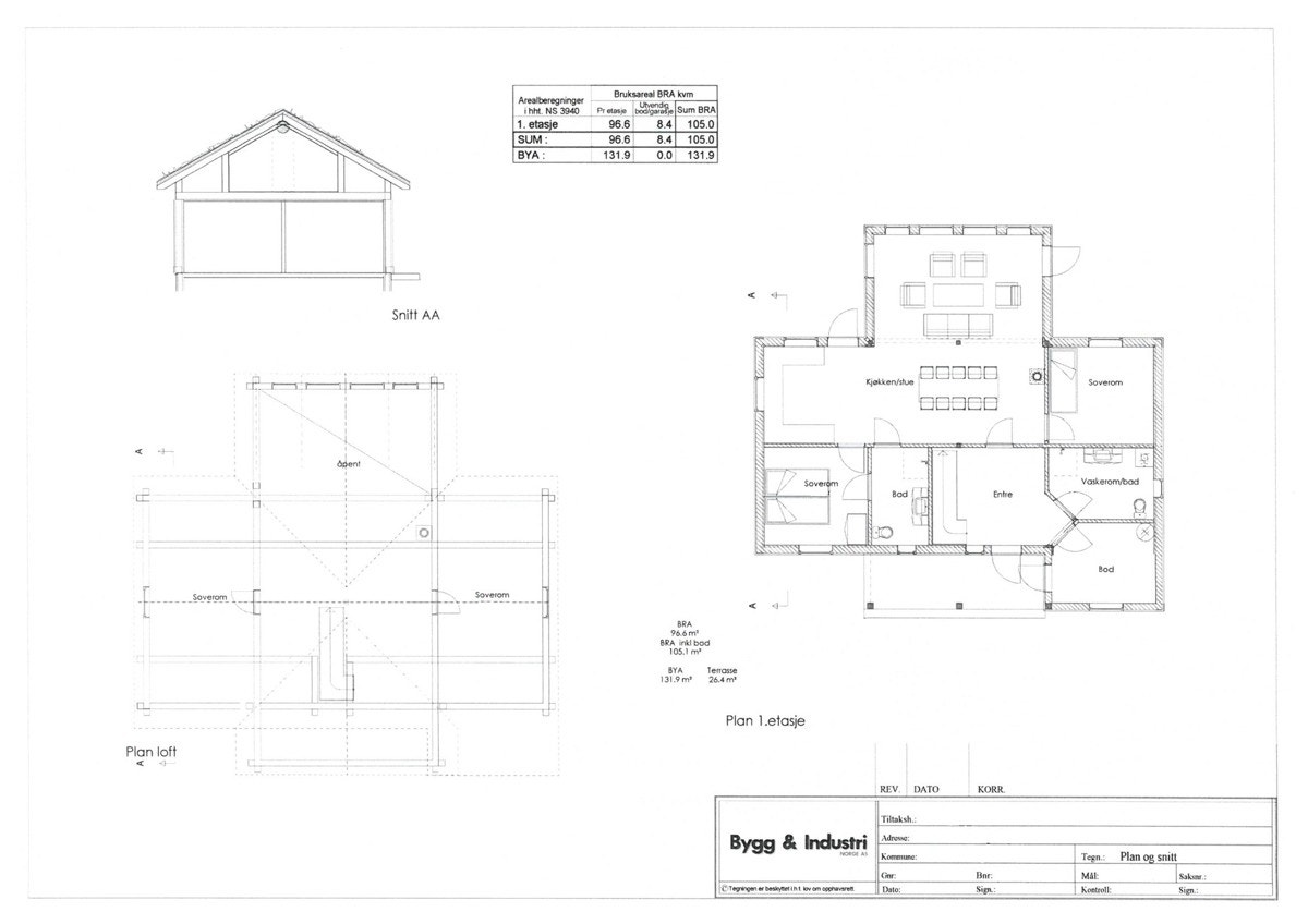
- Bruksareal
- 112 m²
- Tomteareal
- 1 000 m²
- Byggeår
- 2022
- Soverom
- 4
- Sengeplasser
- 8
- Meter over havet
- 660
Fasiliteter
Visning
Ta kontakt for å avtale visning.Om eiendommen
Beliggenhet
Hytta ligger i nærheten av Blestølen med utsikt til Norefjell med meget gode solforhold.
DENNE ER SOLGT.
VI HAR OGSÅ FLERE FINE TOMTER PÅ BLEFJELL SOM VI KAN BYGGE DIN DRØMMEHYTTE.
RING OSS FOR TILBUD.
Generelt
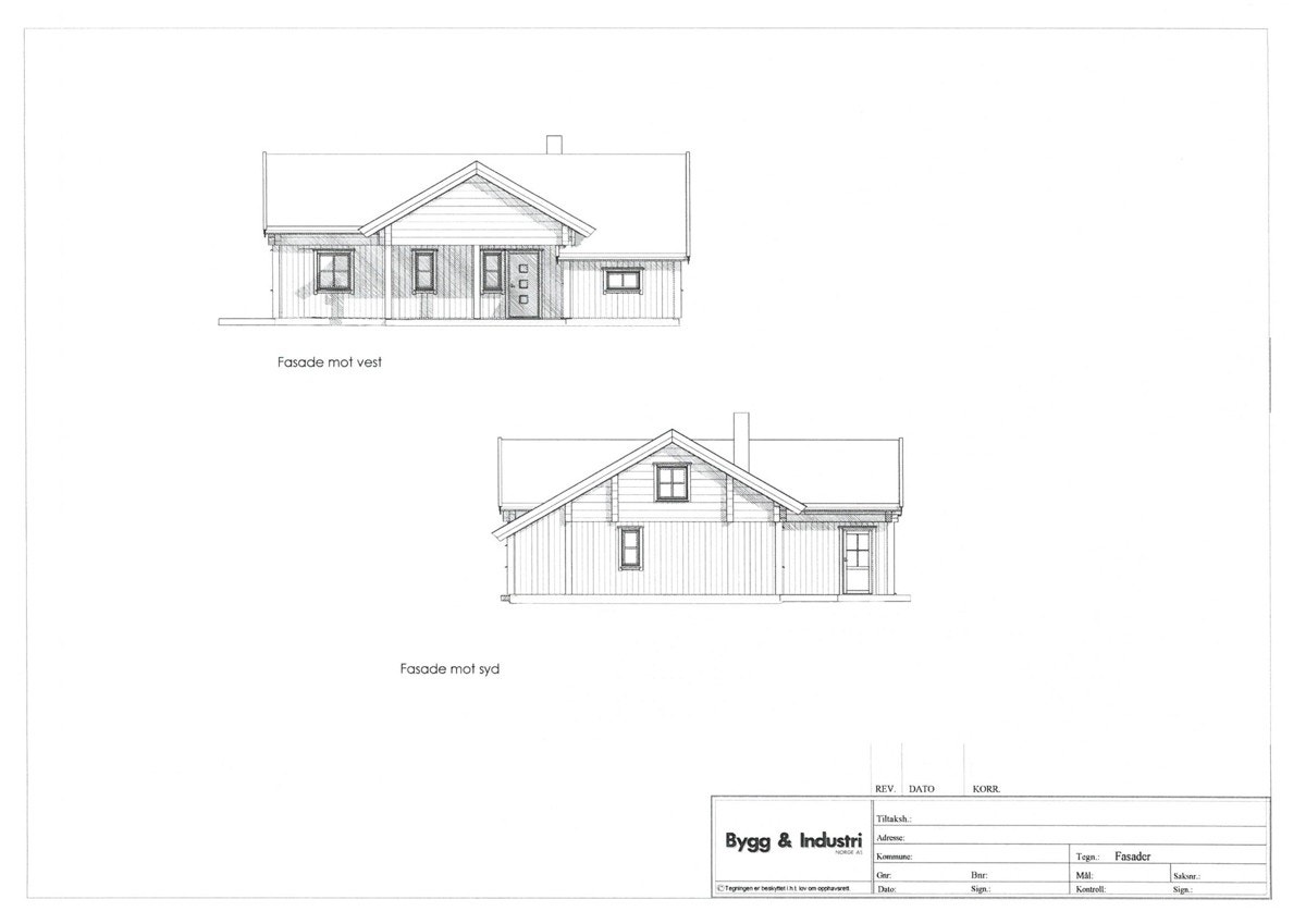
Vi har en prosjektert hytte av modellen Tollumstigen, byggd med Norsk tømmer og laftet i Norge som vi har byggestrart på høst/vinter 2022.
Hytten blir bygd i stav/laft. Det vil si reisverk av kraftige matrialer med stående panel i 1 etg. og 8" tømmer fra røstet. (Hemsen)
Den ligger fint til med utsikt til Norefjell og gode solforhold.
Hytten leverese ferdig med hvitevarer – hvor strøm, vann og avløp er tilkoblet og vei til døra - alt komplett! Du trenger bare ta med møbler eller du ønsker det, kan vi også levere den ferdig møblert. Med kort veg fra hele østlandsområdet, er det mulig og bruke hytta hver helg og rett og slett som hjemmekontor. Fiber kommer i løpet av 2022/2023. Turløyper rett utenfor hytta både på sommer og vinterstid.
Blefjell ligger sentralt til på østlandet, 1,5 time fra Oslo – Blefjell er en av landets vakreste helårsdestinasjoner – i umiddelbar nærhet til både fjell og vann, jakt og fiske, skitrekk og de fleste tenkelige naturopplevelser.
Hytta befinner seg i flott turterreng både sommer og vinter. Oppkjørte skiløyper fra hytteområdet leder til hovedløypenettet. Fjellet byr på flotte vinterforhold med milevis med dobbeltspor i et stort nettverk av traseer. For den ivrige langrennsløper er det et noe av det beste løypenettet du kan finne, men også ett eldorado for småbarnsfamilier. Selveste Northug har mange timer på Blefjell. 160 km. med fine oppkjørte løyper. Hjemmesiden: https://www.bleloyper.no/
Blefjell er et av Østlandets nærmeste høyfjell, hvor du finner store urørte områder med villdyr og vidder. Et stort nettverk av oppmerkede turstier, hvor selve Bletoppen på 1.342 m.o.h. kan være målet for turen? Store Ble gir deg alt fra langrenn til fine randoneeturer opp de største toppene, som byr på panoramautsikt til Gaustatoppen og Tinnsjøen.
Blefjellheisen er et lite og familievennlig skisenter som ligger sentralt på Blefjell. Kanskje er det er her barna får sitt første møte med alpinbakken? Hjemmesiden: https://blefjellheisen.com/
For sykkelintersserte er det mulig å sykle eller gå sammenhengende fra Blefjell Sør til Fagerfjell. Den 1,8 kilometer lange stien står Blefjell Løypeforening bak, og ble tatt i bruk høsten 2020, som er fin for både unge og eldre også.
Blefjell Lodge ligger i nærområdet av hytten med nyåpnet selvbetjent butikk som er åpen fra 8-23 alle dager! Der er det også en hyggelig kafe med god mat og alle serveringsrettigheter - i tillegg til utleie av splitter nye fritidsleiligheter!
Hjemmesiden: https://www.blefjell-lodge.no/
Blestua ligger også i nærområdet av hytten, hvor det er mulig å kjøpe det mest nødvendige av dagligvarer, hjemmelaget mat og bakervarer.
Omkostninger:
Byggestrøm.
Avfall.
Dokumentavgift på tomt.
Fradeling av tomt.
Byggesøknad.
Adkomst/Tomteforhold
Adkomst/tomteforhold:
Fra Kongsberg: Kjør Numedalsveien RV 40 til Grettefoss Bru i Svene. Fortsett mot Søndre Blefjell i ca 11 km (skiltet Blestølen, Blestua og Blefjell Lodge). Ta av til venstre ved skiltet BLEFJELL og følg Søre Blefjellvei. Når du kommer mot toppen av bakkene på Blefjell, kjør til venstre i krysset mot Blestølen. Følg denne veien til du får tomta på venstre hånd. Ta kontakt med selger, så tar vi deg med på en visning.
HUSK OG LEGGE KJØRERUTE OM SVENE/LAMPELAND VED KJØRING MED GPS.
Norskprodusert med norsk tømmer.
Innhold
Standard
Ta kontakt med megler for komplett informasjon
Nærområdet
Norsk Stavlaft AS
Annonsene kan være mangelfulle i forhold til lovpålagt opplysningsplikt. Før bindende avtale inngås oppfordres interessenter til å innhente komplett informasjon fra meglerforetaket, selger eller utleier.

























