Bildegalleri

Ny Hedda sportshytte LA59 til salgs
- Omkostninger
- 90 785 kr
- Totalpris
- 3 680 785 kr
Nøkkelinfo
- Beliggenhet
- På fjellet
- Boligtype
- Hytte
- Eieform
- Eier (Selveier)
- P-plasser
- 2
- Bruksareal
- 72 m²
- Tomteareal
- 1 849 m² (eiet)
- Grunnflate
- 83 m²
- Byggeår
- 2022
- Soverom
- 3
- Meter over havet
- 721
Fasiliteter
Visning
Ta kontakt for å avtale visning.Om eiendommen
Beliggenhet
Kyrkjebygdheia, Nissedal kommune i Telemark
Generelt
Kyrkjebygdheia AS og Otterlei Eiendom AS tilbyr nøkkelferdige hytter med selveiet tomt på naturskjønne Kyrkjebygdheia i Telemark.
Vi har nå en flott Hedda sportshytte LA59 på selveiertomt klar for salg. Hytta er bygget i hyttefeltet Hellebrotet, og er klar for visning etter avtale.
LA59 er en arkitekttegnet klassisk familiehytte av den anerkjente hyttearkitekten Jon Haug. Hytten er på 72,5 m2 BRA. og er meget praktisk innredet for å få plass til det meste man har behov for. Det legges opp til en god standard på hytta. Se leveransebeskrivelse for detaljer.
Hytta leveres inkludert Hedda sin plassbygde sofaløsning, tilpassede senger med smarte oppbevaringsløsninger og lamellgardiner i tre. Kjøkkenet er et flott tilpasset Straikjøkken i modell Rosendal.
Adkomst/Tomteforhold
Fra Sørlandet, Vestfold og Grenland kjører du til Treungen og videre mot Vrådal langs Nisser. Ca halvveis kommer du til Nissedal med skilting opp til Høgre mot Kyrkjebygheia. Fra Drammen/Oslo kjører du E 134 til Brunkeberg og tar av mot Vrådal.I Vrådal,følg skilt mot Arendal/Treungen.Kjør til Nissedal og følg skilt opp til Kyrkjebygheia.
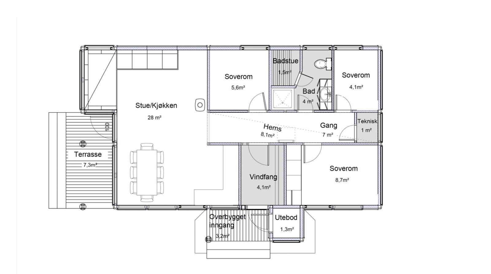
Innhold
Entre og vindfang
3 Soverom
Bad m/badstu
Stue m/kjøkkendel
Hems
Teknisk rom
Utvendig bod
Standard
Ta kontakt med megler for komplett informasjon
Nyttige lenker
Nærområdet
Kyrkjebygdheia AS
Annonsene kan være mangelfulle i forhold til lovpålagt opplysningsplikt. Før bindende avtale inngås oppfordres interessenter til å innhente komplett informasjon fra meglerforetaket, selger eller utleier.















