Bildegalleri

Nøkkelferdig hytte på flott tomt, Savalen - Tynset.
- Omkostninger
- 15 585 kr
- Totalpris
- 3 905 585 kr
Nøkkelinfo
- Beliggenhet
- På fjellet
- Boligtype
- Hytte
- Eieform
- Eier (Selveier)
- P-plasser
- 2
- Bruksareal
- 116 m²
- Tomteareal
- 1 000 m²
- Grunnflate
- 89 m²
- Byggeår
- 2022
- Soverom
- 4
- Meter over havet
- 762
Fasiliteter
Visning
Ta kontakt for å avtale visning.Om eiendommen
Beliggenhet
Enten du bor i Trøndelag, Oslo, på Mørekysten eller ved Mjøsa – det er enkelt å komme seg til Savalen og Klevan hyttefelt.
Tilgjengeligheten til hyttefeltet er god, uavhengig om du kommer med egen bil, buss, tog eller fly. Hyttefeltet ligger 19 mil sørover fra Trondheim, drøyt 30 mil nord for Oslo og rundt 20 mil fra Hamar.
Tynset er Savalens nærmeste by og regionens handelssentrum. Her finner du alt du trenger av butikker, serveringssteder og andre servicetilbud.
Fra Tynset til Savalen er det 20 km.
Det er alpinanlegg 3 min fra hytta. Milevis med daglig oppkjørte skiløyper og stabile snøforhold fra november til april. Fantastiske fjell i umiddelbar nærhet, som kan besøkes til fots eller med sykkel. I tillegg er det nå etablert en egen sykkelløype på 1.3 km som er tilpasset sykling for hele familien. Løypa ligger i umiddelbar nærhet til feltet og er perfekt lagt inn i terrenget. Gode fiskemuligheter i sjøen Savalen som ligger nedfor feltet. TID TIL Å VÆRE SAMMEN.
Generelt
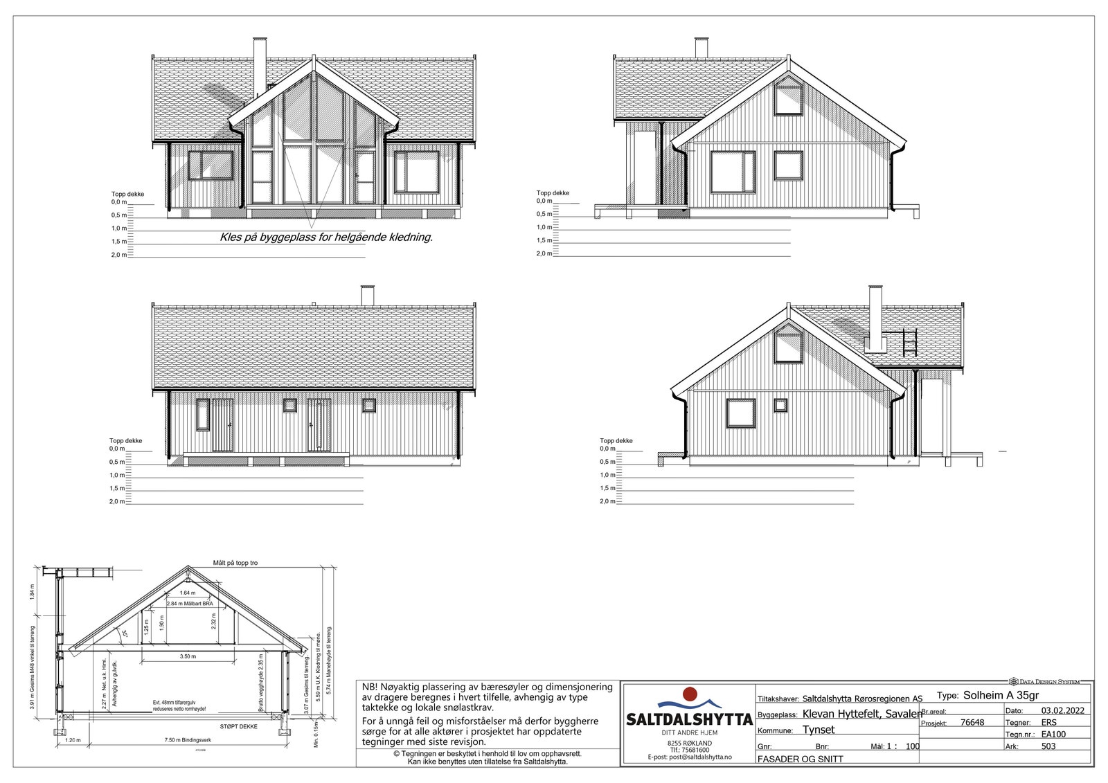
Da er denne hytten helt ferdig. Den er møblert og klar for innflytting. Bare å ta med toalettmappen å flytte rett inn. Møbelpakken er valgfri, men kan velges med mot et tillegg i prisen. Solheim er vår mest populære modell. Med moderne eksteriør god takhøyde og store vindusflater gir stuen i denne modellen deg den gode hyttefølelsen og følelsen av naturen tett på. Galleri på hems mot stue/kjøkken og glassfasade må bare oppleves. Fire soverom gjør hytta til en ordentlig familiehytte, med gode leke muligheter for barn på hemsen.
Hems kan innredes til kontor med mulighet til å jobbe fra hytta. Solheim 100 er ei romslig hytte, hvor 4 voksne par eller to familier bor fint i hytta ei helg.
Saltdalshytta Rørosregionen AS er et nyetablert firma startet av Os Entreprenør og Byggservice N.Ø. AS. Dette er to velrennomerte og bunnsolide firma som har vært i bygge bransjen lenge. Det er disse som har stått for oppføring av hytten.
Adkomst/Tomteforhold
Romslig selveiertomt på ca 1 mål.
Tomta er planert og planlagt for eventuelt en fremtidig garasje eller et uthus om det er ønskelig.
Innhold
Standard
Standarden er gjennomgående høy. Her er tak og vegger kledd med Moelven sprekkpanel i farge skigardsgrå. Listverk er Moelven tidløs i samme farge som vegg. Dører og vinduer er også gråmalt. Flis på gulv på bad og gang. Integrert trapp av høy standard. Alle gulv på tørre rom er oppdatert til Saga Hardwood med 27 cm bredde på plank. Utvendig kledning er grunnet med brun lys for alle typer beis/maling. Hems med åpen løsning ned til stue/kjøkken gjør hytta unik. Litt av årsaken til at dette er en vinner.
Vi kan også nevne en flott kjøkkeninnredning fra Huseby kjøkken, med egen kjøkkenøy. Hvitevarer er integrert.
For visning, ta kontakt med oss så møter vi deg for å vise frem dette flotte hyttekonseptet.
Ta kontakt med megler for komplett informasjon
Nærområdet
Saltdalshytta Rørosregionen AS
Annonsene kan være mangelfulle i forhold til lovpålagt opplysningsplikt. Før bindende avtale inngås oppfordres interessenter til å innhente komplett informasjon fra meglerforetaket, selger eller utleier.































