Bildegalleri

Gamle Kongeveg Hyttegrend

Lesjaskogvannet | Gamle kongeveg hyttefelt | Prosjektert nøkkelferdig oppstugguhytte

Prisantydning6 630 000 kr
Omkostninger
22 250 kr
Totalpris
6 652 250 kr

Nøkkelinfo

Beliggenhet
På fjellet
Boligtype
Hytte
Eieform
Eier (Selveier)
Internt bruksareal
141 m² (BRA-i)
Bruksareal
141 m²
Balkong/Terrasse
34 m² (TBA)
Tomt
Eiet
Byggeår
2024
Soverom
4
Rom
5

Les mer om bruksareal her

Fasiliteter

Turterreng
Innlagt strøm
Utsikt
Innlagt vann
Peis/Ildsted

Visning

Ta kontakt for å avtale visning.

Om eiendommen

Beliggenhet

Tomta ligger på et fint høydedrag i hyttefeltet med flott vestvendt utsikt mot Lesjaskogsvatnet! Totalt 20 høystandardtomer i idylliske omgivelser. Alle tomtene i feltet er over 1000 m2 der man har mulighet til å bygge 200 kvm på tomta, med hovedenhet på opp til 150 kvm. Gamle Kongeveg hyttegrend ligger ca. 2 km vest for Lesjaverk sentrum.

Adkomst/Tomteforhold

Ta av E136 ved Lesjaverk Stasjon. Kjør på verksvegen, over jernbanen, ta deretter inn på vegen kolbotn . Følg denne ca. 1,9km helt frem til hyttefeltet.

Generelt

Totalt 20 høystandardtomer i idylliske omgivelser. Alle tomtene i feltet er over 1000 m2 der man har mulighet til å bygge 200 kvm på tomta, med hovedenhet på opp til 150 kvm. Gamle Kongeveg hyttegrend ligger ca. 2 km vest for Lesjaverk sentrum. Tomtene i feltet ligger flott til i umiddelbar nærhet til Lesjaskogsvatnet med flotte turmuligheter, sommer som vinter. Sommerstid er det veier og stier opparbeidet rundt hele vannet, perfekt for både sykkelturer og gåturer. Om vinteren går det preparerte skiløyper i gangavstand fra feltet. Det er muligheter for å leie båtplass ved Lesjaskogsvatnet.

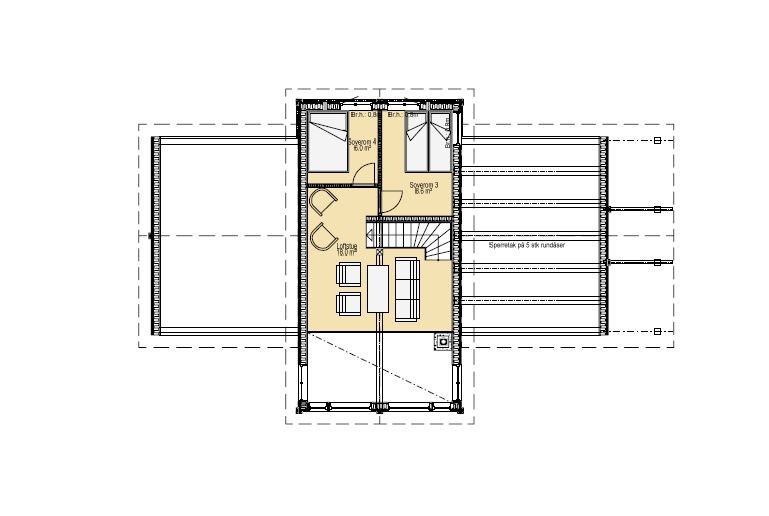
Rå 156 er en flott oppstuemodell med store rom,
og herskaplig inngangsparti med dobbel ytterdør.
Her har vi lagt vekt på kjøkkenet, som er hyttas
sosiale samlingspunkt. I tillegg må det nevnes
at stua har en åpen og luftig løsning opp til loftsstua.
Hytta har totalt fire soverom, to bad og eget
vaskerom/bod med inngang både fra hall og ute.

• Stående låvepanel mix bredder med stavlafts-utsmykking (ubehandlet), 20 cm isolasjon i yttervegg.
• Torv på tak med dobbel torv fra Dovre inkl forkantbord og torvstokker, 25 cm isolasjon i taket
• Takstige.
• Pipe over tak er forblendet med steinpanel
• Vinduer iht. tegning. 2-lag energiglass, standard farge hvit inne/ute hvit ev ( valgfri farge NCS S f. eks 7500-N). Vinduer med gjennomgående sprosser.
• Takrenner i sort stål.
• Tinde ytterdør m/vindu, malt hvit.
• Tinde boddør u/vindu, malt hvit.
• Terrasse uten rekkverk
• Isolasjon 25 cm i tak, 20 cm yttervegg og 10 cm i innervegger.
• Flytende gulv: 13 mm eikeparkett 3-stavs, type Kährs.
• Innvendige furupanel fra Moelven: 13 mm Sprekkpanel på vegger og himling, ubehandlet.
• Tidløs standard listverk, ubehandlet.
• Furu 3-speils innerdører, ubehandlet.
• Trapp til hems, ubehandlet
• Sperretak, A-takstoler eller W-takstol jfr. Tegning.
• Kjøkken fra Aubo Kjøkken av typen Unik NCS S 3502-Y, med laminat benkeplate og Slimline kjøkkenventilator (hvitevarer følger ikke med).

Elektrikerarbeid med utstyr iht. standard elektrikeroppsett. I utstyrsoversikt kan nevnes:
• Inntaksskap og kabel mellom inntak og sikringsskap.
• Sikringsskap m/overbelastningsvern, jordfeilautomater og overspenningsvern.
• EL-punkter (iht. NEK 400).
• Varmekabler med termostat og føler i vindfang og våtrom.
• Strømforsyning til seriekoblet røkvarslere m/backup batteri.
• Astrour-styrte utelamper. Spotter i vindfang, gang og bad. Taklampe i soverom og bod. Panelovner, stikkontakter, komfyrvakt.
 

Rørleggerarbeid med utstyr iht. standard rørleggeroppsett. I utstyrsoversikt kan nevnes:
• Bunnledninger (rør som ligger i betongplate innenfor ringmur fram til toalett, sluker osv.).
• Rette slagdører i dusjnisje evnt. dusjnisjedør (iht. tegning) med dusjgarnityr.
• Vegghengt toalett med innebygd sisterne.
• Unidrainsluk på bad.
• Baderomsinnredning m/skuffer, porselensvask og speil.
• Varmtvannsbereder 200 liter.
• 1-greps blandebatterier på kjøkken, bad og evnt. andre våtrom.
• Opplegg for tilkobling av kjøkkenbenk m/ 1-greps benkebatteri med høy tut, samt opplegg for tilkobling av oppvaskmaskin.
• Lekkasjesikring/vannstoppeventil.

Murer, Flis, pipe og ildsted
• Peisovn med sideglass og m/glassplate montert på sort stålpipe.
• Flislagt gulv i vindfang med 30x60cm flis.
• Flislagt gulv på bad med 30 x 60 fliser. Ved eget WC-rom og badstue leveres det også 30x60 cm flis.
• Flislagte vegger på bad med 30x60 cm flis.
• Har hytta eget vaskerom, innvendig bod eller sportsbod leveres det med 30x30 cm flis.

Oppgradering av leveransen:
• Sprekkpanel på vegger og himling beiset i en av Tinde sine standard beisfarger.
• Listverk og utforinger beiset i en av Tinde sine standard farger.
• Innerdører, vinduer, ytterdør og evnt. boddør malt i valgfri NCS-farge*
*Valgfri NCS-farge opp til S 7502.

Felles for alle leveransen:

  • Tinde Hytter har ansvar for byggesøknadsprosessen.
  • Utførelse og leveranse i henhold til dagens tekniske krav.
  • Garanti: 10% av kontraktssum i byggeperioden, 5% i reklamasjonstiden (5 år).
  • Kontrakt fra Norsk Standard 3425 (med henvisninger til Bustadoppføringsloven).

 •   Trykktestet i henhold til Tek 17

Prisen er for ferdig oppsatt hytte inkl. tomt og grunnarbeid. Tomteverdi (tomt 17-19) kr 890 000,- Verdi grunnarbeid estimert kr 500 000,- 
Det tas forbehold om endelig godkjenning fra kommunen.
Prisene er beregnet med sist kjente indeks fra SSB, og vil bli justert til enhver tids gjeldende indeks.

For diverse avgifter og kostnader som omhandler tomten - fås det av grunneier.

Salgsoppgaven beskriver vesentlig og lovpålagt informasjon om eiendommen

Se komplett salgsoppgave

Nærområdet

Annonseinformasjon

FINN-kode254061844
Sist endret21. okt. 2025 13:11
Referanse15910

Rapporter annonse

Annonsene kan være mangelfulle i forhold til lovpålagt opplysningsplikt. Før bindende avtale inngås oppfordres interessenter til å innhente komplett informasjon fra meglerforetaket, selger eller utleier.