Bildegalleri

Lenningen, Søndre Ølsjølia | Fantastisk beliggenhet med fantastisk utsikt | Prosjektert hytte med 3 soverom og 2 bad
- Omkostninger
- 18 500 kr
- Totalpris
- 3 498 500 kr
Nøkkelinfo
- Beliggenhet
- På fjellet
- Boligtype
- Hytte
- Eieform
- Eier (Selveier)
- Primærrom
- 74 m²
- Bruksareal
- 79 m²
- Grunnflate
- 93 m²
- Byggeår
- 2022
- Soverom
- 3
Fasiliteter
Visning
Ta kontakt for å avtale visning.Om eiendommen
Beliggenhet
Lenningen ligger på Synnfjellet i Etnedal kommune i Valdres ca 2 t 45 min fra Oslo. Dette fjellområdet skiller seg ut med sin storslagne utsikt mot høyfjellsmassivet Synnfjell med Spåtindtoppen, samt inn i Jotunheimen og Langsua nasjonalpark. Feltet består av 13 tomter. Tinde har tilgang på
6 av disse. Selveiertomt med strøm og kommunalt vann og avløp. Vinterbrøytet helt frem og parkering på egen tomt.
Adkomst/Tomteforhold
E16 Fra Hønefoss til Bagn. Ta av til venstre mot Tonsåsen/Bagn sentrum. Etter Circle K rett til høyre mot Tonsåsen. Etter 9,5 km krysser dere
E33 til Dokka og tar umiddelbart ned til venstre til Bruflat/Etnedal.
Herfra til venstre 9km på RV 251 til Flatøydegard. Hold til høyre mot Lenningen. Fortsett helt til avkjøring mot Ølsjølia. Eller Rv4 til Dokka. Kjør så Rv 251 til Flatøygarden. Hold til høyre mot Lenningen. Feltet
ligger til venstre etter Slaverivegen, på motsatt side av veien for Feplassen.
Generelt
Feltet består av 13 tomter. Tinde har tilgang på 6 av disse. Selveiertomt med strøm og kommunalt vann og avløp. Vinterbrøytet helt frem og parkering på egen tomt. Fantastisk utsikt mot Spåtind og mot Jotunheimen. Langsua
Nasjonalpark er nærmeste nabo.
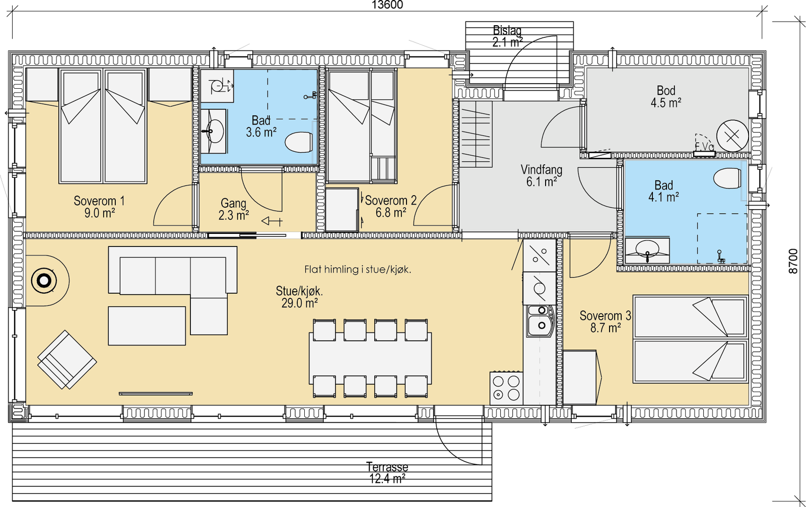
Driv 79 er arealeffektiv med tre soverom, to bad og en romslig
innebod. Hytta har inngang på baksiden. Oppholdsrommene er
samlet mot utsikten og de store vindusflatene bidrar med masse
lys. Dette gir deg en unik følelse av å være ute i naturen.
Generell utførelse
• Utvendig stående panel, 22 mm Låvepanel miks bredder, ubehandlet.
• Valdresshingel på tak.
• Vinduer iht. tegning. 2-lag energiglass, standard farge hvit inne/ute hvit (NCS S 0502Y). Vinduer med gjennomgående sprosser.
• Takrenner i sort stål.
• Tinde ytterdør m/vindu, malt hvit.
• Isolasjon 25 cm i tak, 20 cm yttervegg og 10 cm i innervegger.
• Flytende gulv: 13 mm eikeparkett 3-stavs, type Kährs.
• Innvendige furupanel fra Moelven: 13 mm Sprekkpanel på vegger og himling, ubehandlet.
• Glatt standard listverk, ubehandlet.
• Furu 3-speils innerdører, ubehandlet.
• Kjøkken fra Sigdal Kjøkken av typen Uno hvit med Eik laminat benkeplate og Slimline kjøkkenventilator (hvitevarer følger ikke med).
Elektroinstallasjoner og utstyr
Elektrikerarbeid med utstyr iht. standard elektrikeroppsett. I utstyrsoversikt kan nevnes:
• Inntaksskap og kabel mellom inntak og sikringsskap.
• Sikringsskap m/overbelastningsvern, jordfeilautomater og overspenningsvern.
• EL-punkter (iht. NEK 400).
• Varmekabler med termostat og føler i vindfang og våtrom.
• Strømforsyning til seriekoblet røkvarslere m/backup-batteri.
• Utelamper. Spotter i vindfang, gang og bad. Taklampe i soverom og bod.
Panelovner, stikkontakter og komfyrvakt.
Murer, Flis, pipe og ildsted
• Peisovn montert på stålpipe.
• Flislagt gulv på bad, WC og vindfang med grå 30×60 fliser inkl. varmekabel
• I dusjnisje vegg er det lik flis som på gulv.
• Flislagt gulv i bod med grå 20x20 flis.
Rørlegger/innvendig sanitær
Rørleggerarbeid med utstyr iht. standard
rørleggeroppsett. I utstyrsoversikt kan
nevnes:
• Bunnledninger (rør som ligger i betongplate innenfor ringmur fram til toalett,
sluker osv.).
• Rette slagdører i dusjnisje evnt. dusjnisjedør (iht. tegning) med dusjgarnityr.
• Vegghengt toalett med innebygd sisterne.
• Unidrainsluk på bad.
• Baderomsinnredning m/skuffer hvit, porselensvask og speil.
• Varmtvannsbereder 200 liter.
• 1-greps blandebatterier på kjøkken, bad og evnt. andre våtrom.
• Opplegg for tilkobling av kjøkkenbenk m/
1-greps benkebatteri med høy tut, samt opplegg for tilkobling av oppvaskmaskin.
• Lekkasjesikring/vannstoppeventil.
Felles for alle leveranser
• Tinde Hytter har ansvar for byggesøknadsprosessen.
• Utførelse og leveranse i henhold til dagens tekniske krav.
• Garanti: 10% av kontraktssum i byggeperioden, 5% i reklamasjonstiden (5 år).
• Kontrakt fra Norsk Standard 3425 (med henvisninger til Bustadoppføringsloven).
• Trykktestet i henhold til Tek 17.
Pris ferdig oppsatt, inkl. tomt og grunnarbeider.
Hytteprisene justeres i henhold til byggekostnadsindeksen og er basert på indeks av februar 2022 på 138,7.
Tomteverdi (tomt nr. 6) fra kr. 700 000,-
Verdi grunnarbeid estimert kr. 500 000,-
DIVERSE KOSTNADER KOSTNADER NYBYGG (PRIS INKL. MVA.)
Dokumentavgift kr 2,5% av salgssum for selve tomten
For oversikt over div. kostnader og avgifter, se prospekt.
Salgsoppgaven beskriver vesentlig og lovpålagt informasjon om eiendommen
Se komplett salgsoppgaveNærområdet
Tindehytter AS
Annonsene kan være mangelfulle i forhold til lovpålagt opplysningsplikt. Før bindende avtale inngås oppfordres interessenter til å innhente komplett informasjon fra meglerforetaket, selger eller utleier.














