Bildegalleri

Meget prisgunstig hytte på Ljosland til salgs!
- Omkostninger
- 15 000 kr
- Totalpris
- 2 205 000 kr
Nøkkelinfo
- Beliggenhet
- På fjellet
- Boligtype
- Hytte
- Eieform
- Eier (Selveier)
- P-plasser
- 2
- Bruksareal
- 31 m²
- Tomteareal
- 300 m² (eiet)
- Grunnflate
- 34 m²
- Byggeår
- 2025
- Soverom
- 2
- Meter over havet
- 800
Fasiliteter
Visning
Ta kontakt for å avtale visning.Om eiendommen
Beliggenhet
Flott beliggenhet i Stinu Hyttefelt på Ljolsand i Åseral kommune.
Feltet ligger like ved oppkjørte skiløyper, hvor man kan ta seg en tur til flotte turmål som Lakkenstova eller Skåræ som er Åserals høyeste topp.
Alpinanlegg ligger 1 km unna feltet
Generelt
Vi har nå tegnet en meget prisgunstig hytte som kan bygges etter avtale.
Pris er veiledende - ta kontakt for å motta kart over felt med pris på de forskjellige hyttetyper og tomter.
Adkomst/Tomteforhold
Kjør til Kyrkjebygda i Åseral. Ta mot Ljosland og kjør forbi Ljosland Fjellstove og Ljosland Skisenter. Ta til høyre inn på Kvernevassvegen. Området ligger på venstre side rett før Kvernevassdammen.
Innhold
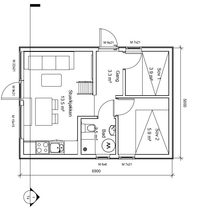
Hytte med 1 bad, 1 soverom, kjøkken/stue, hems, Entre / gang, klesbod og bod. Selv om hytten er kompakt i utførelsen, er det ikke mangel på romfølelse. Åpen himling i stuen gir god takhøyde og gjør at hytta føles mye større på innsiden.
Standard
Høy standard bygget av erfarne norske håndverkere. Seriøs og solid utbygger.
Ferdig behandlet kledning både ute og inne.
Leveransebeskrivelse / Prospekt kan tilsendes ved henvedlese til selger.
Det legges inn offentlig vann og kloakk. Tilkoblingsavgift på kr 92 000,- kommer i tillegg.
Med forbehold om feil i annonsen.
Forbehold om offentlig godkjenning.
Ta kontakt med megler for komplett informasjon
Nærområdet

TT Eiendom AS
Annonseinformasjon
| FINN-kode | 243174002 |
|---|---|
| Sist endret | 27. aug. 2025 17:59 |
| Referanse | XSteffen StrømmeX |
Annonsene kan være mangelfulle i forhold til lovpålagt opplysningsplikt. Før bindende avtale inngås oppfordres interessenter til å innhente komplett informasjon fra meglerforetaket, selger eller utleier.













