Bildegalleri

Saltdalshyttas Aurora Premium 406 er en stilren hytte med unike kvaliteter
ØVRE KVERNASKOGEN - Aurora Premium 406, råflott nøkkelferdig hytte fra Saltdalshytta
- Omkostninger
- 42 980 kr
- Totalpris
- 6 137 980 kr
Nøkkelinfo
- Beliggenhet
- På fjellet
- Boligtype
- Hytte
- Eieform
- Eier (Selveier)
- Bruksareal
- 113 m²
- Grunnflate
- 124 m²
- Bruttoareal
- 142 m²
- Byggeår
- 2021
- Soverom
- 3
Fasiliteter
Visning
Om eiendommen
Beliggenhet
Prosjektert hytte, flott plassert i Øvre Kvernaskogen med nydelig utsikt over Kvamskogen og Longvovatnet. Området rundt Kvamskogen er en stor hytteby. Med rundt 2000 hytter- og nærmere 500 campingvognplasser, er dette Norges tredje største hytteområde.
Fra hyttefeltet er det bare en liten times kjøring fra Bergen, og 15 minutter til handelssenteret Norheimsund. Her finner du flere restauranter, dagligvarebutikker, apotek, vinmonopol og butikksenter.
Tomten har en solrik beliggenhet, og kort avstand til Aktiven Skiheis og fine, preparerte skiløyper i umiddelbar nærhet. I Kvamskogen finner du skiheiser, akebakker og mer enn 30 alpinløyper, og en av de lengste stolheisene i Nord Europa på 1800 meter ved Eikedalen skisenter.
Om sommeren finner du fine badestrender ved Hardangerfjorden bare en kort kjøretur unna. Ikke interessert i å både ute på vinterstid? Heldigvis har Hardangerbadet i Østese sommer hele året og et bredt tilbud til hele familien.
Kvamskogen og Hardanger byr på utallige turmuligheter for deg og familien året rundt. Med andre ord vil du her kunne få deg en helårshytte som er like fin å bruke både sommer og vinter.
Generelt
I liket med alle Saltdalshyttas Premium-modeller, er også Aurora Premium 406 noe utenom det vanlige.
Fasadens sørside preges av to svalganger – en i forbindelse med inngangspartiet, og en i forbindele med stua. Mellom disse er det et karnapp som gjerne kan kles med en tørrmur, slik det er gjort på illustrasjonsbildet.
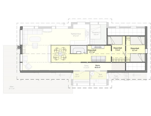
Også på innsiden er det nok av kvaliteter. Et stort kjøkken, en flott spisestue med skyvedør i begge ender av bordet, og en hems som strekker seg fram over stua. Legg også merke til de to kombinerte inne-/utebodene, der den ene er tenkt som dedikert smørebod.
Hytta Aurora Permium 406 er kun et forslag til hvilken hytte du kan få bygget på Øvre Kvernaskogen, og prisen som oppgis i annonsen er pris for nøkkelferdig Aurora Premium 406 fra Saltdalshytta. Om du ønsker annen hytte på tomta, står du fritt til å velge annen hyttevariant selv. Ta kontakt med oss for å diskutere mulighetene dine nærmere.
Adkomst/Tomteforhold
Innhold
Standard
Ta kontakt med megler for komplett informasjon
Nærområdet

Nordbohus - Hardanger
Annonseinformasjon
| FINN-kode | 239742282 |
|---|---|
| Sist endret | 24. nov. 2021 13:47 |
| Referanse | Byrkjeland Bygg og Eiendom AS |
Annonsene kan være mangelfulle i forhold til lovpålagt opplysningsplikt. Før bindende avtale inngås oppfordres interessenter til å innhente komplett informasjon fra meglerforetaket, selger eller utleier.














