Bildegalleri

Planlagt nøkkelferdig oppstuehytte inkl. tomt og grunnarbeider | Panoramautsikt og solrike tomter!
- Omkostninger
- 43 670 kr
- Totalpris
- 7 953 670 kr
Nøkkelinfo
- Beliggenhet
- På fjellet
- Boligtype
- Hytte
- Eieform
- Eier (Selveier)
- Internt bruksareal
- 149 m² (BRA-i)
- Bruksareal
- 149 m²
- Balkong/Terrasse
- 39 m² (TBA)
- Tomt
- Eiet
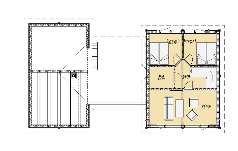
- Soverom
- 4
- Rom
- 7
- Meter over havet
- 920
Fasiliteter
Visning
Ta kontakt for å avtale visning.Om eiendommen
Beliggenhet
Ølnesseter hyttegrend er et godt etablert felt med nye kvalitetstomter
tilgjengelig. Ølnesseter Hyttegrend ligger i et solrikt og rolig område med
fantastiske tur- og aktivitetsmuligheter i Sør-Valdres! Høy-standard, sjøleiertomter med tilknytning til vann/avløp/strøm.
Adkomst/Tomteforhold
Kjør E16 til Bagn sentrum. I krysset ved Circle K, følg veien mot Veståsen og Gol. Etter 9,5 km kommer du til en bom (kr 30,–). Etter 400 m sving
inn til høyre skiltet Ølnesseter. Hyttegrenda ligger på høyre side. Tomt 1 ligger på høyre side av vegen når du kommer inn i feltet (se kart).
Generelt
Ølnesseter hyttegrend er et godt etablert felt med nye kvalitetstomter tilgjengelig. Ølnesseter Hyttegrend ligger i et solrikt og rolig område med fantastiske tur- og aktivitetsmuligheter i Sør-Valdres! Høystandard, sjøleiertomter med tilknytning til vann/avløp/strøm. Hyttetomtene ligger
fra 915–1005 m.o.h. og varierer i størrelse fra 0,6–2,1 dekar. En Tindehytte i dette området gir et godt utgangspunkt til fritidsopplevelser både sommer og vinter! Reiseavstand: kun 2,5 timer fra Oslo/Bærum.
Kraftig H-hytte med oppstue for storfamilien! Store vinduer slipper lys og naturen inn i hytta. Ei innholdsrik hytte med fire soverom, to bad, badstue, bod og hems. Delvis forblendet inngangsparti. Romslig og lun terrasse.
Generell utførelse
• Stående låvepanel mix bredder med stavlaftutsmykking (ubehandlet). 20 cm isolasjon i yttervegg.
• Torv på tak
• Takstige og snøfangere der det er krav.
• Pipe over tak er forblendet med steinpanel
• Vinduer iht. tegning. 2-lag energiglass, standard farge hvit inne/ute hvit NC SS 0502Y. Vinduer med gjennomgående sprosser.
• Takrenner i sort stål.
• Tinde ytterdør m/vindu, malt hvit.
• Eventuell sportsbod / utebod har Tinde boddør u/vindu, malt hvit.
• Terrasse leveres der det er vist på tegninger uten rekkverk.
• Isolasjon 25 cm i tak, 20 cm yttervegg og 10 cm i innervegger.
• Flytende gulv med 13 mm eikeparkett 3-stavs, type Kährs.
• Innvendige furupanel fra Moelven: 13 mm Sprekkpanel på vegger og himling, ubehandlet.
• Glatt standard listverk, ubehandlet.
• Furu 3-speils innerdører, ubehandlet.
• For hytter som leveres med hems/ loft er det inkludert trapp i ubehandlet utførelse.
• For hytter med badstue leveres benk i gran ubehandlet.
• Kjøkken fra Aubo Kjøkken av typen Unik NCS S 3502-Y, med laminat benkeplate og Slimline kjøkkenventilator (hvitevarer følger ikke med).
Rørlegger/innvendig sanitær
Rørleggerarbeid med utstyr iht. standard rørleggeroppsett. I utstyrsoversikt kan nevnes:
• Bunnledninger (rør som ligger i betongplate innenfor ringmur fram til toalett, sluker osv.).
• Rette slagdører i dusjnisje evnt. Dusjnisjedør (iht. tegning) med dusjgarnityr.
• Vegghengt toalett med innebygd sisterne.
• Unidrainsluk på bad.
• Baderomsinnredning m/skuffer, porselensvask og speil.
• Innredning med vask og speilskap leveres det det er separat WC rom.
• Varmtvannsbereder 200 liter.
• 1-greps blandebatterier på kjøkken, bad og evnt. andre våtrom.
• Opplegg for tilkobling av kjøkkenbenk m/ 1-greps benkebatteri med høy tut, samt opplegg for tilkobling av oppvaskmaskin.
• Lekkasjesikring/vannstoppeventil.
Murer, Flis, pipe og ildsted
• Peisovn fra Nordpeis og sideglass og m/glassplate montert på sort stålpipe.
• Flislagt gulv i vindfang med 30x60cm flis.
• Flislagt gulv på bad med 30 x 60 fliser. Ved eget WC-rom og badstue leveres det også 30x60 cm flis.
• Flislagte vegger på bad med 30x60 cm flis.
• Har hytta eget vaskerom, innvendig bod eller sportsbod leveres det med 30x30 cm flis.
Elektroinstallasjoner og utstyr
Elektrikerarbeid med utstyr iht. standard elektrikeroppsett. I utstyrsoversikt kan nevnes:
• Inntaksskap og kabel mellom inntak og sikringsskap.
• Sikringsskap m/overbelastningsvern, jordfeilautomater og overspenningsvern.
• EL-punkter (iht. NEK 400).
• Varmekabler med termostat og føler i vindfang og våtrom.
• Strømforsyning til seriekoblet røkvarslere m/backup batteri.
• Astrour-styrte utelamper.
• Downlights leveres i vindfang og bad. Om hytta har WC og gang i tillegg leveres det også downlights her.
• Taklamper leveres i soverom. For de hyttene som har vaskerom og bod, leveres det taklamper her.
• Panelovner, stikkontakter, komfyrvakt og badstuovn leveres i tråd med tegning.
Oppgradering av leveransen
• Taktyper som tilpasses ønsker og/evt reguleringsplan.
• Beiset sprekkpanel på vegger og himling, listverk, utforinger og innvendig trapp/stige i en av Tinde sine standard farger.
• Innerdører, vinduer, ytterdør og evnt. boddør malt i valgfri NCS farge.
• Hvitevarepakke og kjøkkenløsning
Felles for alle leveranser
• Tinde Hytter har ansvar for byggesøknadsprosessen.
• Utførelse og leveranse i henhold til dagens tekniske krav.
• Garanti: 10% av kontraktssum i byggeperioden, 5% i reklamasjonstiden (5 år).
• Kontrakt fra Norsk Standard 3425 (med henvisninger til Bustadoppføringsloven).
• Trykktestet i henhold til Tek 17.
Tomteverdi fra kr. 1 700 000,- Verdig grunnarbeider, stipulert fra kr. 550 000,-
For pris, diverse avgifter og kostnader - se https://www.tindehytter.no/hyttefelt/olnesseter
Prisene er beregnet med sist kjente indeks fra SSB, og vil bli justert til enhver tids gjeldende indeks.
Det tas forbehold om endelig godkjenning fra kommunen.
Salgsoppgaven beskriver vesentlig og lovpålagt informasjon om eiendommen
Se komplett salgsoppgaveNærområdet
Tindehytter AS
Annonsene kan være mangelfulle i forhold til lovpålagt opplysningsplikt. Før bindende avtale inngås oppfordres interessenter til å innhente komplett informasjon fra meglerforetaket, selger eller utleier.














