Bildegalleri

Vestlia Resort
Attraktiv toppleilighet med ski in/out - unik beliggenhet ved Vestlia Resort
Prisantydning12 500 000 kr
- Omkostninger
- 313 850 kr
- Totalpris
- 12 813 850 kr
- Felleskost/mnd.
- 4 721 kr
- Eiendomsskatt
- 6 042 kr per år
Nøkkelinfo
- Beliggenhet
- På fjellet
- Boligtype
- Leilighet
- Eieform
- Eier (Selveier)
- Internt bruksareal
- 117 m² (BRA-i)
- Bruksareal
- 122 m²
- Eksternt bruksareal
- 5 m² (BRA-e)
- Balkong/Terrasse
- 12 m² (TBA)
- Tomteareal
- 1 524 m² (eiet)
- Byggeår
- 2019
- Soverom
- 4
- Rom
- 5
- Overtakelse
- Etter nærmere avtale med selger. Vær vennlig å angi ønsket overtagelsesdato i vedlagte budskjema.
Fasiliteter
Alpinanlegg
Balkong/Terrasse
Barnevennlig
Bilvei frem
Garasje/P-plass
Utsikt
Vaktmester-/vektertjeneste
Bademulighet
Innlagt strøm
Offentlig vann/kloakk
Turterreng
Visning
Ta kontakt for å avtale visning.Husk å lese komplett salgsoppgave før visning. Bestill komplett, utskriftsvennlig salgsoppgave.
VisningspåmeldingOm boligen
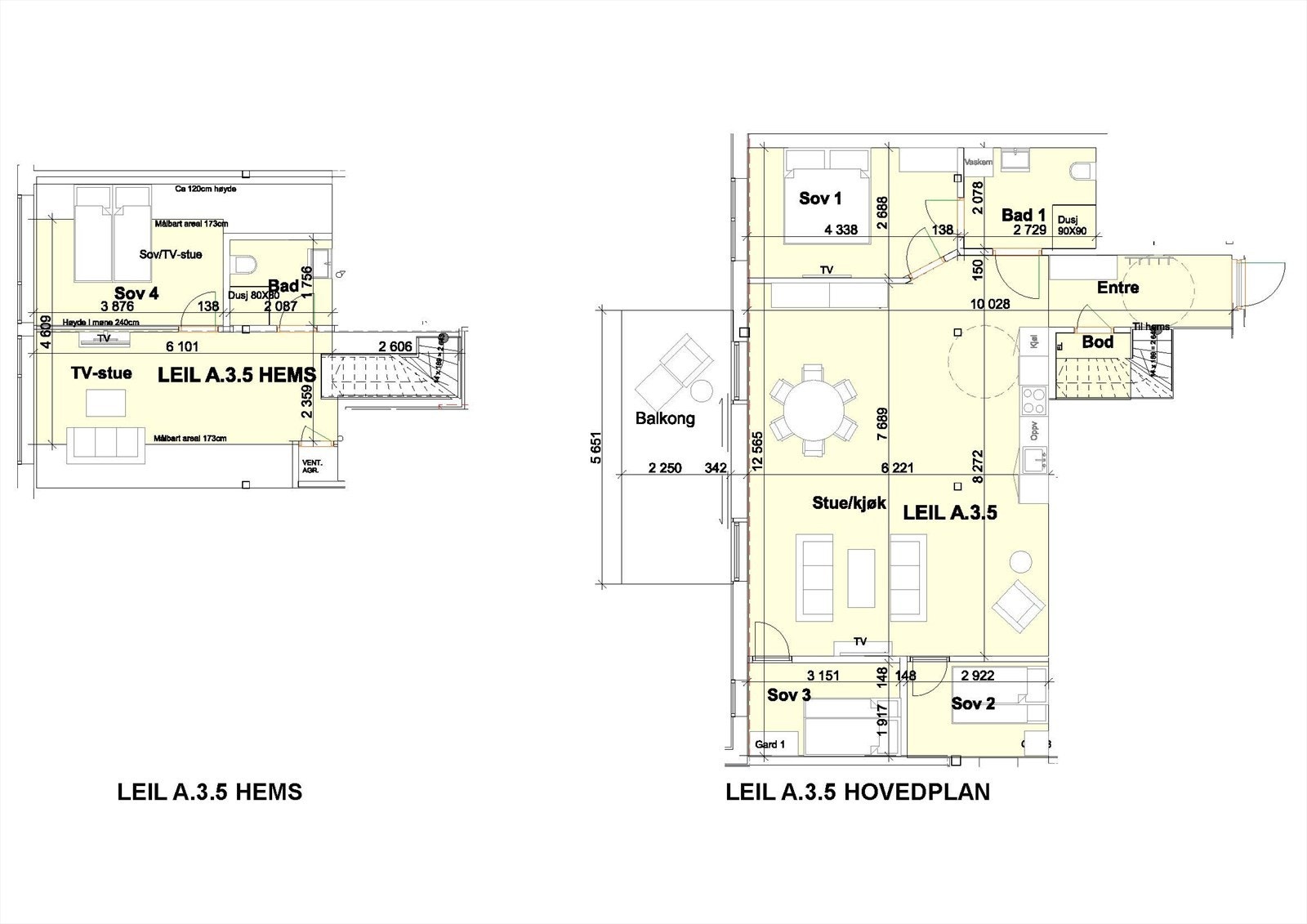
Stor toppleilighet i Vestlia Lodge med 4/5 soverom og 2 bad. Flott utsikt mot Ustedalsfjorden og skibakkene på Geilosiden. Tilgang til alle fasiliteter på Vestlia resort og gode medlemsfordeler gjennom Owners Club. P-plass med El-bil lader og bod i garasjeanlegg. Ski in ski out både for langrenn og alpint. Passer perfekt for den som vil ha det lille ekstra.
Leiligheten går over to plan og inneholder:
3. etasje: Stue/spisestue/kjøkken, 3 soverom, bad/wc og entré/gang med trappeløp.
4. etasje: Tv stue med trappeløp, 1 soverom og bad/wc.
Nettingbod i felles bodanlegg i kjeller, innredet med benker, hyller til skistøvler/hjelmer og skistativ til alpin- og langrennsski.
Leiligheten går over to plan og inneholder:
3. etasje: Stue/spisestue/kjøkken, 3 soverom, bad/wc og entré/gang med trappeløp.
4. etasje: Tv stue med trappeløp, 1 soverom og bad/wc.
Nettingbod i felles bodanlegg i kjeller, innredet med benker, hyller til skistøvler/hjelmer og skistativ til alpin- og langrennsski.
NB: Knappen for å vise hele beskrivelsen har kun en visuell effekt.
NB: Knappen for å vise hele beskrivelsen har kun en visuell effekt.
Salgsoppgaven beskriver vesentlig og lovpålagt informasjon om eiendommen
Se komplett salgsoppgaveNyttige lenker
Nærområdet
EIE Fjellmegleren Geilo
Vi loser deg trygt gjennom hele boligsalget
Annonseinformasjon
| FINN-kode | 228994267 |
|---|---|
| Sist endret | 10. nov. 2025 19:41 |
| Referanse | 1530210242 |
Annonsene kan være mangelfulle i forhold til lovpålagt opplysningsplikt. Før bindende avtale inngås oppfordres interessenter til å innhente komplett informasjon fra meglerforetaket, selger eller utleier.






































