Bildegalleri

Saltdalshytta "Aasebu 110" - selges som byggesett pluss
- Omkostninger
- 0 kr
- Totalpris
- 2 290 000 kr
Nøkkelinfo
- Beliggenhet
- Ved sjøen
- Boligtype
- Hytte
- Eieform
- Eier (Selveier)
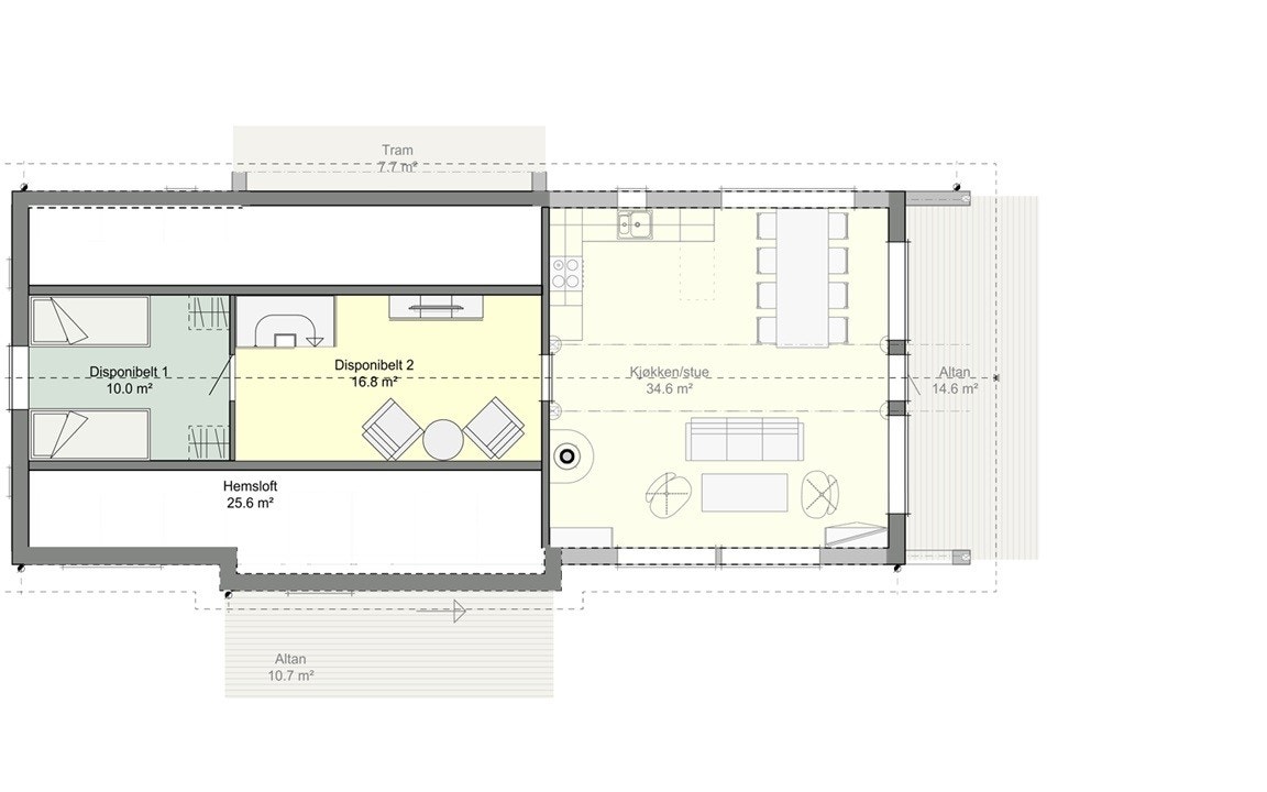
- Bruksareal
- 120 m²
- Grunnflate
- 97 m²
- Soverom
- 4
Fasiliteter
Visning
Om eiendommen
Beliggenhet
Beliggenhet
Velkommen til idylliske Nordskjørvika hyttefelt på Kiran i Åfjord Kommune. Et nyetablert hyttefelt med frittliggende tomter til ferie-og fritidsformål.
Med sjøen og naturen som nærmeste nabo byr området på et aktivt båtliv, samt turer i naturen og på fjell. Tomtene vil ha flotte sol- og utsiktsforhold.
Området har gode solforhold og en fantastisk panoramautsikt. Landskapet er preget av fargerike lyngheier, knauser og slette svaberg.
Beliggenheten oppfordrer til båt og sjøaktiviteter! Det er en rik fauna med fisk og skaldyr, og havfiske kan man praktisere ved f.eks ute på Sjørafjorden. Det er et mangfoldig dyre- og fugleliv med blant annet sjøfugler, ørn, niser, havoter og elg og rådyr. I tillegg byr område på mange flotte naturopplevelser både på sjø og land. Skulle man ønske å ta det hele i skue, kan man ta en tur på de mange fjelltoppene som Kiran kan by på. På klare dager, kan man se Almenningen, Værøya og ikke minst beskue Arnsteinsundet og det åpne hav...
På fine dager kan du også ta en turen med båt for å besøke Stokkøya og Lindsøya
Vakre Kiran kan tilby noe for alle. Er du en aktiv person som ønsker å gå lange turer, løpe, sykle, eller bare en som vil spassere for å beskue naturen. Kiranfjellet er et populært turområde for beboende og turister. Veien/stien opp til Kiranfjellet er pent opparbeidet, og har lett fremkommelighet for alle og hvermann. Følger du denne stien, vil du møte 6 (små) flotte ferskvann med fiskemuligheter. På toppen av Fjellet vil du møte en fantastisk havutsikt, som bare må nytes og ikke minst sees!
Ønsker du å ta turen til butikk eller nærmeste båthavn, er det kun 10-15min gange fra hyttefelt.
Nordskjørvika hyttefelt på Kiran i Åfjord Kommune, ligger knappe 2 timers kjøretur fra Namsos og Steinkjer via Fv715 (ca 130km).. Fra Trondheim via F715 er det ca (152 km) ca 3 timer kjøretur.
Ta av ved Roansveien/Reppkleivbrua og følg F715 til dere kommer til Kiran (Nordskjørveien)30km/ 35min. Hyttefelt er skiltet `Saltdalshytta`
Generelt
Følgende er med i vår leveranse:
Hytte kan leveres som som byggesett pluss fra kr 2 290 000,- Pris er Eksl betong, grunnarbeid og tomt.
Ta kontakt for ytterligere informasjon og priser!
Byggesett Pluss: Elementbasert byggesett pluss innvendige materialer. Dette er en løsning hvor du får hyttas råbygg (dvs yttervegger og tak) levert som byggesett, pluss en innvendig materialpakke som bl.a. innbefatter isolasjon, panel og listverk til vegger og tak, våtromsplater til bad, og loftstrapp til hytter med loft. Du kan montere byggesettet og innrede hytta selv, eller leie inn tømrere til å gjøre hele jobben eller deler av den. Selv uten fysisk egeninnsats, kan du ved å være egen prosjektleder ha fleksibiliteten til å fordele kostnader utover en lengre periode. Du styrer du selv når du ønsker å leie inn snekkere, elektrikere og rørleggere for å ferdigstille bygget.
Romslige og attraktive tomter på ca 1,8mål, plasert på lyngmark og fjell med nydelig havutsikt - her kan man nyte solnedgangen som farger himmelen rød!
Tomtene vil bli tilpasset terrenget, og vil ligge på ulike høyder som naturlig følger.....
Tomt har framlagt vei, vann, kloak/avløp og strøm
Saltdalshytta ÅSEBU annonseres som byggesett pluss, her vil du hovedsaklig stå for litt egeninnsats og prosjektering. Hytte på denne tomt er kun tenkt som et forslag til dere, vi har mange ulike modeller og ferdighetstillelsesgrad hvis det skulle være ønskelig.
Bildene/ekstriør fra Saltdalshytta er kun en ilustrasjon og viser behandlet materialer (tilvalgsmaterialer) utv og innvendig. Materialer på alle Saltdalshytter leveres med ubehandlet kledning (utvendig og innvendig) før tilvalg.
Det er tilgang til båtplass hvis dette skulle være ønskelig!
Tomtekostnader:
Tomt 2 kr: 449 000,-
Tomt 3 kr: 399 000,-
Tomt 4 kr: 399 000,-
Tomt 5 kr: 449 000,-
Tomt 6 kr: 500 000,- (solgt)
Det må påregnes kostnader for: dokumentavgift for kjøp/salg av tomt, påkoblingsavgift vann og kloak, tilknytting av strøm.
Adkomst/Tomteforhold
Sørvendte tomter med fantastisk utsikt over fjord, hav og svaberg
Det tilbydes store tomter på hyttefeltet, (ca 1,8mål pr tomt)
Innhold
Grunn og FundamenterIkke med i tilbud!
Kontrakt
Det utarbeides 2 stk kontrakter. (1stk kontrakt for tomt, og 1 stk kontrakt for hytte)
Standard
Olavsbu er en av våre moderne hyttemodeller, med et oppgradert og moderne eksteriør. Her er kjøkken og stua er plassert med god takhøyde og fornuftig plassering av vindusflater som skaper en fantastisk utsikt.
Tre gode soverom og et flott kjøkken fra Leverandøren JKE er plassert i hver sin fløy. Planløsningen inneholder en bod/teknisk rom, som også kan benytte som vaskerom.
Adkomsten er lagt til hyttas bakside som vil være naturlig på tomtene.
Standard
Ta kontakt med megler for komplett informasjon
Nærområdet
Saltdalshytta - Mesterbygg AS
Annonseinformasjon
| FINN-kode | 222860901 |
|---|---|
| Sist endret | 23. sep. 2025 11:52 |
| Referanse | Moderne hytte på Kiran i Roan |
Annonsene kan være mangelfulle i forhold til lovpålagt opplysningsplikt. Før bindende avtale inngås oppfordres interessenter til å innhente komplett informasjon fra meglerforetaket, selger eller utleier.



























