Bildegalleri

NYHET! Ekte nøkkelferdig Abea hytte på Høgefjell!
- Omkostninger
- 100 000 kr
- Totalpris
- 3 510 000 kr
Nøkkelinfo
- Beliggenhet
- På fjellet
- Boligtype
- Hytte
- Eieform
- Eier (Selveier)
- P-plasser
- 2
- Tomteareal
- 700 m² (eiet)
- Soverom
- 3
- Sengeplasser
- 9
- Meter over havet
- 800
Fasiliteter
Visning
Ta kontakt for å avtale visning.Om eiendommen
Beliggenhet
Fantastisk beliggenhet på Lifjell/Høgefjell med utiskt mot Norsjø og utover dalene!
Lifjellområdet er et fjellplatå mellom Seljord, Notodden og Bø. Høyfjellsterrenget er som et Jotunheimen i miniatyr med et 20 talls topper over 1100 moh.
Tomtene våre ligger kun 10 km unna Bø sentrum, noe som gjør Lifjell til en helårs destinasjon. Mellom hyttefeltet vårt H4 går skiløypa ned til Lifjell skisenter det er ca. 800 m ned, hyttetomtene har ski-out men du må labbe hjem igjen. Ellers så er det over 80 km oppkjørte langrennsløyper, her er det mye forskjellige løyper både for store og for små. Ved sommerstid så byr området på helt fantastiske turmuligheter til fots, og for de som er veldig interesserte finner man mange flotte fiskevann på lifjell. En liten tur unna ligger lifjellstua, her tilbyr de restaurant, overnatting, konferanser, mm.
Hyttetomten ligger i H4.
Generelt
Nøkkelferdig hytte på tomt 1-59 fra 3.410.000,-
Tomt 850.000,-
Grunnarbeid og fundament 470.000,- (estimert pris)
Nøkkelferdig hytte 2.090.000,-
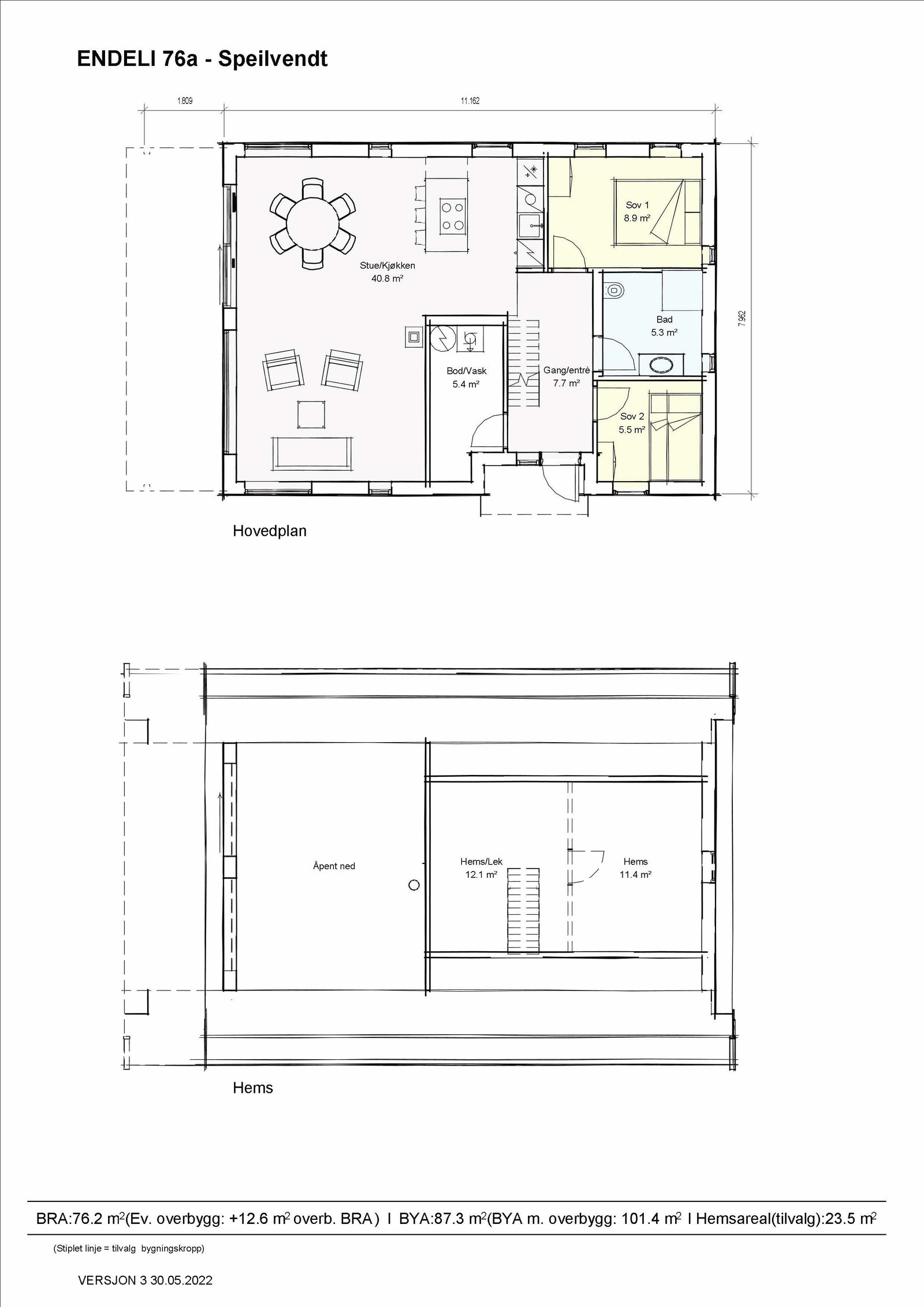
Endeli 76
Nøkkelferdig 2 090 000,-
BRA 76m2
Innredet hems med trapp kan leveres for kun 160.000,-. Hemsareal 29m2.
Tilvalg som takoverbygg og trekantvinduer i frontgavel gjør seg veldig godt på denne hytten.
Hyttene leveres nøkkelferdig og klar til bruk og inkluderer byggesak. Hytten kan speilvendes, og det tilbys mange flotte tilvalg beskrevet i leveransebeskrivelse.
Vi tilbyr to alternative planløsninger. Endeli 76a er vår standardløsning med romslig stue/kjøkken og 2 soverom.
Endeli 76b har et ekstra soverom og leveres til samme pris.
• Bad: 1
• Soverom: 2-3
• BRA: 76,2m2 (+12,6m2 overbygg)
• P-rom: 76,2m2
• BYA: 87,3m2 (+14,1m2 overbygg)
• Hems: 23,1
Link til 3D modell av hytta: https://my.matterport.com/show/?m=3o4ZAtqRXKx
Se også link til leveransebeskrivelse og nettside til ABEA Hytter.
Adkomst/Tomteforhold
Fra OSLO / DRAMMEN opp til 2 timer kjører man rimelig køfritt E 134 fra Drammen til Notodden, så over flyplassen til Sommarland, og Lifjellvegen til høyre forbi ny Høyt og Lavt Klatrepark opp på fjellet. Etter skisenter er det første bomvei til venstre, ring 92666060, så åpner jeg bommen for dere. Etter bommen er det inn i solskinnsdalen og så til venstre to ganger og over bru og opp på toppen av Høgefjell.
Fra VESTFOLD opp til 2 timer kjører man til E-18 Skien og tar RV 36 i retning Notodden, ta til høyre mot Lifjell i Bø sentrum. Ved Sommarland ta så opp Lifjellvegen til venstre og kjør forbi nytt Høyt og Lavt Klatrepark opp på fjellet. Etter skisenter er det første bomvei til venstre, ring 92666060, så åpner jeg bommen for dere. Etter bommen er det inn i Solskinnsdalen og så til venstre to ganger og over bru og opp på toppen av Høgefjell.
Til Bø er det også god kollektiv transport forbindelse. Det går direkte tog fra Oslo og Sørlandsbanen går igjennom bø. Det er også god buss forbindelse fra Oslo og Vestfold.
Lett skrånende fjelltomt med vei, vann, avløp, fiber og strøm i tomtegrensen. Naturtomt selveier. BYA (bebyggbart areal er maks 125 m2 på hovedhytta). Mønehøyde er 5,5 meter. Tomtene ligger på 735 meter over havet. Vi har flere forskjellige hyttetyper som du kan få bygget på tomtene på Høgefjell Panorama, du står fritt i valg av hytte!
Kontakt
Kontrakt er todelt. Det skrives kontrakt for kjøp av tomt med Høgefjell Panorama AS og egen kontrakt for hytte inkl. grunnarbeider og fundament etter bustadsoppføringslova og Norsk Standard. Betaling skjer ved prosentvise delbetalinger når byggeprosessen når definerte mål i fremdriften. Kjøpekontrakt for tomten signeres separat mellom grunneier og kjøper.
Innhold
Standard
Litt om Abea Hytter
Abea Hytter ble startet av tre familier som ønsket seg en moderne hytte med særpreg, krav til lite vedlikehold og fornuftig pris. Vårt kontor og produksjonslokaler holder til sentralt på Østlandet, i Øvre Eiker kommune.
Abea produserer elementer innendørs i egne produksjonslokaler. Vi velger kortreiste, norske materialer, og dette holdes tørt og fint innendørs.
Siden vi produserer elementene på Østlandet, sparer vi klimaet for store CO2 utslipp som skyldes transport over landegrenser. Lokalproduksjon av elementer resulterer i høyere kvalitet og effektiv fremdrift. Dette kommer kunden til gode i form av raskere byggetid, fornuftige priser og høyere kvalitet.
Ta kontakt med megler for komplett informasjon
Nærområdet
Høgefjell Panorama AS
Annonseinformasjon
| FINN-kode | 209098561 |
|---|---|
| Sist endret | 03. okt. 2022 09:08 |
| Referanse | Tomt 1-59 |
Annonsene kan være mangelfulle i forhold til lovpålagt opplysningsplikt. Før bindende avtale inngås oppfordres interessenter til å innhente komplett informasjon fra meglerforetaket, selger eller utleier.







