Bildegalleri

PrivatMegleren v/Pernille Enger Lunn har gleden av å presentere denne innholdsrike og flotte hytta, beliggende i idylliske Espedalen Fjellgrend!
Tiltalende hytte med panoramautsikt og flotte solforhold | Turmuligheter rett utenfor døra med langrenn inn/ut
- Omkostninger
- 122 340 kr
- Totalpris
- 4 312 340 kr
- Kommunale avg.
- 26 604 kr per år
- Formuesverdi
- 1 196 250 kr
Nøkkelinfo
- Beliggenhet
- På fjellet
- Boligtype
- Hytte
- Eieform
- Eier (Selveier)
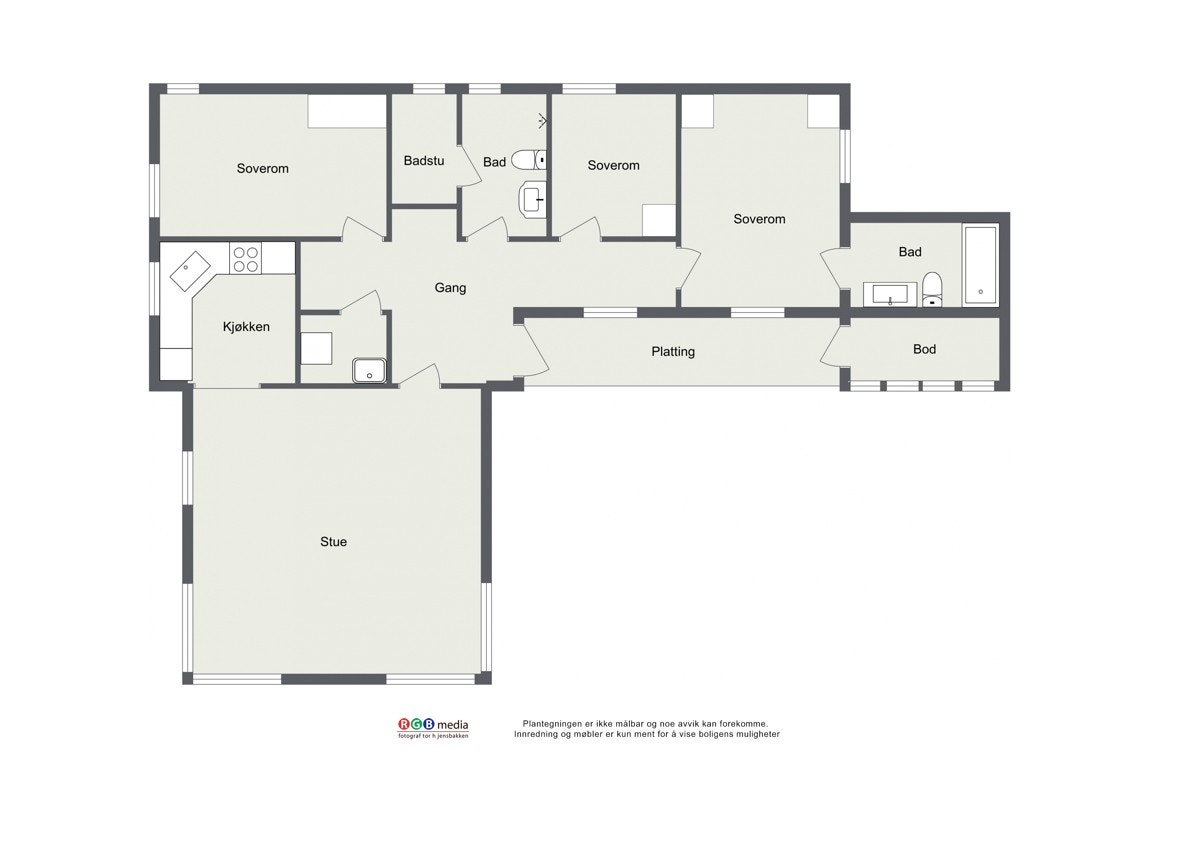
- Internt bruksareal
- 90 m² (BRA-i)
- Bruksareal
- 94 m²
- Eksternt bruksareal
- 4 m² (BRA-e)
- Tomteareal
- 1 443 m² (eiet)
- Byggeår
- 2009
- Soverom
- 3
- Rom
- 4
- Sengeplasser
- 6
- Energimerking
- D - Oransje
Fasiliteter
Visning
Husk å lese komplett salgsoppgave før visning. Bestill komplett, utskriftsvennlig salgsoppgave.
VisningspåmeldingOm boligen
PrivatMegleren Lillehammer har gleden av å presentere denne innholdsrike og tiltalende hytta med spektakulære utsiktsforhold. Hytta ligger høyt og fritt ca. 830 m.o.h. i Espedalen Fjellgrend med skiløyper rett utenfor døra.
Hytta fremstår godt ivaretatt med bruk av kvalitetsmaterialer. Store vinudsflater gir godt med lys inn i hytta samtidig som utsikten kan nytes. Den gode takhøyden gir rommene en luftig og god atmosfære. Gulvet i stue og på kjøkken er nylig slipt og lakket.
Hytta er et perfekt utgangspunkt for naturopplevelser sommer som vinter. Fra hytta har man fantastiske turmuligheter, enten det er til fots, på ski, randonee, eller på sykkel. Her får du virkelig følelsen av fjell, stillhet og ro!
Ta kontakt dersom du ønsker visning eller har andre spørsmål!
Salgsoppgaven beskriver vesentlig og lovpålagt informasjon om eiendommen
Se komplett salgsoppgaveNyttige lenker
Nærområdet

PrivatMegleren Lillehammer
Annonseinformasjon
| FINN-kode | 201667032 |
|---|---|
| Sist endret | 24. nov. 2025 15:55 |
| Referanse | 55200484 |
Annonsene kan være mangelfulle i forhold til lovpålagt opplysningsplikt. Før bindende avtale inngås oppfordres interessenter til å innhente komplett informasjon fra meglerforetaket, selger eller utleier.














































