Bildegalleri

Bilde av oppførte like hytter
OPPGRADERT Hytte på selveiertomt med 4 soverom i Fidjeland Fjellgrend, Begge seksjoner er solgt
- Omkostninger
- 118 883 kr
- Totalpris
- 4 108 883 kr
Nøkkelinfo
- Beliggenhet
- På fjellet
- Boligtype
- Hytte
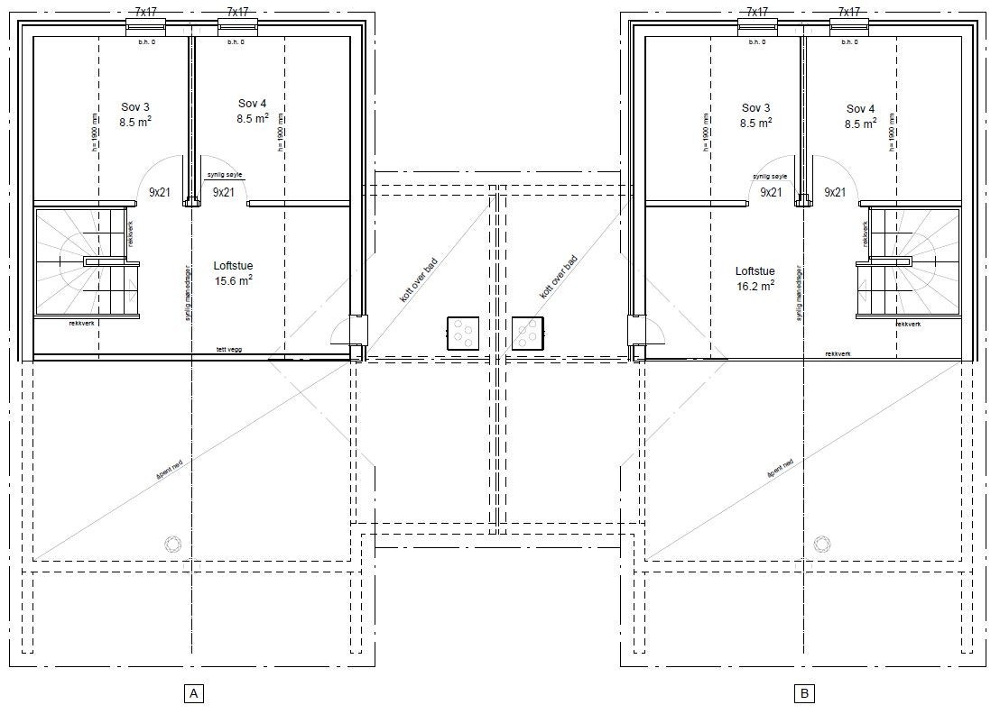
- Soverom
- 4
- Meter over havet
- 730
Fasiliteter
Om eiendommen
Beliggenhet
Fidjeland Fjellgrend ligger fantastisk til på Fidjeland nærmere bestemt på et platå like ovenfor Sirdal Høyfjellshotell og rett ved siden av Fidjeland Skisenter. Her har du ikke bare fantastisk utsikt og gode solforhold, men også fasiliteter som: felles varmestue, akebakke, umiddelbar nærhet til langrennsløyper/turer, Fidjeland skitrekk og Sirdal Høyfjellshotell.
Det tar ca. 1,5 timer å kjøre i fra Stavanger/Sandnes området. Du kan enten kjøre via Hunnedalen eller via Tonstad. Ta av ved GP og følg Sirdalsveien RV 795 i ca. 15 min. Sving av ved Sirdal Høyfjellshotell og følg veien videre opp forbi hotellet.
Kanskje det mest snøsikre området i Sirdal?
Generelt
Til våren, når snøen forsvinner, starter vi opp bygging av hyttetypen Jogla på tomt 3 i Fidjeland Fjellgrend. Seksjon 1 er for salg. Hytta vil være klar for overtakelse til Jul 2021.
Du har mulighet for å påvirke materialvalg og også planløsning tilpasset Deres ønsker og behov.
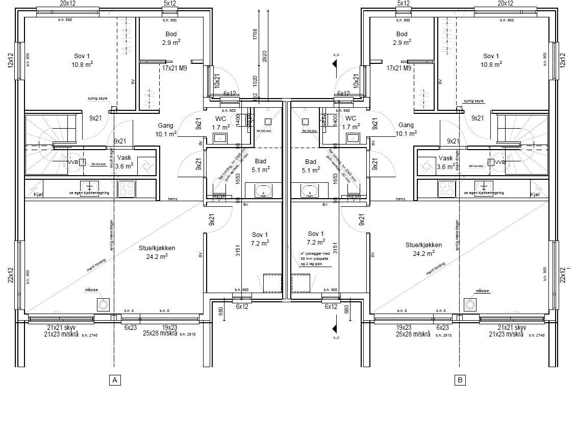
Denne hytta er oppgradert i forhold til originalhytta. Her får du med ekstra gjestetoalett, våtrom under trapp, ekstra varmekabler og utvidet terrasse.
Her har du mulighet for ski-in og ski-out. Du trenger ikke å starte bilen før du faktisk skal dra hjem igjen.
Fidjeland Fjellgrend skal opparbeides med en felles varmestue, akebakke og løypenett internt på feltet. Du vil kunne kjøre til hytten, også på vinteren. Så her slipper du å måtte bære på matvarer og bager fra felles parkeringsanlegg.
Hytta leveres med:
Balansert ventilasjonsanlegg.
Innvendige vegger leveres med ubehandlet glattpanel 14 x 145 mm.
Vegger i dusj på bad leveres med membran og fliser. Resterende vegger på bad leveres med ubehandlet glattpanel 14 x 145.
Skråtak og himlinger leveres med ubehandlet glattpanel 14 x 145 mm
Gulv aller rom - våtrom leveres med Boen Eik Pop hvit el. tilsvarende 1 stavs eikeparkett. Gulv bad og vindfang leveres med membran og fliser inkl. sokkelflis.
Det er mulighet for å få ferdig beiset panel mot tillegg.
Det medfølger kjøkken inkl. hvitevarer iht. kjøkkentegninger. Ta kontakt for tegninger.
På bad medfølger det 90 cm baderoms innredning og speil med ledlys. Vegghengt WC og 90cm dusjdør med klart herdet glass
Det medfølger varmekabler i rommene: bad, gang, gjestetoalett, vårtom under trapp og bod.
Til oppvarming medfølger stålpipe og vedovn av type: Ild 9
Adkomst/Tomteforhold
Omkostninger
Pris Jogla vertikaldelt på tomt 3: kr. 3.990.000,-
I tillegg til kjøpesum kommer følgende omkostninger:
- Tinglysingsgebyr skjøte kr. 585
- Tinglysingsgebyr pr. panterett kr. 585
- Dokumentavgift kr. 2,5% av tomteverdi
- Kartforretning kr. 11.399
- Tilknytning til vann og kloakk kr 81.314
Innhold
Standard
Ta kontakt med megler for komplett informasjon
Nærområdet
Mesterhus - Norrøn Bolig AS
Annonseinformasjon
| FINN-kode | 201614873 |
|---|---|
| Sist endret | 15. jan. 2021 10:33 |
| Referanse | X Jogla tomt 3 X |
Annonsene kan være mangelfulle i forhold til lovpålagt opplysningsplikt. Før bindende avtale inngås oppfordres interessenter til å innhente komplett informasjon fra meglerforetaket, selger eller utleier.
























