Bildegalleri

Velkommen til vår "Falketind XL" hytte, i toppen av Uvdal skisenter. Hytta er under oppføring, og vil stå klar i slutten av november.
Flott ny arkitekttegnet ski in/out-hytte på 1.000 moh i toppen av Uvdal skisenter. Klar des 2020
- Omkostninger
- 22 300 kr
- Totalpris
- 4 472 300 kr
Nøkkelinfo
- Beliggenhet
- På fjellet
- Boligtype
- Hytte
- Eieform
- Eier (Selveier)
- Bruksareal
- 130 m²
- Tomteareal
- 829 m² (eiet)
- Byggeår
- 2020
- Soverom
- 4
- Meter over havet
- 1000
Fasiliteter
Om eiendommen
Beliggenhet
Ta kontakt for visning! Hytten ferdigstilles i midten av desember.
Nå kan du sikre deg hytte på en av de flotteste tomtene øverst i Uvdal Alpinsenter. Hytten har en beliggenhet på 1000 moh, og har en fantastisk utsikt oppover og nedover i Uvdal, samt innover i fjellet mot Imingfjell.
Den ligger lunt og usjenert til, og har gode solforhold.
Rett utenfor hytta har du alpinbakken, og du kan gli rett fra hytta og ut i toppen av alpinsenteret. Herfra kan man også gå på ski eller beina rett fra hytta, opp på fjellet og til Hardangervidda.
Uvdal Alpinsenter er kjent for god plass og flyt i skiopplevelsen, og det er få bedre alternativer på Østlandet som i tillegg tilbyr et variert spekter av alpinmuligheter. Fra toppen av fjellheisen og nedover i dalføret finner du tilsammen 25 nedfarter: alt fra brattheng til en splitter ny terrengpark til lange slake løyper, med en høydeforskjell på hele 620m og lengste nedfart på 6200m. Fjellheisen gir deg direkte adkomst til Hardangervidden. Varmestuen midt i bakken byr på noe varmt å spise og godt å drikke. Det er også ett barneskitrekk og miniskileik for de aller minste. Senteret er med andre ord godt tilpasset de fleste behov – fra nybegynnere til småbarnsfamilier til mer erfarne kjørere.
Kommunen har også ellers mange flotte turområder sommer som vinter. Det er et meget godt utbygd skiløypenett, med mange av løypene lokalisert i nærheten av alpinsenteret.
Sommerstid er det også et stort antall merkede stier som kan benyttes.
Det er mange flotte setre, og fjellområder med flott utsikt.
Nærliggende områder
Geilo ligger ca 45 min unna i bil hvor det er et godt utvalg av aktiviteter, restauranter og butikker.
Dagali er ca. 20 minutters kjøring hvor det er flere fartsfylte opplevelser med kjelkekjøring, snøskuter safari, paintball, rally på isen, hesteridning og rafting på sommeren.
Generelt
Møblering
Hytten selges umøblert.
Oppvarming
Peisovnen i stuen varmer godt på kalde dager og danner den rette hyttestemningen. Elektrisk oppvarming i de rom det er montert.
Begge bad og entre har elektrisk gulvvarme på flisgulv.
Adkomst/Tomteforhold
Uvdal alpinsenter ligger flott til ved foten av Hardangervidda, ca. 2,5 - 3 timer fra Oslo og Vestfoldbyene, og ca. 40 minutter fra Geilo.
Fra Kongsberg: Følg fv. 40 opp til Dagalifjell. Sving av til venstre mot Uvdal Alpinsenter. Kjør veien som går til høyre foran alpinsenteret, og følg denne helt til enden, før du tar til venstre og kjører oppver til toppen av Uvdal Alpinsenter.
Det er solid vei til feltet som holder dagens standard og sikrer at du kommer deg til hytta på en rask, sikker og komfortabel måte.
Ordnede forhold på sommer- og vintervedlikehold av vei.
Høystandard løsninger med kommunalt vann- og avløp.
Hytten leveres med ferdig opparbeidet stikkvei og grovplanert uteområde, hvor man, i størst mulig grad, tar vare å fjellets naturlige karakter.
Diverse
Faste, løpende kostnader
Kommunale avgifter etter gjeldene satser i Nore og Uvdal kommune.
Ingen eiendomsskatt i Nore og Uvdal kommune.
Vann/avløp, renovasjon, strøm, medlemskap forening og brøyting
Omkostninger
1. Dokumentavgift til staten: 2,5% av tomteverdi
2. Tinglysingsgebyr skjøte kr. 525
3. Evt. tinglysingsgebyr for pantedokument kr. 525
Dette utgjør samlet kr. 22.300,-
Innhold
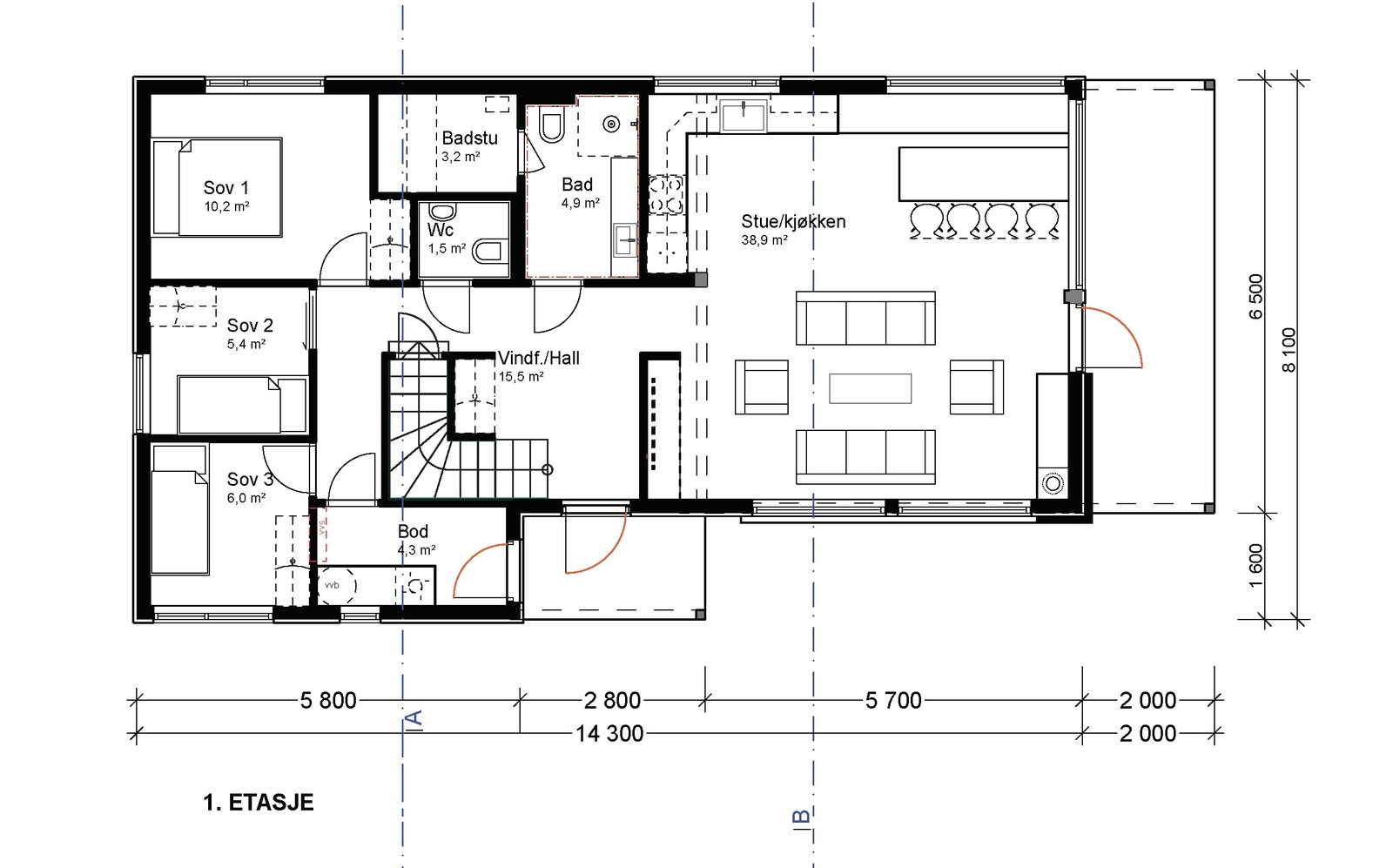
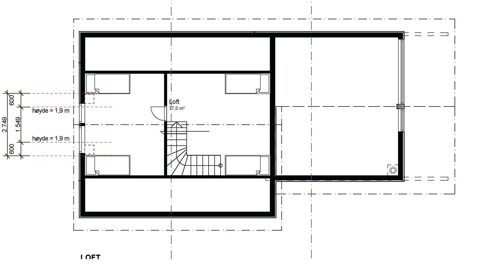
Gulvareal: 130 kvm. 1.etg - 93,2 kvm, 2. etg 37 kvm (BRA 22,6 kvm)
BRA: 116 m2
BYA: 123 m2
1. Etasje: Entrè, bad m/badstu, wc, 3 soverom, bod, stue og kjøkken.
2. Etasje: 1 soverom og tv-stue/soverom
Stor solrik terrasse utenfor stuen.
Standard
Arkitekttegnet hytte (fra Vårdal Arkitekter) med familievennlig løsning. Store vinduer med god utsikt utover mot fjellene. Hytten har god standard, gode materialvalg og en arealeffektiv planløsning.
Entrè:
Hytten har en romslig entré med god plass til garderobeløsning og oppheng av yttertøy. Entréen er fliselagt med mørk grå 60x60 flis med gulvvarme.
Stue & kjøkken:
Stue og kjøkken har store vinduer som gir deg storslagen utsikt fra både sofakroken og spisebordet. Delikat mørkt kjøkken med tidløst design og gode løsninger. God arbeidsplass og integrerte AEG hvitevarer som oppvaskmaskin, kombinert kjøl/fyrs, platetopp og ovn.
Ved kjøkkenet har man plass til et større spisebord hvor hele familien kan samles. Fra spisebordet har man full utsikt.
TV-stue:
I 2. etasje er et av rommene tiltenkt tv-stue eller soverom, etter behov.
Soverom:
Hytten har mulighet for 5 soverom. 3 av disse er i 1. etasje, og 2 soverom i 2. etasje. Ett av disse rommene kan også brukes som tv-stue.
Bad:
Delikat bad som innbyr til hygge og velvære. Badet har beiset panel på veggene og flislagt gulv og dusjsone. Gulvvarme samt moderne baderomsinnredning med speil og belysning. Det er badstue med direkte inngang fra badet.
I tillegg til dette er det en wc.
Bod:
Innvendig bod med fliser på gulv. Her står varmtvannsbereder, sikringsskap, vannmåler, og fordelingsskap vann.
Det er både innvendig og utvendig dør til boden.
Oppsummering av hyttens kvaliteter:
- Ferdig beiset ut- og innvendig
- Torv på taket
- Skiferstein i fasade utvendig og innvendig
- flott 3 stavs parkett på alle rom
- kvik kjøkkeninnredning med laminat benkeplate og nedfelt sort vask. Samt integrerte AEG hvitevarer
- Scan peisovn
- Stor solrik terrasse, med fantastisk utsikt over Uvdal og fjellene rundt
- Skyggepanel, beiset i fargen "drivved"
- Fliser med gulvvarme i entré og badene
- Utvendig belysning
Forbehold om feil i annonsen
Ta kontakt med megler for komplett informasjon
Nærområdet
SIBAS Eiendom AS
Annonsene kan være mangelfulle i forhold til lovpålagt opplysningsplikt. Før bindende avtale inngås oppfordres interessenter til å innhente komplett informasjon fra meglerforetaket, selger eller utleier.

























