Bildegalleri

Velkommen til splitter ny Saga hytte fra Nordlyshytter - 100 % Innflytningsklar!
Ny og moderne oppstuguhytte på utsiktstomt! "Ski in/out" og gangavstand til alle fasiliteter - Innflytningsklar i mai!
- Omkostninger
- 20 000 kr
- Totalpris
- 3 710 000 kr
Nøkkelinfo
- Beliggenhet
- På fjellet
- Boligtype
- Hytte
- Eieform
- Eier (Selveier)
- P-plasser
- 2
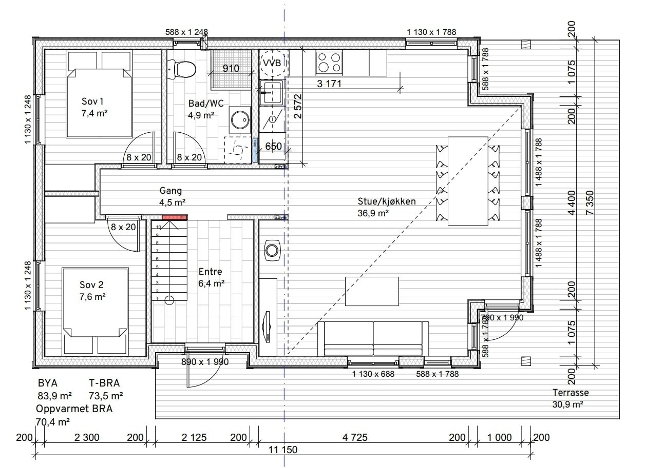
- Bruksareal
- 111 m²
- Tomteareal
- 1 050 m² (eiet)
- Byggeår
- 2020
- Soverom
- 4
Fasiliteter
Visning
Ta kontakt for å avtale visning.Om eiendommen
Beliggenhet
Nå kan du sikre deg en ny og moderne familiehytte på Rytterspranget på Gautefall. Hytta har flott utsikt fra de store vinduene og gangavstand til alle fasiliteter på Gautefall. Fra feltet kan man renne rett ut i skiløypene, eller gå en tur opp til Rytterspranget Café. Hytta er klar for overtakelse ila. mai 2020!
Denne hytta har fire soverom (2 i første etasje og 2 i andre etasje), to bad, badstue og egen hemsstue. Hytta har store kjøkken- og stuearealer, og terrasser både i første og andre etasje. Hytta er perfekt for storfamilien, enten man ønsker å samles, eller trekke seg tilbake i hver sin etasje.
Rytterspranget ligger på toppen av Gautefallheia i Drangedal kommune i Telemark fylke. Gautefallheia ligger mellom Drangedal og Nissedal/Treungen. Gautefall er en familiedestinasjon med fokus på barn og barnefamilier. Vår nærmeste nabo, Gautefall skisenter, er et topp moderne alpinsenter med mange skitrekk og 16 nedfarter. Den nyeste skiheisen er en 6-seters ekspressheis som tar deg til toppen på 3 minutter. Ikke minst har skisenteret to barnevennlige rullebånd for de minste. Snøkanonanlegg sikrer gode forhold gjennom hele vinteren.
Med hytte på Rytterspranget får du tilgang til alt dette rett utenfor hyttedøra:
- Ski inn/ut til et av Telemarks største og mest moderne skisenter
- Tilgang til nydelig natur og Gautefalls spesielle svafjell-topografi (se bilder)
- Over 5 mil maskinpreparerte langrennsløyper
- Over 10 mil merkede stisyklingsløyper
- Asfaltert lysløype til bruk hele året
- Gangavstand til kafeer, hotell, afterski, restaurant m.m.
- Over 100 fiskevann
Vår påstand er: Få eller ingen steder slår Gautefall om du har lyst til å bruke hytta året rundt!
Generelt
Prisen som er oppgitt inkluderer tilkoblingsavgifter og alle andre omkostninger, med unntak av dokumentavgift på tomt og avgifter knyttet til skjøte. Totalt ca. 20.000,-
Gautefalltomter as tar forbehold om trykkfeil og at alle typer endringer kan skje på kort varsel.
Adkomst/Tomteforhold
Se eget kart. Rytterspranget på Gautefall er nærmeste nabo til Gautefall Skisenter. Ta av veien like før man ankommer skisenteret når man kommer fra Drangedal, eller like etter skisenter når man kommer fra Nissedal.
Har du hytte på Gautefall er det kort vei til hytta;
- Kun litt i overkant av en time å kjøre fra Arendal, Skien og Porsgrunn.
- Under to timer fra Kristiansand.
- Under to timer fra Tønsberg.
- Under tre timer fra Oslo
Selvbetjent visning
På Gautefall tilbyr vi både personlig og selvbetjent visning! Ta kontakt med oss for personlig visning, eller les mer om selvbetjent visning på hjemmesiden eller i prospektet. Våre felter har over 80 byggeklare tomter man kan besøke akkurat når det passer deg best. Ved hjelp av prospekt som man får ved inngangen til feltet vil man få nøkkelferdige priser på over 30 ulike hyttemodeller, mens man står på tomtene.
Innhold
Standard
Salgsoppgaven beskriver vesentlig og lovpålagt informasjon om eiendommen
Se komplett salgsoppgaveNyttige lenker
Nærområdet
Gautefalltomter AS
Annonseinformasjon
| FINN-kode | 169684710 |
|---|---|
| Sist endret | 01. mai 2020 09:34 |
| Referanse | Trysilferdig Gautefall |
Annonsene kan være mangelfulle i forhold til lovpålagt opplysningsplikt. Før bindende avtale inngås oppfordres interessenter til å innhente komplett informasjon fra meglerforetaket, selger eller utleier.
















































