Bildegalleri

Hytte 2 forfra
SØGNE/ SKARPEID - NY HYTTE I SØGNES SKJÆRGÅRD MED FLOTT TAKTERRASSE
- Omkostninger
- 126 369 kr
- Totalpris
- 4 816 369 kr
Nøkkelinfo
- Beliggenhet
- Ved sjøen
- Boligtype
- Hytte
- Eieform
- Selveier
- Primærrom
- 92 m²
- Bruksareal
- 99 m²
- Tomteareal
- 356 m² (eiet)
- Byggeår
- 2019
- Soverom
- 3
- Rom
- 4
Fasiliteter
Visning
Ta kontakt for å avtale visning.Husk å lese komplett salgsoppgave før visning. Bestill komplett, utskriftsvennlig salgsoppgave.
Om eiendommen
Oppdragsnummer
12-19-0070
Adresse med betegnelse
Røsstadveien 281 E, Gnr. 436 Bnr. 8 i Kristiansand kommune.
Beliggenhet
Attraktiv beliggenhet på Skarpeid vest for Søgne. Fra hytten og terrasser er det fantastisk utsikt utover sjøen (Trysfjorden) og svært gode solforhold fra morgen til kveld. Område byr på en flott skjærgård med mange holmer og skjær. Trysnes og Ålo brygge ligger en kort båttur og kjøretur unna. Umiddelbar nærhet til båthavn og flotte badeplasser med blant annet et barnevennlig området i Salbustø.
Adkomst
Fra Kristiansand kjør til Søgne, ta av ved Lunde mot Ålo og følg veien forbi innkjøringen til Trysnes. Følg veien videre til du får innkjøring på venstre side merket med byggeplasskilt og skilt med A1 Eiendom. Følg veien opp bakken og ta til høyre. Boligen er merket med TIL SALGS-plakat fra Sørmegleren og det vil være skiltet ved fellesvisning.
Boligtype
Fritidseiendom
Eierform
Selveier
Ferdigstillelse
Det skal foreligge midlertidig brukstillatelse ved overtakelse. Det er selgers ansvar å fremskaffe ferdigattest på boligen. Kjøper er gjort oppmerksom på, og aksepterer at en slik ferdigattest normalt foreligger først noe tid etter overtakelsestidspunktet. Det forutsettes i så fall at det foreligger midlertidig brukstillatelse. Dersom ferdigattest ikke foreligger ved overtakelse, kan kjøper i medhold av bustadoppføringslovas § 31 holde tilbake et beløp på meglers klientkonto som sikkerhet frem til ferdigattest foreligger. Det gjøres oppmerksom på at tilbakeholdt beløp må stå i samsvar med forholdene som gjenstår for at ferdigattest kan foreligge. En uavhengig takstmann kan avgjøre rettmessig tilbakehold, og takstmann får da fullmakt til å frigi beløpet når forholdet som hindrer ferdigattest er utbedret.
Bygninger og byggemåte
Fritidsboligen er iht byggebeskrivelse kledd med 19x148 dobbelfalset tett Royalimregnert grå kombinert med 19x148 dobbelfalset tett grunnet hvit malt. Ringmur og støpt plate inngår, samt støpte utvendige terrasser. Takterrasse blir belagt med 60x60 fliser. Rekkverk på terrasse av flott glassrekkverk. Alle vinduer leveres med super energi glass. Takterrasse. Leveransebeskrivelse er vedlagt i salgsoppgaven.
Innhold
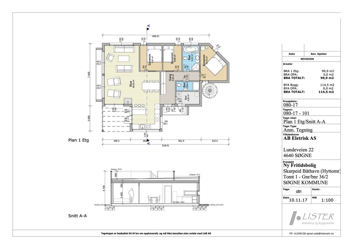
Totalt bruksareal: 99 m2
Totalt primærrom: 92,2 m2
Primærrom: Gang, 3 soverom, 2 bad og stue
Sekundærrom: Bod
Takterrasse.
Areal iht. tegninger. Areal er ikke kontrollmålt av megler. Avvik kan forekomme. Arealene er beregnet og rom er definert etter dagens faktiske bruk, uavhengig av hva som er godkjent av bygningsmyndighetene. Vedlagte planskisser er ikke målbare.
Standard
- Innvendige vegger og horisontale himlinger kles med gips som sparkles og males. Gulvlist 15 x 95 furu glattkant som males i samme farge som vegg. Ingen vindu/dørlister eller taklister. Foringer gipses og sparkles inn. Downlights i tak
- Store vindusflater og vinduer er malt i NCS S 0502Y hvit. Aluminiumskledd med RAL 7016 mørk grå antrasitt utvendig.
- Soverom, stue og kjøkken blir levert med laminat hvit / eik - Badene leveres med flis på gulv og vegg samt veggmontert wc, hvit innredning med heldekkende servant og dusjvegg i glass.
- Vaskerom leveres med 200 L varmtvannsbereder samt kran og avløp til vaskemaskin.
- Det er klargjort for smarthus løsning varme / lys, solcelle på tak, fiber inn i hytte og parabol.
Se forøvrig leveransebeskrivelsen i salgsoppgaven for ytterligere informasjon om standard
Diverse
- Hytteeier kan kjøpe eller leie 1 stk båtplass til markedspris på tidspunktet for kjøp av båtplass. Kjøper kan selv bestemme størrelsen på båtplassen. Som vedlegg til salgsoppgaven: Avtale om mulighet for kjøp av båtplass.
- Hytteeier plikter å koble seg til privat renseanlegg og betale årlig avgift for vann og avløp, samt felleskostnader til kostpris for drift av pumpestasjon og annet nødvendig utstyr. Tilkoblingsavgift til privat vann og avløp kr 85.000,- betales inn sammen med oppgjøret ved overtagelse.
Annet
Eiendommen vil få bla. følgende løpende kostnader:
- Drift, vedlikehold og vannforsyning av privat vann
- Drift, vedlikehold og forbruk av privat avløpsanlegg
- Renovasjon
- Eiendomsskatt iht kommunens satser for fritidsbolig
- Strøm
- Forsikring
- Vedlikehold av vei
- Evt hyttevelavgift.
Parkering
2 biloppstillingsplasser på tomten.
Oppvarming
Elektrisk. Varmekabel i gang, kjøkken og stue samt begge bad. Klargjort for smartstyring av varme i gulv. Dersom det er rom i boligen som ikke har vegg/fastmonterte ovner, så følger det heller ikke med ovner i disse rommene.
Tomt
Areal: 356 kvm, Eierform: Eiet tomt
Tomten er opparbeidet og leveres slik den femstår på visning.
Garantier
Boligene selges ihht. Lov om Bustadoppføring, og selger plikter å stille garanti på 3 % av kjøpesummen i byggetiden og 5 % av kjøpesummen i 5 år etter overlevering av leilighetene til kjøper. Eventuell overføring av innbetalt forskuddsbeløp fra megler til selger er avhengig av at selger har stilt garanti ihht. bustadoppføringslovas § 47.
Alle opplysninger i denne salgsoppgave er gitt med forbehold om rett til endringer som er hensiktsmessige og nødvendige. Alle perspektiver, modeller, illustrasjoner og møblerte planskisser er kun ment å gi et inntrykk av en ferdig bebyggelse, og det fremkommer da elementer som ikke inngår i den kontraktsmessige leveranse. Boligene overleveres i byggrengjort stand. I nyoppførte bygninger må forventes i noen grad svinn og krymping av materialer, for eksempel svinnriss i mur, mindre riss i maling ved skjøter, hjørner og sammenføyninger som følge av krymping av trevirke og betong o.l. Slike forhold er ikke å anse som mangler ved den leverte ytelse. Det gjøres spesielt oppmerksom på at Selgers plikt til å rette, eller yte prisavslag ikke omfatter: Reparasjoner som går inn under vanlig vedlikehold, sprekkdannelser som oppstår som følge av naturlig krymping når materialvalg og materialbehandling har vært forsvarlig fra Selgers side og skader som oppstår ved uforsvarlig eller feilaktig bruk av boligen med utstyr.
Kjøpekontrakter
Sørmeglerens standard kjøpekontrakt vil bli benyttet ved salget.
Selgers rett til endringer
Selger har rett til å foreta endringer i prosjektet som ikke vesentlig forringer prosjektets kvalitet eller standard, herunder arkitektoniske endringer, materialvalg, mindre endringer i konstruksjonen, rørgjennomføringer og/eller tomtetilpasninger. Slike endringer er ikke å anse som mangler ved ytelsen. Det samme gjelder de endringer som må gjøres som følge av kommunens byggesaksbehandling og krav i ramme- og igangsettingstillatelser, samt andre offentlige tillatelser. Selger skal så langt det er praktisk mulig, informere Kjøper om slike endringer.
Tilvalg / Endringer
Det er ikke anledning til å flytte på ventilasjonsanlegg, el-skap eller avløp og vanntilførsel. Mulig tilvalg vil være avhengig av fremdrift av innredningsarbeidene på kjøpstidspunktet. Adgang til tilvalg/endringer er begrenset til 15 % av kjøpesummen, og endringer og tilvalg vil medføre kostnader for kjøper/påslag fra utbygger. Alle tilvalg avtales direkte mellom kjøper og selger i en separat avtale, og faktureres direkte mellom partene.
Reguleringsplan
Området er regulert til fritidsbebyggelse. Reguleringsplan detaljregulering Skarpeid båthavn med tilhørende reguleringsbestemmelser. Kommuneplan med tilhørende bestemmelser 2018-2030 vedtatt 28.02.2019. På generell basis gjør vi oppmerksom på at det kan foreligge fremtidige planer hos kommunen for området rundt eiendommen, som megler ikke har mottatt opplysninger om.
Vei / Vann / Avløp
Privat vei. Tinglyst veirett over gnr 36 og bnr 2 med vedlikeholdsplikt. Tilknyttet privat vannverk. Privat avløpsanlegg. Tilkoblingsavgift til privat vann og avløp kr 85.000,- betales av kjøper.
Heftelser / Rettigheter
Heftelser som følger eiendommen:
- Dagbok: 905469- tinglyst 19.02.1932 Utskifting. Heftelsen er overført fra grunneiendommen gnr 36 og bnr 2
- Dagbok 902613 - tinglyst 17.02.1933 Utskifting. Heftelsen er overført fra grunneiendommen gnr 36 og bnr 2
- Dagbok 11095 - tinglyst 12.10.1977 Erklæring / Avtale. Gjelder utbyggingsrett for Trollneset
- Dagbok 10426 - tinglyst 04.09.1979 Erklæring/ Avtale. Gjelder byggeforbud på nærmere angitt avstand
- Dagbok 950 - tinglyst 17.01.1997 Jordskifte
- Dagbok 489254 - tinglyst 03.06.2015 Jordskifte. Gjelder ombytting av grunn/ rettighet i forbindelse med siktsone for adkomst.
- Dagbok 322714 - tinglyst 15.01.2018 Bestemmelse om veg. Gjelder veirett og alminnelig vedlikeholdsplikt over gnr 36 og bnr 2.
Fra hovedbølet som eiendommen er fradelt fra, kan det være tinglyst heftelser i form av erklæringer/avtaler som ikke fremgår av grunnboken for denne eiendommen. Det gjøres oppmerksom på at grunnboken er endret, slik at det ikke lenger er mulig for kjøpers bank å forutsette 1. prioritets pant der hvor det er tinglyste heftelser, som ikke skal slettes for selgers regning. Eiendommen blir overdratt fri for rene pengeheftelser med mindre annet er oppgitt.
Energiattest
Når en bolig selges før den er ferdig bygget, skal selger oppfylle plikten ved å garantere for energi- og oppvarmingskarakter, og lage fullstendig energiattest ved ferdigstillelse. Prosjektet bygges etter teknisk forskrift etter plan og bygningsloven, gjeldende fra 2010 (TEK 10).
Formuesverdi
Formuesverdien er p.t. ikke fastsatt.
Eiendomsskatt
Det er eiendomsskatt på kr. 1.360 ,- pr. år for denne eiendommen.
Konsesjon
Nei
Odel
Nei
Budgivning
Alle bud skal inngis skriftlig til megler. Det første budet må signeres, og budgiver må i tillegg legitimeres. Benytt "Gi bud"-knappen på våre annonser for å registrere ditt bud elektronisk. Dette er en enkel og sikker løsning som lar deg legitimere deg og signere budet elektronisk ved hjelp av BankID. Når første bud er gitt vil du motta en SMS-kvittering som du kan svare på for å gi eventuelle budforhøyelser. Budforhøyelser kan også gis ved å trykke "Gi bud" i våre annonser på nytt, eller via e-post, fax eller andre skriftlige metoder. Megler skal så snart som mulig bekrefte skriftlig ovenfor budgiver at bud er mottatt. Bud som ikke er skriftlig eller som har kortere akseptfrist enn til kl. 12.00 første virkedag etter siste annonserte visning vil ikke bli formidlet til selger. Et bud er bindende for budgiver når budet er kommet til selgers kunnskap. Selger står fritt til å akseptere eller forkaste ethvert bud, og er således ikke forpliktet til å akseptere det høyeste budet på eiendommen. Megler skal, i den grad det er nødvendig og mulig, informere de involverte i budrunden skriftlig om status i budgivningen. Megler er forpliktet til å legge til rette for en forsvarlig avvikling av budrunden, og for at budene skal kunne bli behandlet og videreformidlet skriftlig til alle involverte parter, må et hvert bud ha en tilstrekkelig lang akseptfrist. Selger må skriftlig akseptere budet før budaksept kan formidles til budgiver. Selger og kjøper har krav på å få utlevert kopi av budjournalen straks etter at handel er kommet i stand. Alle som har inngitt bud på eiendommen kan på forespørsel få en kopi av anonymisert budjournal etter at budrunden er avsluttet. For øvrig vises det til "Forbrukerinformasjon om budgivning", som er på baksiden av budskjemaet. Det forutsettes at hjemmel overføres til kjøper.
Visning
Som annonsert eller etter avtale med megler på tlf 95 00 00 00.
Overtagelse
Etter avtale.
Hvitvasking
Kjøper og selger er forpliktet til å bidra til at megler kan gjennomføre tilfredsstillende kundekontroll, og må derfor bl.a. fremlegge gyldig legitimasjon. Megler tar ikke imot oppgjør i form av kontanter eller bankremisse. Megler plikter iht. hvitvaskingsloven av 01.06.2018 å innberette mistenkelige pengeoverføringer.
Vederlag
Provisjon ( Kr. 40 000 )
Digital grunnpakke (Kr.3 990)
Totalt kr. (Kr. 43 990)
Lovverk
Boligene selges iht. bustadsoppføringslova av 13. juni 1997 nr. 43.
Bustadoppføringslova kommer ikke til anvendelse der kjøper anses som profesjonell/investor. I slike tilfeller vil handelen i hovedsak reguleres av lov om avhending av fast eiendom av 3. juli 1992 nr. 93. Leiligheter hvor bindende avtale inngås etter ferdigstillelse selges etter avhendingslovens normalregler. En eventuell mangels vurdering foretas etter avhendingslovens alminnelige regler, jf. § 3-7 og § 3-8. Dersom kjøper ikke er å anse som forbruker i henhold til avhendingsloven § 1-2 (3), gjøres det oppmerksom på at boligen selges som den er, jf. avhendingslovens § 3-9.
Finansiering
Vi anbefaler våre kunder å ta kontakt med vår samarbeidspartner Sparebanken Sør, på tlf. 38 10 92 00, for et uforpliktende tilbud.
Ansvarlig megler
Eiendomsmegler MNEF Geir Flaa Johansen
Sørmegleren AS org. nr.
944 121 331
Salgsoppgave og vedlegg
Salgsoppgaven med tilhørende vedlegg må gjennomgås før budgivning.
Komplett oversikt over alle dokumenter megler har mottatt fra det offentlige/forretningsfører er tilgjengelig på Sørmeglerens hjemmeside www.sormegleren.no/12-19-0070. Dokumentene kan også fås hos megler ved forespørsel.
Det tas forbehold om endringer i offentlige avgifter/gebyrer.
Salgsoppgaven beskriver vesentlig og lovpålagt informasjon om eiendommen
Se komplett salgsoppgaveNyttige lenker
Nærområdet
Eiendomsmegler Norge Kristiansand
Annonseinformasjon
| FINN-kode | 151771787 |
|---|---|
| Sist endret | 23. jan. 2020 14:29 |
| Referanse | 12190070 |
Annonsene kan være mangelfulle i forhold til lovpålagt opplysningsplikt. Før bindende avtale inngås oppfordres interessenter til å innhente komplett informasjon fra meglerforetaket, selger eller utleier.


















