Bildegalleri

Over- og underskapene sørger for rikelig med oppbevaringsplass, og de store arbeidsflatene innbyr til matlaging.
RØA/HOVSETER - Stor og gjennomgående 3-roms med vestvendt balkong på ca. 11 m² - Moderne kjøkken - Varmtvannt inkl. i fe
Nøkkelinfo
- Boligtype
- Leilighet
- Eieform
- Andel
- Soverom
- 2
- Primærrom
- 77 m²
- Bruksareal
- 77 m²
- Byggeår
- 1974
- Energimerking
- F - Rød
- Rom
- 3
- Tomteareal
- 5 456 m² (eiet)
- Boligselgerforsikring
- Ja
Fasiliteter
Innhold
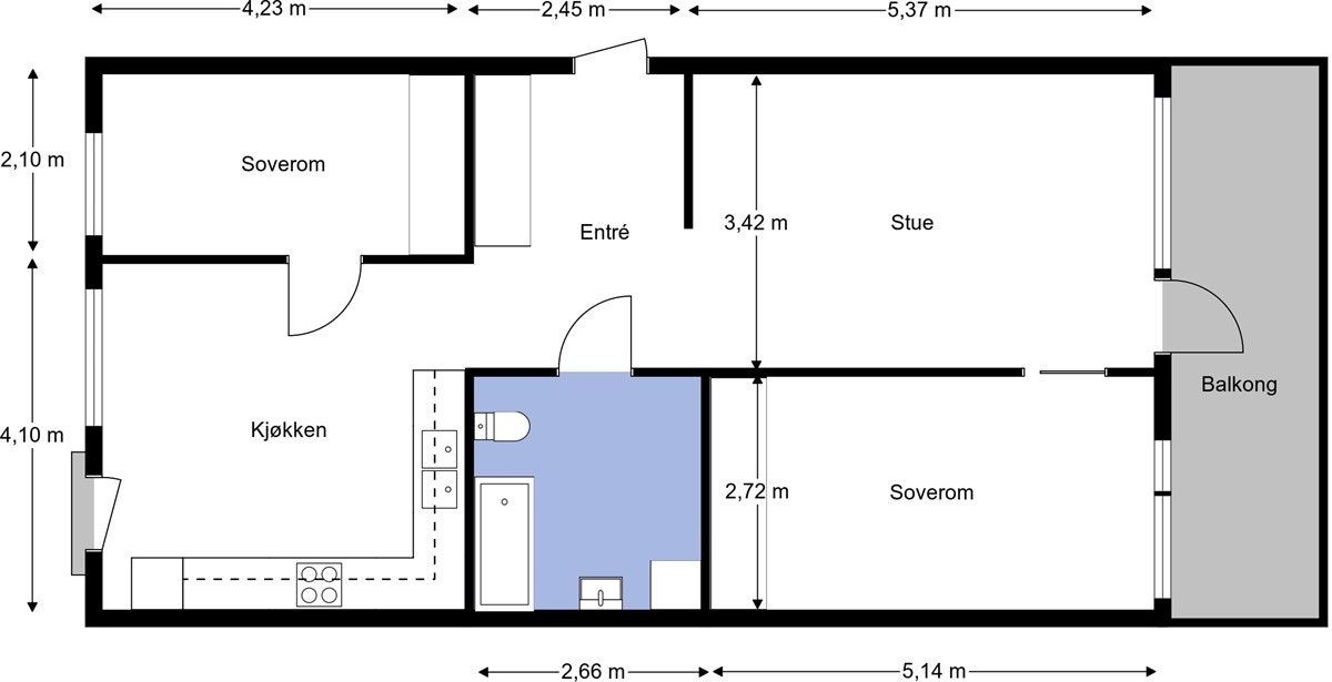
Marius Aasen og Aktiv Eiendomsmegling har gleden av presentere denne flotte og luftige 3-roms leiligheten i Hovseterveien 82 A! Her bor du i en høy 1. etasje og boligen har en gjennomgående planløsning med vindusflater i begge ender.
Leiligheten fremstår som velholdt med moderne fargepaletter, praktiske løsninger og solide materialvalg.
Verdt å nevne er boligens balkong, den romslige stuen og det store kjøkkenet. Boligen har en god planløsning, som passer for både liten og stor i familien.
Ønsker du en leilighet hvor du kan ta med deg flyttelasset og flytte rett inn? Da er dette den perfekte leiligheten for deg. Her bor du i et rolig område, men samtidig nær flere av Oslos mest populære områder. Ikke la denne muligheten gå fra deg! Vi gleder oss til å se deg på visning.
Eiendommen har følgende kvaliteter:
- Flott 3-roms beliggende i meget høy 1. etasje
- Enkel adkomst
- Gjennomgående planløsning med vindusflater i begge ender
- Entré med skyvedørsgarderobe
- Stort kjøkken med integrerte hvitevarer og god plass til spisegruppe
- Utgang til stor balkong vendt mot vest
- Fransk balkong fra kjøkken
- Lys og innredningsvennlig stue
- Stor balkong på ca. 11 m²
- To gode soverom med skyvedørsgarderobe
- Flislagt bad med opplegg for vaskemaskin
- Flott og skjermet beliggenhet
- Veldrevet borettslag med god rehabiliteringshistorikk
- Varmtvann inkl. i felleskostnadene
- Godt kollektivtilbud
- Gode treningsmuligheter, utendørs og innendørs
- Attraktivt og barnevennlig område
- Passer ikke oppsatt visningstidspunkt arrangeres privatvisninger fortløpende. Dette gjelder også i helgen.
Ta kontakt med megler Marius Aasen på 22871661/ 900 77 800 eller epost maa@aktiv.no, for å avtale visning eller om du har øvrige spørsmål.
Standard
En meget pen bolig med en hjemmekoselig og god atmosfære. Her har du gode material- og fargevalg, samt en god planløsning som gjør det enkelt å innrede. Med en luftig stue, et arbeidsvennlig kjøkken, romslig bad, en solrik balkong og en fransk balkong er dette kanskje drømmeboligen? Les videre og du vil få en nærmere beskrivelse av boligen:
Entré
Her ønskes du velkommen inn til det som kan bli ditt neste hjem ved en hyggelig entré. På høyre side har du en moderne skyvedørsgarderobe, hvor du kan henge deg ytterjakken og sette fra deg skoene, før du går videre inn i boligen.
Stue
Videre kommer du inn til boligens stue. Her legger du øyeblikkelig merke til de gode lysforholdene som følge av de mange vindusflatene og balkongdøren. Dette er rommet for avslapping og hygge, enten du vil invitere venner over på besøk eller ha en hyggelig kveld med familien. Du har god plass til sofagruppe, bord og annet interiør.
Stuen har også utgang til en vestvendt balkong, som er kjekk å ha når solen står på sitt høyeste. Her har du god plass til utemøblement, gass- eller elektrisk grill og det som hører sommeren til. Nå kan du glede deg til sommeren kommer. Balkongen har kveldssol sommerstid.
Kjøkken
Kjøkkenet er av god størrelse, og det er ingen tvil om at det er her du kommer til å tilbringe mesteparten av tiden din, om du er glad i å lage mat. Kjøkkeninnredningen er stilren med hvite glatte fronter og laminert benkeplate med nedfelt stålkum. Over- og underskapene sørger for rikelig med oppbevaringsplass, og de store arbeidsflatene innbyr til matlaging. Vindusflatene gir et lyst og trivelig rom.
Kjøkkenet har integrerte hvitevarer bestående av komfyr, induksjonstopp, mikrobølgeovn og oppvaskmaskin. Plass for frittstående kjøleskap.
Det er god plass til spisegruppe med plass for hele familien, eller om du ønsker å invitere venner rundt middagsbordet.
Fra kjøkkenet har du også utgang til en fransk balkong, som gir deg muligheten til å nyte en god kopp kaffe eller slippe solen inn på varme dager.
Hovedsoverom
Hovedsoverommet er lyst og luftig, og du trenger ikke bekymre deg for at dobbeltsengen ikke skal få plass. Rommet har en romslig skyvedørsgarderobe, hvor du kan oppbevare alle klærne og skoene dine.
Soverom II og III
Soverom nr. 2 egner seg fint som barnerom. Dette rommet passer også ypperlig som gjesterom og kontor dersom dette er ønskelig. Også her finner du en praktisk skyvedørsgarderobe med god oppbevaringsplass.
Rommet ligger i andre enden av boligen, fra hovedsoverommet.
Bad
Boligens bad er flislagt og malt i tidsriktige farger. Baderomsinnredningen har hvite glatte fronter med god oppbevaringsplass og heldekkende servant. Speilskap med integrert belysning over.
Etter en lang dag kan du fylle opp badekaret og slappe av. Dusjveggen gjør travle morgener enkle.
Badet har ellers gulvmontert toalett og opplegg for vaskemaskin.
Badet skal pusses opp i regi av borettslaget, og prosjektet starter høsten 2017.
Beliggenhet
Sentral beliggenhet i et hyggelig og populært boligområde på Hovseter. Her har du kort vei både til marka og til byen. Flotte tur- og treningsmuligheter i umiddelbar nærhet. Matvarehandelen kan tas på Rema 1000 i samme gate.
Meget barnevennlig område som har kort vei til skoler i alle trinn. Huseby barneskole, Hovseter ungdomsskole og Persbråten videregående skole, samt Steinerskolen. Det er flere kommunale og private barnehager i nærområdet. Sykkel- og gangvei til Bogstad hvor det er populært badevann og flott golfbane. Bogstad gård tilbyr café, museum og et godt utvalg av forskjellige aktiviteter for store og små.
Gangavstand til Røa sentrum som tilbyr alt av servicetilbud (f.eks. bank, post, apotek, jernvare, frisør, vinmonopol, kafeer, sport -og klesbutikker m.m.). Røa torg har store utviklingsplaner og kan etter planen i 2019 tilby 7000kvm med næring og handlegate. Alternativt ligger kjøpesenteret CC vest en kort kjøretur unna, som tilbyr et bredt utvalg av butikker.
Kort vei med bil til Tryvann Skisenter som tilbyr 18 nedfarter og 11 heiser. I tillegg til Oslo vinterpark tilbyr også Tryvann Oslo sommerpark, som åpnet i 2012 og som er en av Skandinavias største klatreparker.
Gressbanen og Holmendammen er en kort spasertur unna.
Gode muligheter for offentlig kommunikasjon med bl.a. T-banen fra Hovseter og busslinje fra Landingsveien. Med T-banen fra Hovseter er det 7 minutter til Majorstuen, 10 minutter til Nationaltheatret og 12 minutter til Jernbanetorget.
Bebyggelse
Det er primært leilighets-/gårdsbebyggelse i området.
Adkomst
Se vedlagte kart. Det vil bli satt opp visningsskilt ved fellesvisninger. For kollektiv sjekk ut www.ruter.no.
Byggemåte
Bygningen er oppført i betongkonstruksjoner og er forblendet med fasadeplater. Betongskillende vegger mellom leilighetene. Leilighets skillende dekker i betong. Bygningene er fundamentert på faste eller komprimerte masser. Flate tak tekket med Sarnafil/ papp. Vinduer med trerammer og 2-lags isolerglass fra 1974 og 1988. Brannklassifisert entredør i finert utførelse. Terrassedør med 2-lags isolerglass fra 1988. Se vedlagte tilstandsrapport avholdt iht. NS 3940 av Glenn- Erik Larsen for ytterligere teknisk beskrivelse av eiendommen.
Areal
1.etg: Bra/p-rom: 77 m²/ 77 m²
Følgende rom inngår i primærareal:
Stue, 2 soverom, bad/vaskerom, entré, kjøkken.
Utstyr
Sikringsskap med automatsikringer plassert i oppgang.
Skyvedørsgarderober med speil/glass fronter på soverom og i entré.
Oppvarming
Leiligheten er elektrisk oppvarmet med panelovner.
Tomten
Tomtens grunnareal: 5456 kvm.
Parkering
Plass i felles garasjeanlegg følger andelen.
Borettslaget har parkerings- og garasjeplasser. Styret i borettslaget fordeler disse etter lister. Borettslaget har inngått avtale med parkeringsselskap om håndhevelse av borettslagets parkeringsbestemmelser. Hver leilighet disponerer to oblater til gjesteparkeringen. Borettslaget leier i tillegg gjesteparkeringsplasser hos Meklenborg Borettslag.
Vei/vann/avløp
Offentlig.
Forretningsfører
Forretningsførselen er utført av OBOS i henhold til kontrakt. Borettslagets revisor er PricewaterhouseCoopers AS.
Borettslaget
Borettslaget består av 260 andelsleiligheter. I tillegg kommer 2 tjenesteleiligheter. Setra Borettslag er registrert i Foretaksregisteret i Brønnøysund med organisasjons-nummer 950474084, og ligger i bydel 7 Vestre Aker i Oslo kommune med følgende adresse:
Hovsetervn 64-66-68
Hovsetervn 82-84
Første innflytting skjedde i 1975. Tomten, kjøpt i 1986 er på 11 000 m2. Eiendommen har
følgende gårds- og bruksnummer: 31 - 323, 324, 331, 331.
Styret:
Styret har e-post setra@styrerommet.net.
Setra har hjemmesider på http://www.setrabrl.no
Vaktmester:
Borettslaget har avtale om vaktmestertjeneste med Hovseter Vaktmestersentral. Sentralen har kontoradresse i Hovseterveien 68, og kan kontaktes på telefon 22 14 15 85 eller e-post hovvakt@online.no. Åpningstiden er hverdager kl. 09:00 til 10:00 og kl. 13:00 til 14:00.
Vaskeri:
Fellesvaskeriet er i Hovseterveien 68 og skal brukes i henhold til gjeldende regler. Kort og nøkler fås kjøpt hos Hovseter Vaktmestersentral.
Kabel-TV og bredbånd:
Canal Digital er borettslagets leverandør av TV- og bredbåndstjenester.
Vi oppfordrer alle til å sette seg inn i vedtekter, husordensregler, regnskap, budsjett og årsberetning. Dokumentene vil være tilgjengelig hos meglerforetaket. Det gjøres oppmerksom på at fellesgjeld og felleskostnader kan variere over tid som følge av beslutninger foretatt i borettslagets styre og/eller generalforsamling.
Forkjøpsrett
Det er utlyst parallell avklaring av forkjøpsretten og avklaring skjer kort tid etter endt budrunde. Konferer megler for ytterligere informasjon.
Styregodkjennelse
Kjøper skal godkjennes av styret og har selv risikoen for at godkjennelse blir gitt. Styregodkjennelse kan ikke nektes uten saklig grunn.
Dyrehold
Fra husordensreglene: Hund eller katt kan kun anskaffes etter godkjenning av styret og under forutsetning av undertegnelse av "Erklæring om dyrehold i Setra borettslag".
Forsikring
Obos Skadeforsikring AS
Polisenummer: 10469
Felleskostnader
4 074 pr. mnd. Inkl. blant annet varmtvann, kabel-tv og internett, kommunale avgifter, bygningsforsikring, drift og vedlikehold av borettslaget og nedbetaling lån.
Felleskostnadene vil få en økning på 10% f.o.m 01.07.17.
Borettslagsmodellen innebærer at en andelseier kan bli ansvarlig for felleskostnader andre andelseiere ikke betaler, herunder felleskostnader for usolgte andeler i et prosjekt. Enkelte borettslag er tilknyttet en sikringsordning som reduserer borettslagets risiko for tap på grunn av andelseiernes betalingsmislighold. En avtale om sikringsordning kan sies opp, være tidsbestemt og beløpsmessig avgrenset.
Andel fellesgjeld/fellesformue
Andel fellesgjeld pr. 01.12.2016 kr. 79.471,-.
Andel fellesformue pr. 31.12.2015 kr. 7.521,-.
Lånevilkår
Lånenr: EIKA1-152026399 A
Restsaldo: 883.917,-
Restløpetid: 1 år 1 mnd
Term pr år: 12
Type rente: Flyt
Rente: 2,25 %
Lånenr: EIKA2-152076527 A
Restsaldo: 7.953.041,-
Restløpetid: 22 år 4 mnd
Term pr år: 12
Type rente: Flyt
Rente: 2,25 %
Lånenr: OBOS01-98207503827 A
Restsaldo: 8.500.000,-
Restløpetid: 1 år 5 mnd
Term pr år: 12
Avdragsfrihet til og med: 01.12.2017
Type rente: Flyt
Rente: 2,25 %
Borettslaget har også lån fra Oslo kommune som er rente- og avdragsfritt. Forutsetningen for dette lånet er en klausul om at visse leiligheter (andelsnummer fra 170 tom 258) er forbeholdt bevegelseshemmede, jfr vedtektene i borettslaget.
Det er vedtatt at styret i forbindelse med rehabiliteringen kan søke om lån med en ramme på 65 millioner. Lånet vil fordeles etter eierbrøken, og store andeler vil få en noe høyere og mindre andeler en noe lavere økning av fellesgjelden enn snittet. Dette lånet er innvilget.
Sikringsordning
Borettslaget har en avtale med OBOS om garantert betaling av felleskostnader. OBOS garanterer for overførsel til borettslaget hver måned og overtar deretter alt ansvar og risiko for eventuell manglende innbetaling av felleskostnader. Avtale om sikring av felleskostnader varer til den blir sagt opp av en av partene. Oppsigelsestiden er 12 - tolv- måneder regnet fra oppsigelsesdato.
Faste løpende kostnader
Utover det som er nevnt under felleskostnader, påløper kostnader til for eksempel strøm, fyring/brensel, innboforsikring og innvendig vedlikehold.
Ferdigattest/midlertidig brukstillatelse
Det er utstedt ferdigattest på eiendommen fra 1978.
Utleie
Med godkjenning fra styret er utleie tillatt for inntil 3 år, dersom andelseier selv eller person nevnt i Borettslagsloven § 5-6 (3) har bebodd eiendommen i minst ett av de to siste årene.
Diverse
Styrets arbeid:
Styrets arbeid er beskrevet i en egen rapport i denne årsmeldingen (se s.42 (spør om å få denne av megler)). Det er også sendt ut flere informasjonsskriv fra styret. Forøvrig vil vi nevne at:
- Velferdskomiteen arrangerte i 2015 og 2016 en trivelig tenning av julegran, med korpsmusikk, servering av gløgg og julekaker, samt rundturer med hest og kjerre for de minste.
- Den 31. mars 2016 ble det arrangert informasjonsmøte for alle andelseierne, der styret redegjorde for status i løpende prosjekter.
- Den 11. mai 2016 arrangerte velferdskomiteen en dugnad der vi ryddet uteområder og pyntet med nye sommerblomster. Det ble servert pizza og drikke til alle. Det ble ikke arrangert dugnad i 2015.
I møte 02.03.2016, sak 57, forkastet bystyret de fremlagte forslag om detaljregulering for Hovseterveien 70 og 72. Dermed ble det stans i planer om bygging av en høyblokk som ville skyggelegge torget og stenge utsyn fra leiligheter i Hovseterveien 68. Styret har engasjert seg i saken.
Vedlikehold/rehabilitering:
- Borettslaget iverksetter rehabilitering av vann- og avløpsledninger, vedtatt på ordinær generalforsamling 2015. Dette har planlagt oppstart 2017.
- Borettslaget er i gang med å bygge om næringslokaler til leiligheter.
Klausulerte leiligheter:
Borettslaget har en rekke klausulerte leiligheter. Dette gjelder andel nr. 170-258, med unntak av andelsnr. 174, 177, 183 og 186, med det kjøpsvilkår at: "Eieren eller et medlem av hans husstand er så bevegelseshemmet at familien har behov for leilighet som er spesialinnredet for bevegelseshemmet."
Større vedlikehold og rehabilitering:
Brannvarslingsanlegg:
I 2013 ble det etablert brannvarslingsanlegg i Hovseterveien 68 A og B. Årlig kontroll av brannsikringsutstyret ble utført, samt utskifting av hovedtavler og sikringsskap. Samtlige private sikringsskap og hovedtavler ble oppgradert i 2013.
LED-lys:
I 2013 ble det installert LED-belysning med bevegelsessensor i fellesarealene.
Røykluker:
I 2011 ble det satt inn nye røykluker i henhold til dagens krav i Hovseterveien 64, 66 og 82.
Nye inngangsdører:
Det ble i 2011 satt inn nye inngangsdører i næringslokalet og hovedinngang i Hovseterveien 84.
Oppgradering av sikringsskap:
Utbedring av feil og mangler i sikringsskap etter HMS-runde, utført i 2011.
Nytt porttelefonsystem:
I 2009 ble det installert nytt porttelefonsystem med monitor og elektronisk nøkkelbrikke.
Dette er installert i Hovseterveien 64, 66, 82 og 84.
Reguleringsmessige forhold
Eiendommen ligger i et område regulert til boligformål.
Eiendommens betegnelse
Andelsnr. 23 Orgnr. 950474084 i Oslo kommune
Oppgjør
Med mindre annet er avtalt forutsettes det at kjøpesum inkludert omkostninger er innbetalt og disponibelt på meglerforetakets klientkonto innen overtakelse.
Kjøpekontrakt
Partene skal signere kjøpekontrakt etter aksept av bud.
Eierskifteforsikring
Selger har tegnet eierskifteforsikring som dekker selgers ansvar etter avhendingsloven begrenset oppad til MNOK 10. I den forbindelse har selger utarbeidet en egenerklæring som kjøper bør gjøre seg kjent med før budgivning.
Boligkjøperforsikring
Det gjøres oppmerksom på at kjøper har anledning til å tegne Boligkjøperforsikring. Dette er en rettshjelpsforsikring som gir trygghet og profesjonell juridisk hjelp dersom det oppdages uventede feil eller mangler ved boligen de neste fem årene. Les om denne på www.help.no og ta kontakt med oss for ytterligere informasjon.
Løsøre og tilbehør
Listen over løsøre og tilbehør utarbeidet av Norges Eiendomsmeglerforbund av 1. februar 2012 legges til grunn for salget dersom ikke annet fremkommer av salgsoppgaven. Listen er tilgjengelig hos oppdragsansvarlig samt på www.nef.no. Til orientering er det full avtalefrihet om hva som skal følge med bolig og fritidsbolig ved salg.
- Kjøl-/fryseskap medfølger ikke ved salg.
Solgt "som den er"
Eiendommen selges "som den er", jf. avhendingsloven (avhl.) § 3-9. Alle interessenter oppfordres til å sette seg godt inn i opplysninger som fremgår av salgsoppgave, egenerklæring fra selger, takst og andre vedlegg, da dette danner grunnlaget for avtalen som inngås med selger. Videre oppfordres det til å undersøke eiendommen nøye, gjerne sammen med fagkyndig.
Eiendommen kan ha mangel i følgende tilfeller:
1) Når kjøper ikke har fått opplysninger om forhold ved eiendommen som selger kjente eller måtte kjenne til, og som kjøper hadde grunn til å regne med å få, jf. avhl § 3-7. Dette gjelder likevel bare dersom man kan gå ut fra at det har virket inn på avtalen at opplysningene ikke ble gitt.
2) Når selger har gitt uriktige opplysninger om eiendommen, jf. avhl § 3-8. Tilsvarende gjelder dersom eiendommen ikke er i samsvar med opplysninger som er gitt i annonse, salgsprospekt eller ved annen markedsføring på vegne av selger. Dette gjelder likevel bare dersom man kan gå ut fra at opplysningene har virket inn på avtalen, og ikke på en tydelig måte er rettet i tide.
3) Når eiendommen er i vesentlig dårligere stand enn kjøper hadde grunn til å regne med ut fra kjøpesummen og forholdene ellers, jf. avhl § 3-9.
Finansiering
Aktiv Eiendomsmegling samarbeider med sparebankene i Eika Gruppen AS og konsernets produktselskaper om formidling av finansielle tjenester. Ta gjerne kontakt med oppdragsansvarlig for et uforpliktende tilbud vedrørende finansiering. Meglerforretningene kan motta provisjon ved formidling av finansielle tjenester.
Ta kontakt med megler for komplett informasjon
Nærområdet
Aktiv Carl Berner
Annonsene kan være mangelfulle i forhold til lovpålagt opplysningsplikt. Før bindende avtale inngås oppfordres interessenter til å innhente komplett informasjon fra meglerforetaket, selger eller utleier.








































