Bildegalleri

PROA Eiendomsmegling har gleden av å presentere en stor og velholdt selveierleilighet i toppetasjen på Bergheim Amfi. Bergheim Amfi er kjent som et veldrevet sameie med god økonomi og høy trivsel.
BERGHEIM/ LOHOVE - Stor velholdt 3-roms selveierleilighet- Romslig veranda med fantastisk utsikt - heis og p-plass.
Nøkkelinfo
- Boligtype
- Leilighet
- Eieform
- Eier (Selveier)
- Soverom
- 2
- Primærrom
- 99 m²
- Bruksareal
- 104 m²
- Etasje
- 6
- Byggeår
- 2002
- Energimerking
- C - Rød
- Tomt
- Eiet
- Boligselgerforsikring
- Ja
Beliggenhet
Leiligheten har en meget attraktiv og populær beliggenhet med gangavstand til servicefunksjoner som dagligvarehandel, apotek, restaurant, bensinstasjon m.m. Moholt butikksenter har butikker som Rema 1000, frisørsalong, Bohus, Arc Bruns bokhandel og kiosk. Like i nærheten finnes også et koslig bibliotek. En kort biltur unna på ca. 10 min er du midt i Trondheim sentrum.
En kort gåtur oppover i terrenget fører deg rett til et av Trondheims mest attraktive turområder, Estenstadmarka med et omfattende lysløypenett. Her finnes et godt utarbeidet løypenett og turstier, og populære Estenstadhytta hvor det serveres rykende ferske kanelboller som kan nytes i solveggen.
I nærområdet ligger NTNU Dragvoll, og i sykkelavstand finnes studiesteder som Handelshøgskolen og NTNU Gløshaugen. Man har i tillegg nærhet til Voll studentby og Moholt studentby.
Boligen sogner til Hoeggen ungdomsskole og Åsvang barneskole. Bergheim barnehage ligger like ved.
God offentlig kommunikasjon med hyppige bussavganger til Trondheim sentrum og omegn fra bussholdeplass like ved. Buss 5 og 36 tar deg til Trondheim sentrum på 15-18 min. For mer informasjon om rutetider, se www.atb.no.
For å lese mer om sameiet gå inn på www.bergheimamfi.no
Se vedlagte nabolagsprofil i prospektet for ytterligere informasjon om nærområdet.
Bebyggelse
Området består hovedsakelig av blokkbebyggelse, rekkehus samt eneboliger.
Adkomst
Fra Moholt-senteret kjører du mot Lohove og Dragvoll, følg Jonsvannsveien rett frem i 3 rundkjøringer og ta av til høyre inn på Bergheimsveien. Det vil bli godt skiltet med PROA visningsskilt på visningsdagen.
Tomten
Felles eiet tomt. Velstelt og pent opparbeidet uteområde med plen, lekeplass og felles parkeringsplasser for sameiet.
Byggemåte
Leilighet er oppført i én etasje. Grunnmur er oppført i støpt betong. Veggkonstruksjon er oppført i betong og tre, og er kledd med metallplater. Taket er et flatt tak og er tekket med papp. Etasjeskille er et betongdekke. Vindu med 2-lags isolerglass.
Se vedlagte boligsalgsrapport avholdt 09.02.16, hvor ovennevnte opplysninger er hentet fra, for nærmere teknisk beskrivelse av eiendommen.
Innhold
PROA Eiendomsmegling har gleden av å presentere en stor og velholdt selveierleilighet i 6.etasje på Bergheim Amfi. Bergheim Amfi er kjent som et veldrevet sameie med god økonomi og høy trivsel.
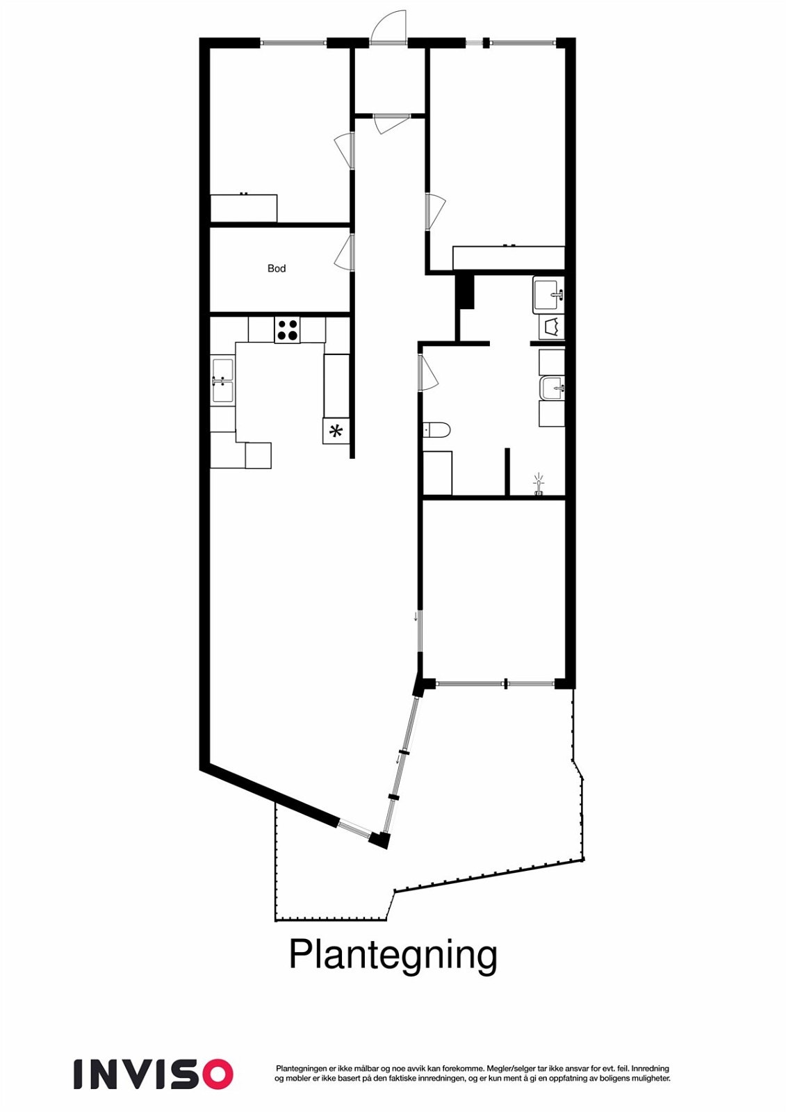
Leiligheten er fra 2002, går over ett plan og oppleves velholdt. Boligen har en flott beliggenhet i 6. etasje, med fritt utsyn mot byen. Man får en fin velkomst av en innbydende oppgang og en behagelig adkomst med heis som leder videre til svalgang. Leiligheten er en av få som har svalgang. Her kan man ordne en sittegruppe og nyte morgenkaffen i formiddagssola. Leiligheten har entré med muligheter for oppheng av yttertøy.
Videre kommer vi inn i en lys og trivelig stue, med en todelt utforming. På denne måten får man en naturlig inndeling med lesehjørne og sittegruppe. Fra stuen har man en fantastisk utsikt mot byen og Trondheimsfjorden. Store vindusflater fra gulv til himling i stuen som ivaretar utsikten og gir stuen rikelig med innlys. Leiligheten nyter en stor solrik veranda med utgang fra stuen.
Åpen løsning mot kjøkkenet utnytter arealet maksimalt. Kjøkkenet har godt med arbeidsbenk og skapplass. Her er det muligheter for en hyggelig spisegruppe.
Pent flislagt bad med varme i gulv. Baderomsmøblene inkluderer servant med overskap, dusjnisje og wc. Den romslige størrelsen gir en vaskeromsløsning med utslagsvask og opplegg for vaskemaskin.
Leiligheten har to soverom. Hovedsoverommet er av god størrelse med en romslig garderobeløsning. Soverom 2 kan benyttes som gjesterom, kontor eller barnerom. Begge soverommene vender ut mot svalgangen.
Leiligheten har egen bod i 1 etasje.
I 2.etasje har sameiet et hyggelig bibliotek som kan benyttes av alle.
Velkommen til en hyggelig boligopplevelse med PROA Eiendomsmegling!
Areal
Primærrom: 99 kvm, Bruksareal: 104 kvm
Følgende rom inngår i P-rom: Gang, entré, bad/
vaskerom, stue, kjøkken,
2 soverom.
Bruksareal (BRA) 6. etasje: 104m².
Bruksareal (BRA) totalt: 104m².
Primærareal (P-ROM) 6. etasje: 99m².
Primærareal (P-ROM) totalt: 99m².
Sekundærareal (S-ROM) 6. etasje: 5m².
Sekundærareal (S-ROM) totalt: 5m².
Arealoppmåling er foretatt av takstmann.
Arealmålingene måles etter bransjestandarden "Takstbransjens retningslinjer ved arealmåling av boliger". Retningslinjene har NS 3940:2012 som utgangspunkt, men inneholder presiseringer for arealbegreper og definisjoner i forbindelse med arealmåling ved omsetning og/eller verdisetting av boenheter. Rom defineres etter bruken av rommet på befaringstidspunktet, selv om bruken kan være i strid med tidligere eller gjeldende byggeforskrifter. Da det ikke foreligger en spesifikk definisjon av hva som er primære rom (P- ROM) og sekundære rom (S- ROM), vil benevnelsen av enkelte rom fastsettes etter skjønn.
"Takstbransjens retningslinjer for arealmåling av boliger" utgis av Informasjonsselskapet Verdi og er også tilgjengelig på www.ntf.no og www.nitotakst.no
Arealangivelsen er hentet fra vedlagt takst/boligsalgsrapport utført 09.02.16. Megler har ikke kontrollmålt boligen.
Arealene er beregnet og rom er definert etter dagens faktiske bruk, uavhengig av hva som er godkjent av bygningsmyndighetene.
Oppvarming
Elektrisk.
Energimerking
Energimerke C og oppvarmingskarakter RØD.
Alle eiendommer som selges/leies ut skal ha energiattest. Unntak gjelder blant annet for frittstående bygninger med bruksareal mindre enn 50 m². Det er eier som plikter å fremlegge energiattest og er selv ansvarlig for at opplysningene er riktig. For ytterligere informasjon se www.energimerking.no. Dersom eier har energimerket eiendommen vil komplett energiattest fås ved henvendelse til megler. Dersom eier ikke har lagt frem energiattest, og eier etter skriftlig anmodning fra kjøper ikke har lagt frem energiattest før avtale om salg er inngått, kan kjøper få laget en energiattest ved hjelp av ekspert for selgers regning, innen ett år etter at avtale om salg er inngått.
Parkering
P-plass i felles garasjeanlegg.
Vei/vann/avløp
Private stikk til offentlig nett.
Forretningsfører
Forretningsfører er TOBB (tlf 73 83 15 00)
Sameiet
Sameie: Bergheim Amfi, Orgnr: 985234094
Sameiet Bergheim Amfi består av 130 leiligheter (eierseksjoner) og fellesarealer.
I eierseksjonssameier blir kjøper eier av en sameieandel i eiendommen og får enerett til bruk av sin eierseksjon med eget seksjonsnummer i bygget. Kjøper du en eierseksjon i et eierseksjonssameie, reguleres eierforholdet av lov om eierseksjoner samt vedtekter og husordensregler i sameiet. Vanligvis kan du kjøpe, selge, leie ut og belåne boligen helt fritt. Vedtektene kan inneholde rådighetsbegrensninger.
Sameiets økonomi:
Regnskapet for 2014 viser et overskudd på kr. 333 330,-
Årets resultat er kr. 196 510 ,- bedre enn budsjettert.
Egenkapitalen i Sameiet utgjør per 31.12.2014 kr. 1 380 704,-
Endring i disponible midler i 2014 er kr 231 037,-
Totale disponible midler per 31.12.2014 er kr. 1 082 052,-
Eierseksjonen hører til boligsameie. Vi oppfordrer alle til å sette seg inn i vedtekter, husordensregler, regnskap, budsjett og årsberetning. Dokumentene vil være tilgjengelig hos meglerforetaket. Det gjøres oppmerksom på at fellesgjeld og felleskostnader kan variere over tid som følge av beslutninger foretatt i sameiets styre og/eller generalforsamling.
Vi gjør videre oppmerksom på at det iht. eierseksjonsloven ikke er anledning å erverve mer enn 2 seksjoner i sameiet.
Styregodkjennelse
Det er ikke påkrevet med godkjennelse av ny seksjonseier fra sameiet.
Dyrehold
Det er tillatt å ha husdyr som ikke er til ulempe for andre. For mer informasjon om dyrehold vises til husordensreglene som er vedlagt i prospektet.
Forsikring
Gjensidige Forsikring med polisenummer: 83054298
Ligningsverdi
Ligningsverdi som primærbolig kr 838 593 per 31.12.14
Ligningsverdi som sekundærbolig kr 2 012 623 per 31.12.14
Felleskostnader
Felleskostnader pr d.d. utgjør kr. kr. 2 128,- pr. mnd.
Felleskostnader inkluderer:
Felleskostnad driftsdel: kr 1 669,-
Tillegg Kabel -TV ( herav bredbånd kr. 159,-) kr 377,-
Miljøgebyr for papirfaktura kr. 32,-
Tillegg filterpakke kr. 35,-
Tillegg for avløpsrens kr. 15,-
Andel fellesgjeld/fellesformue
Sameiet har ingen gjeld eller fellesformue.
Lånevilkår
Sameiet har ingen lån.
Kjøpers ansvar for øvrige sameieres mislighold
For felles ansvar og forpliktelser hefter den enkelte sameier i forhold til sin sameiebrøk, jf. eierseksjonsloven § 24.
Offentlige/kommunale avgifter
Kommunale avgifter ca. kr 11 176,- pr år. Det er tatt utgangspunkt i 4. termin 2015. Kommunale avgifter kan variere fra en termin til en annen.
Faste løpende kostnader
Beløpene tar utgangspunkt i nåværende eiers forbruk og avtaler.
Ferdigattest/midlertidig brukstillatelse
Det foreligger ferdigattest på eiendommen datert 14.02.2003.
Ferdigattest er en sluttattest fra bygningsmyndighetene om at et søknadspliktig tiltak er ferdigstilt. At evt. ferdigattest / midl. brukstillatelse eksisterer, gir ingen garanti for at det ikke er utført arbeid på boligen som ikke er byggemeldt eller godkjent.
Utleie
Det er ikke kjent at det foreligger offentligrettslige regler som er til hinder for at hele eiendommen leies ut.
Fra 1. januar 2014 er det krav til forsvarlige radonnivåer på utleieboliger. I de tilfeller hvor det ikke særskilt er opplyst at selger har kunnskap om eiendommens radonnivå må kjøpere som ønsker å leie ut hele eller deler av eiendommen, særskilt være oppmerksom på at de overtar ansvaret for den usikkerheten dette medfører. Se http://www.nrpa.no for nærmere informasjon.
Konsesjon
Eiendommen er ikke konsesjonspliktig.
Odel
Det er ikke odel på eiendommen.
Diverse
- Det gjøres spesielt oppmerksom på at boligen selges for et dødsbo. Arvingene (selgerne) har ikke bebodd eiendommen og har ingen kunnskap vedrørende eiendommen og eiendommens beskaffenhet utover det som her fremgår av prospektet. Kjøper oppfordres til å foreta en særlig grundig besiktigelse, gjerne med bistand fra teknisk sakkyndig.
- Komfyr, oppvaskmaskin og kombiskap følger ikke med handelen.
Servitutter/rettigheter/forpliktelser
Servitutter i grunn:
07.10.2002 19930
ERKLÆRING/AVTALE
Pliktig medlemskap i velforening m.v.
GJELDER DENNE MATRIKKELENHETEN MED FLERE
07.10.2002 19930
ERKLÆRING/AVTALE
Denne seksjon har tilleggsdel - bygning.
GJELDER DENNE MATRIKKELENHETEN MED FLERE
16.11.2004 24760
ERKLÆRING/AVTALE
Endring i tilleggsarealer boder/garasjer
Gjelder 61 seksjoner
GJELDER DENNE MATRIKKELENHETEN MED FLERE
GRUNNDATA
07.10.2002 19930
SEKSJONERING
Opprettet seksjoner:
Seksjon: 1601 / 52 / 125 / / 80
Formål: Bolig
Sameiebrøk: 102 / 11771
Bestemmelser om tilleggsdel, se under servitutter.
Gjelder seksjon nr. 1-129
EIENDOMMENS RETTIGHETER
Servitutter:
01.06.2012 428432
BEST. OM ADKOMSTRETT
Rettighet hefter i: 1601 / 52 / 118 / /
Med flere bestemmelser
GJELDER DENNE MATRIKKELENHETEN MED FLERE
14.05.2007 397778
BRUKSRETT
Rettighet hefter i: 1601 / 52 / 117 / /
GJELDER DENNE MATRIKKELENHETEN MED FLERE
Reguleringsmessige forhold
Eiendommen omfattes av reguleringsplan R 365c, stadfestet 15.09.98. og reguleringsplan R 365 b, stadfestet 20.03.97.
Eiendommen er regulert til boligformål.
Eiendommens betegnelse
Gnr.52 Bnr.125 Snr.80 i Trondheim kommune
Prisantydning inkludert omkostninger
4 750 000,- (Prisantydning)
Omkostninger
6 300,- (Boligkjøperforsikring Legal24 (valgfritt))
2 980,- (Eierskiftegebyr trekkes i oppgjøret - KJØPER)
172,- (Panteattest kjøper - Faktura fra Statens Kartverk)
525,- (Tingl.gebyr obligasjon)
525,- (Tingl.gebyr skjøte)
116 250,- (Dokumentavgift)
126 752,- (Omkostninger totalt)
4 876 752,- (Totalpris inkl. omkostninger)
Oppgjør
Kjøpesum og omkostninger skal i sin helhet være innbetalt på vår klientkonto innen overtakelsesdato.
Overtagelse
Overtagelse etter nærmere avtale med selger.
Eierskifteforsikring
Selger har i de fleste tilfellene tegnet eierskifteforsikring som dekker selgers ansvar etter avhendingsloven begrenset oppad til kr. 5.000.000,-. I den forbindelse har selger utarbeidet en egenerklæring som kjøper bør gjøre seg kjent med før budgivning. Egenerklæringen ligger alltid med som en del av salgsprospektet. Eierskifteforsikringen sikrer at selger er søkegod og en motpart som håndterer eventuelle reklamasjoner faglig og ryddig. Prospektet kan lastes ned øverst på denne siden under meglers visittkort.
Boligkjøperforsikring
Det gjøres oppmerksom på at kjøper har anledning til å tegne Boligkjøperforsikring ved kjøp av denne boligen. Det er en rettshjelpsforsikring som gir trygghet og profesjonell juridisk hjelp dersom det oppdages uventede feil eller mangler ved boligen de neste fem årene, eller at boligen ikke i rett tid blir stilt disponibel for kjøper. Forsikringspremien blir da medtatt som omkostning og skal innbetales sammen med sluttoppgjøret. Se vedlagte produktark. Megler mottar godtgjørelse for forsikringsformidlingen.
Budgivning i forbrukerforhold
Alle bud på eiendommen skal være skriftlig og sendes meglerforetaket pr. fax, mail, SMS eller via vår "gi bud"-knapp på våre nettsider. Knappen finner du også på eiendommens annonse på www.finn.no. Bud må ikke ha kortere akseptfrist enn til kl. 12.00 første virkedag etter siste annonserte visning. Lørdag regnes ikke som virkedag. Bud med kortere frist enn dette kan ikke formidles av megler.
Megler tar ikke noe ansvar for forsinkelser på el- eller telenettet. Under budrunden kan akseptfristene kortes inn ved mottakelse av nye bud. Akseptfristen fra kjøper er absolutt. Det betyr at dersom selger velger å akseptere budet, må kjøper meddeles aksept innen utløpet av akseptfristen. Dersom du utsetter inngivelse av bud til tett opp mot akseptfristen er det en reell fare for at eiendommen kan bli solgt før ditt bud fremkommer til megler.
Nærmere info om budgiving finner du på egen side sammen med budskjema.
Se for øvrig forbrukerinformasjon om budgivning , som også er en del av salgsoppgaven.
Løsøre og tilbehør
Listen over løsøre og tilbehør utarbeidet av Norges Eiendomsmeglerforbund av 1. februar 2012, legges til grunn for salget dersom ikke annet fremkommer av salgsoppgaven. Listen er tilgjengelig hos oppdragsansvarlig samt på www.nef.no. Til orientering er det full avtalefrihet om hva som skal følge med bolig og fritidsbolig ved salg.
Dersom det ikke er varmekilder i alle rom, fravikes NEFs normgivende liste over løsøre og tilbehør i "Viktig informasjon for selger og kjøper".
Lov om hvitvasking
Det følger av lov om tiltak mot hvitvasking og terrorfinansiering at meglerforetaket er forpliktet til å foreta kundekontroll av begge parter i handelen. For oppdragsgiver skjer dette i forbindelse med inngåelse av oppdraget, og for kjøper på tidspunkt for kontraktsinngåelse. Dersom slik kundekontroll ikke kan gjennomføres, er meglerforetaket pålagt å avstå fra gjennomføring av oppgjøret. Partene er selv ansvarlig for eventuelle kostnader og ansvar dette kan medføre uten at det kan anføres et kontraktsrettslig ansvar overfor meglerforetaket.
Solgt "som den er"
Eiendommen selges i den stand den var ved kjøpers besiktigelse, jfr. Avhendingslovens § 3-9. Mangler kan kun påberopes der dette følger av § 3-7 eller 3-8: * kjøper ikke har fått opplysninger som selger kjente eller måtte kjenne til, og som kjøperen hadde grunn til å regne med å få, eller når selger har gitt uriktige opplysninger om eiendommen. Dette gjelder likevel bare dersom man kan gå ut fra at det har innvirket på avtalen at slik opplysning ikke ble gitt. * det kan også foreligge mangel hvis eiendommen er i vesentlig dårligere stand enn kjøper hadde grunn til å regne med ut fra kjøpesummen og forholdene for øvrig. Kjøper kan ikke påberope seg noen andre bestemmelser etter avhl. kap 3 enn de regler som er ufravikelige i forbrukerforhold, jfr. Avhendingslovens § 3-9, jfr. § 1-2 (2). På bakgrunn av dette oppfordres alle interessenter til å sette seg inn i eventuell egenerklæring fra selger, samt til å undersøke eiendommen nøye, gjerne sammen med fagkyndig før bud inngis.
Finansiering
PROA Eiendomsmegling samarbeider med Handelsbanken om formidling av finansielle tjenester. Ta gjerne kontakt med oppdragsansvarlig for et uforpliktende tilbud vedrørende finansiering.
Tinglysing av hjemmel
Dersom annet ikke avtales sendes skjøte/hjemmelsdokument for tinglysing i forbindelse med oppgjøret. Oppgjør forutsetter at det er gjennomført overtagelse og at partene har signert en overtakelsesprotokoll og sendt denne til oppgjørsavdelingen slik som avtalt i kontrakt.
Salgsoppgave
Opplysningene i salgsoppgaven er godkjent av selger. Alle interessenter oppfordres imidlertid til grundig besiktigelse av eiendommen, gjerne sammen med fagmann før bud inngis.
Informasjon om meglerforetaket
Pacta Eiendom AS
Ta kontakt med megler for komplett informasjon
Nyttige lenker
Nærområdet
Proaktiv Eiendomsmegling Trondheim Sentrum
Annonsene kan være mangelfulle i forhold til lovpålagt opplysningsplikt. Før bindende avtale inngås oppfordres interessenter til å innhente komplett informasjon fra meglerforetaket, selger eller utleier.
























