Bildegalleri

Stue
Hovseter - Arealeffektiv 4-roms leilighet med stor solrik balkong. Garasje. Moderniseringsbehov.
Nøkkelinfo
- Boligtype
- Leilighet
- Eieform
- Andel
- Soverom
- 3
- Primærrom
- 97 m²
- Bruksareal
- 97 m²
- Etasje
- 3
- Byggeår
- 1973
- Energimerking
- F - Rød
- Rom
- 4
- Tomteareal
- 39 100 m²
- Bruttoareal
- 106 m²
- Boligselgerforsikring
- Ja
Fasiliteter
Beliggenhet
Veldrevet borettslag med blant annet felles trimrom, badstue, bordtennis- og snekkerrom som kan benyttes av beboerne i tillegg til selskapsrom og gjesterom med eget bad som beboerne kan leie.
Umiddelbar nærhet til butikker på Hovseter Torg, matbutikk og post i butikk ved Hovseter stasjon. Fine gangveier til Røa senter med et bredt utvalg av servicetilbud.
Gangavstand til offentlig kommunikasjon. Det er ca. 5 min gange til t-bane på Hovseter stasjon. Derfra går linje 2 Østerås/Ellingsrud, som bruker ca. 13 min til Nationaltheateret. Få minutters gange til bussforbindelser fra Landingsveien (buss nr. 46 og 47). Nattbuss og flybuss ved Huseby skole.
Kort vei til skoler i alle trinn; Huseby barneskole, Hovseter ungdomsskole og Persbråten videregående, samt Steinerskolen. Det er flere kommunale og private barnehager i nærområdet, bl.a Meklenborg, Hamborg, Vestjordet og Hov barnehage.
Flotte tur- og rekreasjonsmuligheter i umiddelbar nærhet til borettslaget, både sommer og vinter. Fine turstier (preparerte skiløyper på vinterstid) langs Mærradalen som fører opp til marka. Sykkel- og gangvei til Bogstadområdet. Golfbane på Bogstad, Haga og Grini.
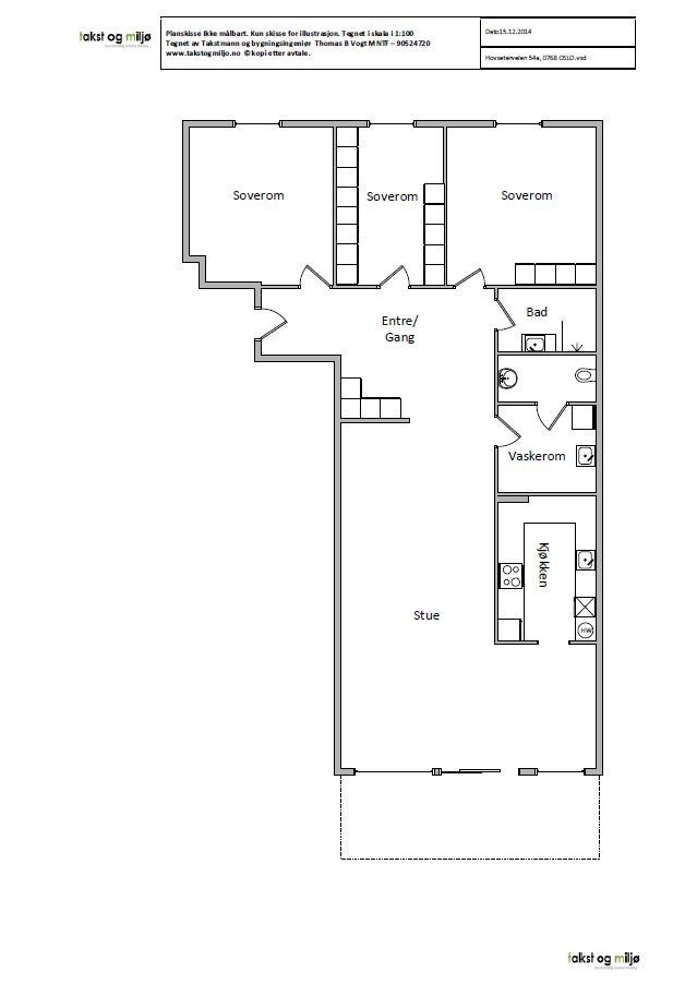
Arealer og innholdsbeskrivelse:
Totalt bruttoareal: 106 kvm
Totalt bruksareal: 97 kvm
Totalt primærrom: 97 kvm
Primærrom 97kvm:
Entré, gang, stue med utgang terrasse,3 soverom, bad, kjøkken.
I tillegg disponerer boligen bod i kjeller på 2 kvm, samt en utebod på 3 kvm. I tillegg kommer felles bod, sykkelbod.
Vedlagte plantegninger er ikke målbare. De oppgitte arealer er hentet fra takst avholdt 12.12.2014 utført av Thomas B.Vogt Arealene er beregnet og rom er definert etter dagens faktiske bruk, uavhengig av hva som er godkjent av bygningsmyndighetene.
Standard:
Arealeffektiv og lys 4-roms leilighet med stor solrik balkong. Leiligheten ligger fint til på borettslagets tomt med gode solforhold.
Leiligheten består av gang med klesoppheng. Tre soverom på rad med god skapplass. Flislagt bad med servant, skap og dusj. Separat toalett. I tillegg er det vaskerom med utslagsvask og god plass til både vaskemaskin og tørketrommel.
Åpen og lys hjørnestue med plass til stort spisebord. Pent kjøkken med delvis åpen løsning mot spisestuen. Kjøkken har kjøl/frys, komfyr, platetopp og oppvaskmaskin.
Stuen har store vinduer og det er utgang til stor balkong.
Alle vinduene på soverommene skal skiftes ut i regi av brl. Vinduer er bestilt og dette vil antagelig bli byttet i desember i følge styreleder.
Leiligheten disponerer en garasjeplass i samme bygg og to boder. En kjellerbod samt en utebod.
Oppvarming:
Boligen varmes opp via elektrisk fyring. Dersom beboelsesrom ikke har vegg- eller fastmonterte varmekilder ved visning følger dette heller ikke med.
Bebyggelse:
Bygningen er iht. vedlagte takst oppført i betong.
Vi gjør oppmerksom på at boligen er oppført iht. andre krav og byggeforskrifter enn de som gjelder pr. i dag, herunder krav til varig opphold, da det er byggeforskrifter på oppføringstidspunktet som var gjeldende.
For nærmere beskrivelse om bebyggelsen henvises til vedlagte takst.
Parkering:
Det medfølger en garasjeplass til leiligheten i kjelleren på samme bygg. Dersom det er behov for mer en en plass, formidler daglig leder eventuelle ledige plasser. Borettslaget har i tillegg en rekke gjesteparkeringsplasser.
Tomten:
Eiet tomt på 39.100 kvm som tilhører borettslaget.
Regulering
Eiendommen er regulert til boligformål i henhold til reguleringsplan S-1733 datert 03.01.1972 med tilhørende reguleringsbestemmelser datert 03.01.1972.
Utsnitt av plan med tilhørende bestemmelser kan fås ved henvendelse til megler.
Eiendommens utgifter:
Felleskostnadene er kr 3.315,- pr. mnd. og inkluderer: Garasjeleie, kabel-tv, vaktmestertjenester, trappevask, foretningsførsel, felles forsikring m.m
Felleskostnadene fordeles slik:
Felleskostnader: 3.150,-
Garasjeleie: 165,-
Nåværende eier har et strømforbruk som tilsvarer ca. 9.000 kwh. pr. år.
Boligen er tilknyttet GET som leverandør av kabel-tv og dekkes gjennom felleskostnadene. Tv-tuner/dekoder medfølger ikke.
Utgiftene er basert på nåværende eiers forbruk. Kjøper må selv tegne innboforsikring.
Fellesgjeld:
Andel fellesgjeld er kr 183.741,- pr. 01.08.2015 og betjenes gjennom fellesutgiftene.
Andel formue er kr 23.273,- pr. 31.12.2014
Total fellesgjeld for boligselskapet er kr 63.401.240,- pr.24.08.2015 og lånevilkårene er:
Lån 1:
Restsaldo: kr 33.792.741,-
Rentebetingelser: Flytende rente på 2,75%
Lånets løpetid: 22år og 6mnd
Ingen avdragsfrihet
Lån 2:
Restsaldo: kr 29.608.499,-
Rentebetingelser: Flytende rente på 2,75%
Lånets løpetid: 27år og 3mnd
Ingen avdragsfrihet
Adkomst
Det vil bli skiltet med Krogsveen visningsskilter ved fellesvisninger.
Innhent komplett prospekt
Nettannonsen er kun et utdrag av prospektets fullstendige eiendomsopplysninger. Alle som vurderer tilbud må sette seg inn i alle prospektets opplysninger. Last ned fullstendig PDF eller kontakt megler.
Ta kontakt med megler for komplett informasjon
Nyttige lenker
Nærområdet
Krogsveen Majorstuen og Oslo Vest
Annonseinformasjon
| FINN-kode | 63491271 |
|---|---|
| Sist endret | 23. feb. 2019 23:57 |
| Referanse | KR4014174 |
Annonsene kan være mangelfulle i forhold til lovpålagt opplysningsplikt. Før bindende avtale inngås oppfordres interessenter til å innhente komplett informasjon fra meglerforetaket, selger eller utleier.















