Bildegalleri

Velkommen til Oscars gate 37A! Foto: Pontus Gustav Holmenäs.
Solgt
Bak slottet
Klassisk perle i Oscars gate med 15 kvm balkong i 2. etasje - Rosett og stukkatur - Generøs takhøyde - Pipeløp
Prisantydning8 950 000 kr
Nøkkelinfo
- Boligtype
- Leilighet
- Eieform
- Andel
- Soverom
- 2
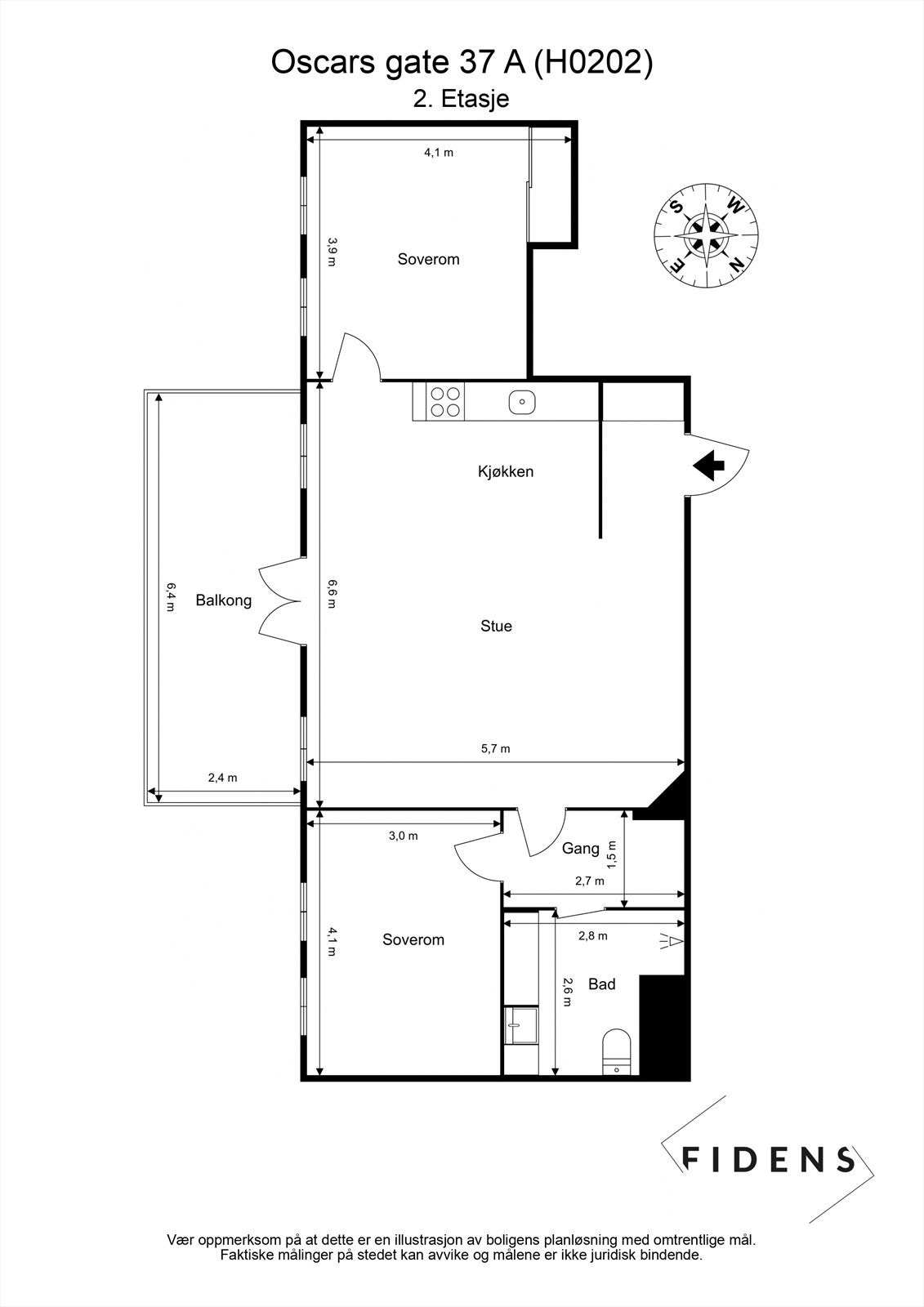
- Internt bruksareal
- 78 m² (BRA-i)
- Bruksareal
- 83 m²
- Eksternt bruksareal
- 5 m² (BRA-e)
- Balkong/Terrasse
- 15 m² (TBA)
- Etasje
- 2
- Byggeår
- 1892
- Energimerking
- Rom
- 3
- Tomt
- Eiet
Fasiliteter
Balkong/Terrasse
Bredbåndstilknytning
Offentlig vann/kloakk
Parkett
Rolig
Sentralt
Om boligen
Velkommen til Oscars gate 37 - en lys og klassisk leilighet i et attraktivt område på Uranienborg.
Leiligheten har en gjennomtenkt planløsning med stue, kjøkken, to soverom og bad. Den generøse takhøyden skaper en luftig og romslig atmosfære. Her bor du i en ærverdig bygård fra 1892. Leiligheten byr på flott stukkatur og rosett i himling.
Boligen har en ettertraktet beliggenhet i et urbant og populært område på Uranienborg. Her bor du med skoler, offentlig kommunikasjon, tur og rekreasjonsområder samt noen av byens mest populære handlegater like utenfor døren.
Kvaliteter:
- Store vindusflater som slipper rikelig inn med lys
- Stor og solrik balkong
- Generøs takhøyde på hele 3,01 meter
- I nærhet til "alt" du trenger i hverdagen
- Kort vei til offentlig kommunikasjon
Leiligheten har en gjennomtenkt planløsning med stue, kjøkken, to soverom og bad. Den generøse takhøyden skaper en luftig og romslig atmosfære. Her bor du i en ærverdig bygård fra 1892. Leiligheten byr på flott stukkatur og rosett i himling.
Boligen har en ettertraktet beliggenhet i et urbant og populært område på Uranienborg. Her bor du med skoler, offentlig kommunikasjon, tur og rekreasjonsområder samt noen av byens mest populære handlegater like utenfor døren.
Kvaliteter:
- Store vindusflater som slipper rikelig inn med lys
- Stor og solrik balkong
- Generøs takhøyde på hele 3,01 meter
- I nærhet til "alt" du trenger i hverdagen
- Kort vei til offentlig kommunikasjon
NB: Knappen for å vise hele beskrivelsen har kun en visuell effekt.
NB: Knappen for å vise hele beskrivelsen har kun en visuell effekt.
Salgsoppgaven beskriver vesentlig og lovpålagt informasjon om eiendommen
Se komplett salgsoppgaveNyttige lenker
Nærområdet
Nordvik St.Hanshaugen
Annonseinformasjon
| FINN-kode | 459354598 |
|---|---|
| Sist endret | 24. apr. 2026 13:34 |
| Referanse | 5-0554/25 |
Annonsene kan være mangelfulle i forhold til lovpålagt opplysningsplikt. Før bindende avtale inngås oppfordres interessenter til å innhente komplett informasjon fra meglerforetaket, selger eller utleier.




































