Bildegalleri

Velkommen til St. Edmunds vei 35 - Presentert av Nicolay Ulvin v/ Eie Eiendomsmegling Røa, Skøyen & Ullern. Foto: Arne Scharm.
Solgt
Moderne & gjennomført 3-roms med solrik balkong | Heis | Garasjeleie | A-konto Vv & oppvarming
Prisantydning6 250 000 kr
Nøkkelinfo
- Boligtype
- Leilighet
- Eieform
- Andel
- Soverom
- 2
- Internt bruksareal
- 54 m² (BRA-i)
- Bruksareal
- 60 m²
- Eksternt bruksareal
- 6 m² (BRA-e)
- Balkong/Terrasse
- 10 m² (TBA)
- Etasje
- 2
- Byggeår
- 2008
- Energimerking
- B - Lysegrønn
- Rom
- 3
- Tomteareal
- 1 837 m² (eiet)
Fasiliteter
Barnevennlig
Balkong/Terrasse
Kabel-TV
Heis
Offentlig vann/kloakk
Parkett
Vaktmester-/vektertjeneste
Sentralt
Bredbåndstilknytning
Moderne
Rolig
Om boligen
Velkommen til St. Edmunds vei 35 - en gjennomført og lys 3-roms andelsleilighet i 2. etasje, beliggende i det populære og barnevennlige Ullern-området i Oslo vest.
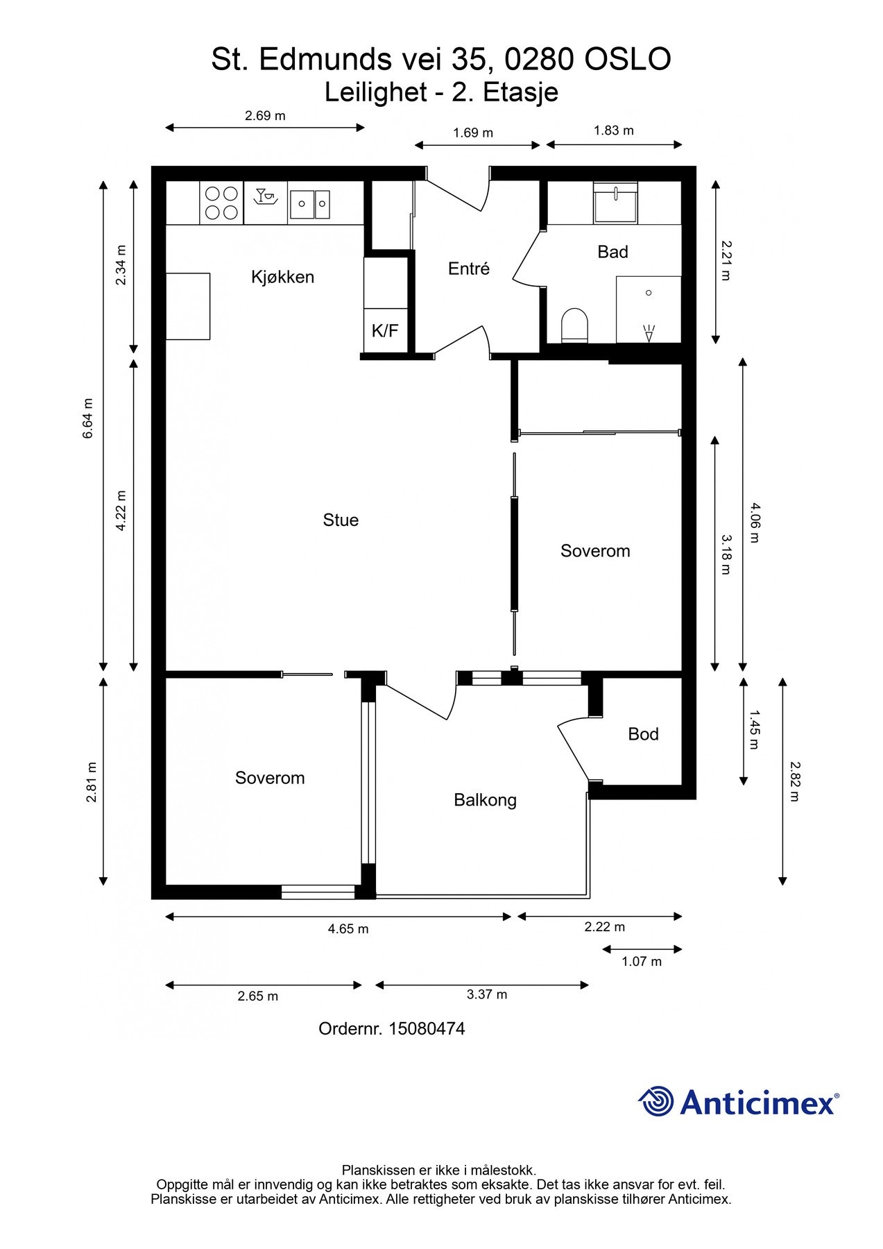
Leiligheten byr på en smart og effektiv planløsning med stue, to soverom, kjøkken, bad og entre - alt på 60 kvm totalt bruksareal. Kvadratmeterne er godt utnyttet, og leiligheten oppleves romslig og luftig.
Fra stuen er det direkte utgang til en sørvestvendt balkong på 10 kvm med terrassebord på gulv og nydelig ettermiddagssol - her er det godt å være store deler av dagen. Balkongen har også en praktisk bod på 2 kvm.
Boligen har vannbåren varme via radiatorer og elektrisk gulvvarme på badet. Eikegulvene er slipet og lakkbehandlet i 2023, og leiligheten fremstår pen og godt ivaretatt.
Borettslaget St. Edmunds Vei ligger på en flott tomt med grøntarealer, og har felles trappeoppgang med heis. Her får du det beste av rolige omgivelser kombinert med kort vei til kollektivtransport, butikker og byliv.
Leiligheten byr på en smart og effektiv planløsning med stue, to soverom, kjøkken, bad og entre - alt på 60 kvm totalt bruksareal. Kvadratmeterne er godt utnyttet, og leiligheten oppleves romslig og luftig.
Fra stuen er det direkte utgang til en sørvestvendt balkong på 10 kvm med terrassebord på gulv og nydelig ettermiddagssol - her er det godt å være store deler av dagen. Balkongen har også en praktisk bod på 2 kvm.
Boligen har vannbåren varme via radiatorer og elektrisk gulvvarme på badet. Eikegulvene er slipet og lakkbehandlet i 2023, og leiligheten fremstår pen og godt ivaretatt.
Borettslaget St. Edmunds Vei ligger på en flott tomt med grøntarealer, og har felles trappeoppgang med heis. Her får du det beste av rolige omgivelser kombinert med kort vei til kollektivtransport, butikker og byliv.
NB: Knappen for å vise hele beskrivelsen har kun en visuell effekt.
NB: Knappen for å vise hele beskrivelsen har kun en visuell effekt.
Salgsoppgaven beskriver vesentlig og lovpålagt informasjon om eiendommen
Se komplett salgsoppgaveNyttige lenker
Nærområdet
EIE eiendomsmegling Røa, Skøyen og Ullern
Annonseinformasjon
| FINN-kode | 459220964 |
|---|---|
| Sist endret | 24. apr. 2026 10:44 |
| Referanse | 50260102 |
Annonsene kan være mangelfulle i forhold til lovpålagt opplysningsplikt. Før bindende avtale inngås oppfordres interessenter til å innhente komplett informasjon fra meglerforetaket, selger eller utleier.
























