Bildegalleri

Velkommen til Edvard Griegs allé 6! - Presentert av Krogsveen avd. Grünerløkka og Sagene v/ Andreas Holt Lindstad.
Solgt
Torshov
Lys og pen 3-roms med vestvendt balkong med grønne omgivelser. Nyere kjøkken, peis og flislagt bad. Barnevennlig BRL.
Prisantydning6 690 000 kr
Nøkkelinfo
- Boligtype
- Leilighet
- Eieform
- Andel
- Soverom
- 2
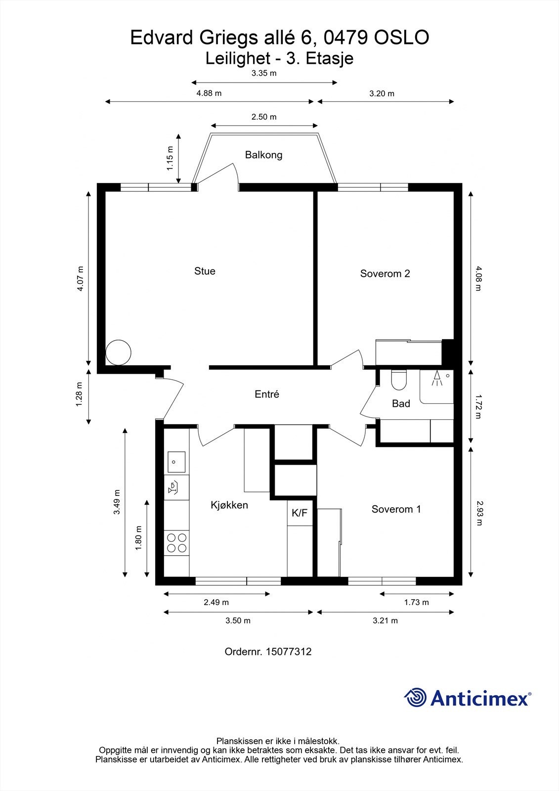
- Internt bruksareal
- 69 m² (BRA-i)
- Bruksareal
- 82 m²
- Eksternt bruksareal
- 13 m² (BRA-e)
- Balkong/Terrasse
- 3 m² (TBA)
- Etasje
- 3
- Byggeår
- 1952
- Energimerking
- Rom
- 3
- Tomteareal
- 21 295 m² (eiet)
Fasiliteter
Balkong/Terrasse
Barnevennlig
Bredbåndstilknytning
Fellesvaskeri
Kabel-TV
Offentlig vann/kloakk
Parkett
Peis/Ildsted
Rolig
Vaktmester-/vektertjeneste
Om boligen
Velkommen til Edvard Griegs Allé 6! En lys og tiltalende 3-roms andelsleilighet med usjenert og rolig beliggenhet på populære Torshov.
Her bor du tilbaketrukket og idyllisk, omgitt av store, grønne fellesområder, men likevel med umiddelbar nærhet til alt det urbane Oslo har å by på. Fra den vestvendte balkongen har du en fin utsikt over grøntarealer, samt gode solforhold.
Verdt å merke seg:
- Vestvendt balkong.
- Fibernett inkl. i felleskostnadene.
- Romslig Kvik kjøkken fra 2019.
- Lys stue med store vindusflater og peis.
- To gode soverom med skapplass.
- Rolig og trafikkstille beliggenhet.
- P-plasser fordeles etter venteliste.
Velkommen til visning!
Her bor du tilbaketrukket og idyllisk, omgitt av store, grønne fellesområder, men likevel med umiddelbar nærhet til alt det urbane Oslo har å by på. Fra den vestvendte balkongen har du en fin utsikt over grøntarealer, samt gode solforhold.
Verdt å merke seg:
- Vestvendt balkong.
- Fibernett inkl. i felleskostnadene.
- Romslig Kvik kjøkken fra 2019.
- Lys stue med store vindusflater og peis.
- To gode soverom med skapplass.
- Rolig og trafikkstille beliggenhet.
- P-plasser fordeles etter venteliste.
Velkommen til visning!
NB: Knappen for å vise hele beskrivelsen har kun en visuell effekt.
NB: Knappen for å vise hele beskrivelsen har kun en visuell effekt.
Salgsoppgaven beskriver vesentlig og lovpålagt informasjon om eiendommen
Se komplett salgsoppgaveNyttige lenker
Nærområdet
Krogsveen Grünerløkka og Sagene
Verdien av en god megler.
Annonseinformasjon
| FINN-kode | 458053994 |
|---|---|
| Sist endret | 24. apr. 2026 16:24 |
| Referanse | KR52.2578 |
Annonsene kan være mangelfulle i forhold til lovpålagt opplysningsplikt. Før bindende avtale inngås oppfordres interessenter til å innhente komplett informasjon fra meglerforetaket, selger eller utleier.





































