Bildegalleri

2 hus, dobbelgarasje, enkelgarasje og stor tomt
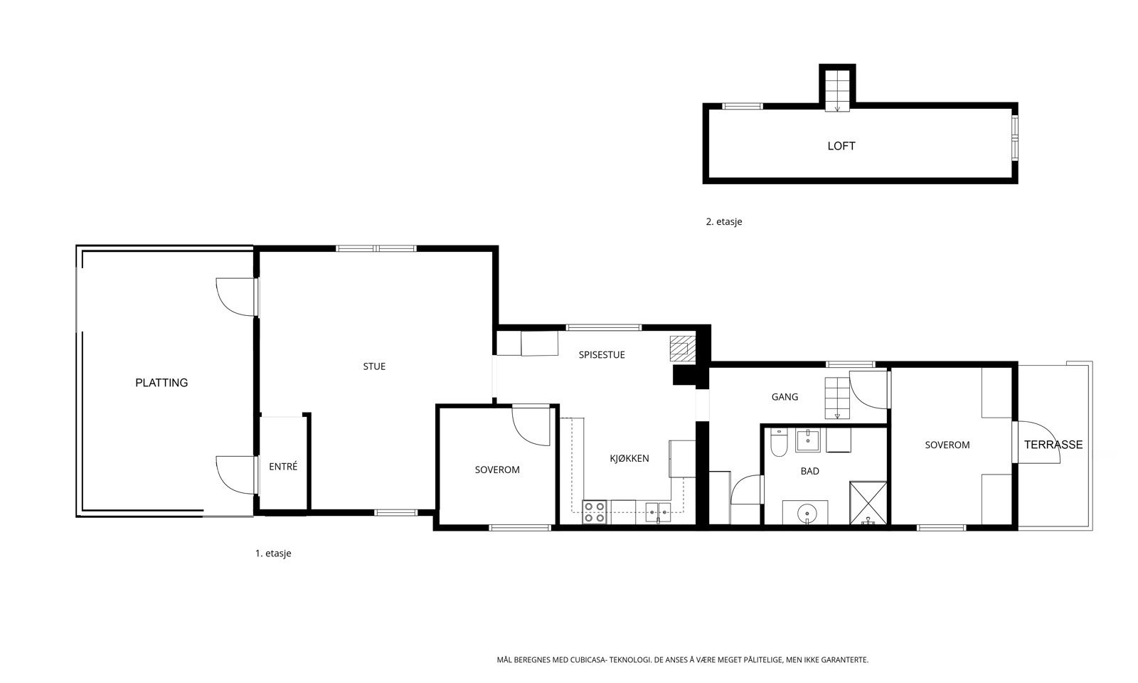
Romslig, velholdt enebolig med ekstra bolig (utleid for 12.000,-/mnd), dobbelgarasje og enkelgarasje. 2 måls tomt!
Nøkkelinfo
- Boligtype
- Enebolig
- Eieform
- Selveier
- Soverom
- 4
- Internt bruksareal
- 240 m² (BRA-i)
- Bruksareal
- 378 m²
- Eksternt bruksareal
- 126 m² (BRA-e)
- Balkong/Terrasse
- 69 m² (TBA)
- Byggeår
- 1929
- Energimerking
- E - Oransje
- Tomteareal
- 1 998 m² (eiet)
Fasiliteter
Om boligen
Helge Børsand i Holmskau & Partners gleder seg til å vise deg Varteigveien 461 og 463. Dette er 2 boliger på én tomt på nær 2 mål, og mens hovedboligen har 2 etasjer og delvis innredet kjeller, er ekstraboligen på én flate. Tomten rommer også en dobbelgarasje m/loft og enkelgarasje. Så her kan hele storfamilien bo, eller som nåværende eier gjør - leier ut den ene. Her er det mange bruksmuligheter.
Bygningsmassen ble generelt vesentlig oppgradert i 2005/2006, og den fremstår som velholdt, hel & pen. Samtidig er det viktig å lese taksten for utfyllende informasjon om det tekniske ved boligen
Den store tomten har god tilgang til sol og lys - samt parkering, lek og moro for store og små. Det er kort vei til Varteig barne- og ungdomsskole, barnhage og Varteig kirke. Butikk på Hafslundsøy.
Salgsoppgaven beskriver vesentlig og lovpålagt informasjon om eiendommen
Se komplett salgsoppgaveNyttige lenker
Nærområdet
Holmskau & Partners
Annonseinformasjon
| FINN-kode | 458049845 |
|---|---|
| Sist endret | 20. apr. 2026 15:29 |
| Referanse | 194250142 |
Annonsene kan være mangelfulle i forhold til lovpålagt opplysningsplikt. Før bindende avtale inngås oppfordres interessenter til å innhente komplett informasjon fra meglerforetaket, selger eller utleier.






























































