Bildegalleri

Inngangspartiet har en tretrapp med strekkmetall i trinn, og fasaden er kledd med liggende bordkledning.
Rekkehus med garasje i rolig område nær Mosjøen sentrum, med kort vei til skoler og butikker.
Prisantydning1 400 000 kr
Nøkkelinfo
- Boligtype
- Leilighet
- Eieform
- Andel
- Soverom
- 1
- Internt bruksareal
- 56 m² (BRA-i)
- Bruksareal
- 78 m²
- Eksternt bruksareal
- 22 m² (BRA-e)
- Balkong/Terrasse
- 11 m² (TBA)
- Etasje
- 1
- Byggeår
- 1992
- Energimerking
- D
- Rom
- 2
- Tomteareal
- 8 799 m² (eiet)
Om boligen
Velkommen til et sjarmerende rekkehus i Søster Signes veg, Mosjøen. Leiligheten passer for 1-2 personer, i alle aldre. Her er nærhet til skoler, barnehager og dagligvarebutikker. Offentlig transport er lett tilgjengelig, og nabolaget byr på rolige omgivelser med kort vei til Kippermoen idrettsanlegg samt fine turområder.
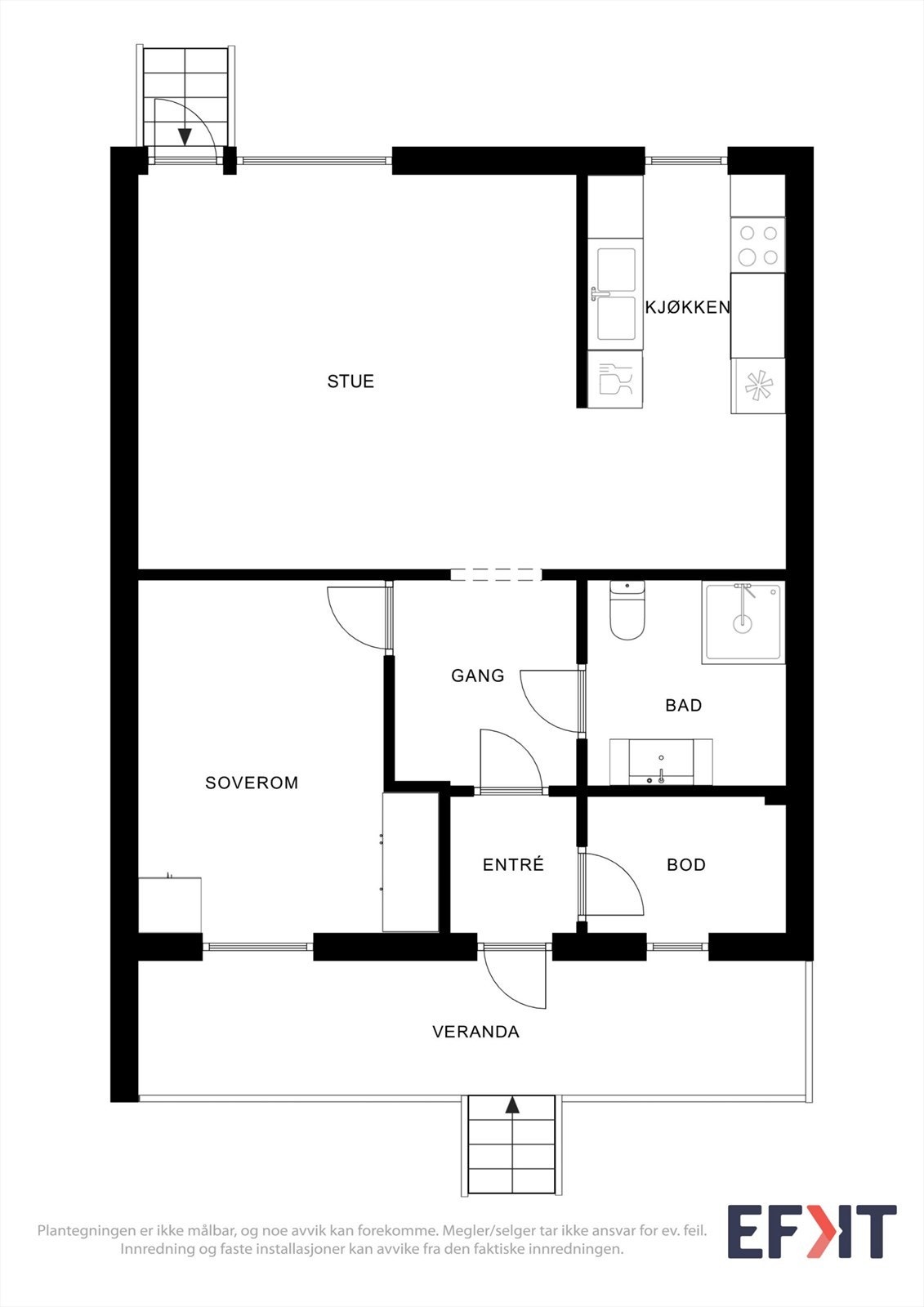
Rekkehuset, bygget i 1992, har et bruksareal på 78 m². Boligen er normalt vedlikeholdt, men enkelte oppgraderinger kan påregnes. Planløsningen inkluderer gang, stue, kjøkken, bad/vaskerom, soverom og bod. Uteplassen består av en terrasse på 11 m² ved inngangspartiet. Det følger med en garasje på 22 m², som gir god lagringsplass.
Rekkehuset, bygget i 1992, har et bruksareal på 78 m². Boligen er normalt vedlikeholdt, men enkelte oppgraderinger kan påregnes. Planløsningen inkluderer gang, stue, kjøkken, bad/vaskerom, soverom og bod. Uteplassen består av en terrasse på 11 m² ved inngangspartiet. Det følger med en garasje på 22 m², som gir god lagringsplass.
NB: Knappen for å vise hele beskrivelsen har kun en visuell effekt.
NB: Knappen for å vise hele beskrivelsen har kun en visuell effekt.
Salgsoppgaven beskriver vesentlig og lovpålagt informasjon om eiendommen
Se komplett salgsoppgaveNærområdet
Aktiv Helgeland
Annonseinformasjon
| FINN-kode | 454080460 |
|---|---|
| Sist endret | 06. mars 2026 12:45 |
| Referanse | 1801260006 |
Annonsene kan være mangelfulle i forhold til lovpålagt opplysningsplikt. Før bindende avtale inngås oppfordres interessenter til å innhente komplett informasjon fra meglerforetaket, selger eller utleier.
















