Bildegalleri

Terrassen blir en naturlig forlengelse av stuen og binder ute- og inneområdene sammen.
Jeløy
Lettstelt og sjarmerende 3-roms med stor, solrik og usjenert terrasse på 38 m². | Peisovn og carport. | Enkel adkomst |
Prisantydning2 840 000 kr
Nøkkelinfo
- Boligtype
- Leilighet
- Eieform
- Andel
- Soverom
- 2
- Internt bruksareal
- 66 m² (BRA-i)
- Bruksareal
- 66 m²
- Balkong/Terrasse
- 38 m² (TBA)
- Etasje
- 1
- Byggeår
- 1987
- Energimerking
- E
- Rom
- 3
- Tomteareal
- 6 180 m² (eiet)
Fasiliteter
Balkong/Terrasse
Barnevennlig
Bredbåndstilknytning
Garasje/P-plass
Peis/Ildsted
Rolig
Sentralt
Utsikt
Turterreng
Visning
lørdag, 14. mars
15:00 – 15:45
Ønsker du å delta på visningen, ber vi om at du melder deg på slik at vi vet at du kommer. Da kan vi orientere deg om bud og bistå alle, samt gi deg tiden du trenger på visning. Passer ikke angitt tidspunkt, så finner vi en løsning. Ta kontakt med megler om du har noen spørsmål på: 41650892. Velkommen!
VisningspåmeldingOm boligen
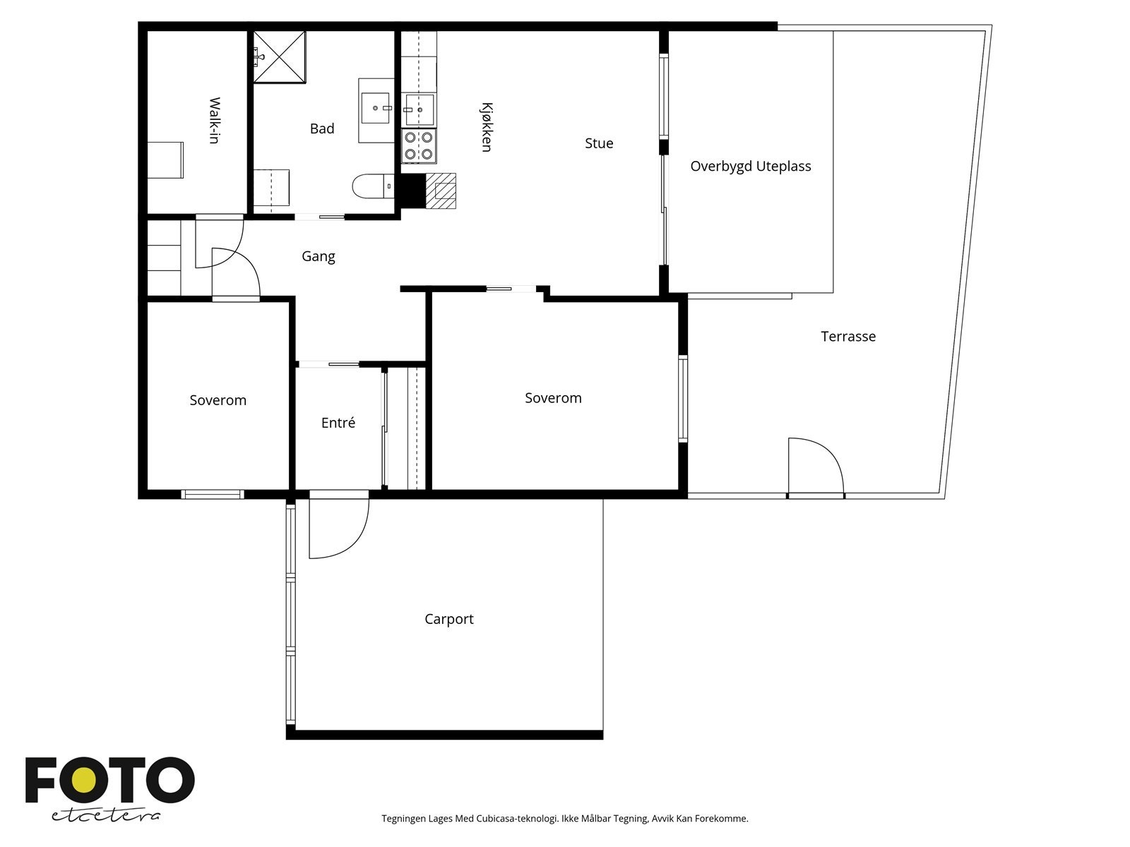
Velkommen til Sauåsen 13! Her får du en innholdsrik andelsleilighet med en stor og herlig terrasse på 38 m².
Dette er en innholdsrik leilighet med god planløsning, beliggende på attraktive Jeløya. Her bor du med nærhet til alt du trenger i hverdagen. Den store terrassen blir en naturlig forlengelse av stuen, perfekt for lange sommerdager. På kjøligere kvelder kan du trekke inn i stuen foran peisovnen. Det er åpen stue- og kjøkkenløsningen.
Høydepunkter:
Dette er en innholdsrik leilighet med god planløsning, beliggende på attraktive Jeløya. Her bor du med nærhet til alt du trenger i hverdagen. Den store terrassen blir en naturlig forlengelse av stuen, perfekt for lange sommerdager. På kjøligere kvelder kan du trekke inn i stuen foran peisovnen. Det er åpen stue- og kjøkkenløsningen.
Høydepunkter:
- Stor terrasse på 38 m² med utgang fra stuen
- Praktisk carport i tilknytning til inngangspartiet
- Peisovn i stuen som gir varme og hygge
- To soverom og god planløsning på ett plan
- Lave kjøpsomkostninger og avklart forkjøpsrett
Velkommen til en hyggelig visning!
NB: Knappen for å vise hele beskrivelsen har kun en visuell effekt.
NB: Knappen for å vise hele beskrivelsen har kun en visuell effekt.
Salgsoppgaven beskriver vesentlig og lovpålagt informasjon om eiendommen
Se komplett salgsoppgaveNyttige lenker
Nærområdet
EiendomsMegler 1 Moss
Vi loser deg trygt gjennom hele boligsalget
Annonseinformasjon
| FINN-kode | 454040714 |
|---|---|
| Sist endret | 06. mars 2026 11:30 |
| Referanse | 5230260027 |
Annonsene kan være mangelfulle i forhold til lovpålagt opplysningsplikt. Før bindende avtale inngås oppfordres interessenter til å innhente komplett informasjon fra meglerforetaket, selger eller utleier.



























