Bildegalleri

Velkommen til Selevegen 270 v/ Veronica Berge Olsen, Eiendomsmegler Norge.
Sele
Landlig idyll med gåavstand til Selestranda - Innholdsrik bolig, stor tomt og dobbel garasje.
Prisantydning7 490 000 kr
Nøkkelinfo
- Boligtype
- Enebolig
- Eieform
- Eier (Selveier)
- Soverom
- 4
- Internt bruksareal
- 260 m² (BRA-i)
- Bruksareal
- 268 m²
- Eksternt bruksareal
- 8 m² (BRA-e)
- Balkong/Terrasse
- 84 m² (TBA)
- Etasje
- 3
- Byggeår
- 1962
- Energimerking
- F
- Rom
- 7
- Tomteareal
- 1 316 m² (eiet)
Fasiliteter
Balkong/Terrasse
Garasje/P-plass
Hage
Parkett
Peis/Ildsted
Utsikt
Bademulighet
Fiskemulighet
Turterreng
Lademulighet
Visning
mandag, 16. mars
16:00 – 17:30
Eiendomsmegler Norge sine visninger har påmelding. Påmelding gjøres enkelt ved å benytte knappen under. Ta kontakt med megler dersom oppsatt tidspunkt ikke passer. Det vil ikke bli avholdt visning uten påmelding, frist for påmelding er senest kl. 12.00 på visningsdagen. Husk å laste ned salgsoppgaven digitalt før visning. Velkommen til en hyggelig visning!
VisningspåmeldingOm boligen
Beliggenheten er særegen; i et åpent og naturskjønt jærlandskap med vakker natur så langt øye kan se. Med umiddelbar nærhet til Selestranda - en sandstrand med uendelig horisont ut i havet.
Eiendommen ligger fritt og flott til med vidstrakt utsikt over det åpne jærlandskapet og mot sjøen.
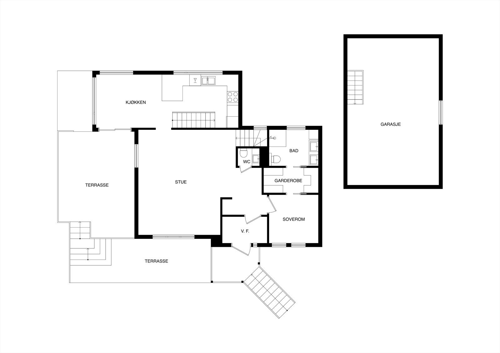
Boligen fremstår som innbydende og innholdsrik med gode oppholdsrom, hybel (foreligger ikke tegninger) og plass til både familie og gjester.
Den romslige tomten gir rikelig med boltreplass, ypperlige solforhold og gode muligheter for å nyte de landlige omgivelsene.
Dobbel garasje og et stort gårdsrom gir gode parkeringsmuligheter og understreker eiendommens romslige og praktiske preg.
Her bor du landlig og fritt, samtidig som du kan nyte naturen og det åpne landskapet som Jæren er så kjent for.
Eiendommen ligger fritt og flott til med vidstrakt utsikt over det åpne jærlandskapet og mot sjøen.
Boligen fremstår som innbydende og innholdsrik med gode oppholdsrom, hybel (foreligger ikke tegninger) og plass til både familie og gjester.
Den romslige tomten gir rikelig med boltreplass, ypperlige solforhold og gode muligheter for å nyte de landlige omgivelsene.
Dobbel garasje og et stort gårdsrom gir gode parkeringsmuligheter og understreker eiendommens romslige og praktiske preg.
Her bor du landlig og fritt, samtidig som du kan nyte naturen og det åpne landskapet som Jæren er så kjent for.
NB: Knappen for å vise hele beskrivelsen har kun en visuell effekt.
NB: Knappen for å vise hele beskrivelsen har kun en visuell effekt.
Salgsoppgaven beskriver vesentlig og lovpålagt informasjon om eiendommen
Se komplett salgsoppgaveNyttige lenker
Nærområdet
Eiendomsmegler Norge Stavanger
Best der du bor
Annonseinformasjon
| FINN-kode | 454036312 |
|---|---|
| Sist endret | 06. mars 2026 10:46 |
| Referanse | 20260013 |
Annonsene kan være mangelfulle i forhold til lovpålagt opplysningsplikt. Før bindende avtale inngås oppfordres interessenter til å innhente komplett informasjon fra meglerforetaket, selger eller utleier.






















































