Bildegalleri

EIE eiendomsmegling ønsker velkommen til seniorleilighet på Nygårdstunet!
Nygårdstunet - Pen seniorleilighet i 1. etasje! Meget lettstelt og solrikt - 2 soverom - Garasje. Lave fellesutgifter.
Prisantydning3 150 000 kr
Nøkkelinfo
- Boligtype
- Leilighet
- Eieform
- Eier (Selveier)
- Soverom
- 2
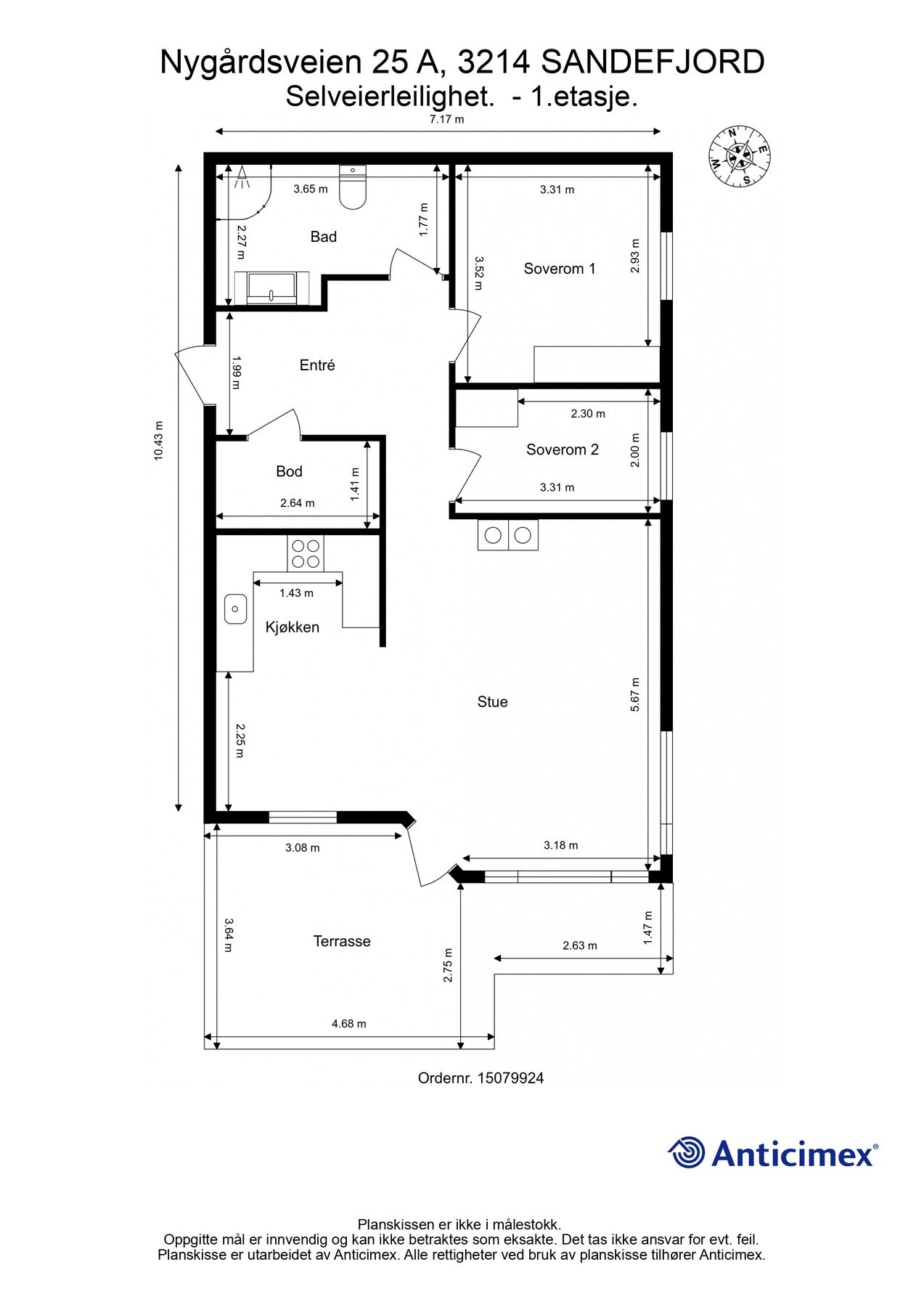
- Internt bruksareal
- 78 m² (BRA-i)
- Bruksareal
- 100 m²
- Eksternt bruksareal
- 20 m² (BRA-e)
- Balkong/Terrasse
- 23 m² (TBA)
- Byggeår
- 2004
- Energimerking
- D - Gul
- Rom
- 3
- Tomteareal
- 2 422 m² (eiet)
Fasiliteter
Balkong/Terrasse
Garasje/P-plass
Kabel-TV
Offentlig vann/kloakk
Parkett
Turterreng
Bredbåndstilknytning
Om boligen
EIE eiendomsmegling ønsker velkommen til Nygårdsveien 25 A og 1.etasje. Lettstelt og fin leilighet med 2 soverom og stor delvis overbygget terrasse.
I umiddelbar nærhet ligger vakre Bugårdsparken med sine flotte idrettsanlegg og turområder. Kort vei til flere dagligvareforretninger. Ca. 800 meter opp til Pindsle hvor man finner det aller meste.
Kort fortalt:
.Lettstelt selveierleilighet for de over 50 år.
.2 soverom
.Stor markterrasse
.Garasje og utebod
.Fantastiske fellesområder
I umiddelbar nærhet ligger vakre Bugårdsparken med sine flotte idrettsanlegg og turområder. Kort vei til flere dagligvareforretninger. Ca. 800 meter opp til Pindsle hvor man finner det aller meste.
Kort fortalt:
.Lettstelt selveierleilighet for de over 50 år.
.2 soverom
.Stor markterrasse
.Garasje og utebod
.Fantastiske fellesområder
NB: Knappen for å vise hele beskrivelsen har kun en visuell effekt.
NB: Knappen for å vise hele beskrivelsen har kun en visuell effekt.
Salgsoppgaven beskriver vesentlig og lovpålagt informasjon om eiendommen
Se komplett salgsoppgaveNyttige lenker
Nærområdet
EIE eiendomsmegling Sandefjord
Annonseinformasjon
| FINN-kode | 453964731 |
|---|---|
| Sist endret | 06. mars 2026 10:01 |
| Referanse | 87260034 |
Annonsene kan være mangelfulle i forhold til lovpålagt opplysningsplikt. Før bindende avtale inngås oppfordres interessenter til å innhente komplett informasjon fra meglerforetaket, selger eller utleier.
































