Bildegalleri

Eiendomsmegler 1 v/Morten Karlsen presenterer Vestre Karmøyveg 817! Enebolig med totalt 230 kvm garasje/lager/verksted - Velholdt bolig med god standard | Foto: Vestbris
Enebolig med totalt 230 kvm garasje/lager/verksted - Velholdt bolig med god standard
Prisantydning2 990 000 kr
Nøkkelinfo
- Boligtype
- Enebolig
- Eieform
- Eier (Selveier)
- Soverom
- 2
- Internt bruksareal
- 365 m² (BRA-i)
- Bruksareal
- 437 m²
- Eksternt bruksareal
- 72 m² (BRA-e)
- Balkong/Terrasse
- 26 m² (TBA)
- Byggeår
- 1964
- Energimerking
- D
- Rom
- 3
- Tomteareal
- 1 415 m² (eiet)
Fasiliteter
Balkong/Terrasse
Bredbåndstilknytning
Garasje/P-plass
Golfbane
Kjæledyr tillatt
Kabel-TV
Offentlig vann/kloakk
Utsikt
Lademulighet
Visning
onsdag, 11. mars
16:30 – 17:15
Alle EiendomsMegler1 sine visninger har påmelding. Påmelding gjør du enkelt ved å benytte knappen under. Skulle oppsatt tidspunkt ikke passe, kontakt megler - så finner vi en passende tid. Skulle ingen være påmeldt til visningen innen 24 timer før, vil visningen ikke bli gjennomført.
VisningspåmeldingOm boligen
Eiendomsmegler 1 v/Morten Karlsen presenterer Vestre Karmøyveg 817!
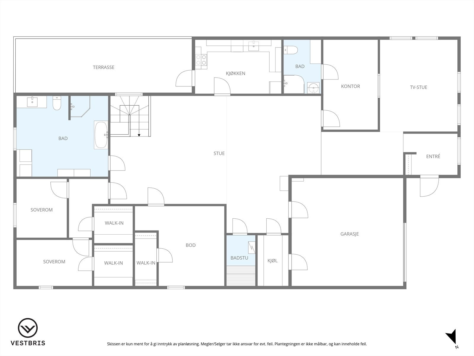
Unik eiendom på Sandve. Enebolig med garasje/lager/verksted i underetasjen, samt frittstående garasje. Totalt ca 230 kvm med garasje/lager/verksted.
Boligen er innredet over to plan og inneholder:
1.etasje: Entrè/vindfang, stue, bad, kjøkken, badstue, 2 (3) soverom, bad/vaskerom, badstue, kjølerom, to garderober, bod og garasje.
Underetasje: Trapperom, wc, verksted, lager og garasje.
Frittstående garasje med meget god takhøyde.
Unik mulighet for den rette kjøper!
Velkommen på påmeldingsvisning!
Unik eiendom på Sandve. Enebolig med garasje/lager/verksted i underetasjen, samt frittstående garasje. Totalt ca 230 kvm med garasje/lager/verksted.
Boligen er innredet over to plan og inneholder:
1.etasje: Entrè/vindfang, stue, bad, kjøkken, badstue, 2 (3) soverom, bad/vaskerom, badstue, kjølerom, to garderober, bod og garasje.
Underetasje: Trapperom, wc, verksted, lager og garasje.
Frittstående garasje med meget god takhøyde.
Unik mulighet for den rette kjøper!
Velkommen på påmeldingsvisning!
NB: Knappen for å vise hele beskrivelsen har kun en visuell effekt.
NB: Knappen for å vise hele beskrivelsen har kun en visuell effekt.
Salgsoppgaven beskriver vesentlig og lovpålagt informasjon om eiendommen
Se komplett salgsoppgaveNyttige lenker
Nærområdet
EiendomsMegler 1 Karmøy
En del av Sparebank 1 Sør-Norge
Annonseinformasjon
| FINN-kode | 453952262 |
|---|---|
| Sist endret | 05. mars 2026 15:36 |
| Referanse | 2502260026 |
Annonsene kan være mangelfulle i forhold til lovpålagt opplysningsplikt. Før bindende avtale inngås oppfordres interessenter til å innhente komplett informasjon fra meglerforetaket, selger eller utleier.




























































